Advertorial

Vytvorte si kúpeľňu snov: dizajnové riešenie od značky hansgrohe

Hansgrohe - prémiová značka kúpeľňových riešení, ponúka nadčasový dizajn, technickú precíznosť a udržateľné inovácie...

Okná Internorm za minuloročné ceny + hliníkový kryt zdarma!

Využite špeciálnu akciu Internorm: okná za minuloročné ceny a hliníkový kryt úplne zadarmo. Ponuka je časovo obmedzená!

Pozvánka na 2. ročník stavebného veľtrhu BigMarket na Slovensku

Na podujatí sa predstaví až 37 vystavovateľov - popredných dodávateľov stavebných materiálov a inovácií s prezentáciou...

Moderné plynové technológie: Efektivita a inovácie pre 21. storočie

Sumarizácia najdôležitejších inovácií, ktoré redefinujúcich využitie tohto energetického zdroja.

Utesňovanie spodných stavieb pomocou hydro-aktívnej fólie AMPHIBIA.

AMPHIBIA 3000 GRIP 1.3 od spoločnosti ATRO predstavuje modernú hydroizolačnú technológiu, ktorá spája vysokú odolnosť,...

Dekarbonizácia individuálneho vykurovania domácností – Green Deal evolučne a nie revolučne

Ambiciózne plány EK narazili na ekonomické možnosti domácností v jednotlivých členských štátoch –...

Minimalistické dvere IDEA – technická precíznosť a čistota prevedenia

IDEA DOOR od spoločnosti JAP prináša do interiéru čistý minimalistický vzhľad vďaka bezrámovému riešeniu a precíznej...

Dom s výhľadom na údolie, Dlouhý Most (ČR)

Kontinuita riešenia od vonkajšieho obkladu až po kovania a kľučky.

Schell Vitus – osvedčené riešenie pre sprchy a umývadlá vo verejnom sektore s viac ako desaťročnou tradíciou

Nástenné nadomietkové armatúry Vitus sú mimoriadne vhodné pre rýchlu a efektívnu...

Kompozitné okná predstavujú súčasnosť a budúcnosť

Okenné profily z kompozitného materiálu RAU-FIPRO X od spoločnosti Rehau sú v porovnaní s tradičnými plastovými profilmi mnohonásobne...

Myotis - stoly 2025

Najnovší sortiment stolov pre zariadenie interiérov...

Priemyselné sklenené priečky Dorsis Digero: svetelné rozhranie pre moderné interiéry

Spojenie moderného dizajnu, funkčnosti a svetla do harmonického architektonického prvku.

Význam prirodzeného svetla pre moderné a flexibilné pracovné prostredie

Kancelárska budova Baumit v slovinskom Trzine prešla premenou na moderné a udržateľné pracovisko. Architekti kládli dôraz...

Konferencia Xella Dialóg predstaví novinky a trendy v stavebníctve

Mottom šiesteho ročníku on-line konferencie odborníkov Xella Dialóg je Efektívny návrh budov 2025+: zmeny a riešenia

Murovací robot WLTR stavia svoj prvý dom na Slovensku

Robot WLTR predstavuje moderný prístup k murovaným konštrukciám. Vďaka automatizácii dokáže rýchlo, presne a bezpečne realizovať...

Kontextuálna tvorba pri návrhu domu a pútnického miesta u Anežského kláštora, Praha

Kontextuálna tvorba je príznačná pre koncepty v mestskej zástavbe. Regulácia v daných územiach má svoje opodstatnenie. Regulujú sa najmä výšky ríms, striech, atík, stavebné a uličné čiary, koeficienty zastavanosti, indexi zelene ... . Novostavby riešené v historickej časti mesta by mali naviazať aj na historický kontext. Riešený pútnický dom je jedným z príkladov ako môže byť architektúra ovplyvnený existujúcou hmotou a zároveň rešpektuje súčasnú polohu fasád. Ako môže byť inšpirovaná nádvoriami, uličkami, pasážou a priechodmi, ktoré sa nachádzajú v starej časti mesta. Veľký vplyv na riešenú architektúru objektu bola horizontalita striech existujúcej zástavby (hrebene, rímsy) a vertikalita v podobe vežičiek, ktoré sa týčia nad daným územím v pohľade od rieky Vltava. Navrhované strešné roviny nasledujú tie existujúce a zároveň opticky znižujú bytový dom v pozadí. Vertikála (vyhliadková veža) je navrhnutá tak aby dopĺňala existujúce vežičky v pohľade a jej orientácia je v logickom súvise so susednou dominantou, ktorou je Anežský kláštor.
Diela
Roman Ruhig19.12.2016
4670+1
Kontextuálna tvorba pri návrhu domu a pútnického miesta u Anežského kláštora, Praha
Ateliér: ER AtelierAutori: Ing. Roman RuhigPlocha pozemku: 6892Zastavaná plocha: 5622Obostavaný objem: 7848Návrh: 2016 - 2016Adresa: Kozí , Praha, SlovenskoPublikované: 19. december 2016

Existujúci stav riešeného územia

V súčasnosti je celé riešené územie mimo záujem obyvateľov Prahy, tak i návštevníkom a turistom. Čiastočne je využívané ako športovisko. Celé miesto je znehodnocované veľmi frekventovanou a hlučnou ulicou Dvořákovho nábrežia. Pôsobí dosť negatívnym dojmom. Vo východnej časti predstavuje hmotovú dominantu budova Ministerstva priemyslu a obchodu navrhnutá v duchu Tradicionalizmu. V súčasnej dobe rieši architekt Zdeněk Fránek (dekan Fakulty umění a architekt univerzity v Liberci) stavbu bytového domu na južnej časti sektoru (parkovisko) pre talianskeho architekta a investora. Projekt je na úrovni územného rozhodnutia. Pozemok je delený do troch sekcií (A, B, C). Sektor A je najväčší a je ohraničený z južnej strany ulicou U Milosrdných, zo západu ulicou Kozí, zo severu Dvořákovým nábrežím a z východu kláštornou hradbou, ktorá vymedzuje plochou kláštorné záhrady. Jedná sa takmer o obdĺžnikovú plochu, len na severnej časti je svah na úrovni nivelety Dvořákovho nábrežia. V južnom sektore je parkovisko, v strednom športový areál ohradený stenou a v severnej časti vysoká zeleň medzi ulicami Na Františku a Dvořákovým nábrežím. Sektor B je ohraničený z juhu kláštornou hradbou, zo severu Dvořákovým, zo západu hranicou sektoru A, z východu hranicou sektoru C. Jedná sa o protilahly lichobežníkový pozemok svahovitý z úrovne nivelety Dvořákovho nábrežia na nižšiu úroveň ulice na Františku. V celej ploche tu je existujúca vysoká zeleň. V kláštornej bráne je vstupná brána do priestorov záhrad. Na ploche sektoru B nie je významná sadovnícka úprava. Sektor C je umiestnený na východnej časti riešeného územia a je vymedzený z juhu komplexom kláštorných stavieb – kapitulnou sieňou (kaplnka Svätej Magdalény a kostol svätého Salvátora. Vymedzenie možno definovať ako líniu Malej Kláštornej ulice, z o západu komplexom kláštorných budov Konventu (obydlie klarisek), zo severu Dvořákovým nábrežím, z východu Kláštornou ulicou. Jedná sa o ohradenie, v súčasnosti dosť nepriaznivo vplývajúceho priestoru pri Anežskom kláštore. Prístup do tohto priestoru je možný bránou v severozápadnom rohu. Na časti sektoru C sú stromy a náletová zeleň. Zámer je umiestnený na území mestskej pamiatkovej rezervácie zaradeného na zoznam kultúrneho dedičstva UNESCO. V tomto prípade tu platia všetky regulačné podmienky daného územia plánom Hlavného mesta Prahy.

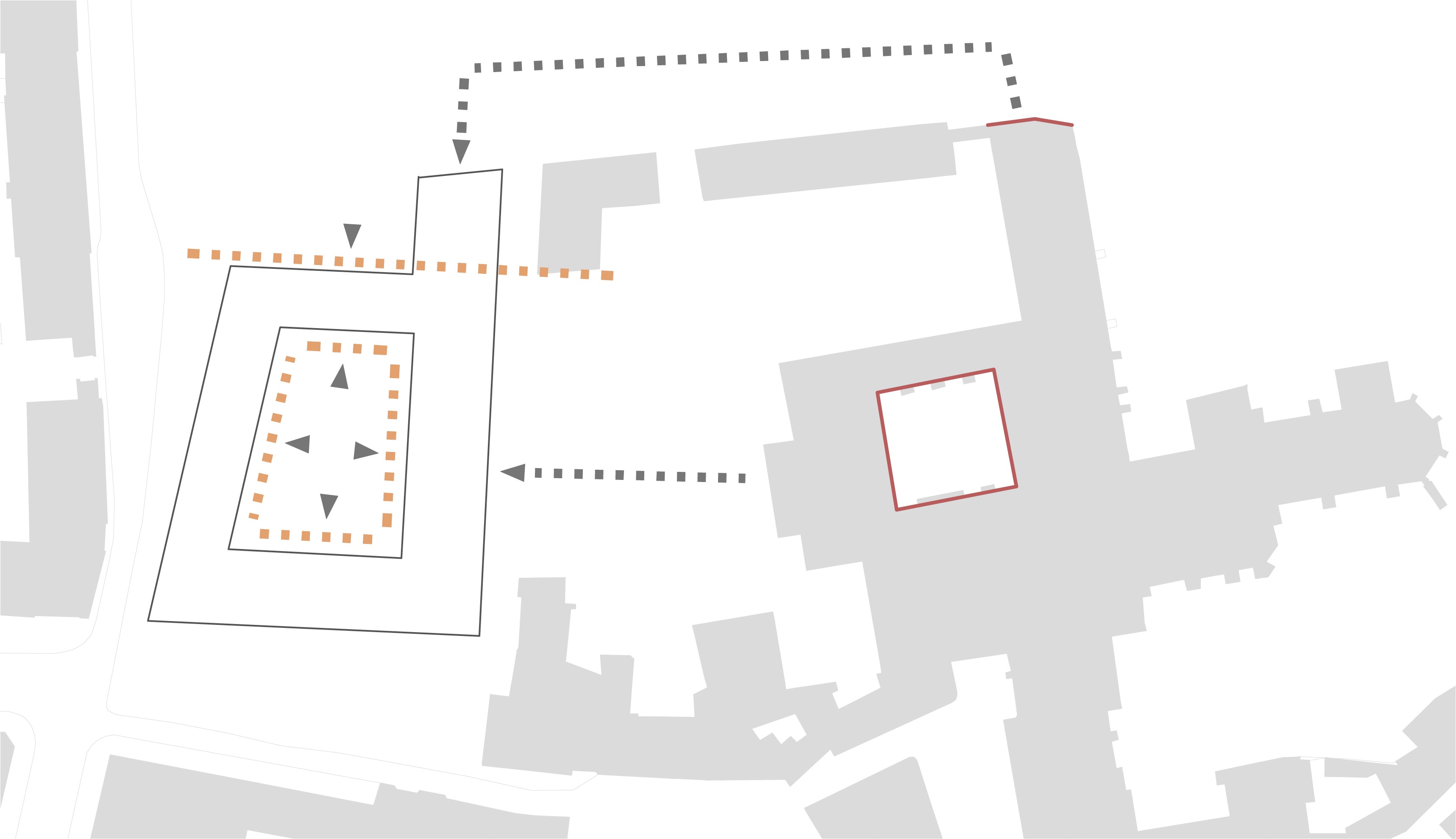
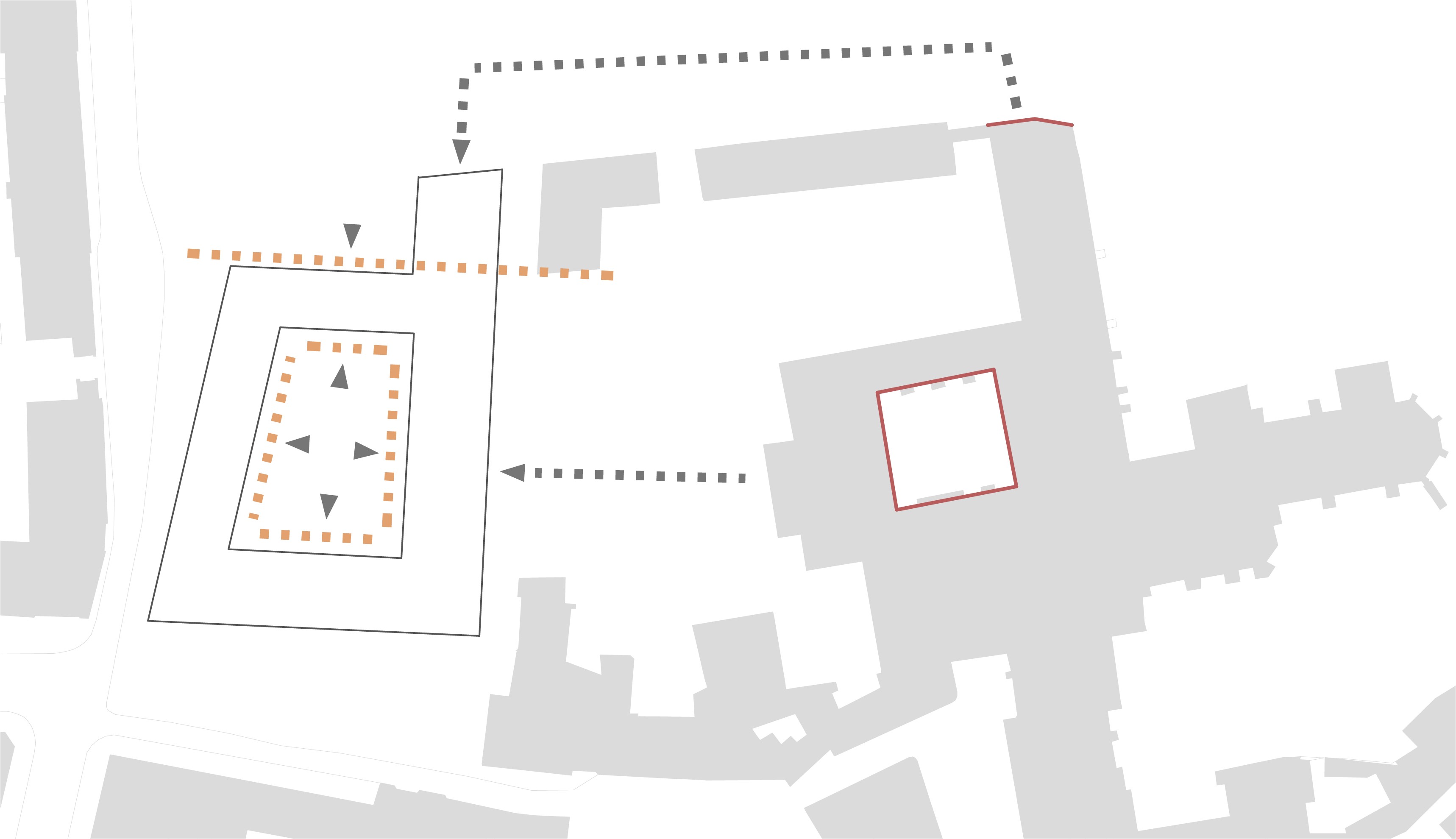
Situácia s pamiatkami a pešími trasami, situácia s riešenými sektormi
Situácia s pamiatkami a pešími trasami, situácia s riešenými sektormi

Filozofia

„Púť“ je cesta, ktorá začína v jednom bode a končí v druhom. „Život“ v prírode, ale aj u človeka je určitým kolobehom, kde keď niečo končí iné začína. Vzniká kruh života, ktorý začína a končí v tom istom bode -  znovuzrodenie - „púť životom“. Púť môže byť ovplyvnená viacerými faktormi (domov, spoločnosť, viera – duch ... ), ktoré nám určujú naše smerovanie. Napokon sa vždy vrátime do počiatočného bodu, ktorým je náš domov.

Filozofia aplikovaná do situácie
Filozofia aplikovaná do situácie

Umiestnenie na pozemku

A – Prvým limitom, ktorý určil základný pôdorysný tvar budúceho domu je súbor okolitej zástavby. Tá nám vďaka pomyselným stavebným čiaram predurčuje polohu budúcich priečelí objektu.

B – Priechody v historickej časti mesta sú tradičnou súčasťou urbánnych štruktúr. Väčšinou smerujú do vnútorných nádvorí ako je napríklad v riešenom území, alebo prechádza naprieč územím.

C- Nádvoria vytvárajú pocit intimity, oddeľujú svet verejný a súkromný. Tento aspekt si uvedomovali ľudia v minulosti tiež a súvis so súčasným využitím je logický. Priečelie objektu môže na seba upozorniť svojim vysunutím. Inšpirácia nájdená v susednom objekte riešeného areálu.

D- Umiestniť dominantu v území musí mať patričné opodstatnenie. V riešenom území je navrhovaná v podobe vyhliadkovej na mieste kde je na ňu upozorňované vďaka priechodom cez budovu a je umiestnená tak, aby výhľady z nej putovali k Anežskému kláštoru.

A - Rešpektovanie okolitej zástavby
A - Rešpektovanie okolitej zástavby
B - Inšpirácia v priechodoch
B - Inšpirácia v priechodoch
C - Inšpirácia v nádvoriach a v priečelí
C - Inšpirácia v nádvoriach a v priečelí
D - Umiestnenie vyhliadkovej veže
D - Umiestnenie vyhliadkovej veže

Vyhliadkova veža - dominanta

Pri návrhu nových dominant v území je potrebné dbať na viacero faktorov ako jej umiestnenie, výška, proporcia, materiál, konštrukcia, no najmä jej orientácia. Pokiaľ ide o vyhliadkovú vežu, treba mať na zreteli najmä výhľady. Ten je v danom prípade ovplyvnený najmä existujúcou dominantou v území Anežským kláštorom. Ďalším veľmi dôležitým faktorom je jej umiestnenie do panorámy, tak aby nenarúšala existujúce dominanty v pozadí. Jej vytýčenie by malo byť na mieste kde zapadne do kontextu a rytmu vežičiek v pozadí historickej zástavby.

Analýza siluet vežičiek v panoráme
Analýza siluet vežičiek v panoráme
Doplnenie novej dominanty
Doplnenie novej dominanty
Filozofia vyhliadky
Filozofia vyhliadky
Konštrukcia veže, Opláštenie veže
Konštrukcia veže, Opláštenie veže

Vývoj hmoty

V danom prípade môžeme vidieť vývoj hmoty, ktorý je takmer v úplnom kontexte s okolím. Je tvorený analogickým prístupom a vzťahuje sa na okolie pôdorysným ale i priestorovým tvarom a rozsahom.

1 - Nárast hmoty z pôdorysného tvaru
1 - Nárast hmoty z pôdorysného tvaru
2 - Hmota limitovaná výškou susedného múru
2 - Hmota limitovaná výškou susedného múru
3 - Vybratie hmoty vytvorením nádvoria
3 - Vybratie hmoty vytvorením nádvoria
4 - Zdvihnutie častí hmôt po úroveň existujúcich ríms
4 - Zdvihnutie častí hmôt po úroveň existujúcich ríms
5 - Vloženie dominanty a vytvorenie priechodov k nej
5 - Vloženie dominanty a vytvorenie priechodov k nej
6 - Vklad novej ochodze nádvoria
6 - Vklad novej ochodze nádvoria
Inšpirácia v tradičnom nádvorí
Inšpirácia v tradičnom nádvorí
7 - Finálny priestorový model
7 - Finálny priestorový model

Filozofia okien

Transparentné konštrukcie sú koncipované v minimalistickom štýle. Odzrkadlujú pokoru, jednoduchosť ako aj samotnú funkciu riešeného domu. V ubytovacom priestore sú navrhované okenné konštrukcie vo väčšom rozmerom, ktoré pomyselne prechádzajú z jednej fasády naprieč interiérom na fasádu pavlače ako otvory. V edukačnej časti areálu sú tieto otvory zmenšené o polovičnú mierku, čím sa zabezpečí tlmené preslnenie v daných priestoroch. V ekumenickej modltitebne sa tento raster okien nachádza v plochej streche v podobe svetlíkov. Dôvodom je "božský princíp". Dominantým oknom v tejto miestnosti je okno situované na východ. Je akýmsi spojovateľom viacerých náboženstiev vyznávacjúcich túto orientáciu. Jeho vyabstrahovaný tvar tvie v gotickom okne.

Filozofia okien
Filozofia okien

Stručný opis stavby z hľadiska účelu a funkcie

                          

počet parkovacích miest v objekte:         0

počet parkovacích miest na teréne:        17

počet buniek v ubytovni:                      28 + terasa na prespatie

kapacita pre ubytovaných:                   100 lôžok + 50 na terase a v krytých spoločných priestoroch

kapacita reštaurácie:                            62 + 45 terasa

kapacita bibliotéky:                              20

kapacita učební:                                  40

kapacita modlitebne:                            96 sedení

 

Objekt bude primárne využívaný návštevníkmi objektu, ktorými budú najmä pútnici ale aj široká verejnosť s potrebou kultúrneho vzdelávania a duchovnej obnovy. Táto stavba bude užívateľom ponúkať viacero aktivít spojené s meditáciou, vzdelávaním, odpočinkom. V objekte sa budú nachádzať učebne, bibliotéka s čitárňou, multifunkčný priestor v podobe galérie, menšie javisko so živou hudbou, jedáleň, ekumenická modlitebňa a ubytovanie. Ďalej sa v objekte bude nachádzať personál s vlastnou administratívou a zázemím, priestory pre duchovných a zázemie pre kuchyňu. V rámci objektu je navrhnuté uzatvorené nádvorie, kde bude prebiehať  stretávanie, rozprava a odpočinok s možnosť výstupu na vyhliadku, alebo terasu, ktorá bude slúžiť pre výuku v exteriéry. V projektu bolo vo verejnom priestore navrhunté čiastočné prestrešenie, ktoré bude mať spolu s exteriérovými plochami charakter mestského parku s možnosťou odpočinku, športu a usporiadania spoločenských a kultúrnych akcií menšieho rozsahu. Úpravu zelene budú v okolí budovy tvoriť trávnaté porasty a existujúce stromy, ktoré budú zachované. V rámci nádvoria je navrhnutá šotolína s príležitostnou zeleňou v podobe stromu, ktorá bude pochôdzna. 

Situácia
Situácia

Dispozícia

Pútnický dom je prednostne navrhnutý pre potreby pútnikov so zameraním na kultúrnu osvetu a duchovnú obnovu. V dome boli navrhnuté funkčné celky ako ubytovanie, vzdelávanie, kultúra, duchovenstvo, administratíva, ktoré sú prepojené s vnútorným nádvorím. Na 1. podlaží sa z južnej strany nachádza vchod pre personál a na západnej strane vchod pre administratívu, THZ a pútnikov, ktorý sa môžu po pravej strane dostať k ubytovaniu, po ľavej strane ku kultúrnej časti (knižnica, učebne) a duchovnej časti (modlitebňa, galéria).  Ubytovňa je riešená v 4. podlažiach. Na prízemí sú navrhnuté izby pre imobilných a jedáleň s kuchyňou (terasa, vystúpenia, prezentácie). Na ostatných podlažiach sa nachádzajú jednoduché izby 4 – 8 lôžkové. Na 2. podlaží je terasa, ktorá budú slúžiť na exteriérové prespávanie. Exteriérová výučba, na druhej terase, je dostupná z čitárne a z učebne. Kapacita ubytovne je 100 lôžok + 50 na terase a v krytých priestoroch. Modlitebňa je situovaná na severnej strane a je ukončením celého komplexu s kapacitou 96 sedení. Je navrhnutá bez orientácie na vierovyznanie.

 

1. nadzemné podlažie
1. nadzemné podlažie
2. nadzemné podlažie
2. nadzemné podlažie
3. nadzemné podlažie
3. nadzemné podlažie
4. nadzemné podlažie
4. nadzemné podlažie

Hlavný vstup do objektu je situovaný na západnej strane v blízkej nadväznosti na hlavnú cestu a hromadnú dopravu. Po vstupe do objektu sa dostaneme do vestibulu s recepciou a s odkladom bicyklov. Do vestibulu má priamy prístup údržbár z vlastnej miestnosti. Po prechode vestibulom sa dostávame do exteriéru, presnejšie do nádvoria, ktoré po obvode lemuje koridor. Vďaka koridoru sa po ľavej strane dostaneme do kultúrno – vzdelávacej sekcie, ktorá disponuje s priestormi ako učebne, bibliotéka a vlastné hygienické zariadenie. Z učební na 2. poschodí je možné dostať sa na terasu, kde bude prebiehať exteriérová výučba. Učebne sú situované fasádou na juh a sever a bibliotéka iba na sever, z dôvodu nižšieho preslnenia. Po pravej strane sa od vestibulu dostaneme k ubytovaciemu zariadeniu, ktoré bude slúžiť pre pútnikov a návštevníkov. Ubytovanie pozostáva z buniek, ktoré sú na prízemí určené pre osoby neschopné pohybu a na ďalších podlažiach sú určené pre bežných užívateľov. Ubytovacia bunka sa skladá z obytnej izby, kúpelňe s WC, zo zádveria a z loggie, ktorá spája náprotivné bunky. Na každom podlaží okrem prvého sa nachádzajú aj technické priestory, sklady špinavej a čistej bielizne. Poschodia pri ubytovacích bunkách disponujú vlastnou kuchynkou. Na 1. nadzemnom podlaží sa nachádza kuchyňa a jedáleň s terasou. Variabilne môže byť jedáleň rozšírená o miestnosť v ktorej sa budú konať prezentácie. Z jedálne je priamy východ do nádvoria. Východ sa nachádza na severnej strane a jedáleň na južnej. Z jedálne bude možnosť pohybu návštevníkov aj cez interiér smerom k ekumenickej modlitebni. Popri hygienickom zariadení sa návštevník z jedálne dostáva do galérie. Pred vstupom do modlitebni sa nachádza vestibul, v ktorom budú prebiehať spovede. Samotná modlitebňa má dva východy presklenie je situované na východe a na streche . Z modlitebne je možné dostať sa priamo ku širokej verejnosť , alebo naspäť do uzatvoreného nádvoria. Modlitebňa má hlavné okno situované na východ z liturgického a symbolického hľadiska. Zaujímavosťou pri ubytovacej časti je plochá strecha ktorá bude v noci slúžiť ako nocľah pod otvoreným nebom. Z dôvodu možného nepriaznivého počasia sú navrhnuté 3 priestory s väčšími kapacitami. V tomto prípade sú hygienické zariadenia spoločné.

Vnútorné nádvorie

V okolí, ale aj v celom starom meste Prahy sa vo vnútri komplexov nachádzajú nádvoria, ktoré oddeľujú súkromný a verejný život ľudí. Aj z toho dôvodu je v areáli navrhnuté nádvorie, ktoré bude slúžiť iba pútnikom, na stretávanie, meditáciu a rôzne vystúpenia (pri jedálni). Nádvorie vytvára vlastný vnútorný svet, ktorého materiálová charakteristika je odlišná od fasády z exteriéru, no členitosť sa nemení (okná, otvory).

Charakter nádvorí v susedstve
Charakter nádvorí v susedstve
Vnútorné nádvorie
Vnútorné nádvorie
Vnútorná ochodza nádvoria
Vnútorná ochodza nádvoria

Verejné prestrešenie

Prestrešenie bude slúžiť pre širokú verejnosť ale aj pre pútnikov, ako miesto stretávania. Pod prestrešením sa budú konať prezentácie, výstavy, diskusie a pod vyvýšenou časťou hudobné vystúpenia. Toto prevýšenie je navrhnuté aj z dôvodu optického znižovanie od bytového domu. Konštrukcia strechy kopíruje čiastočné prestrešenie pútnického domu a zároveň nasleduje opačný terén, ktorý je navrhnutý z dôvodu odhlučnenia priestoru. V teréne je zachovaná existujúca zeleň. Materialita prestrešenia je podobného rázu ako materiál použitý v pútnickom dome na terasách. Vďaka tomu sa upriamuje pozornosť na súvis medzi týmito zdanlivo separátnymi funkciami.

Optické znižovanie bytového domu, práca s terénom
Optické znižovanie bytového domu, práca s terénom
Verejné prestrešenie
Verejné prestrešenie
Priečny rezopohľad A-A´
Priečny rezopohľad A-A´
Priečne rezopohľady B-B´, C-C´
Priečne rezopohľady B-B´, C-C´
Pozdĺžny rez D-D´
Pozdĺžny rez D-D´
Pozdĺžny rez E-E´
Pozdĺžny rez E-E´
Pohľad - JUH
Pohľad - JUH
Pohľad - SEVER
Pohľad - SEVER
Pohľad - VÝCHOD
Pohľad - VÝCHOD
Pohľad - ZÁPAD
Pohľad - ZÁPAD

Nízkoenergetické riešenie

Predmetný projekt je navrhnutý v nízkoenergetickom štandarde s mernou potrebou energie na vykurovanie pod 40 kWh/m2.rok. Budova je posúdená na odporúčanú hodnotu.

Detail charakteristickej okennej konštrukcie so strechou
Detail charakteristickej okennej konštrukcie so strechou
Priestor galérie
Priestor galérie
Ekumenická modlitebňa
Ekumenická modlitebňa
Vizualizácia
Vizualizácia
Vizualizácia
Vizualizácia

Ateliér

Poloha diela

Ing. Roman Ruhig
Vložené
19. december 2016
0
467
Hlavný obsahHlavný obsah
Čakajte prosím