Okenné profily z kompozitného materiálu RAU-FIPRO X od spoločnosti Rehau sú v porovnaní s tradičnými plastovými profilmi mnohonásobne...
Najnovší sortiment stolov pre zariadenie interiérov...
Spojenie moderného dizajnu, funkčnosti a svetla do harmonického architektonického prvku.
Kancelárska budova Baumit v slovinskom Trzine prešla premenou na moderné a udržateľné pracovisko. Architekti kládli dôraz...
Mottom šiesteho ročníku on-line konferencie odborníkov Xella Dialóg je Efektívny návrh budov 2025+: zmeny a riešenia
Robot WLTR predstavuje moderný prístup k murovaným konštrukciám. Vďaka automatizácii dokáže rýchlo, presne a bezpečne realizovať...
Okrem bezpečnosti majú okná aj elegantný vzhľad, pretože nie sú viditeľné žiadne uzamykacie časti kovania.
Dvere MASTER v skrytej zárubni AKTIVE je možné vyrobiť až do výšky 3 700 mm
Internorm stavia na energetickú efektívnosť a inteligentné tieniace riešenia.
Pohľad na moderné prístupy k výrobe s dôrazom na udržateľnosť.
Slovensko vo výbere zastupuje šesť realizácií.
Spoločnosť Internorm odteraz stavia na novej variante tepelnoizolačného skla od AGC, ktorá v produkcii ročne ušetrí 10...
Jubilejný 20. ročník prestížnej medzinárodnej súťaže pre študentov architektúry priniesol...
Otočné a posuvné dvere MASTER od podlahy až po strop, ponúkajú mimoriadnu variabilitu výšky, materiálu a zladenia so skrytými...
Predstavené produkty, spájajú premyslený dizajn, funkčnosť a udržateľnosť. Nábytok Materia vzniká s cieľom podporiť inšpiratívne stretnutia...

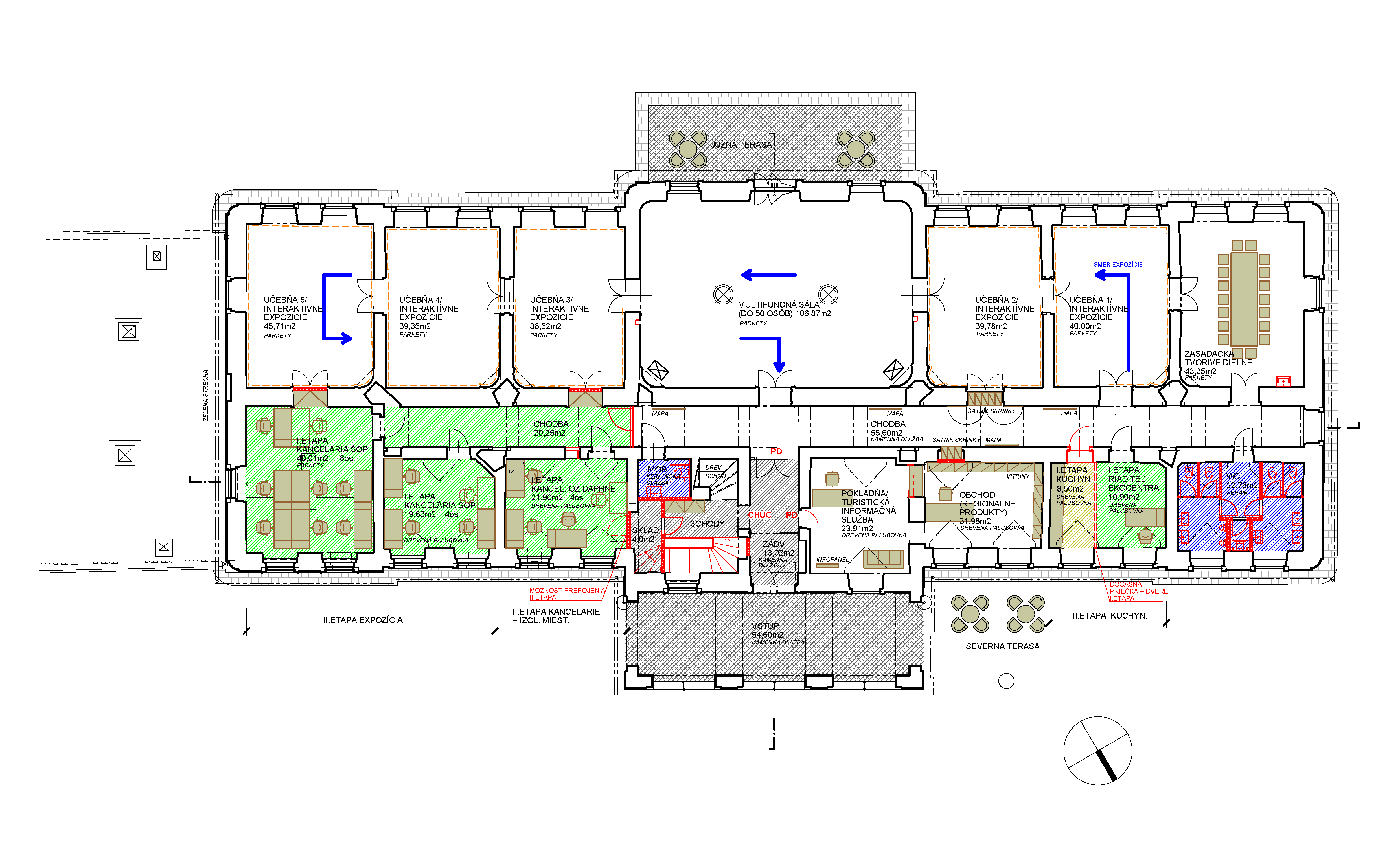
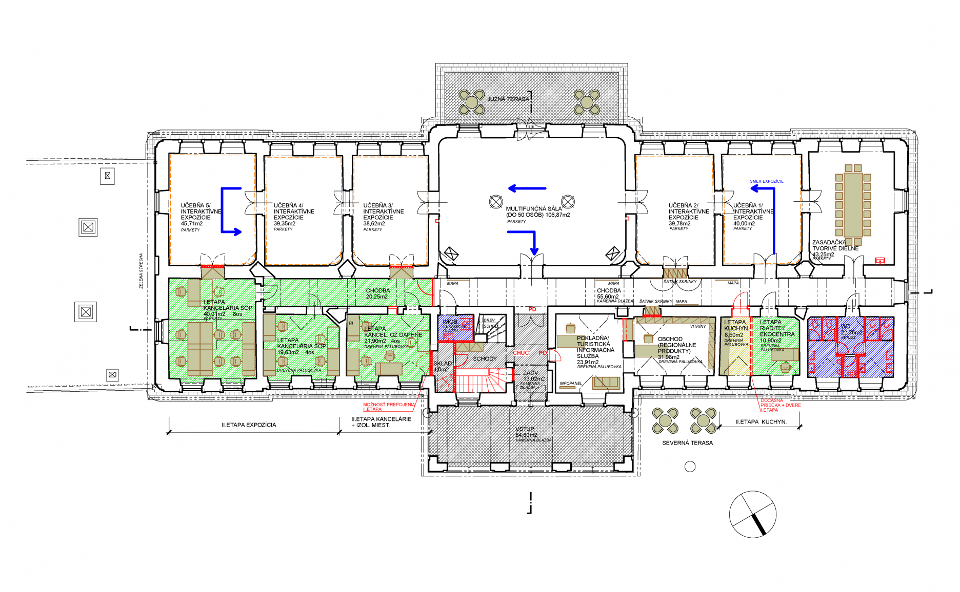
Počas dvoch rokov intenzívnych stavebných prác prešiel chátrajúci objekt rekonštrukciou doslova od pivnice až po strechu. Náročný proces okrem iného v interiéri odhalil prvky pôvodných barokovo-klasicistických nástenných malieb. Projekt záhrady Čunovského kaštieľa prináša do objektu novú funkčnú náplň, ktorú tvorí enviromentálno-vzdelávacie centrum, slúžiace odborníkm, školám, ako aj širokej verejnosti všetkých vekových kategórií. Expozícia je zameraná na rôzne oblasti prírodného dedičstva regiónu - ako sú Delta Dunaja či Lužné lesy. Dôležitú súčasť projektu tvorí záhrada s viacerými interaktívnymi a vzdelávacími prvkami, alebo záchrannou stanicou pre zranené živočíchy...
Realizáciu bližšie predstaví sprievodné slovo autorov z Ateliéru architektúry VAN JARINA:
Na hraniciach mesta zostala zabudnutá ale zachovalá stredoveká sýpka a nedokončená rekonštrukcia chátrajúceho kaštieľa s náznakmi pôvodnej barokovej a klasicistickej výzdoby.
Nový projekt komplexnej obnovy a reštaurovania náš ateliér začal pripravovať v roku 2018. Oslovili sme pre spoluprácu statika - p. Kohuta, ktorý sa tomuto projektu venoval od 80. rokov. Projekt znovu prešiel “mlynčekom“ schvaľovania. Požiadavky niektorých orgánov sa pritom vzájomne vylučovali. V šibeničnom termíne šiestich mesiacov sa nám podarilo vypracovať dokumentáciu a získať všetky potrebné povolenia. Verejné obstarávanie na dodávateľa rekonštrukcie stavby sa uskutočnilo až v roku 2021, s kritériom najnižšej ceny. Rekonštrukcia stavby sa začala v termínovom a finančnom tlaku na všetky zúčastnené strany.
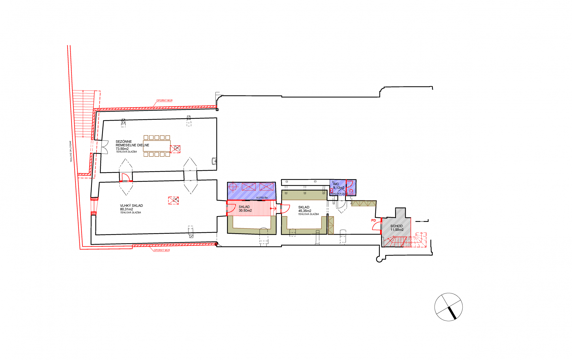
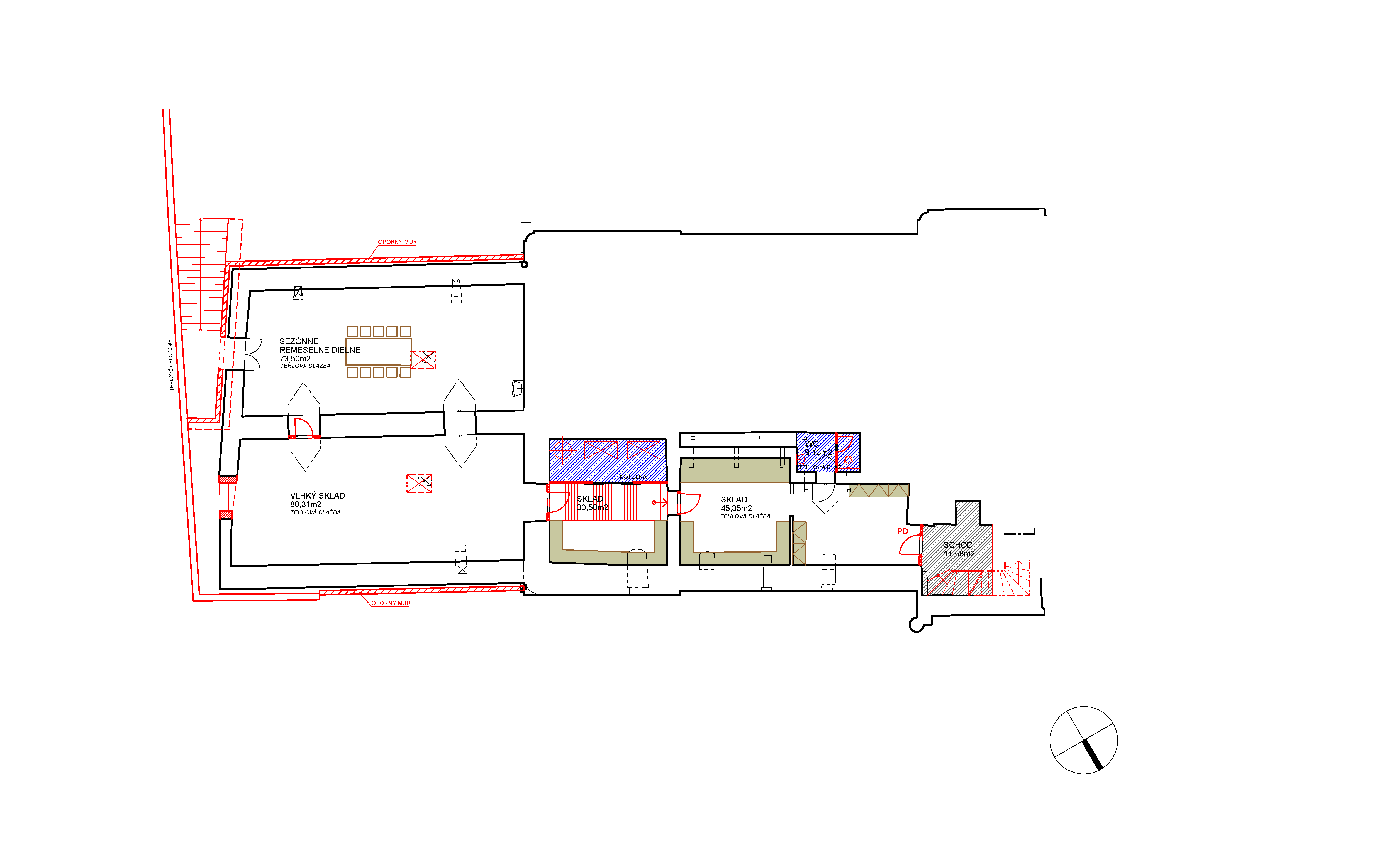
Predmetom komplexnej pamiatkovej obnovy a reštaurovania v rokoch 2021 až 2023 boli všetky stavebné, umelecko-remeselné a výtvarné prvky pamiatky. Zároveň bolo na nové využitie adaptované podkrovie a revitalizáciou prešla aj kaštieľska záhrada. Pribudlo oplotenie areálu, parkovisko a informačné panely, prístrešok pre edukačne účely. Po obnove pamiatka slúži ako moderné regionálne ekocentrum. Neplánovaným benefitom obnovy je nález zvyškov barokovo-klasicistických nástenných malieb zo začiatku 19. storočia. Budova Sýpky stále čaká na rekonštrukciu.
Príbeh kaštieľa
Neskorobarokový kaštieľ dal v Čunove medzi rokmi 1757 až 1781 postaviť Peter Szapáry. Nešlo o rodinnú rezidenciu, ale o menšiu vidiecku stavbu, ktorú Szapáryovci využívali najmä počas letných pobytov na panstve. Jednoposchodový objekt kaštieľa je čiastočne podpivničený a zastrešený valbovou strechou. Obdĺžnikový pôdorys má trojtraktovú dispozíciu so stredovou chodbou a dvomi vstupmi. Vedľajší zadný vstup na juhozápade viedol do priľahlého parku. Dominantným architektonickým prvkom kaštieľa je klasicistický portikus hlavného vstupu s trojuholníkovou atikou na severovýchodnej fasáde.
Fasády sú hladké, akcentované len kamennými šambránami okien a korunnou rímsou. V interiéri sa zachovali valené a pruské klenby, časť priestorov je plochostropá. Ústredný priestor tvorí veľká sála. Zvláštnosťou sú suterénne priestory, ktoré sú síce dostupné z interiéru, ale ležia mimo pôdorysu kaštieľa. Zaujímavá je maliarska výtvarná výzdoba interiéru s motívmi kvetov, klasov a poľnohospodárskeho náradia. Medzi pozoruhodné prvky patrí na stenách namaľovaná imitácia tapiet a rámovaných obrazov.
Szapáryovci odpredali čunovský veľkostatok aj s kaštieľom v r. 1905 grófovi Elemérovi Lonayovi a jeho manželke, belgickej princeznej Štefánii. Mimochodom, bola to vdova po nepodarenom následníkovi habsburského trónu, Rudolfovi. Po prvej svetovej vojne až do r. 1947 bolo Čunovo súčasťou Maďarska. Po znárodnení slúžil kaštieľ nejakú dobu na rôzne hospodárske účely a posledné desaťročia už len chátral bez využitia.
Ekocentrum v zrekonštruovanom kaštieli bolo ako tretia realizácia na Slovensku ocenené certifikátom Prezidentská zelená pečať. Hodnotiaci systém Certifikátu za udržateľnosť pre verejné budovy vypracovala expertná skupina zložená z odborníkov z SKGBC, Slovenskej komory architektov, Inštitútu cirkulárnej ekonomiky, Budov pre budúcnosť a Manifestu 2020.
Podklady: Ateliér architektúry VAN JARINA
Fotografie: Archív autorov + BSK