Advertorial

Pozvánka na 2. ročník stavebného veľtrhu BigMarket na Slovensku

Na podujatí sa predstaví až 37 vystavovateľov - popredných dodávateľov stavebných materiálov a inovácií s prezentáciou...

Hotel Hirschen Spa House, Rakúsko

Novotvar v prostredí alpskej obce.

Vytvorte si kúpeľňu snov: dizajnové riešenie od značky hansgrohe

Hansgrohe - prémiová značka kúpeľňových riešení, ponúka nadčasový dizajn, technickú precíznosť a udržateľné inovácie...

Okná Internorm za minuloročné ceny + hliníkový kryt zdarma!

Využite špeciálnu akciu Internorm: okná za minuloročné ceny a hliníkový kryt úplne zadarmo. Ponuka je časovo obmedzená!

Moderné plynové technológie: Efektivita a inovácie pre 21. storočie

Sumarizácia najdôležitejších inovácií, ktoré redefinujúcich využitie tohto energetického zdroja.

Utesňovanie spodných stavieb pomocou hydro-aktívnej fólie AMPHIBIA.

AMPHIBIA 3000 GRIP 1.3 od spoločnosti ATRO predstavuje modernú hydroizolačnú technológiu, ktorá spája vysokú odolnosť,...

Dekarbonizácia individuálneho vykurovania domácností – Green Deal evolučne a nie revolučne

Ambiciózne plány EK narazili na ekonomické možnosti domácností v jednotlivých členských štátoch –...

Minimalistické dvere IDEA – technická precíznosť a čistota prevedenia

IDEA DOOR od spoločnosti JAP prináša do interiéru čistý minimalistický vzhľad vďaka bezrámovému riešeniu a precíznej...

Dom s výhľadom na údolie, Dlouhý Most (ČR)

Kontinuita riešenia od vonkajšieho obkladu až po kovania a kľučky.

Schell Vitus – osvedčené riešenie pre sprchy a umývadlá vo verejnom sektore s viac ako desaťročnou tradíciou

Nástenné nadomietkové armatúry Vitus sú mimoriadne vhodné pre rýchlu a efektívnu...

Kompozitné okná predstavujú súčasnosť a budúcnosť

Okenné profily z kompozitného materiálu RAU-FIPRO X od spoločnosti Rehau sú v porovnaní s tradičnými plastovými profilmi mnohonásobne...

Myotis - stoly 2025

Najnovší sortiment stolov pre zariadenie interiérov...

Priemyselné sklenené priečky Dorsis Digero: svetelné rozhranie pre moderné interiéry

Spojenie moderného dizajnu, funkčnosti a svetla do harmonického architektonického prvku.

Význam prirodzeného svetla pre moderné a flexibilné pracovné prostredie

Kancelárska budova Baumit v slovinskom Trzine prešla premenou na moderné a udržateľné pracovisko. Architekti kládli dôraz...

Konferencia Xella Dialóg predstaví novinky a trendy v stavebníctve

Mottom šiesteho ročníku on-line konferencie odborníkov Xella Dialóg je Efektívny návrh budov 2025+: zmeny a riešenia

Revitalizácia a obnova objektu Snežienka (súťažný návrh)

„Naturálny potenciál a okolie v dotyku s objektom Snežienky je fascinujúcou ukážkou neodmysliteľnej prírodnej kulisy, ktorá toto územie priamo charakterizuje. Objekt lanovky a bývalej reštaurácie sa stal jeho neoddeliteľnou súčasťou, pre mnohých zároveň však aj bolestivou jazvou, ako pozostatkom z 80-tych rokov jej niekdajšej slávy. Napriek zúfalému stavu budovy reštaurácie sme však plne presvedčení, že tento súbor objektov je s prostredím stále „živo zrastený“, čo sa jasne a čitateľne podpisuje pod naším návrhom.“
Podstatným rozdielom medzi našim návrhom a tými ocenenými je teda heslo: udržateľné nie je búrať a znovu postaviť, ale snažiť sa zachrániť a modernizovať.
Diela
Ema Ruhigová (Kiabová)06.02.2020
4770+5
Revitalizácia a obnova objektu Snežienka (súťažný návrh)
Ateliér: ER AtelierAutori: Ing. arch. Ing. Ema Ruhigová (Kiabová), Ing. arch. Ing. Roman Ruhig, Nora Naddourová, Filip BránickýNávrh: 2020 - 2020Adresa: SlovenskoPublikované: 6. február 2020

Budova sa nachádza v blízkej dostupnosti zastávky MHD a zároveň priamo na turistickej trase, čo zabezpečuje neprestajný prísun návštevníkov aj v prípade vylúčenia súkromnej automobilovej dopravy využívajúcej existujúcu komunikáciu. Týmto vylúčením sa lokalita stáva bezpečnejšia pre voľný pohyb peších. Vylúčenie rovnako napomáha regulovať ohrozenie kvality ovzdušia nadmernými exhalátmi, ktorá má zodpovedať lokalite CHKO Malé Karpaty, ako aj SKUEV Vydrica.

V blízkosti objektu sa nachádza viacero cyklochodníkov, na ktoré v mieste ich stretnutia návrh reaguje lokálnymi odpočinkovými priestormi, rovnako aj dostatočným množstvom novo-navrhovaných cyklistických stojísk. Z urbanisticko-kompozičného hľadiska je zásadný návrh pešieho chodníka smerujúceho z Drieňovskej lúky k objektu, ktorý vyvrchoľuje v priehľade medzi novým – vstavaným kubusom a budovou stanice lanovky. Riešenie kladie dôraz na bezbariérovosť, takže na toto miesto je možné dostať sa aj rampou pre invalidov. Rampa začína v bezprostrednej blízkosti parkovacieho miesta, ktoré je umiestnené na južnej strane fasády (približne pod trasou lanovky).

Od počiatku navrhovania bolo zrejmé, že kľúčovým pre zachovanie pôvodného objektu bude zhodnotenie možností jeho prípadného znovuuvedenia „do života“. Stav skeletu a výplňových múrov však nemožno považovať za vyhovujúci, ak by došlo len k bežným sanačným úpravám. Jeho komplexná sanácia by si však vyžiadala nadmernú investíciu a špeciálnu technológiu, čo z hľadiska racionálnej realizovateľnosti nepredstavuje ideálne riešenie. Práve preto navrhované riešenie predstavuje zapojenie torza reštaurácie do prevádzky len v obmedzenom rozsahu – stabilizáciou jestvujúcich prvkov je pôvodný skelet doplnený o samonosnú vstavanú konštrukciu, ktorá ho staticky NADMERNE nezaťaží a svojou jednoduchou formou mu povolí naďalej tvoriť „tvár“ Snežienky.

Potrebné sanačné opatrenia pôvodných konštrukcií:

- zvolené sanačné opatrenia majú zmeniť status ruiny na kontrolovanú ruinu. Zážitkovosť takéhoto prístupu podčiarkuje surovosť konštrukcií, ich pravdivosť a fotogenickosť.

- po realizácií nových murovaných alebo betónových častí odporúčame ich povrchovo upraviť „nahrubo“ aby korešpondovali s prvkami, ktoré ostanú v jestvujúcom stave

- vytvorenie dodatočných hydroizolácií a ochrany proti účinkom vzlínajúcej kapilárnej vlhkosti

- podľa prieskumu vlhkosti a salinity stavebných konštrukcií zvoliť správny spôsob vysušenia jednotlivých častí

- povrchovo narušené murivo sanovať odstránením omietky. V danom mieste narušené časti kusových stavív odstrániť spolu s maltou. Po vytmelení ložných škár aplikovať sanačnú jemnozrnnú cementovú maltu alebo novú vápenno cementovú omietku. Veľmi porušené kusové murivo nahradiť novým. Murované piliere a  časti nosných stien spevniť betónovaním alebo vystuženou omietkou. 

- diagnostikou určiť mieru sanácie jednotlivých betónových prvkov. Vodorovné železobetónové konštrukcie a nosníky sanovať striekaným alebo nanášaným betónom. Stropné dosky zosilniť nadbetónovaním vrstvy vystuženej zváranou sieťou

- chýbajúce časti domurovať resp. dobetónovať

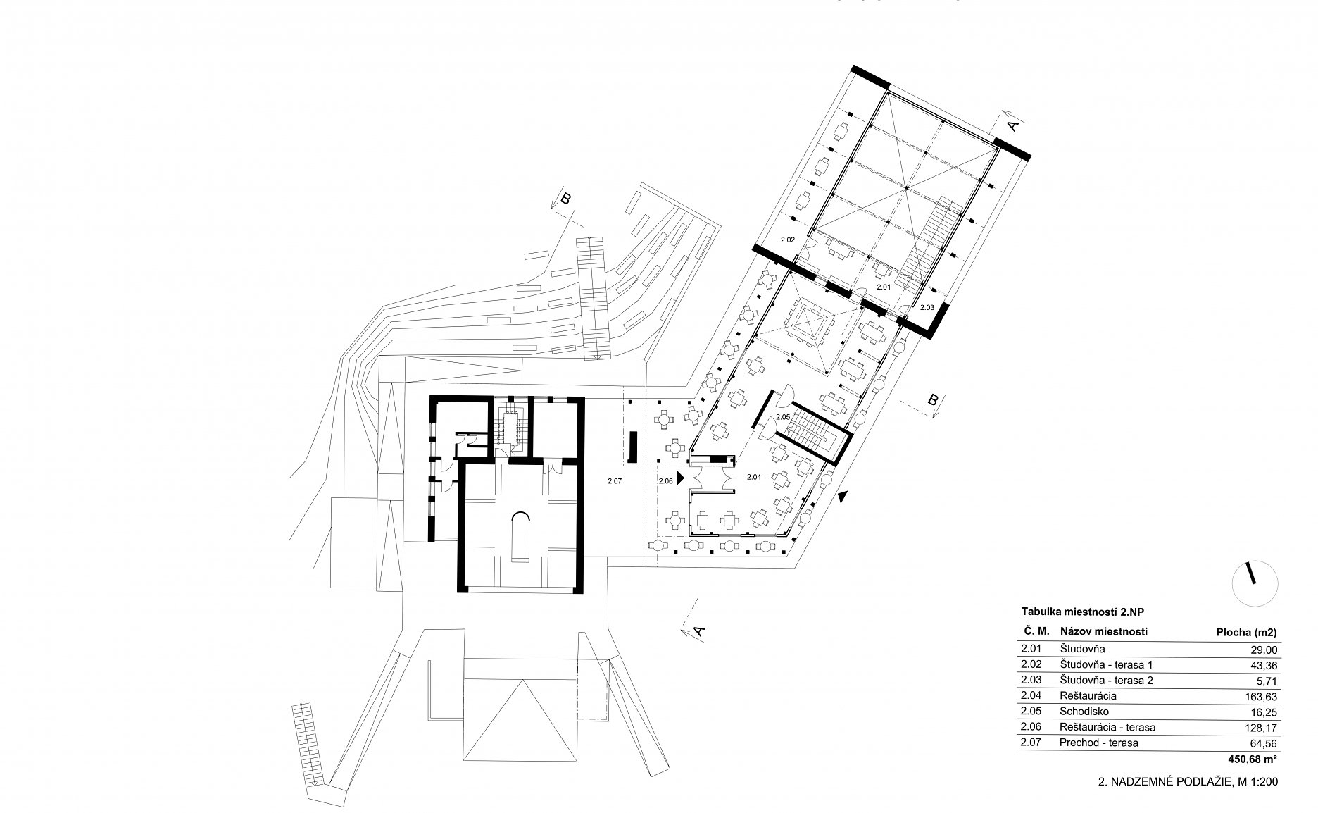
Nový vstavaný objekt do pôvodného skeletu „vstupuje“ cez otvorenú severnú fasádu, kde využíva takmer maximálny objem kubusu (jeho strešná konštrukcia je takmer v dotyku s existujúcou priehradovou konštrukciou nesúcou prestrešenie tejto časti). Tento vstavaný interiér nesie „reprezentačnú“ funkciu – zachováva galériu a pozostáva z infocentra a multifunkčnej sály pre výstavy, prípadné študovne či priestory pre kultivovanú a koordinovanú zábavu detí.

Spodné podlažie je v najlepšej kondícii, preto návrh uvažuje s jeho sanovaním , zachovaním a následným vybudovaním zázemia pre reštauráciu (kuchyňu, sociálne zariadenia prístupné pre stravníkov, ako aj toalety prístupné z exteriéru). V časti, ktorá je na vizuálne najdostupnejšom mieste, je umiestnený servis a požičovňa športových potrieb.

Do segmentu, ktorý v minulosti prepájal tento dominantný dvojpodlažný galerijný priestor s budovou údolnej stanice lanovky, vstupuje otvorom v úrovni druhého nadzemného podlažia. V týchto miestach - vzhľadom na potenciál kontaktu s prírodným okolím a atraktívnymi výhľadmi - je ponad Drieňovskú lúku navrhnuté reštauračné sedenie, ktoré takto kopíruje niekdajšiu polohu reštauračnej terasy so stolmi a sedením. 

Celý vstavaný objekt má jednotný charakter, ktorý je vytváraný polykarbonátovými stenami, ktoré majú dobré tepelno-technické parametre a zároveň zvyšujú solárne zisky v objekte. Presahy existujúcich vodorovných konštrukcií nad vstavbou prirodzenie tienia, vďaka čomu nevzniká skleníkový efekt a nadmerné prehrievanie interiéru. V tomto sa odvolávame na tradičnú slovenskú architektúru, ktorej doménou bola z hľadiska energetickej efektívnosti tvorba pavlačí. Tie cez leto chránia pred prehrievaním a v zime pomáhajú k vykurovaniu interiéru. Dôvodom je rozdielny azimut slnka v zimnom a v letnom období. 

Fasáda je doplnená o transparentné okenné a dverné konštrukcie, slúžiace na vetranie a získavanie priamych pasívnych solárnych ziskov. Objekt je navrhnutý ako nízkoenergetický s rekuperáciou. Bude výhľadovo napojený na navrhovanú kanalizáciu podľa UPN Bratislava, dovtedy riešený biologickým septikom pri budove. Odpad z kuchyne je plánovaný na malo frekventovanej strane objektu s priamym dopravným napojením na zásobovanie. Parkovacie miesta pre personál sa nachádzajú taktiež v tejto časti pozemku. Dažďová voda bude zachytávaná do dvoch vsakovacích šácht umiestnených na opačných koncoch v rámci pozemku, pri budove).

Najexponovanejší pohľad na objekt – severozápadný – od Drieňovskej lúky, jasne naznačuje jeden z ťažiskových zámerov návrhu, a to snahu o čiastočné optické eliminovanie rušivej fasády 1. nadzemného podlažia. Navŕšenie terénu k tejto fasáde (s jeho dostatočným odsadením, aby bolo zabezpečené dostatočné presvetlenie a prevetranie interiéru servisu a predajne športových potrieb) vytvára kulisovú „masu zelene“, ktorá opticky zmenšuje veľký objem objektu a zo severozápadnej strany ho čiastočne zakrýva. Táto terénna úprava zároveň vytvára komornejší prírodný amfiteáter, ktorý prináša veľa možností pre rozmanité kultúrne podujatia.  Pod amfiteátrom sú umiestnené stojiská pre bicykle, rovnako aj existujúca studňa, ktorá je naďalej prístupná. Stojiská pre bicykle sú umiestnená tak, aby boli na viditeľnom mieste priamo z terasy reštaurácie a zároveň môžu slúžiť pre odklad bicyklov pre servis.

Verejné priestranstvá poskytujú širokú škálu využitia na trávenie voľného času všetkých vekových kategórií. Pre podporu edukačného charakteru a ozvláštnenie exponovaných plôch bol navrhnutý systém tzv. pavilónov, ktoré sú doplnené o „zážitkový chodník“, detskú cyklo „U-rampu“ a nové „mikro-zhluky“ krovín s drobnými plodmi (šípky, baza, maliny..). Tieto úpravy roztrúsené po lokalite podporujú cirkuláciu ľudí v prírode, ako aj ich aktívny odpočinok s možnosťou dozvedania sa nových informácií. S existujúcim detským ihriskom sa uvažuje na pôvodnom mieste v pôvodnom charaktere a v pôvodnej forme. Jeho napojenie je zabezpečené prepojením cez vodný tok novým mobiliárom slúžiaci pre deti.

Systém pavilónov je založený na jednoduchých exteriérových priestoroch, ktoré poskytujú rôzne formy stolovania/oddychovania s výhľadmi na zaujímavé lokality. Sú venované jednotlivým chráneným druhom lokálnej fauny a flóry tak, aby dokázali zaujať všetky vekové skupiny – v najnižších miestach (v zornom poli najmenších detí)  sú umiestnené zjednodušené ilustrácie, vo vyššej polohe (pre čerstvo školopovinné deti, ktoré vedia čítať) sú doplnené o pár zaujímavostí a základných informácií, zatiaľ čo tabuľky v najvyššej polohe obsahujú podrobnejší popis ich života a spôsobov ochrany.

Výsledný návrh v takomto znení demonštruje základné zásady udržateľnosti, podčiarkuje "Genius Loci" miesta, rozvíja možnosti voľnočasových aktivít všetkých vekových skupín rekreantov a celkovo prispieva k udržateľnému rozvoju tejto lokality.

Ateliér

Ing. arch. Ing. Ema Ruhigová (Kiabová)
Ing. arch. Ing. Roman Ruhig
Nora Naddourová
Filip Bránický
Vložené
6. február 2020
0
477
Hlavný obsahHlavný obsah
Čakajte prosím