Advertorial

Vytvorte si kúpeľňu snov: dizajnové riešenie od značky hansgrohe

Hansgrohe - prémiová značka kúpeľňových riešení, ponúka nadčasový dizajn, technickú precíznosť a udržateľné inovácie...

Okná Internorm za minuloročné ceny + hliníkový kryt zdarma!

Využite špeciálnu akciu Internorm: okná za minuloročné ceny a hliníkový kryt úplne zadarmo. Ponuka je časovo obmedzená!

Pozvánka na 2. ročník stavebného veľtrhu BigMarket na Slovensku

Na podujatí sa predstaví až 37 vystavovateľov - popredných dodávateľov stavebných materiálov a inovácií s prezentáciou...

Moderné plynové technológie: Efektivita a inovácie pre 21. storočie

Sumarizácia najdôležitejších inovácií, ktoré redefinujúcich využitie tohto energetického zdroja.

Utesňovanie spodných stavieb pomocou hydro-aktívnej fólie AMPHIBIA.

AMPHIBIA 3000 GRIP 1.3 od spoločnosti ATRO predstavuje modernú hydroizolačnú technológiu, ktorá spája vysokú odolnosť,...

Dekarbonizácia individuálneho vykurovania domácností – Green Deal evolučne a nie revolučne

Ambiciózne plány EK narazili na ekonomické možnosti domácností v jednotlivých členských štátoch –...

Minimalistické dvere IDEA – technická precíznosť a čistota prevedenia

IDEA DOOR od spoločnosti JAP prináša do interiéru čistý minimalistický vzhľad vďaka bezrámovému riešeniu a precíznej...

Dom s výhľadom na údolie, Dlouhý Most (ČR)

Kontinuita riešenia od vonkajšieho obkladu až po kovania a kľučky.

Schell Vitus – osvedčené riešenie pre sprchy a umývadlá vo verejnom sektore s viac ako desaťročnou tradíciou

Nástenné nadomietkové armatúry Vitus sú mimoriadne vhodné pre rýchlu a efektívnu...

Kompozitné okná predstavujú súčasnosť a budúcnosť

Okenné profily z kompozitného materiálu RAU-FIPRO X od spoločnosti Rehau sú v porovnaní s tradičnými plastovými profilmi mnohonásobne...

Myotis - stoly 2025

Najnovší sortiment stolov pre zariadenie interiérov...

Priemyselné sklenené priečky Dorsis Digero: svetelné rozhranie pre moderné interiéry

Spojenie moderného dizajnu, funkčnosti a svetla do harmonického architektonického prvku.

Význam prirodzeného svetla pre moderné a flexibilné pracovné prostredie

Kancelárska budova Baumit v slovinskom Trzine prešla premenou na moderné a udržateľné pracovisko. Architekti kládli dôraz...

Konferencia Xella Dialóg predstaví novinky a trendy v stavebníctve

Mottom šiesteho ročníku on-line konferencie odborníkov Xella Dialóg je Efektívny návrh budov 2025+: zmeny a riešenia

Murovací robot WLTR stavia svoj prvý dom na Slovensku

Robot WLTR predstavuje moderný prístup k murovaným konštrukciám. Vďaka automatizácii dokáže rýchlo, presne a bezpečne realizovať...

Využitie kontajnerových modulov na výstavbu objektu filharmmónie

Návrh viacúčelovej sály Juhočeskej filharmónie vychádza z podrobnej analýzy histórie mesta, ako aj širších vzťahov a histórie osídlenia. Poloha navrhovaného objektu sa nachádza v blízkosti centra mesta, čo predurčuje samotné riešenie posunúť hranice riešeného územia a zaujať názor k problematike pešej trasy prepájajúcej Mariánské námestí a historické centrum. Súčasťou zadania bolo vytvorenie domu z kontajnerových prvkov, čo výrazne ovplyvnilo celkový výraz návrhu.
Diela
Ema Ruhigová (Kiabová)21.12.2016
3990+5
Využitie kontajnerových modulov na výstavbu objektu filharmmónie
Ateliér: ER AtelierAutori: Ing. Ema KiabováSpolupráca: Ing. Roman Ruhig (Spoluautor)Návrh: 2016 - 2016Adresa: Mariánske námestí , České Budějovice, Česká republikaPublikované: 21. december 2016
http://www.modularch.cz/soutezni-projekt/rbf5qt

Priestor Mariánskeho námestia vznikol na mieste niekdejšieho predpolia Pražskej brány, ktorá bola súčasťou pevnostného systému mesta. Urbanisticky nedoriešený verejný priestor neplní funkciu námestia a nemá ani jeho charakter. Do dnešnej podoby bolo Mariánske námestie rozšírené demoláciami v 50-tych rokoch, ktoré boli prípravnou fázou neuskutečnenej výstavby juhočeského divadla. Historicky prechádzala Pražskou bránou a priečne historickým jadrem mesta obchodná a poštovná cesta medzi Lincom a Prahou. Pred bránou bola križovatka s odbočkou na Plzeň a dopravný uzol tu pretrváva dodnes. Pri oboch týchto hlavných mestských komunikácií bola v druhej polovice 20. storočia, rôznymi urbanistickými nástrojmi a s rôznym stupňom úspešnosti, zahájená prestavba na velkomestské hlavné ťahy..Námestie by malo získať novú energiu naviazaním na kulturnu funkciu navrhnutej budovy. 

Lokalizácia riešeného územia
Lokalizácia riešeného územia

Severne od Mariánskeho námestia sa nachádza historické centrum Českých Budejovíc a smerom na juh sa mesto po roku 1900 výrazne rozrastalo (podľa urbanistického návrhu J. Pfeffermanna). Na sever of riešeného územia sa teda nachádza množstvo historicky i funkčne významných stavieb, čo definuje potrebu podporenia pešieho ťahu, ktorý v súčasnosti je (a nadalej by mal) prechádzať Mariánským námestím. Ide o významnú pešiu trasu, ktorá je preťatá frekventovanou Pražskou třídou.

Poloha historického centra k Mariánskemu námestiu. Na schéme možno vidieť objekty, ktoré sú atraktívne svojou funkciou či historickou podstatou a nachádzajú sa v blízkosti navrhovanej viacúčelovej sály.
Poloha historického centra k Mariánskemu námestiu. Na schéme možno vidieť objekty, ktoré sú atraktívne svojou funkciou či historickou podstatou a nachádzajú sa v blízkosti navrhovanej viacúčelovej sály.Ema Kiabová

Keďže v množstve z historických príbehov spojených s mestom České Budejovice nachádzame výrazné motívy podzemia (..„Náhle objevený vchod do jeskyně, který sedlák předtím neviděl, upomína na prúchod na Jiný svět, kam je možné přejít...“-z knihy české Budejovice, Tajemná metropole Jižních Čech od Jana Bauera). Tieto opakujúce sa motívy môžeme odôvodniť množstvom striebornej rudy, ktorá sa v okolí Budejovíc nachádzala v širokom pruhu na západnom svahu Lišovského prahu. Najväčší rozmach ťažby striebornej rudy nachádzame pri ťažbe v Horách Budějowských, podľa kronikára Václava Březana už v 16. storočí. V miestach Českých Budejovíc nachádzame približne 20 podzemných šácht hlbokých aj 80metrov.

Motív podzemia a „priechodu na Jiný svět“ sme vniesli aj do konceptu viacúčelovej haly, kedy sa z historického centra mesta dostaneme peším chodníkom až do podzemia, ktoré je v našom ponímaní samotná sála filharmónie. Človek má vďaka tomu pocity z kultúrneho programu umocnené samotnou polohou a formou miesta.

Schéma pohybu pešich a návštevníkov objektu
Schéma pohybu pešich a návštevníkov objektuEma Kiabová

Okrem tohto filozofického smeru má ponorenie sály aj funkčné odôvodnenie. Kedže Mariánské námestie je jedným z posledných zelených plôch v blízkosti centra (v takom rozsahu), rozmerné zázemie vnárame pod úroveň terénu, čo nám umožňuje maximálne možné zachovanie zelene ( a jej znovu-navrátenia v mieste dnešného parkoviska).

Fotodokumentácia riešenej lokality.
Fotodokumentácia riešenej lokality.

Riešenie viacúčelovej sály presahuje plochu riešeného územia z dôvodu, že kontextuálne riešenie je podľa nášho názoru neodmysliteľnou súčasťou architektonického zmýšľania. Na južnej strane sa nachádza potok Mlýnská stoka, ktorý má vysoký potenciál pre tvorbu kvalitných verejných priestorov. Práve preto sme sa rozhodli ťahať pešiu zónu práve smerom k potoku.

Minimálnym zásahom do polohy dnešnej hlavnej dopravnej tepny – Pražská a Husova třída sa nám podarí podržať tvar lomenej zelene v okolí centra v tvare hviezdice. Týmto zabezpečíme ďalšiu hodnotnú prírodnú plochu, ktorá bude slúžiť na rekreáciu, oddych a stretávanie sa ľudí.

Riešené územie vo vzťahu k historickému centru -  prepojenie námestí - doplnenie geometricky lomenej zelene,.
Riešené územie vo vzťahu k historickému centru - prepojenie námestí - doplnenie geometricky lomenej zelene,.

Nová budova Juhočeskej filharmónie je teda zapustená do terénu o 1-2 podlažia, v závislosti od funkcie. Kompozícia jednotlivých kubusov vynárajúcich sa z podzemného zázemia je tvorená okolitou zástavbou, ktorú v plnom rozsahu rešpektuje. Táto kompozícia je doplnená kubusmi, ktoré slúžia ako átriá, ktoré do miestností v podzemí prinášajú denné osvetlenie a oslnenie. Zo severnej a západnej strany sú riadiace linky charakterizované výškovými rozdielmi jednotlivých domov líniovej zástavby, zatiaľ čo východná strana dopovedá štruktúru novej zástavby existujúcou historickou budovou Českej polície a susedného monobloku.

Rozbor urbanistickej štruktúry - vynesenie vodiacich čiar existujúcej zástavby - doplnenie figúr - doplnenie pôvodného pešieho ťahu naprieč riešeným územím.
Rozbor urbanistickej štruktúry - vynesenie vodiacich čiar existujúcej zástavby - doplnenie figúr - doplnenie pôvodného pešieho ťahu naprieč riešeným územím.

Nad úroveň terénu sa dostáva časť administratívy, sály filharmónie a budova reštaurácie, ktorá má zázemie v podzemí, priamo napojené na bufet a bar sály. Samostatne stojacim objektom je objekt slúžiaci ako hudobná predajňa spojená s pokladňou, ktorá nevyžaduje priame napojenie na zázemie filharmónie. Do podzemia sa dostalo aj parkovisko, ktoré ma výhodnú polohu, je prístupné z tř. 28.řína a napojené na všetky funkčné jednotky objektu.

Prevázková schéma podzemného a nadzemného podlažia objektu.
Prevázková schéma podzemného a nadzemného podlažia objektu.

Exteriérová scéna má kryté pódium a nachádza sa v blízkosti  reštaurácie, čo umožňuje spojenie funkcíi amfiteátra a vonkajšieho reštauračného sedenia.

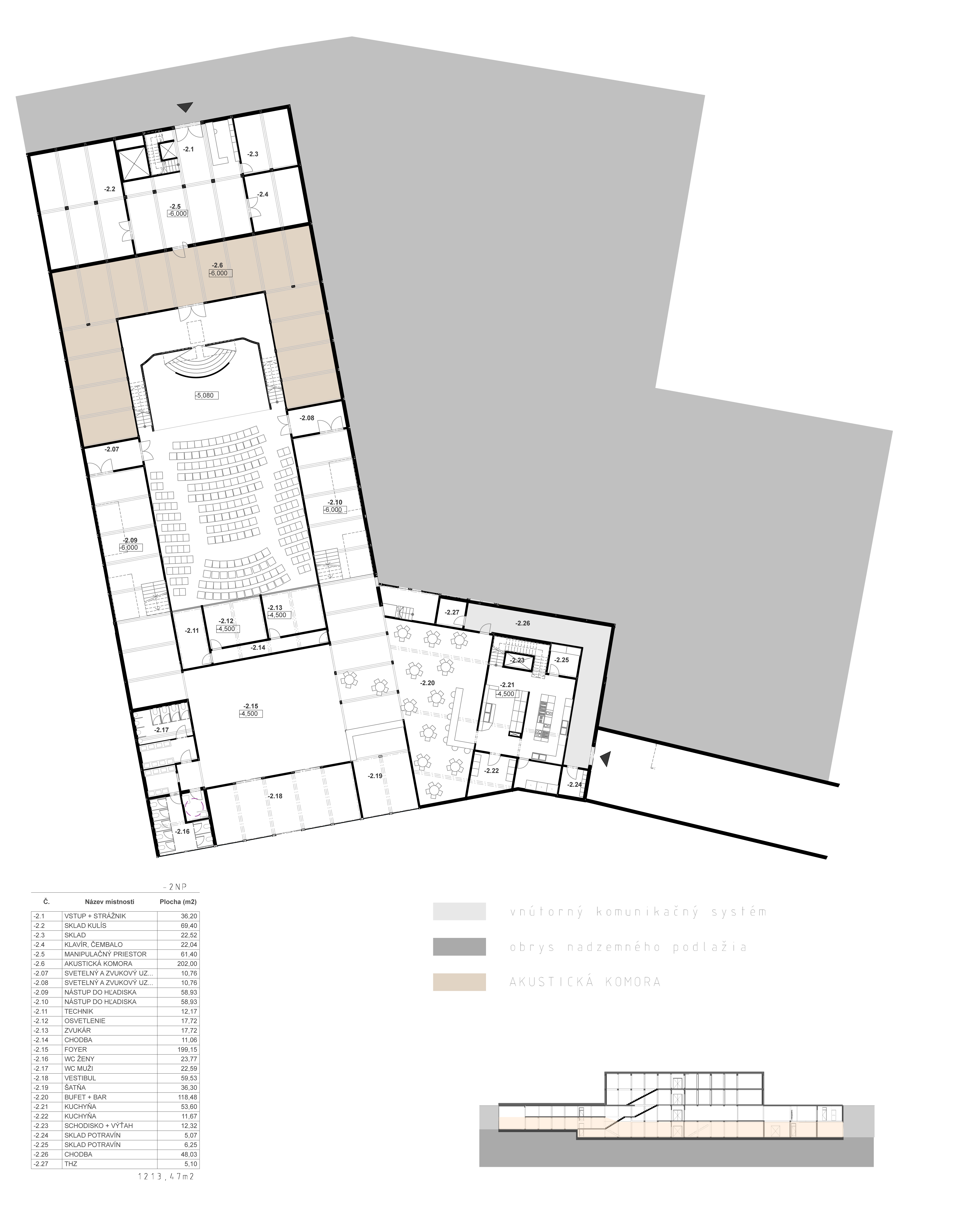
Z akustického hľadiska bola sála navrhnutá v súlade s Boltovým diagramom ideálnych proporcí sál, takže jej proporcie sú navrhnuté v pomere šírka : výška : dĺžka = 1 : 1 : 2 (12x12x24m).

Viacúčelová sála má tvar tzv. „shoeboxu“, čo napomáha jej viac-účelovosti z hľadiska jednoduchšej a čistejšej dispozície. Po stranách sály v okolí pódia sa nachádzajú ozvučené (akustické) komory, ktoré pomocou plynulého otvárania a zatvárania 52 vypuklých dverí v 4 úrovniach upravujú dobu dozvuku v sále podľa veľkosti hudobného telesa a požiadaviek interpreta (v pôdoryse označené hnedou farbou). Dvere sú široké 2200mm a povrch majú štrukturovaný pomocou štvorcových vlysov 21x21 cm hlbokých 6cm tak, aby bolo dosiahnuté maximum difuzivity zvuku. Majú dohromady 5 štruktúr konštruovaných tak, aby neprevládala žiadna z frekvencíi.  

Pôdorys 2.podzemného podlažia
Pôdorys 2.podzemného podlažia
Pôdorys 1.podzemného podlažia
Pôdorys 1.podzemného podlažia
Pôdorys 1.nadzemného podlažia.
Pôdorys 1.nadzemného podlažia.

Konštrukcia je tvorená z modulov KOMA – standard line. Ich rozmery sú 3x3x6m a nad samotnou sálou je prestrešenie tvorené plnostennými väzníkmi ukladanými v priečnom smere na navrhnutý systém modulov. Obvodový plášť sály je v prevedení perforovaného plechu, čo umocňuje atmosféru vďaka tlmeným svetelným lúčom prechádzajúcim cez fasádu. Strieborné prevedenie má znova opodstatnenie v histórii mesta, kedy pripomíname strategický význam striebornej rudy pre vývoj Českých Budejovíc. České Budejovice mali totiž i vlastnú kráľovskú mincovňu, kde v roku 1569 cisár Maximilián II. Povolil razenie drobných strieborných mincí.

Konštrukcia viacúčelovej sály filharmónie zložená z jednotlivých kontajnerov KOMA.
Konštrukcia viacúčelovej sály filharmónie zložená z jednotlivých kontajnerov KOMA.
Pohľad od tř. 28. října a pohľad od Pražskej třídy.
Pohľad od tř. 28. října a pohľad od Pražskej třídy.
Pohľad zo strany Mlýnské stoky a pohľad od B. Smetany.
Pohľad zo strany Mlýnské stoky a pohľad od B. Smetany.
Vizualizácia - interiér, veľká sála
Vizualizácia - interiér, veľká sála
Vizualizácia, hlavný vstup.
Vizualizácia, hlavný vstup.
Vizualizácia - podchod prepájajúci historické centrum, Mlýnsku stoku a v pozadí hlavný vstup do sály.
Vizualizácia - podchod prepájajúci historické centrum, Mlýnsku stoku a v pozadí hlavný vstup do sály.
Vizualizácia, vonkajšie pódium
Vizualizácia, vonkajšie pódium

Ateliér

Ing. Ema Kiabová
Vložené
21. december 2016
0
399
Hlavný obsahHlavný obsah
Čakajte prosím