Na podujatí sa predstaví až 37 vystavovateľov - popredných dodávateľov stavebných materiálov a inovácií s prezentáciou...
Novotvar v prostredí alpskej obce.
Hansgrohe - prémiová značka kúpeľňových riešení, ponúka nadčasový dizajn, technickú precíznosť a udržateľné inovácie...
Využite špeciálnu akciu Internorm: okná za minuloročné ceny a hliníkový kryt úplne zadarmo. Ponuka je časovo obmedzená!
Sumarizácia najdôležitejších inovácií, ktoré redefinujúcich využitie tohto energetického zdroja.
AMPHIBIA 3000 GRIP 1.3 od spoločnosti ATRO predstavuje modernú hydroizolačnú technológiu, ktorá spája vysokú odolnosť,...
Ambiciózne plány EK narazili na ekonomické možnosti domácností v jednotlivých členských štátoch –...
IDEA DOOR od spoločnosti JAP prináša do interiéru čistý minimalistický vzhľad vďaka bezrámovému riešeniu a precíznej...
Kontinuita riešenia od vonkajšieho obkladu až po kovania a kľučky.
Nástenné nadomietkové armatúry Vitus sú mimoriadne vhodné pre rýchlu a efektívnu...
Okenné profily z kompozitného materiálu RAU-FIPRO X od spoločnosti Rehau sú v porovnaní s tradičnými plastovými profilmi mnohonásobne...
Najnovší sortiment stolov pre zariadenie interiérov...
Spojenie moderného dizajnu, funkčnosti a svetla do harmonického architektonického prvku.
Kancelárska budova Baumit v slovinskom Trzine prešla premenou na moderné a udržateľné pracovisko. Architekti kládli dôraz...
Mottom šiesteho ročníku on-line konferencie odborníkov Xella Dialóg je Efektívny návrh budov 2025+: zmeny a riešenia

Prečo ste sa rozhodli zapojiť do súťaže? Čím vás oslovila?
David Husár: 25. ročník medzinárodnej súťaže Xella niesol pre mňa veľmi zaujímavú a atraktívnu tému. Nie často má architekt možnosť navrhovať tak dôležitý objekt, akým je prezidentská vila. Keďže mi je v architektúre najbližšie rezidenčné bývanie, rozhodol som sa, že túto tému spracujem v rámci ateliérovej tvorby, ktorá ma čakala nasledujúci semester.
Robert Provazník: Téma jubilejného 25. ročníka súťaže, so zadaním na návrh Prezidentskej rezidencie, ma zaujala okamžite. Výnimočná a neľahká, no zaujímavá úloha, bola pre mňa veľkou výzvou a zároveň motiváciou. Projekt som spracovával aj ako tému diplomovej práce na Katedre architektúry SvF pod vedením pani architektky Nádaskej, za čo jej patrí moja nesmierna vďaka. Pani architektka Nádaská mi odovzdala obrovské množstvo skúseností a vedomostí, ktoré sa následne pretavili do návrhu prezidentskej rezidencie.
Čím ste sa pri návrhu nechali inšpirovať? Aká bola hlavná myšlienka návrhu?
David Husár: Hlavným zámerom bolo navrhnúť objekt, ktorý nebude pôsobiť okázalo, na pozemku nebude dominantný a bude rešpektovať okolitý kontext pamätníka. Po istej dobe som natrafil na vynikajúceho brazílskeho architekta Marcia Kogana, ktorý sa špecializuje hlavne na objekty luxusných víl a hlavnú inšpiráciu som čerpal z jeho tvorby. Na jeho tvorbe ma zaujal prístup, akým sa stavia k racionalite pôdorysov. Jeho dispozície sú chirurgicky presné, no zároveň pri prezeraní veľkej časti Koganovho portfólia som nikdy nenadobudol pocit monotónnosti a uniformity.
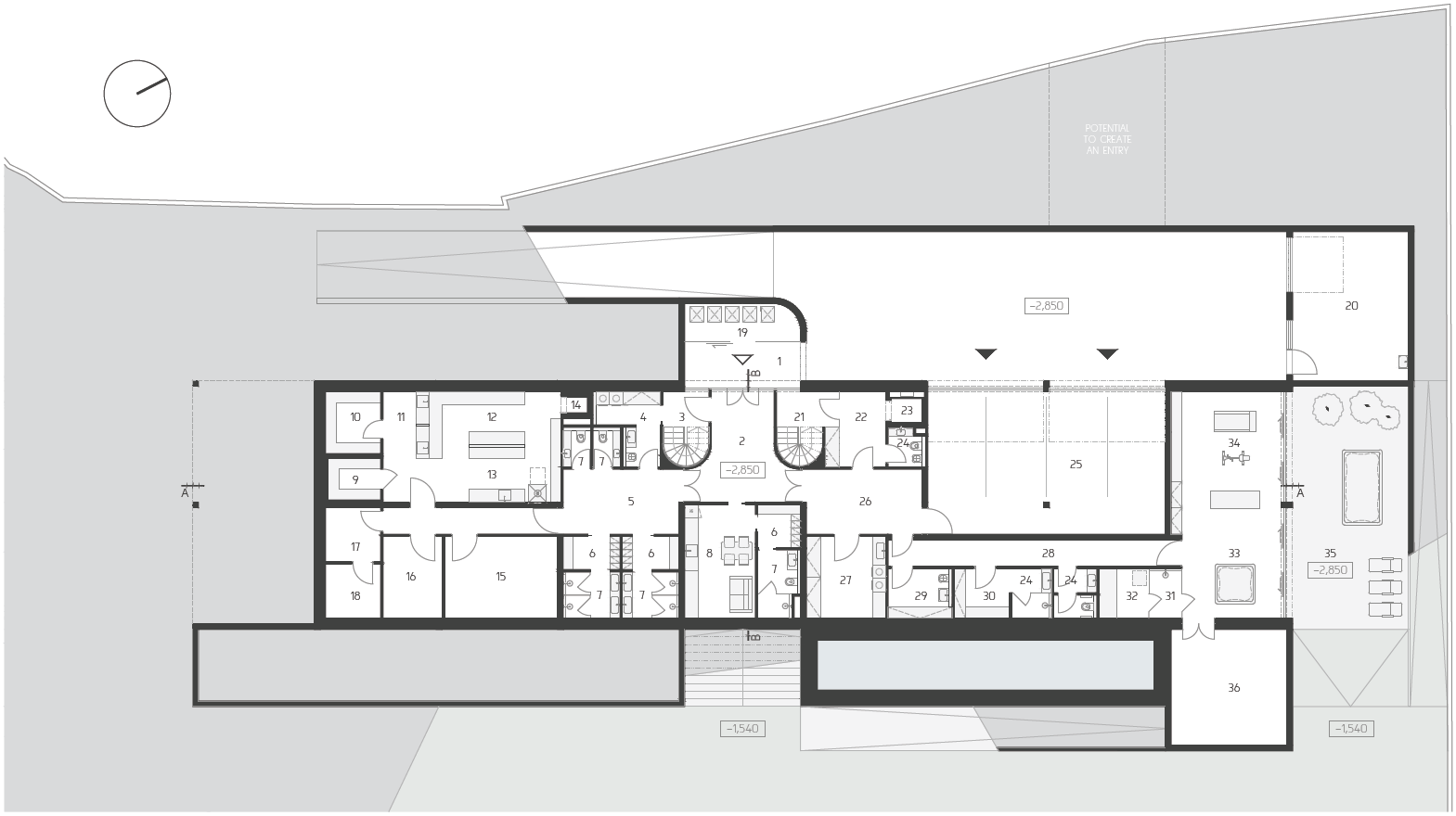
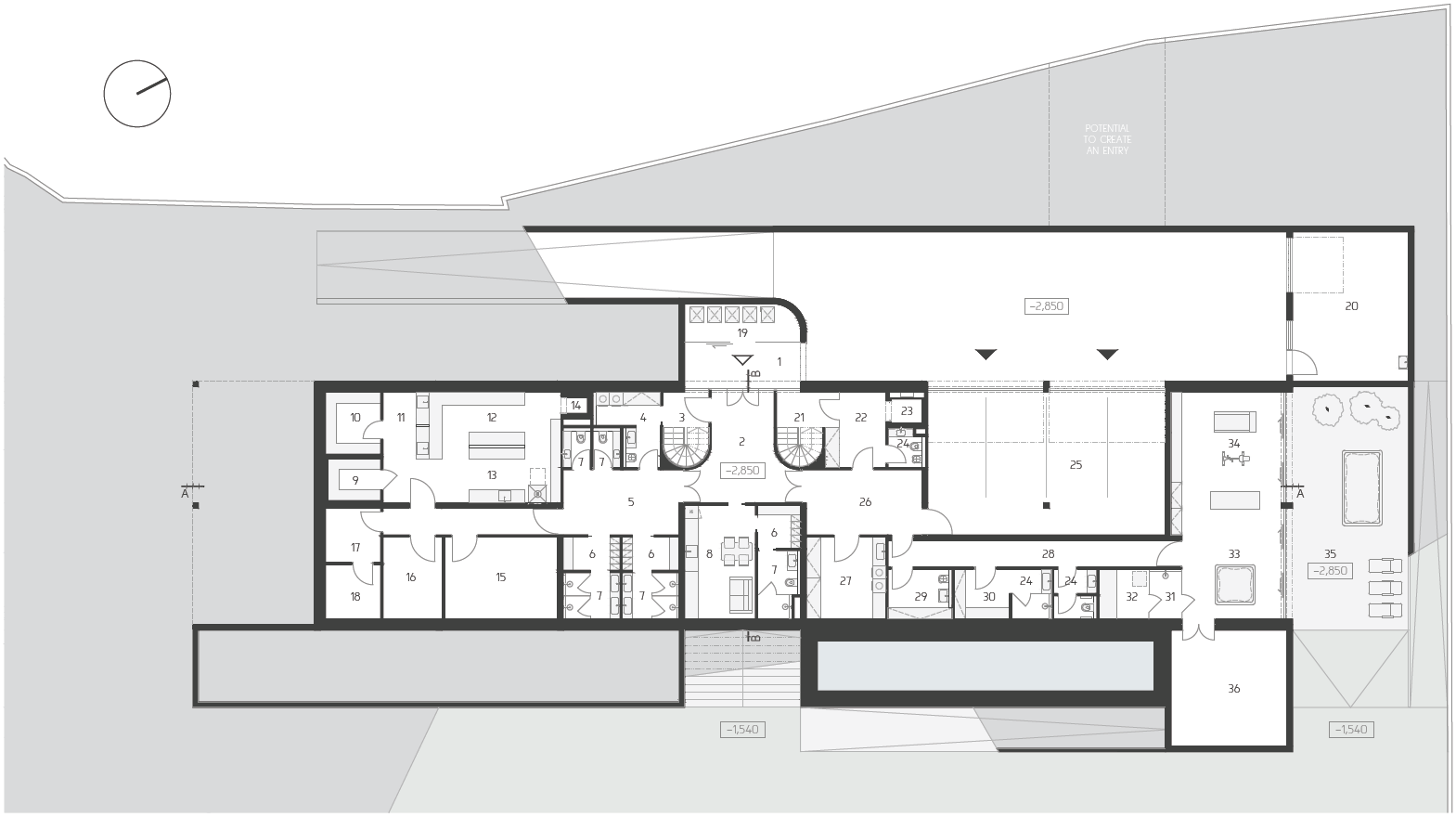
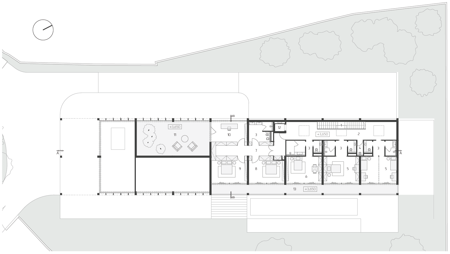
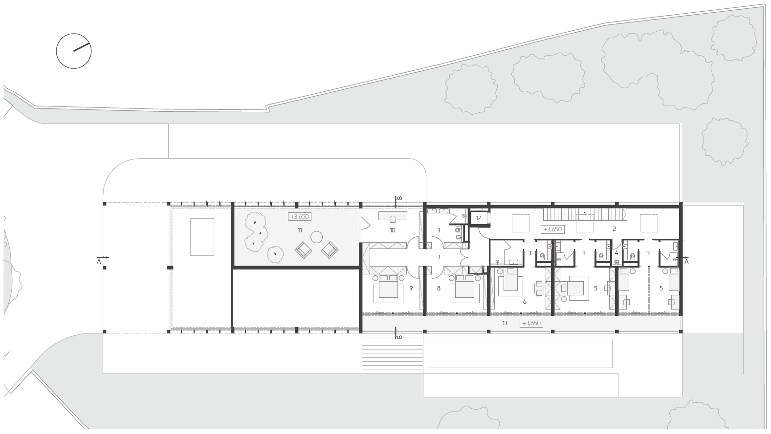
Koncept som netvoril hneď v začiatočnej fáze projektu, ale snažil som sa k objektu postaviť čo najracionálnejšie. Som fanúšikom funkcionalistickej architektúry, čo sa dosť odrazilo aj pri výslednom návrhu vily. Celé tvaroslovie objektu vychádza z jednoduchého kvádra, ktorý som umiestnil na topografický zlom na pozemku. Následne som tento zlom v horizontálnej polohe premietol aj do pôdorysu a tým som dostal jasné delenie hmôt na časť rezidenčnú a na časť súkromnú. Do pomyselného stredu hmôt som umiestnil vertikálne komunikácie. Až neskôr som si uvedomil, že z racionálneho prístupu mi vlastne základný koncept vyplynul sám. Keď sa pozrieme na pôdorysnú schému vidíme jasné delenie medzi prezidentom a rezidentom, ktoré sa od seba nedá oddeliť a je spolu úzko spojené v strede, v dotyku hmôt. To vyjadruje podstatu hlavy štátu. Prezident je verejný činiteľ s reprezentatívnou funkciou, ktorý zároveň potrebuje plnohodnotný osobný život. Tieto dva protipóly sa navzájom dopĺňajú, ale zároveň neviem jasne vyjadriť, ktorý aspekt života prezidenta je dôležitý a ktorý nie. O tom rozhoduje hlava štátu v reálnom čase. Koncept sa snaží poukázať na balansovanie medzi prezidentom a rezidentom.
Robert Provazník: Prezidentská rezidencia spolu s priľahlým pozemkom je v súčasnosti, vzhľadom na jej celkový zlý stav, dlhodobo neudržiavaná a nevyužívaná. Napriek prvotnej myšlienke „nebúrať, ale obnoviť“ som sa napokon po zrelej úvahe rozhodol historický objekt v návrhu asanovať. Existujúca vila totiž nemá žiadne výrazné historické, stavebno-technické, ani architektonické kvality.
Hlavná myšlienka novo navrhovanej rezidencie spočívala vo vytvorení stavby, ktorá by sa stala akýmsi monumentom. Výrazovo som sa snažil vytvoriť objekt s využitím minimalistických výrazových prostriedkov, ktorý by bol odprostený od nadbytočných zdobností a bol tak nadčasový. Bolo však treba myslieť na to, že ide v prvom rade o budovu na bývanie, nie iba akýsi objem bez funkčných priestorov.
Samotné formovanie hmoty bolo v zásade pragmatické – dom koncepčne reaguje na danosti pozemku, morfológiu terénu, výhľady či polohu jednotlivých zón rezidencie vo vzťahu k ploche parcely a priľahlým verejným priestorom.
Aké máte pocity po získaní prvej/druhej ceny? Aké boli vaše očakávania?
David Husár: Na začiatku súťaže som najprv nemal veľké očakávania. Čím viac som sa však projektu venoval, tým viac som videl ako sa mení do, aspoň z môjho subjektívneho pohľadu, hodnotného projektu. To vo mne pochopiteľne vyvolávalo isté očakávanie a túžby po aspoň nejakej odmene, za vytvorenú námahu. V ateliéri, v ktorom som vtedy pracoval sme mali stávku o to, ako celá súťaž skončí. Myslím, že som vtedy zahlasoval, že skončím na treťom mieste (úsmev). Prvé miesto ma veľmi potešilo a prekvapilo. Pri projekte vily som strávil dosť veľa voľného času, čiže to bolo pre mňa aj potvrdenie, že to malo zmysel, no zároveň aj keby som sa neumiestnil tak vysoko, celý proces bol veľmi obohacujúci a posunul moje schopnosti o level vyššie.
Robert Provazník: Vzhľadom na množstvo kvalitných prác od šikovných študentov, ktorí sa do súťaže zapojili som bol príjemne prekvapený, že porota ocenila práve môj návrh. Veľmi si to vážim a ďakujem.
Mala pre vás účasť v súťaži pri spätnom pohľade význam? Boli ste spokojní s úrovňou/kvalitou súťaže?
David Husár: Ako som už spomenul, čas strávený pri riešení dispozícii a zároveň študovaní víl od popredných svetových architektov mi dal veľmi veľa a zlepšil moje myslenie pri kreslení pôdorysov a tvorení architektúry. Hlavný prínos zapojenia sa do súťaže vidím v tom, že študent má jasne dané mantinely, čiže ho to pri navrhovaní núti premýšľať komplexnejšie než pri zadaní, ktoré sám tvorí a podobne. Zároveň pre mňa, ako súťaživého človeka bola možnosť odovzdať projekt a zároveň si zmerať schopnosti aj so spolužiakmi veľkým ťahúňom sa zlepšovať a tráviť čas pri kreslení vily. Určite túto skúsenosť odporúčam aj mojim mladším kolegom.
Kvalitu súťaže hodnotím pozitívne. Počas celého navrhovania bol jediný problém neskoré dodanie úplného zadania, ale zároveň organizátori súťaže boli vždy ochotní zodpovedať otázky a následne po mesiaci doplnili aj kompletné okrajové podmienky. Veľkým plusom boli aj 3D podklady terénu a okolia, ktoré k súťaži poskytli, takže sme si ich nemuseli ako študenti kresliť sami, ako býva zvykom pri bežnom zadaní na ateliérových tvorbách.
Robert Provazník: Odporúčam všetkým študentom neváhať a súťaží sa zúčastňovať, kým sú ešte na škole a môžu. Na inžinierskom stupni štúdia na Katedre architektúry je veľa priestoru na zapojenie sa do rôznych súťaží či workshopov. Xella je z môjho pohľadu dlhodobo jednou z najkvalitnejších architektonických študentských súťaží na Slovensku a v Česku. Celková organizácia bola z môjho pohľadu zvládnutá na výbornú. Účasť v nej by som si určite zopakoval. Žiaľ – už to nepôjde (úsmev).
Odporúčali by ste svojim mladším spolužiakom zapájať sa do takýchto aktivít? V čom vidíte ich prínos? Chceli by ste niečo odkázať svojim mladším kolegom, budúcim architektom a stavbárom?
David Husár: Svojim mladším kolegom by som chcel odkázať to, že sa netreba báť robiť študentské architektonické súťaže. Študentské súťaže väčšinou riešia veľmi zaujímavé zadania a zároveň na konci ponúknu určitú spätnú väzbu v podobe všetkých projektov, ktoré odovzdali všetci zúčastnení.
Druhou výhodou je to, že v prípade úspechu študent získa kvalitnú referenciu do portfólia a následne po vyštudovaní má určitú výhodu pri hľadaní práce.
Robert Provazník: Jednoznačne áno. Nám sa napríklad ešte v roku 2019 podarilo vďaka účasti a postupe v študentskej súťaži vycestovať na medzinárodný workshop do Číny. Opäť mi nedá nepoďakovať sa vedúcim školiteľom a pánovi architektovi Hermannovi, ktorý okrem iného pôsobí na Katedre architektúry SvF a súťaž predostrel ako jednu z tém na ateliérovej tvorbe. Návrh sme vytvorili ako skupina študentov pod vedením pani architektky Nádaskej a pána architekta Paňáka v spolupráci s partnerskou čínskou univerzitou. Po postupe do druhého kola sme pod vedením doktoranda Matthiasa Arnoulda vycestovali do Číny, kde sme objekt zrealizovali za 18 dní. Spomedzi 30 vybraných svetových a čínskych špičkových univerzít sme následne získali 1. miesto.
Akákoľvek účasť v súťaži je minimálne zaujímavou skúsenosťou, výzvou a napríklad aj možnosťou ako spestriť svoje odborné uplatnenie či rozhľad. Čo sa týka prípadného strachu z neúspechu, v žiadnom prípade sa netreba podceňovať. Dovolím si tvrdiť, že slovenskí študenti sú minimálne rovnako šikovní, ako tí zahraniční.