Novotvar v prostredí alpskej obce.
Hansgrohe - prémiová značka kúpeľňových riešení, ponúka nadčasový dizajn, technickú precíznosť a udržateľné inovácie...
Využite špeciálnu akciu Internorm: okná za minuloročné ceny a hliníkový kryt úplne zadarmo. Ponuka je časovo obmedzená!
Na podujatí sa predstaví až 37 vystavovateľov - popredných dodávateľov stavebných materiálov a inovácií s prezentáciou...
Sumarizácia najdôležitejších inovácií, ktoré redefinujúcich využitie tohto energetického zdroja.
AMPHIBIA 3000 GRIP 1.3 od spoločnosti ATRO predstavuje modernú hydroizolačnú technológiu, ktorá spája vysokú odolnosť,...
Ambiciózne plány EK narazili na ekonomické možnosti domácností v jednotlivých členských štátoch –...
IDEA DOOR od spoločnosti JAP prináša do interiéru čistý minimalistický vzhľad vďaka bezrámovému riešeniu a precíznej...
Kontinuita riešenia od vonkajšieho obkladu až po kovania a kľučky.
Nástenné nadomietkové armatúry Vitus sú mimoriadne vhodné pre rýchlu a efektívnu...
Okenné profily z kompozitného materiálu RAU-FIPRO X od spoločnosti Rehau sú v porovnaní s tradičnými plastovými profilmi mnohonásobne...
Najnovší sortiment stolov pre zariadenie interiérov...
Spojenie moderného dizajnu, funkčnosti a svetla do harmonického architektonického prvku.
Kancelárska budova Baumit v slovinskom Trzine prešla premenou na moderné a udržateľné pracovisko. Architekti kládli dôraz...
Mottom šiesteho ročníku on-line konferencie odborníkov Xella Dialóg je Efektívny návrh budov 2025+: zmeny a riešenia

Ještěd F kleci je dnes už legendárna študentská súťaž na Fakulte umenia a architektúry Technickej univerzity v Liberci. Každý semester vyberá porota najlepšie ateliérové práce. V devätnástom ročníku súťaže zvíťazili Ema Hrníčková a Patrik Kovaľ s polyfunkčným komplexom na hranici historického jadra Banskej Štiavnice.
Tradičná študentská súťaž na Fakulte umenia a architektúry Technickej univerzity v Liberci, ktorá uzatvára semester a oceňuje najlepšie projekty pozná svojich ocenených. Netradičný 19. ročník Ješted f kleci bol tento krát poňatý zo širšieho zorného uhla. Tento rok bola súťaž zahájená o týždeň skôr na vernisáži, kde projekty spoločne prezentovali jednotlivé ateliéry. Do vyhlásenia výsledkov prebiehala výstava projektov.
O výsledkoch súťaže rozhodovala porota v zložení: Jan Jehlík, Hana Maršíková, Markéta Zdebská, Peter Jurkovič. Porota vybrala piatich finalistov z ktorých vzišiel jeden víťaz, tiež udelila pochvalu dvom semestrálnym prácam.
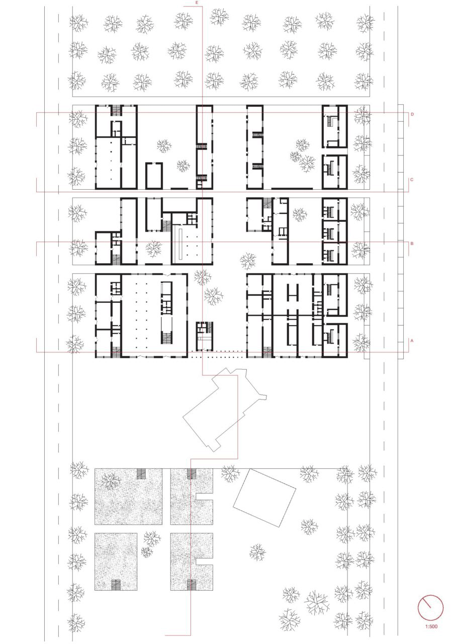
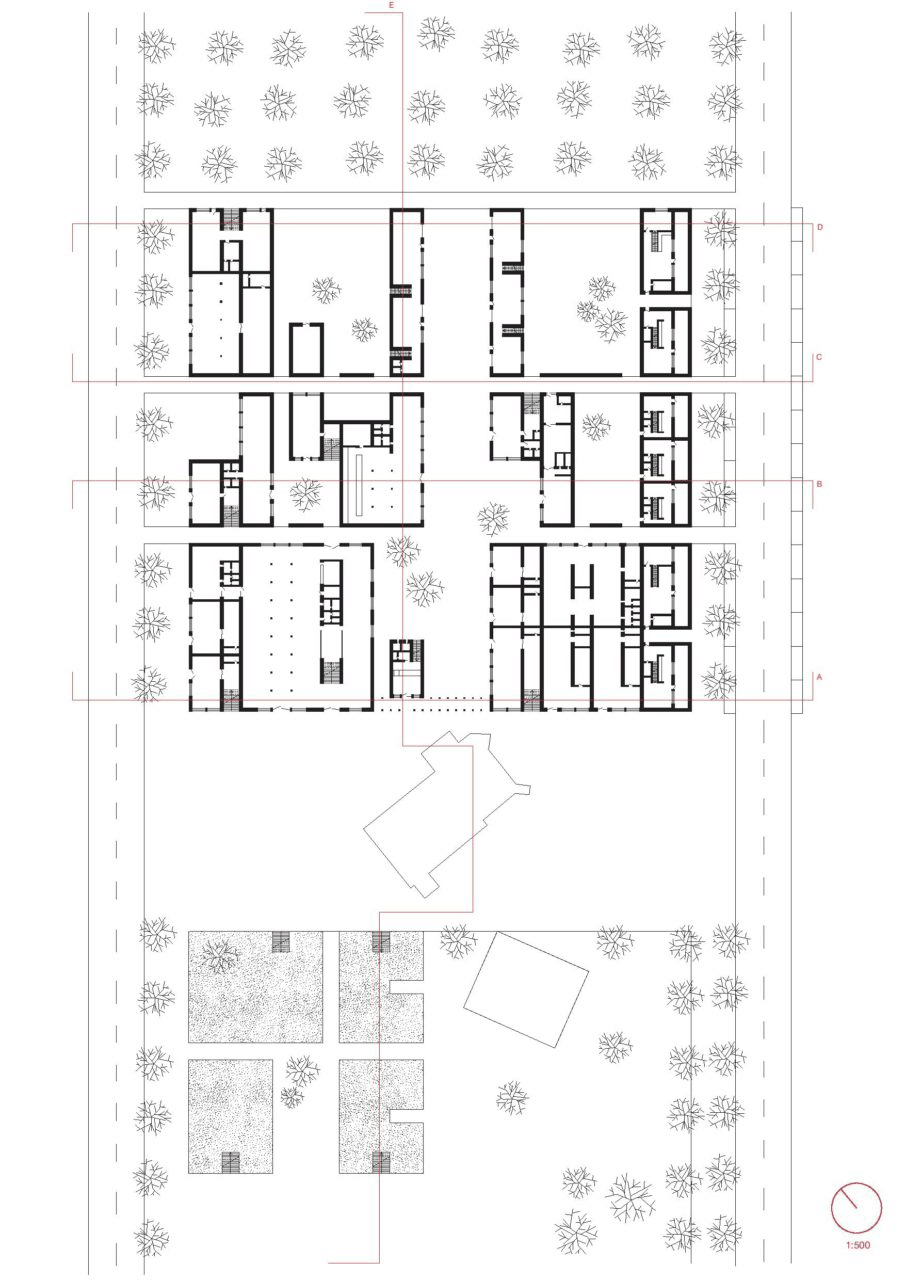
Víťaz: Downtown Kerling - Banská Štiavnica
Ema Hrníčková a Patrik Kovaľ, 1.ročník MA
Ateliér Fránek/Raková
Hodnotenie poroty:
Jde o komplexní projekt, jakkoliv ne všechny úrovně jsou zpracovány kvalitně (např. některé dispozice bytů). Silnou stránkou projektu je doplnění stávající urbánní struktury ryze současnou kompaktní formou. Porota oceňuje citlivý přístup k posílení života v obci při současném vnímání jejich hodnot.
Výber z textovej časti:
"Multifunkčný mestský blok KERLING, ako miesto na bývanie, prácu, relax a spoznávanie v Banskej Štiavnici. Downtown Kerling, ako rázcestie medzi moderným a historickým alebo vstupná brána do Banskej Štiavnice. Pri vstupe do historického centra, na pomyselnej bráne do mesta stojí tabačka a pred ním veľká neupravená plocha ničoho. My s touto plochou pracujeme a vytvárame tak nový začiatok centra, vstup do mesta. Jeden nový veľký dom, jeden dlhý, jeden zubatý…"
Finalista: Přestavba atria Filozofické Fakulty UK
Daniel Volek
Ateliér Fránek/Raková
Hodnotenie poroty:
Porota oceňuje vetknout novou prostorovou strukturu do pevného základu budovy s očištěním dvora od neustrojené vestavby. Návrh umožňuje lepší všestranné propojení křídel budovy a přináší to místu silnou pozitivní energii. Otázkou však zůstává míra zaplnění původního dvora a tím i omezení vnitřních prostorů hlavního objektu.
Výber z textovej časti:
"V post-faktické době máme snadný přístup k obrovské kvantitě informací, jejich kvalita je ovšem zastřenější. Škola proto dnes již nesmí být prosté místo jejich získávání, ale prostorem, kde se v informacích naučíme orientovat a používat je, prostorem pro kritické myšlení, diskuzi a spolupráci, prostorem pro rozvoj osobnosti a sociálních vztahů. Proměňuje se i vztah učitele a studenta, rozostřuje se hranice mezi nimi i hranice školy jako takové. Každý jsme studentem a nikdy jím nepřestaneme být. Každý můžeme být učitelem, třeba jen na okamžik. FF UK s průmerně čtyřmi žáky v každém z šedesáti oborů je symbolem roztříštěnosti. Starý dům s modulovou skladbou prostorů ve formálním řádu uchovává programový chaos. Nový implantát naopak pomocí volného plánu udává nový řád. Rozšiřuje prostory školy tak, že vytváří nové módy studia a posouvá tak definici školy jako takové."
Finalista: Městský úřad v Lázních Bělohrad
Jakub Dvořák
Ateliér Buček/Horatschke
Hodnotenie poroty:
Jedná se o přesvědčivý projekt odpovídající měřítku města i místa. Velmi dobře navržený vztah k veřejnému prostoru. Autor použil přiměřené prostředky k dotvoření centra města. Slabinou návrhu jsou některé formální prvky (např. matrika v objektu věže?) nebo celkový rozvrh budovy (např. hlavní vstup z nároží pod schodištěm).
Výber z textovej časti:
"Prostor Bělohradského náměstí je specifický svým rozložením, dlouhé náměstí diagonálně rozdělené silnicí, která ho tak dělí na dva dlouhé klíny. Na jedné straně alej na druhé nic, a to by mělo být zachováno. Klín na východní straně silnice zůstává prázdný. Je dlážděn jako dlouhý jazyk, na jehož severním konci stojí sebevědomě se tyčící budova úřadu. Solitérní, kompaktní, s výrazným štítem dává jasně najevo jeho význam. Prostor náměstí dotváří objekt sálu umístěný po boku úřadu. Stejně jako náměstí se dvěma klíny vzniká i zde vztah dvou, úřad pevně srostlí se zemí, sál vznášející se na betonových nohou. Toto rozdělení vytváří mezi objekty prostory. Předprostor úřadu, s kašnou, otevřený do náměstí a zahrada, se vzrostlým stromem, otevřená k Javorce. Důležitým prvkem v kompozici je materiál, který přechází z povrchu náměstí ve stěny budovy. Cihla reprezentuje solidnost, taková je představa městského úřadu v Lázních Bělohrad."
Finalista: Ralsko - lokalita u Kostela
Tereza Pištěková
Ateliér Suchánek/Jánoš
Hodnotenie poroty:
Autorce se povedlo utvořit ucelenou svébytnou lokalitu s jasnými rozhraními a s měřítkem odpovídajícím místnímu venkovskému charakteru, Kompozice, bohatost veřejných prostorů a skladby objektů je klasická a velmi dobře zvládnutá! V projektu chybí pojednání o sociální struktuře lokátorského činu a o každodenním provoze.
Výber z textovej časti:
"Od místa očekávám, aby se chovalo do určité míry městsky. Ne však natolik, aby byla potlačena jeho identita a dnešní - spíš vesnické vazby. Krajinu nerozděluji na jednotlivé zastavěné plochy, kde každý buď musí, nebo nesmí mít svou zahradu. Místo spojuji a zacházím s ním jako s celkem, táhnoucím se po hlavní ose, křižujícím nově vznikající centrum a tvořícím náměstí. Náměstí je společné, parter je společný, zahrady jsou společné, sad je společný, více méně vše, co je o parto výše už přechází do soukromí, vše se táhne v jednom pásu."
Finalista: Divadlo v krajině, Baleal, Portugalsko
Ondrej Jurčo
Ateliér Suchomel/Šaml
Hodnotenie poroty:
Autor volil jazyk přiměřený ambicióznímu zadání! Jednotlivé objekty jsou navrženy na bázi elementárních tvarů (horizontála, vertikála, kruh) a vhodně jsou jim přiřazeny jejich základní funkce. Problematickým se zdá válcový objekt z hlediska jeho využití a těžkopádnosti celkové hmoty.
Výber z textovej časti:
"Bola by veľ ká škoda uspokojiť sa so stavbou divadla na prvom ostrove. Skalný útvar ponúka omnoho viac ako sa môže zdať. Pokiaľ umiestnime stavbu až na samý koniec celého súboru ostrovov, nevyhnutne by tak vznikla cesta cez celý mys. Či už
pôjde o chodník, most, schody - architektúra tejto cesty ponúkne zážitok, ktorý s divadlom nijako nesúvisí. Umožní zažiť skalný útvar tak, ako ho ešte nikdo nemohol zažiť. Neprístupné ostrovy zrazu môžu byť objavované."
Cena publika: Obnova těžební krajiny Karvinska
Mirka Baklíková, diplomová práca
Textová časť:
Motto: „Krajina je kouzelný palimpsest, zápisník historie, v němž se napsaná slova překrývají, ale přesto mohou být rozluštěna.“
Výber z textovej časti:
"Rozsáhlé území mezi Karvinou a Havířovem je posledních 150 let poznamenáno intenzivním průmyslovým využitím, zejména těžbou uhlí. Původní ráz krajiny zmizel, stejně tak zaniklo osídlení a systém cest. Vše bylo podřízeno těžbě. V posledním desetiletí však dochází k postupnému zavírání dolů. Krajina zůstává opuštěná s osamělými stavbami důlních komplexů, těžních věží, kališť a dopravní infrastruktury, která ztratila svůj původní význam. Celé území postupně zarůstá náletovou zelení a ztrácí charakter kulturní krajiny.
Jaká by měla být nová vrstva tohoto území? Mottem celé práce je přirovnání krajiny k palimpsestu. Palimpsest je starý dokument, na němž lze nalézt několik vrstev textu z různých období. Původní vrstvy byly z důvodu úspory materiálu záměrně odstraněny a nahrazeny novými. Při podrobném zkoumání však lze rozluštit i stopy starého textu. Do krajiny jsou jednotlivé vrstvy vtisknuty podobným způsobem. Staré vrstvy jsou přepsány a nahrazeny novými, ale stopy původních vrstev mohou být stále rozluštěny."
Porota na záver udelila aj dve pochvaly:
Pochvala: Metodická příručka stavebního rozvoje města Benešov
Martin Holada
Ateliér Fránek/Raková
Hodnotenie poroty: Porota speciálně oceňuje práci u Metodické příručky stavebního rozvoje města Benešov z hlediska ambice vytváření nástroje pro komunikaci s veřejnou správou.
Pochvala: ateliér Stolín/Mičeková
Hodnotenie poroty: Porota oceňuje záměr vedoucích ateliéru hledat nové přístupy k výuce architektury za pomocí tradičních metod.