Na podujatí sa predstaví až 37 vystavovateľov - popredných dodávateľov stavebných materiálov a inovácií s prezentáciou...
Novotvar v prostredí alpskej obce.
Hansgrohe - prémiová značka kúpeľňových riešení, ponúka nadčasový dizajn, technickú precíznosť a udržateľné inovácie...
Využite špeciálnu akciu Internorm: okná za minuloročné ceny a hliníkový kryt úplne zadarmo. Ponuka je časovo obmedzená!
Sumarizácia najdôležitejších inovácií, ktoré redefinujúcich využitie tohto energetického zdroja.
AMPHIBIA 3000 GRIP 1.3 od spoločnosti ATRO predstavuje modernú hydroizolačnú technológiu, ktorá spája vysokú odolnosť,...
Ambiciózne plány EK narazili na ekonomické možnosti domácností v jednotlivých členských štátoch –...
IDEA DOOR od spoločnosti JAP prináša do interiéru čistý minimalistický vzhľad vďaka bezrámovému riešeniu a precíznej...
Kontinuita riešenia od vonkajšieho obkladu až po kovania a kľučky.
Nástenné nadomietkové armatúry Vitus sú mimoriadne vhodné pre rýchlu a efektívnu...
Okenné profily z kompozitného materiálu RAU-FIPRO X od spoločnosti Rehau sú v porovnaní s tradičnými plastovými profilmi mnohonásobne...
Najnovší sortiment stolov pre zariadenie interiérov...
Spojenie moderného dizajnu, funkčnosti a svetla do harmonického architektonického prvku.
Kancelárska budova Baumit v slovinskom Trzine prešla premenou na moderné a udržateľné pracovisko. Architekti kládli dôraz...
Mottom šiesteho ročníku on-line konferencie odborníkov Xella Dialóg je Efektívny návrh budov 2025+: zmeny a riešenia

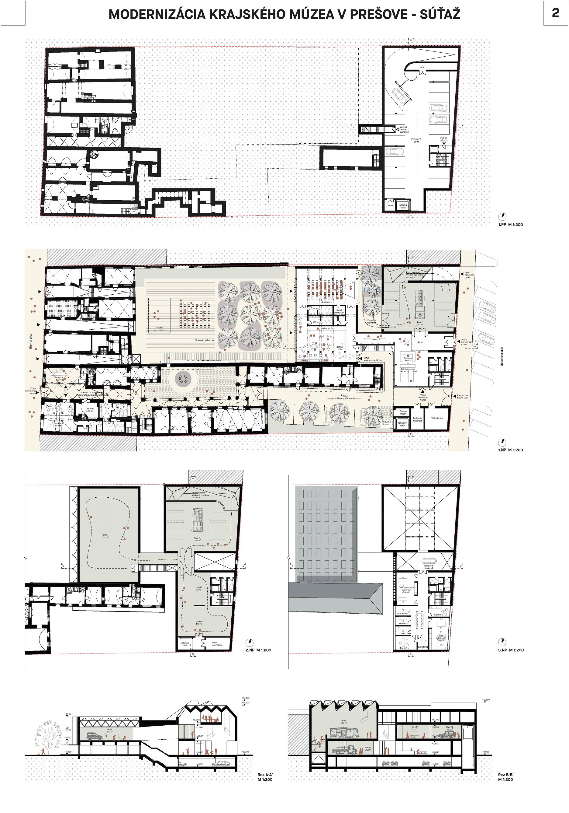
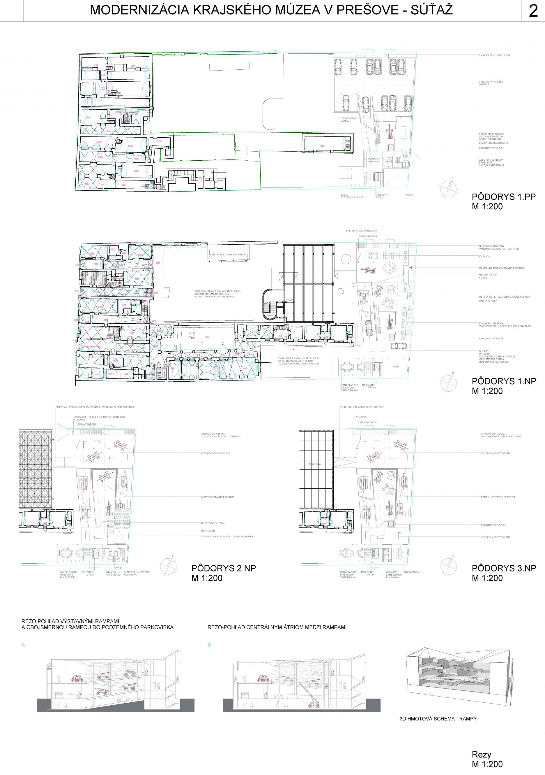
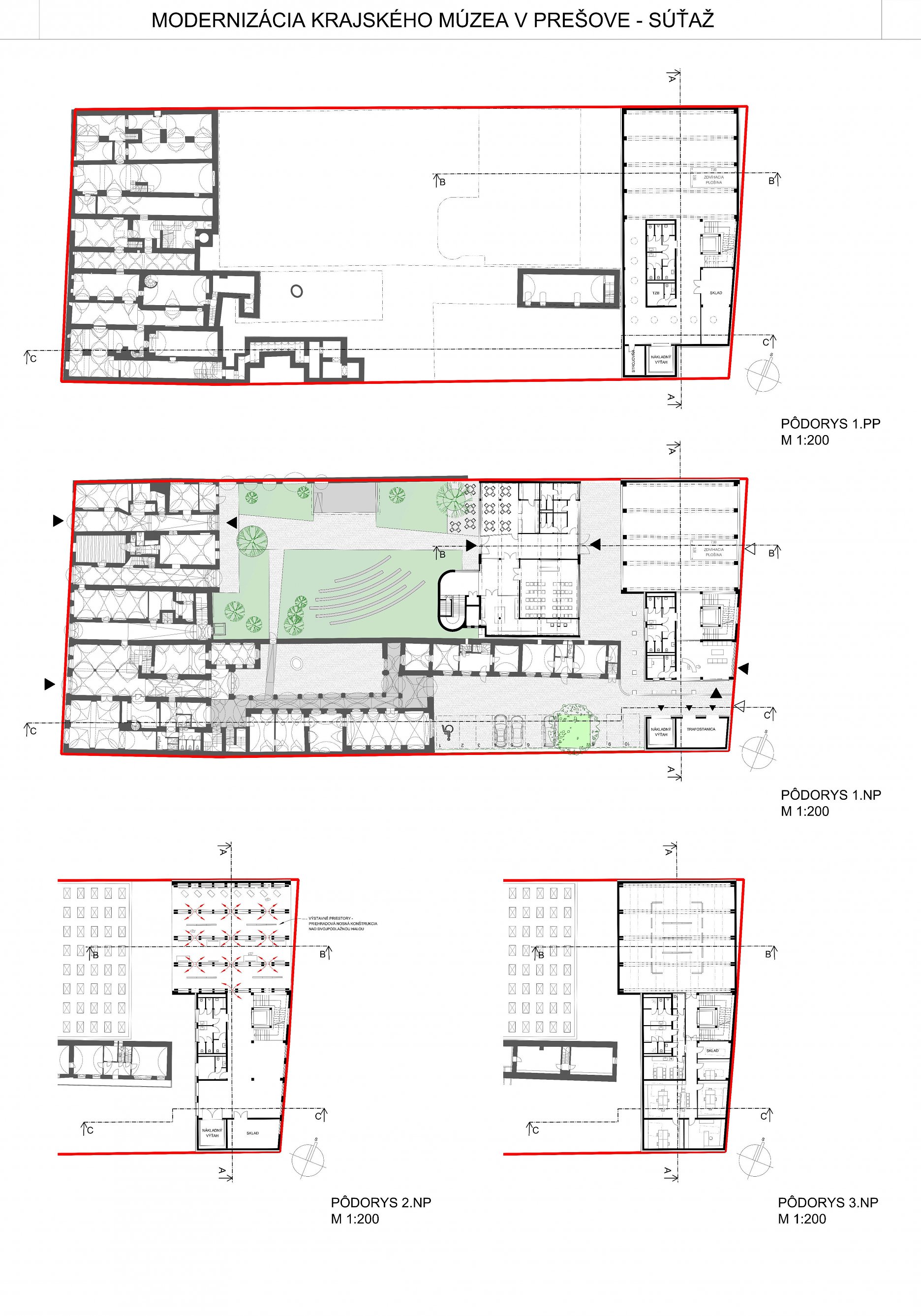
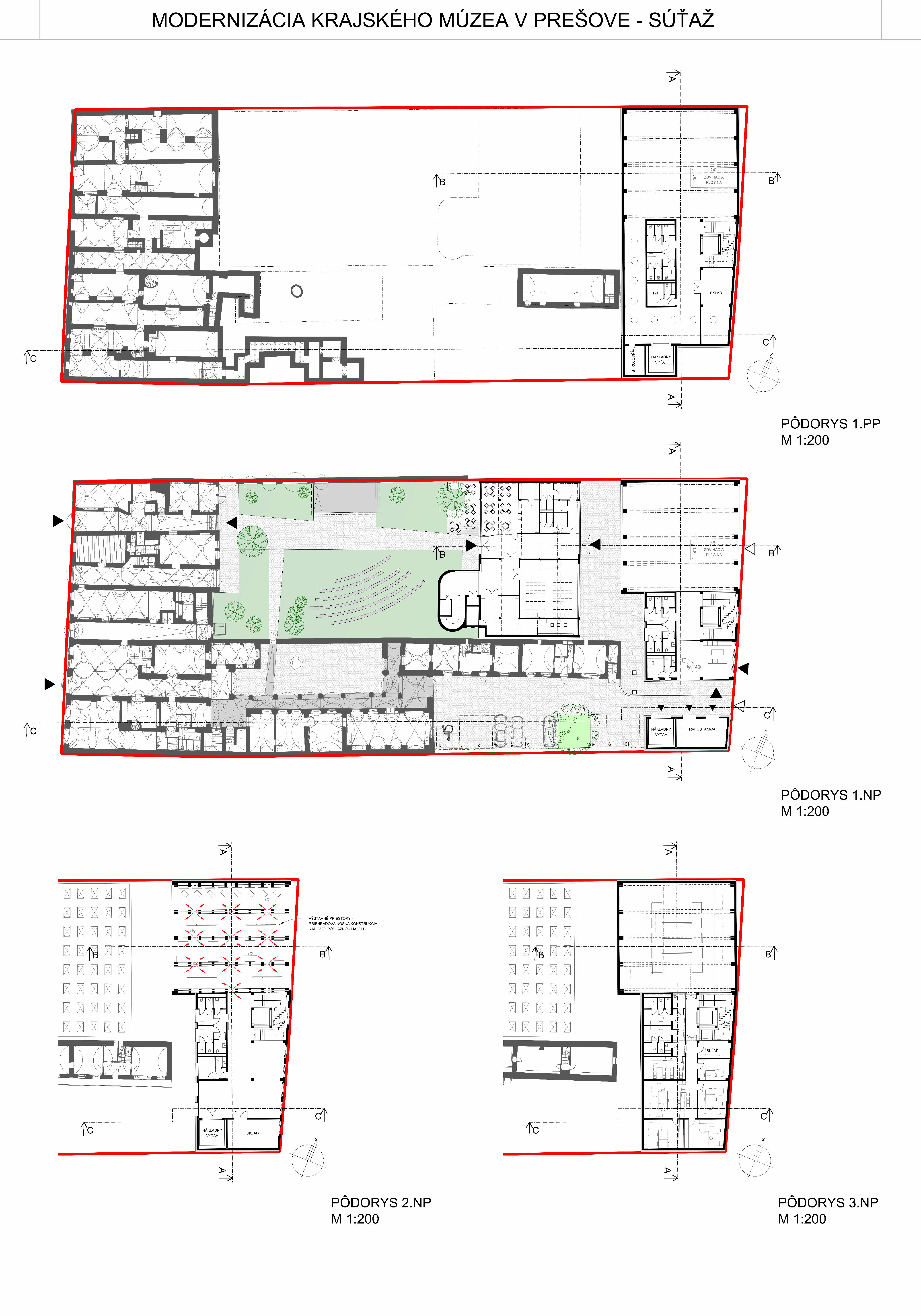
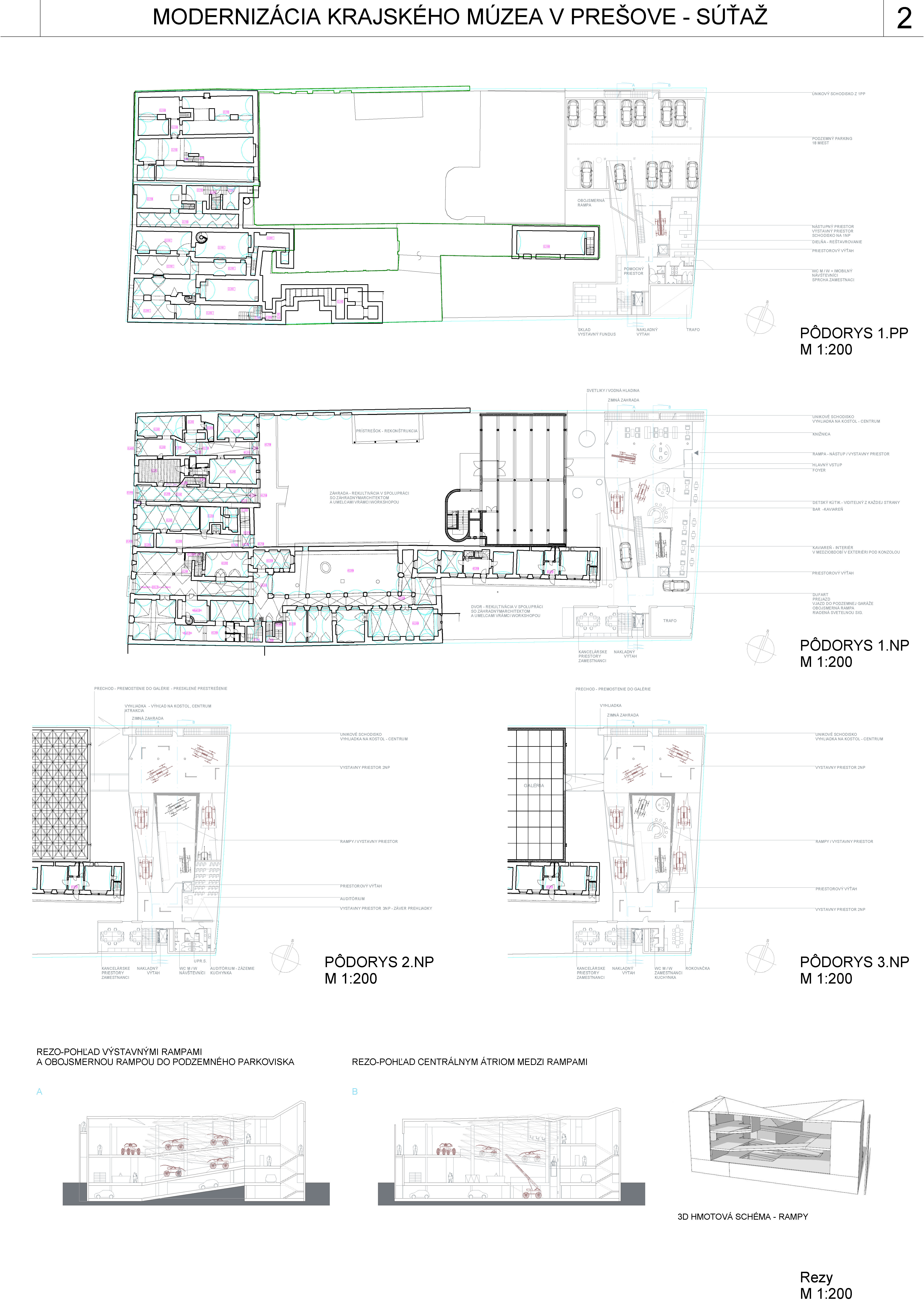
Krajské múzeum v Prešove vyhlásilo vo februári súťaž na rekonštrukciu historických budov múzea (tri meštianske domy / NKP) a ich prístavbu. Ideou vyhlasovateľa je vytvoriť modernú inštitúciu, rozšírenú o priestor pre aktívne trávenie voľného času a štúdium. Nové stále expozície múzea budú venované dejinám hasičstva na Slovensku a umeleckému smeru socialistického realizmu.
V súťaži odovzdalo svoje návrhy 7 autorských kolektívov. Na zasadnutí 30. mája rozhodla hodnotiaca komisia v zložení: Radko Květ, Václav Kohlmayer, Vít Halada, Vladimír Ligus a Ľuboš Olejník o výsledkoch súťaže nasledovne:
1. miesto (12.000,- €): návrh B - zerozero s.r.o.
Komentár poroty:
Návrh dodržal základné požiadavky na hmotové riešenie objektu a členenie fasády. Najlepším spôsobom rieši funkčné využitie parteru s prepojením na staršie objekty a dobre narába s vonkajšími priestormi múzea, ktoré diferencuje na rôzne priestory a zároveň umožňuje ich rôzne využitie. Vhodne a citlivo navrhuje dvorové priestory, umiestnenie kaviarne a posluchárne je vysoko efektívne a ponúka správne využitie pri zachovaní mierky. Dobrým spôsobom rieši vnútornú prevádzku múzea. Používa rovnaký princíp presvetlenia výstavných priestorov ako na existujúcej výstavnej hale, zároveň parafrázuje sedlovú strechu. Plocha fasády ponúka priestor pre vytvorenie „živej“ fasády. Návrh sebavedome a čisto pristupuje k riešeniu dvorov. Návrh sa úplne nevysporiadal s podmienkami KPÚ Prešov o štruktúrovanosti výrazu objektu do Slovenskej ulice.
Súťažné panely:
Vizualizácie:
2. miesto (8.000,- €): návrh F - Tomáš Bujna
Komentár poroty:
Vhodným spôsobom prepája Hlavnú ulicu s ulicou Slovenská s voľným prístupom do vnútornej záhrady. Navrhovaná novostavba v parteri je plošne asi predimenzovaná. Umiestnenie administratívy na prízemí je diskutabilné a parkovanie v bočnej časti spôsobuje miešanie pešieho a automobilového pohybu. Exteriérový výraz do Slovenskej ulice neakceptuje podmienky KPÚ Prešov. Návrh však prináša inovatívne myšlienky aplikovateľné mimo pamiatkového prostredia, vhodné na ďalšiu diskusiu, je navrhnutý na ocenenie.
3. miesto (5.000,- €): návrh G - GEOME3, s.r.o.
Komentár poroty:
Porotu zaujal návrh svojou veľkorysosťou. Priestorovou a aj inštuticionálnou. V mierke mestskej štruktúry ziskavá priestor exteriérového dvora partnera v hale/plateau stretnutí, ktorá prepája priestor pod existujúcou halou s Slovenskou ulicou. Do oboch priestorov sú vkladané objekty/stroje, izby, ktoré svojim výrazom a používaním idú nad rámec štandardného vybavenia, čim majú ambíciu iniciovať nové podoby múzea a inštitúcie ale aj múzea ako verejného kultúrneho priestoru. Pôjd/pavučina, levitujúce auditórium/výstavný svah alebo oblak, preliezka na hasenie, administratíva/velín...
Návrh na dosiahnutie priestorovej veľkorysosti ponúka citácie meštianskych domov a paláca, ktoré interpretuje prostredníctvom estetiky a tektoniky ľahkých presvetlených priemyselných hál. Tento princíp sa ukazuje ako lákavý, avšak v konkrétnej situácii MPR ako pomerne invazívnny a problematický.
4. miesto: návrh C - Ateliér ASKO B&G s.r.o.
Komentár poroty:
Návrh neponúkol presvedčivé prevádzkové prepojenie existujúcich a navrhovaných objektov. Zaujímavá je vnútorná fasáda prístavby, Uličná fasáda zo Slovenskej ulice pôsobí architektonicky nevyvážene, pripomína skôr priemyselný objekt, než kultúrnu inštitúciu. V parteri pomerne chaoticky pôsobia tri vstupy.
5. miesto: návrh E - Eastbrothers architects s.r.o.
Komentár poroty:
Návrh dodržal predpísané hmotovo-priestorové riešenie, no dostatočne nevyužil potenciál prízemia pre verejnosti prístupné funkcie a previazanosť jednotlivých prevádzkových častí múzea. Koncepcia umiestňovania exponátov hasičskej technicky na šikmých rampách je jednoúčelová a pre tento typ expozície nevhodná. Prvok vonkajšieho slnolamu na fasádach je prezentovaný len formálne, celkovo návrh sa javí ako nedopracovaný. Navrhovaný architektonický výraz pôsobí v jestvujúcom uličnom domoradí príliš kontrastne, lepšie by sa prezentoval pri solitérnej stavbe.
6. miesto: návrh A - Ing. arch. Marián Pitka
Komentár poroty:
Porota pozitívne hodnotila snahu o vizuálne otvorenie múzea z interiéru smerom do Slovenskej ulice, avšak miera tohto otvorenia spôsobuje technické, prevádzkové a výrazové problémy. Výrazové zjednotenie fasády 2. NP navrhovaným „orámovaním“ evokuje monolitný výraz, čo je v rozpore s rozhodnutím KPÚ. Kruhové okno v štítovej stene nepočíta s ďalšou dostavbou domoradia, ktorá je z hľadiska dotvorenia územia žiadúca. Relatívne invazívne pôsobí navrhnutý vjazd do podzemnej garáže zasahujúci do interiéru.
7. miesto: návrh D - Mária Čutková
Komentár poroty:
Návrh riešil zadanie relatívne formálne, nepriniesol inovatívne myšlienku pre vytvorenie reprezentatívnej funkcie vhodnej formy začlenenia prístavby do ulice ako kultúrnej inštitúcie. Dispozične rozdeľuje prevázku na samostatné celky – dve múzeá, bez integrácie. Konštrukčný systém novovstavby nie je navrhnutý vhodne v kontexte s prevádzkou múzea. Návrh ako jediný nerieši podzemné parkovanie a priestor I.PP je integrovaný do výstavnej haly na I.NP, čo sťažuje jeho využiteľnosť - pri inštalácii expozície je nevyhnutné používať zdvíhacie plošiny.
Zápisnica z hodnotiaceho zasadnutia poroty: