Na podujatí sa predstaví až 37 vystavovateľov - popredných dodávateľov stavebných materiálov a inovácií s prezentáciou...
Novotvar v prostredí alpskej obce.
Hansgrohe - prémiová značka kúpeľňových riešení, ponúka nadčasový dizajn, technickú precíznosť a udržateľné inovácie...
Využite špeciálnu akciu Internorm: okná za minuloročné ceny a hliníkový kryt úplne zadarmo. Ponuka je časovo obmedzená!
Sumarizácia najdôležitejších inovácií, ktoré redefinujúcich využitie tohto energetického zdroja.
AMPHIBIA 3000 GRIP 1.3 od spoločnosti ATRO predstavuje modernú hydroizolačnú technológiu, ktorá spája vysokú odolnosť,...
Ambiciózne plány EK narazili na ekonomické možnosti domácností v jednotlivých členských štátoch –...
IDEA DOOR od spoločnosti JAP prináša do interiéru čistý minimalistický vzhľad vďaka bezrámovému riešeniu a precíznej...
Kontinuita riešenia od vonkajšieho obkladu až po kovania a kľučky.
Nástenné nadomietkové armatúry Vitus sú mimoriadne vhodné pre rýchlu a efektívnu...
Okenné profily z kompozitného materiálu RAU-FIPRO X od spoločnosti Rehau sú v porovnaní s tradičnými plastovými profilmi mnohonásobne...
Najnovší sortiment stolov pre zariadenie interiérov...
Spojenie moderného dizajnu, funkčnosti a svetla do harmonického architektonického prvku.
Kancelárska budova Baumit v slovinskom Trzine prešla premenou na moderné a udržateľné pracovisko. Architekti kládli dôraz...
Mottom šiesteho ročníku on-line konferencie odborníkov Xella Dialóg je Efektívny návrh budov 2025+: zmeny a riešenia

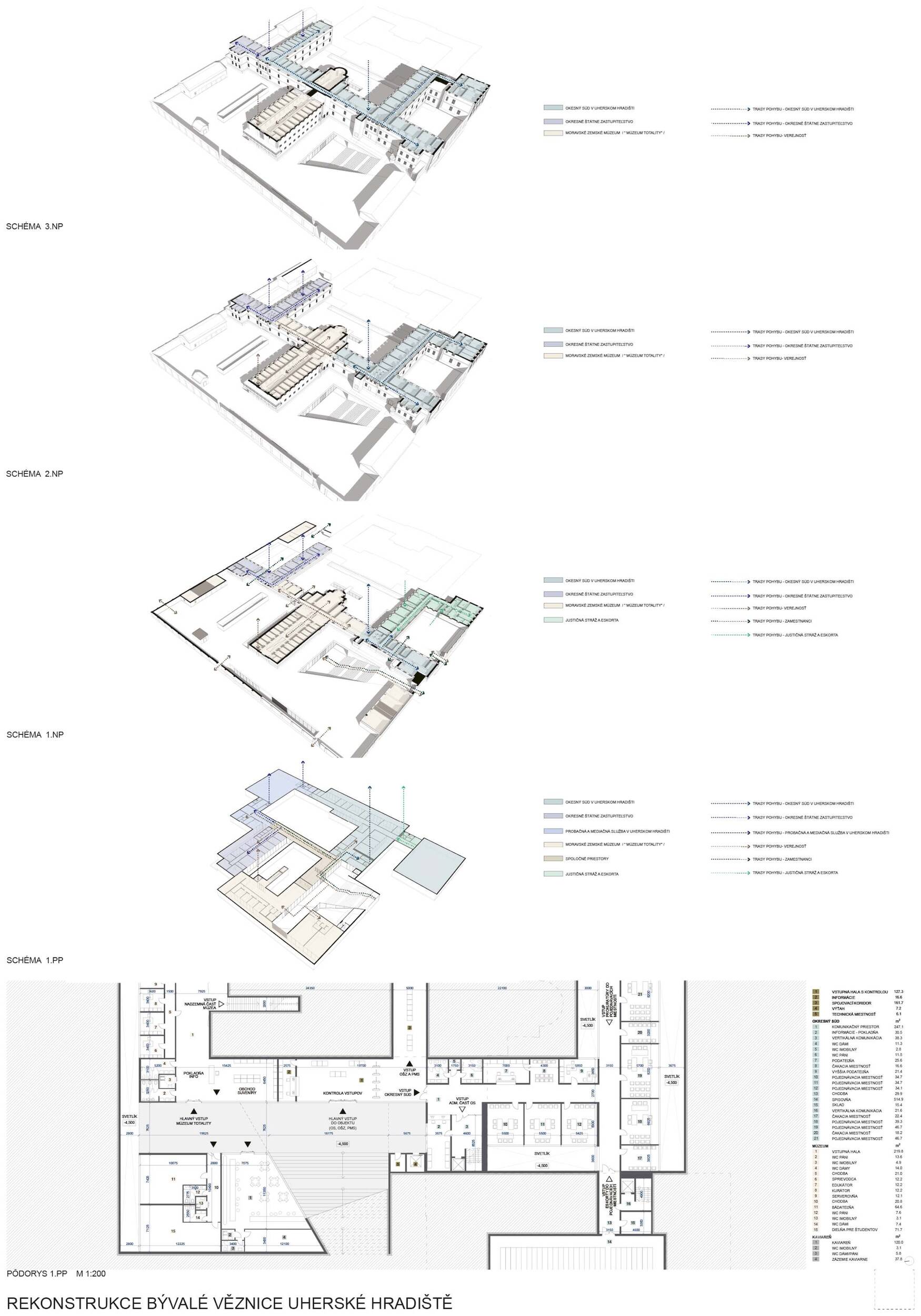
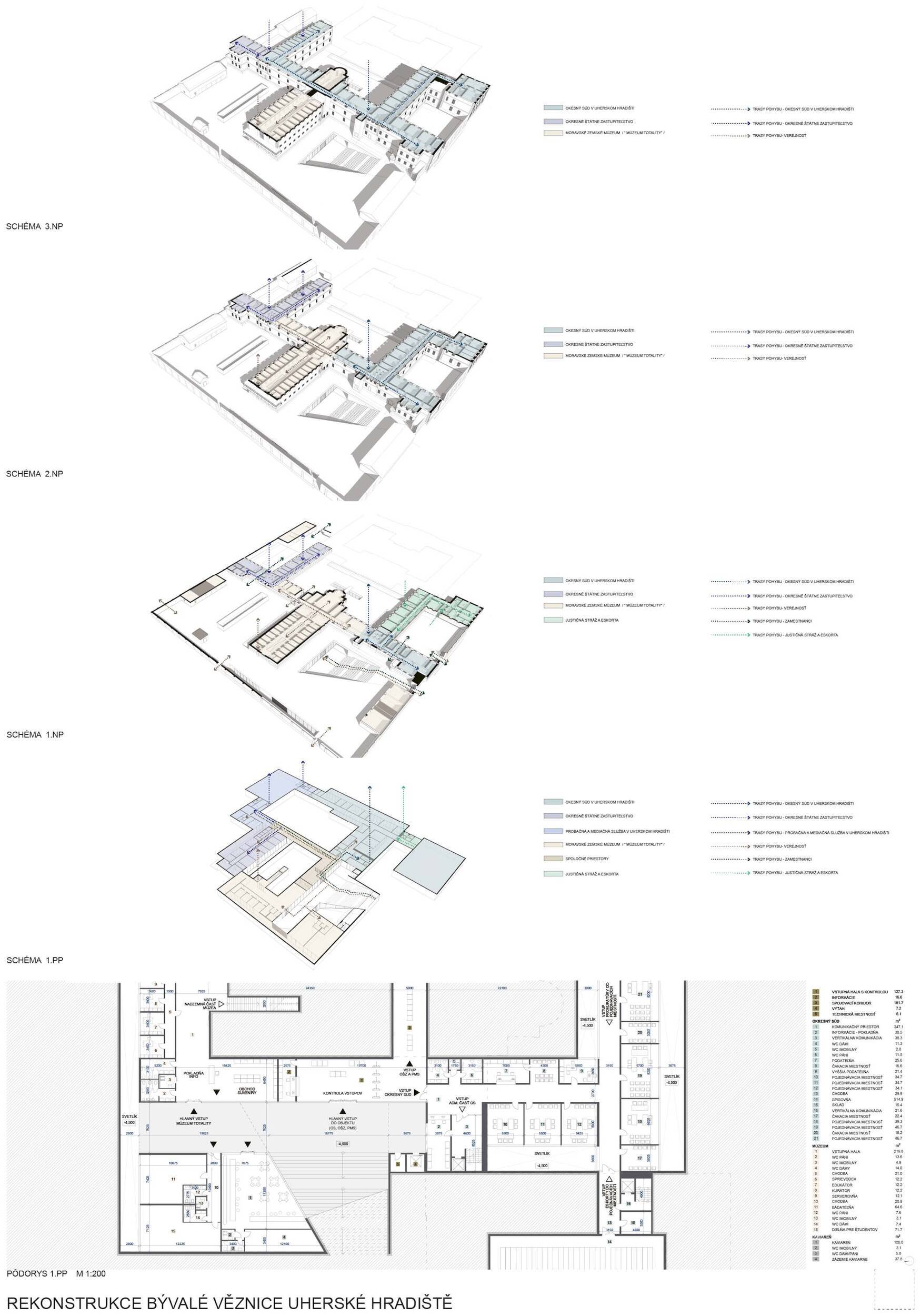
Český Úrad pre zastupovanie štátu vo veciach majetkových vyhlásil v apríli verejnú súťaž na premenu bývalého justičného paláca v Uherskom Hradišti.
Areál je pamiatkovo chránený a bude využitý pre dva základné okruhy funkčnej náplne:
Dôležitou požiadavkou vyhlasovateľa bolo zachovanie autenticity priestorov väznice s nadväznosťou na obdobie 50. rokov 20. storočia (pri zachovaní identity komplexu ako celku - aj s väzbou na pôvodný areál z konca 19. storočia).
Do súťaže sa zapojilo 9 autorských kolektívov. Zvíťazil návrh ateliéru ov architekti. Medzi odmenenými ateliérmi figuruje tím FVA. Porota v zložení Pavel Martinek, Ivo Popelka, Marcela Steinbachová, Juraj Mikulaj, Jan Poksa, Ondřej Hofmeister, Martin Sedláček, Jiří Mitáček a Aleš Holý v prípade bratislavského ateliéru ocenila "záměr po zachování původního výrazu budovy bez nutnosti dostavby."
1.cena (1 340 000,- Kč) - ov architekti
Tím: Jiří Opočenský, Štěpán Valouch, Ondřej Králík,
Krajinný architekt: Jan Sulzer
Spoluautori: Viktor Žák, Anna Blažková, Kateryna Bondarenko
Hodnotenie poroty:
Koncept pěti dvorů je čitelný, funkční a důsledně dotažen. Návrh celkově naplňuje představy o moderní instituci s důrazem na přívětivou komunikaci s občanem. Kapacitní řešení je realistické a dává uživatelům jistotu komfortu a dalšího rozvoje oproti podmínkám, ve kterých dnes fungují. Celkové architektonické řešení, použité materiály i detail veřejného prostoru jsou kultivované, úměrné danému provozu a jsou citlivé k památkově chráněné budově. Dostavby spisoven jsou sice monumentální, jejich náplň však autorům dovoluje užití abstraktní, minimalistické formy, která je ve vztahu k historické budově, akceptovatelná. Přísná symetričnost návrhu ctí původní koncept areálu věznice a nepouští se do kompozičních spekulací. Je otázkou, jestli vstupní prostory soudu a muzea mají být takto přísně identické a podřízené diktátu klasicizující symetrie. Řešení pietního dvora je citlivé, a přestože je schematické, dává uspokojivou představu o kontemplativním charakteru a správně nastaveném přístupu pro další dopracování. Za nevýhodu zvoleného řešení (představený foyer muzea) lze považovat upozadění pietního dvora, které nenabízí jeho přímé propojení mezi muzejním dvorem. Porota zejména oceňuje kvalitně nastavené, životaschopné provozní schéma, u kterého se dá předpokládat možná adaptabilita (ta bude muset být mimo jiné promítnuta do stavebního řešení). Velkým přínosem je jednotné řešení vstupů z dvorní části, které zajistí přirozenou náplň prostranství – dvora, jehož prostupnost by podle názoru poroty měla být nastavena tak, aby byl trvale veřejným a volně dostupným (nikoliv uzavřeným místem s režimem, který z areálu vytvoří uzavřenou a neprostupnou část města.
Súťažné panely:
Vizualizácie:
2. cena (1 005 000,- Kč) - Múčka Veselý architekti
Tím: Radomír Feňo, Ivona Uherková
Hodnotenie poroty:
Originální koncept pojetí perimetru ohradní stěny přinášející nové funkce městu a dávající silnější potenciál využití dvora. Idea prostupující muzeální osy považuje porota za jednu z nejsilnějších stránek tohoto návrhu. Citlivými dostavbami autoři nechávají vyniknout památkově chráněný monumentální objekt a jemnými gesty ho zlidšťují. Porota považuje za nedostatečné řešené vstupní prostory veřejných částí i některé provozní vazby v objektu. Návrh přináší autorské řešení venkovních částí expozic, které by vhodně sloužily pro účely muzea. Historickou budovu nechává vyznít a chová se k ní citlivě, i když by formou přidávání veřejných funkcí mohl dosáhnout důstojnějších vstupních ploch. Návrh patří k ekonomicky přiměřeným návrhům. Kapacitně podhodnocené dispoziční a provozní řešení instituce soudnictví. Koncept jednacích síní umístěných nad sebou a s nedostatečným předsálím a problematickou bezbariérovou dostupností se zdál být nejslabším místem návrhu. Také společná spisovna pro soud i státní zastupitelství je od soudní budovy provozně oddělena, což bylo budoucím uživatelem vyhodnoceno jako problematické řešení. Veřejně přístupné prostory interiéru, svou snahou vměstnat se do stávajících rozměrů objektu, neodpovídají současným standardům a řada jednacích místností neodpovídá svou velikostí zadání stavebního programu. Není prezentována podoba dostavby spisovny do ul. Velehradské.
3. cena (670 000,- Kč) - re:architekti studio
Tím: Ondřej Synek, Jan Vlach, Jiří Žid, David Pavlišta
Spolupráca: Tereza Psotková, Štěpán Psotka, Alžběta Widholmová, Michaela Hudečková, Martin Kunc, Marie Gelová, Sandra Chlebovská, Spolupráce: Pavla Drbalová / Symbio studio
Hodnotenie poroty:
Provozní řešení je bezproblémové, umístění spisoven do podzemí dvorů logické a proveditelné. Kladem návrhu je snaha o jasný dominantní vstup soudu, který areálu vytváří nový jasný vchod na místo toho původního, dnes užívaného školou. Porota zejména u návrhu oceňuje vyváženost řešení, které ve všech ohledech plní požadavky zadání, ve velké míře zachovává památkově chráněnou podobu stavby. Slabinou návrhu tak byla především nepřesvědčivost architektonického výrazu hlavního vstupu. Kombinace šikmé stěny v kontrastu se zaobleným vstupem je k historické budově tvarově těžká.
Odmena - Radka Kurčíková
Tím: Radka Kurčíková, Spolupráce: Martina Gregorová, Lujza Lehocká
Hodnotenie poroty:
Silný koncept přízemních dostaveb představuje jasnou adici ve dvorních částech. Porota však neshledala přesvědčivou kompozici jejich členění, které fragmentuje severní dvůr do několika menších átrií. Tato atria nejsou vzájemně propojena a potírají monumentálnost historického nádvoří. Místo toho jsou návštěvníkům poskytnuty průhledy do úzkých zahrad, kde jistá nepřehlednost je zesílena záměrem husté, neprůchodné zeleně. Porota také vytkla návrhu horší čitelnost prezentace.
Odmena - FVA
Hodnotenie poroty:
Porota oceňuje záměr po zachování původního výrazu budovy bez nutnosti dostavby. Autoři však nedostatečně prezentují způsob využití takto získaných prostranství a tím i oprávněnost finančně a technicky náročného řešení. Problematicky porota vnímá umístění prosvětlujících spár kanceláří v pietním dvoře. Porota dále upozorňuje na komplikovanou proveditelnost technického řešení založeného na těsném celo-obvodového obestavění křídla kaple, cel samotek a širokého poddolování středového křídla historického objektu.
Odmena - Michal Kutálek a Arch. Design
Hodnotenie poroty:
Porota oceňuje čitelné a funkční provozní schéma a snahu autorů o vnesení kulturní funkce do severního dvora. Logika analytického přístupu rekonstrukce předsazením nových, kontrastních objektů je principiálně správná, porota však považuje za problematické vlastní architektonické řešení. Místo deklarované polotransparentnosti, působí spíše těžce. Rovněž proporce přístavby na východní straně je rozsahu, kdy východní křídlo téměř celé zastavuje. Fasády, i přes snahu o jednotný princip, ve výsledku působí nekonzistentně a to zejména u monumentálního vstupu z ulice Politických vězňů. Porota nepovažuje za vhodnou symboliku „světlíků svobody“, které v pietním dvoře přivádějí světlo do soudních síní. Velmi problematicky je hodnocen zájezd do garáží rampou v místě důležitého propojení ulice Politických vězňů s dnešním autobusovým nádražím.
Odmena - PEER COLLECTIVE
Hodnotenie poroty:
Architektonické řešení je kultivované, použité materiály vhodně doplňují architekturu historické stavby, koncept propojujícího uzlu je čitelný a velkorysý. Jedná se o jediný návrh, který řeší provoz pouze s jedním provozním vstupem. Čistotu konceptu však snižuje přízemní diagonála a čelní dostavba muzejního vstupu. Autoři toto zdůvodňují novou vrstvou, odkazující na dříve zde přítomný teror, který zde „nepatří“. Za hlavní problém však porota považuje zakrytí fasády dvorního objektu školy propojující chodbou. Řešení severních dvoru je schematické a nedává představu o jejich využití jako městského parku. To se týká především severovýchodního dvoru, kterým je přístup pouze do pietního nádvoří. Také malé otvory v obvodové zdi neposkytují dostatečnou orientační funkci, že za zdí se nachází rozsáhlý městský park. Otázky udržitelnosti nejsou v návrhu doloženy.
Odmena - DKarchitekti
Tím: David Kudla, Zdeněk Navrátil, Xeniya Pulkrab, Lucie Klepárníková, Jana Raticová, Petr Ciprys, MISS3
Hodnotenie poroty:
Navržené provozní schéma je funkční. Dostavby skryté za zdi bočních nádvoří jsou nerušivé a logicky rozvíjejí plochy vázané na vstupy. Také orientace vstupů ze severního nádvoří je hodnocena pozitivně a zajišťuje prostranství životaschopnou náplň. Problematickým se jeví umístění spisovny soudu mimo jeho provoz, na opačnou stranu areálu. Bylo by však řešitelné reorganizací rozmístění podzemních staveb a garáží. Porota nevyhodnotila pozitivně přístup k řešení parteru, které spoléhá na abstrakci přepisu různých historických stop do druhu povrchů a grafických značek. Bez hledání opodstatněnosti formy odpovídající nové funkci, se jeví takový přístup jako formální a neospravedlňuje například dostatečně potřebu rozsáhlé zadlážděné plochy severovýchodního nádvoří. Kompozice záhonků před vstupem do muzea a zejména „okrasná“ podoba členění pietního nádvoří je vzdálená názoru poroty o představě kontemplativního prostředí. Autoři zde vychází z návratu do dohledané původní podoby nádvoří a pozdější vrstvy (hřiště) naznačují značkou v povrchu. To je v rozporu se záměrem vězeňského prostředí z padesátých let a tragické události jsou na nádvoří zasazeny do jiných „kulis“, než v jakých se odehrávaly. Porota kladně hodnotí velkou míru propracovanosti návrhu.
Odmena - Ondřej Pecháček, Matouš Pluhař, Jaromír Pecháček
Hodnotenie poroty:
Návrh je myšlenkově podnětný, architektonicky kvalitní. Perforace severní obvodové stěny otevírá potenciál návaznosti na území dnešního autobusového nádraží, které se v těchto místech předpokládá redukovat. Ze všech návrhu tak nejvíce propojuje dvůr s okolím, což v tomto případě muže zajistit pojetí dvora jako veřejného, trvale přístupného parku. Jako zásadní problém shledává porota provoz soudu, kde nový průjezd kříží přízemní část a vyžaduje více vstupů. S ohledem na potřebu bezpečnostně zajištěných vrátnic je takové řešení nefunkční. Rovněž východní křídlo vytváří úzkou ulici, jejíž smysluplnost je právě tímto průjezdem podmíněna. Dispoziční řešení soudní přístavby není uspokojivě řešeno, společné prostory kontaktu s veřejností jsou malé, celkové řešení stísněné. Porota vyzdvihuje kvalitně zpracovaný návrh a dobrou čitelnost prezentace.
Podklady: CCEA MOBA