Navrhujte riešenia, ktoré obstoja aj v praxi.! Odborný pohľad na návrhy projektov, ktoré prežijú...
Hansgrohe - prémiová značka kúpeľňových riešení, ponúka nadčasový dizajn, technickú precíznosť a udržateľné inovácie...
Využite špeciálnu akciu Internorm: okná za minuloročné ceny a hliníkový kryt úplne zadarmo. Ponuka je časovo obmedzená!
Na podujatí sa predstaví až 37 vystavovateľov - popredných dodávateľov stavebných materiálov a inovácií s prezentáciou...
Sumarizácia najdôležitejších inovácií, ktoré redefinujúcich využitie tohto energetického zdroja.
AMPHIBIA 3000 GRIP 1.3 od spoločnosti ATRO predstavuje modernú hydroizolačnú technológiu, ktorá spája vysokú odolnosť,...
Ambiciózne plány EK narazili na ekonomické možnosti domácností v jednotlivých členských štátoch –...
IDEA DOOR od spoločnosti JAP prináša do interiéru čistý minimalistický vzhľad vďaka bezrámovému riešeniu a precíznej...
Kontinuita riešenia od vonkajšieho obkladu až po kovania a kľučky.
Nástenné nadomietkové armatúry Vitus sú mimoriadne vhodné pre rýchlu a efektívnu...
Okenné profily z kompozitného materiálu RAU-FIPRO X od spoločnosti Rehau sú v porovnaní s tradičnými plastovými profilmi mnohonásobne...
Najnovší sortiment stolov pre zariadenie interiérov...
Spojenie moderného dizajnu, funkčnosti a svetla do harmonického architektonického prvku.
Kancelárska budova Baumit v slovinskom Trzine prešla premenou na moderné a udržateľné pracovisko. Architekti kládli dôraz...
Mottom šiesteho ročníku on-line konferencie odborníkov Xella Dialóg je Efektívny návrh budov 2025+: zmeny a riešenia

Vytvorenie cesty, ktorá vedie návštevníkov k átriu ako ku centru pokoja a rovnováhy má hlbší význam. Tento dizajn odráža cestu osobného rastu a hľadania vnútornej rovnováhy. Práca s prirodzeným svetlom, prechodnými priestormi alebo rôznymi materiálmi vytvára pocit prechodu, kde átrium slúži ako bod, kde človek dosiahne vnútorný mier
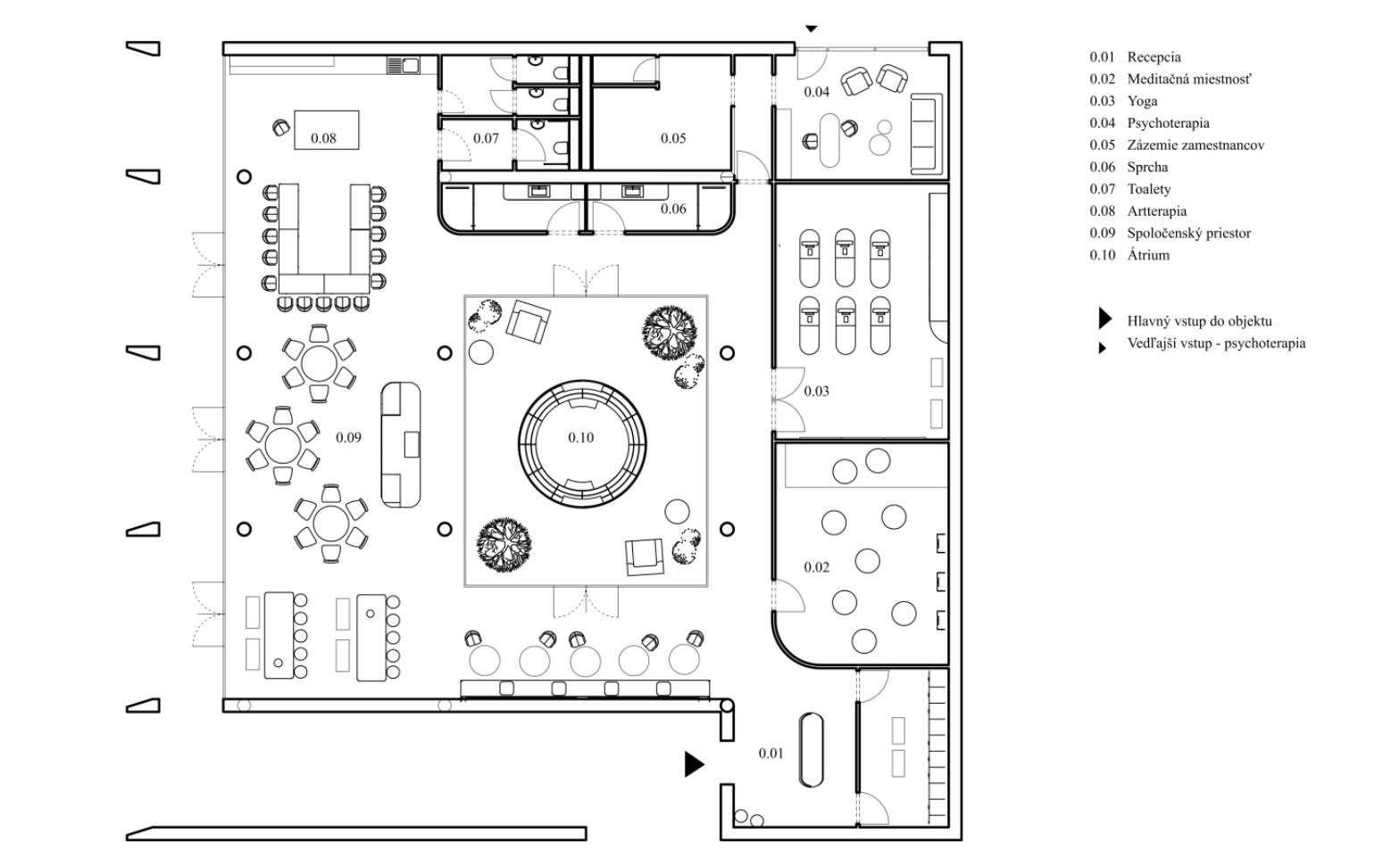
Zákazník vstupuje do centra hlavným vchodom orientovaným na južnú stranu. Vstupná zóna vedie priamo do recepcie, ktorá slúži ako hlavný bod prvého kontaktu.
Dizajn recepcie je minimalistický, ale vizuálne príťažlivý vďaka dizajnérskym svietidlám Requiem Globe od autora Lee Broom, ktoré zdôrazňujú jej centrálnu funkciu.
Za recepciou sa nachádzajú dvere vedúce do šatne, ktorá je vybavená praktickými skrinkami na osobné veci, lavičkami z dreva a zrkadlom, ktoré opticky rozširuje priestor a dodáva mu vzdušnosť.
Po pravej strane sa nachádza meditačná miestnosť, určená na relaxáciu a tiché rozjímanie. Dominantným prvkom je pódium, ktoré slúži lektorom počas prednášok a skupinových sedení. Na jednej zo stien sa nachádza policový systém navrhnutý na praktické uloženie pufov na sedenie, čo umožňuje flexibilné usporiadanie priestoru podľa aktuálnych potrieb.
Ďalšia miestnosť po pravej strane je miestnosť na jogu, ktorá zároveň slúži na rôzne druhy pohybových a terapeutických aktivít. Priestor je vybavený veľkými zrkadlami podporujúcimi správne držanie tela počas cvičení, lavičkami na cvičenie a pomôckami od firmy Javorina (séria Sana Gym), ktoré dopĺňajú charakter interiéru.
Nasleduje miestnosť pre psychológa, ktorá je z dôvodu svojej funkcie oddelená dverami, aby bola dostupná aj mimo otváracích hodín centra. Priestor je navrhnutý s dôrazom na súkromie a pohodlie – nachádza sa tu francúzske okno, ktoré zabezpečuje dostatok prirodzeného svetla, pohodlná sedačka, knižnica pre psychológa a relaxačné kreslá pre individuálne sedenia s klientmi. Oproti miestnosti pre psychológa sa nachádza zázemie pre personál, ktoré slúži na administratívne účely a odpočinok zamestnancov.
Z časti sociálnych zariadení sa presúvame do spoločenskej zóny, ktorá podporuje interakciu a komunitný život. Tento priestor zahŕňa:
• Ateliér pre kreatívnu terapiu, kde môžu návštevníci rozvíjať svoje umelecké schopnosti,
• Kaviareň so sedením, ktorá je navrhnutá ako samoobslužná s barovým pultom na prípravu nápojov,
• Sedenie so živými stromami zakomponovanými priamo do stola, čím sa prehlbuje prepojenie s prírodou aj v interiéri.
Átrium slúži nielen ako miesto pre relax, ale aj ako dôležitý bod pre orientáciu v priestore, ktorý prirodzene vedie pohyb klientov a zároveň ponúka bezpečné prostredie. Jeho súčasťou môžu byť aj menšie komunitné stretnutia v prostredí, ktoré nepôsobí uzavreto ani rušivo.
Átrium je navrhnuté ako pokojné a otvorené miesto uprostred dispozície, ktoré prepája jednotlivé funkčné celky a zároveň vytvára samostatnú oddychovú zónu. Jeho umiestnenie aj charakter z neho robia priestor na spomalenie, upokojenie a kontakt s prírodou. V strede átria sa nachádza zapustené kruhové sedenie. Tento kruhový formát je vhodný pre spoločné rozhovory, ale rovnako aj pre individuálne tiché chvíle.
Vegetácia, prírodné materiály a možnosť posedieť si na čerstvom vzduchu v chránenej časti objektu majú pozitívny vplyv na psychickú pohodu. Vizuálne prepojenie átria s interiérom cez veľké presklené plochy zároveň umožňuje neustály kontakt s exteriérom aj tým, ktorí sa nachádzajú vo vnútri.