Advertorial

Výmena okien: najrýchlejšia cesta k úsporám energie

Moderné strešné okná ponúkajú pohodlné ovládanie aj lepšiu ochranu domácnosti počas celého roka.

Skryté zárubne: Minimalistický prvok vo vývoji moderných interiérov

Objavte riešenia Dorsis, ktoré spájajú minimalistický vzhľad s vysokou variabilitou, funkčnosťou a spracovaním na mieru.

Dom s dvomi Bytmi, Budapešť

Súčasné bývanie v prostredí budapeštianskej vilovej štvrte.

Dvere DIVA – interiér nie je miesto, interiér je pocit

Rad interiérových dverí DIVA DOOR od spoločnosti J.A.P. ponúka čistý dizajn a variabilné riešenia pre súčasné interiéry.

95 rokov Internorm: 30 miliónov okien a dverí z Rakúska

Európska značka okien oslavuje jubileum: za 95 rokov sa vyvinula na najväčšiu medzinárodne pôsobiacu okennú značku a inovačného...

Pozvánka na 2. ročník stavebného veľtrhu BigMarket na Slovensku

Na podujatí sa predstaví až 37 vystavovateľov - popredných dodávateľov stavebných materiálov a inovácií s prezentáciou...

Hotel Hirschen Spa House, Rakúsko

Novotvar v prostredí alpskej obce.

Vytvorte si kúpeľňu snov: dizajnové riešenie od značky hansgrohe

Hansgrohe - prémiová značka kúpeľňových riešení, ponúka nadčasový dizajn, technickú precíznosť a udržateľné inovácie...

Okná Internorm za minuloročné ceny + hliníkový kryt zdarma!

Využite špeciálnu akciu Internorm: okná za minuloročné ceny a hliníkový kryt úplne zadarmo. Ponuka je časovo obmedzená!

Moderné plynové technológie: Efektivita a inovácie pre 21. storočie

Sumarizácia najdôležitejších inovácií, ktoré redefinujúcich využitie tohto energetického zdroja.

Utesňovanie spodných stavieb pomocou hydro-aktívnej fólie AMPHIBIA.

AMPHIBIA 3000 GRIP 1.3 od spoločnosti ATRO predstavuje modernú hydroizolačnú technológiu, ktorá spája vysokú odolnosť,...

Dekarbonizácia individuálneho vykurovania domácností – Green Deal evolučne a nie revolučne

Ambiciózne plány EK narazili na ekonomické možnosti domácností v jednotlivých členských štátoch –...

Minimalistické dvere IDEA – technická precíznosť a čistota prevedenia

IDEA DOOR od spoločnosti JAP prináša do interiéru čistý minimalistický vzhľad vďaka bezrámovému riešeniu a precíznej...

Dom s dvomi Bytmi, Budapešť

Súčasné bývanie v prostredí budapeštianskej vilovej štvrte.
Diela
Red 319.03.2026
15890+32
Dom s dvomi Bytmi, Budapešť
Autori: Zoltán Kabdebó, Dániel N. VargaNávrh: 2021 - 2022Realizácia: 2023 - 2024Adresa: XII. obvod , Budapešť, MaďarskoPublikované: 19. marec 2026

Architekti Zoltán Kabdebó a Dániel N. Varga z ateliéru A Fiúk Építész Stúdió navrhli v 12. budapeštianskom obvode viacgeneračné bývanie s dvoma bytmi. Projekt pracuje s priestorovými možnosťami úzkeho svahovitého pozemku a s kontrastom použitých materiálov.

Dom je osadený v prostredí starej zelene, vilovej zástavby z prelomu storočí, školskej architektúry z obdobia socializmu a záhrad západnej časti Budapešti. V tomto kontexte pôsobí ako súčasný vstup do existujúcej štruktúry.

Na pozemku stál niekoľko desaťročí pôvodný rodinný dom, ktorý bol v roku 2022 asanovaný. Novostavba rozdeľuje bývanie na dva samostatné celky. Na prízemí sa nachádza byt s priamym kontaktom so záhradou. Väčší byt je situovaný na dvoch horných podlažiach. Obytné priestory rozširuje balkón pri obývacej izbe a strešná terasa s výhľadom na mesto. Na streche je umiestnený mierne vysunutý kubus s rodičovskou a wellness zónou.

Stavba je komponovaná ako dvojica odlíšených objemov. Spodnú časť definuje keramický obklad. Oba objemy sú voči sebe mierne posunuté, čím vznikajú presahy, zárezy a kryté exteriérové priestory. Výraz domu stojí na kontraste hmoty, materiálu a detailu.

Hliníkový fasádny systém PREFA Prefalz antracitovej farby pôsobí v protiklade oproti hmotnejšej "murovanej" tehlovej fasáde ľahšie a technickejšie.

Kontrast zvýrazňuje aj spôsob využitia materiálov. Horizontálna kompozícia tehlového obkladu pôsobí plasticky vďaka hre s natočením jednotlivých prvkov. Hliníkový plášť je formovaný pravidelným rytmom stojatých drážok a opticky prechádza z atiky do kubickej strešnej hmoty. V miestach zmeny smeru sú plechové pásy rozvinuté do vejárovitého tvaru, pričom v rohoch sa stojaté drážky zbiehajú hrotmi k sebe. Krátke atikové pásy preto museli byť strihané a ohýbané s vysokou presnosťou. 

Tehlová fasáda ukrýva železobetónovú nosnú konštrukciu s výplňou z pórobetónu. Prevetrávaná fasáda je zhotovená obdobne ako strešný plášť, s dvojitou stojatou drážkou v rohoch. Prechodové detaily boli riešené s dôrazom na remeselnú precíznosť. Vnútorný systém odvodnenia zároveň eliminuje viditeľné technické prvky na fasáde.

V interiéri sa uplatnil mramor, prírodný kameň a svetlý dub. 

 

Foto: Croce & Wir
Foto: Croce & Wir
Foto: Croce & Wir
Foto: Croce & Wir
Foto: Croce & Wir
Foto: Croce & Wir
Foto: Croce & Wir
Foto: Croce & Wir
Foto: Croce & Wir
Foto: Croce & Wir
Foto: Croce & Wir
Foto: Croce & Wir
Foto: Croce & Wir
Foto: Croce & Wir
Foto: Croce & Wir
Foto: Croce & Wir
Foto: Croce & Wir
Foto: Croce & Wir
Foto: Croce & Wir
Foto: Croce & Wir
Foto: Croce & Wir
Foto: Croce & Wir
Foto: Croce & Wir
Foto: Croce & Wir
Foto: Croce & Wir
Situácia
SituáciaAutor: A Fiúk Építész Stúdió
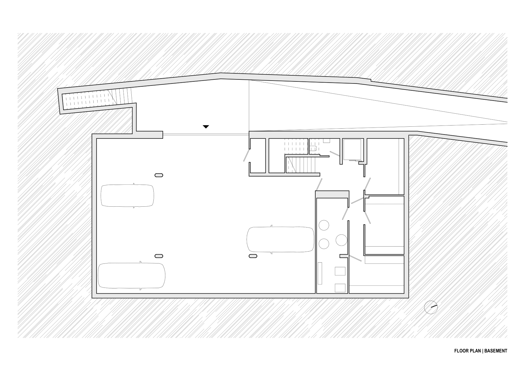
Pôdorys suterénu
Pôdorys suterénuAutor: A Fiúk Építész Stúdió
Pôdorys 1. NP
Pôdorys 1. NPAutor: A Fiúk Építész Stúdió
Pôdorys 2. NP
Pôdorys 2. NPAutor: A Fiúk Építész Stúdió
Pôdorys 3. NP
Pôdorys 3. NPAutor: A Fiúk Építész Stúdió
Axonometria
AxonometriaAutor: A Fiúk Építész Stúdió
Axonometria
AxonometriaAutor: A Fiúk Építész Stúdió
Vizualizácia
VizualizáciaAutor: A Fiúk Építész Stúdió

Podklady: PREFA Aluminiumprodukte
Ateliér: A Fiúk Építész Stúdió
Použité materiály a riešenia: fasádny systém PREFALZ vo farbe P.10 - antracitová
Fotografie: Croce & Wir

Poloha diela

Zoltán Kabdebó
Dániel N. Varga

Súvisiace články

Vložené
16. marec 2026
0
1589
Hlavný obsahHlavný obsah
Čakajte prosím