Advertorial

Pozvánka na 2. ročník stavebného veľtrhu BigMarket na Slovensku

Na podujatí sa predstaví až 37 vystavovateľov - popredných dodávateľov stavebných materiálov a inovácií s prezentáciou...

Hotel Hirschen Spa House, Rakúsko

Novotvar v prostredí alpskej obce.

Vytvorte si kúpeľňu snov: dizajnové riešenie od značky hansgrohe

Hansgrohe - prémiová značka kúpeľňových riešení, ponúka nadčasový dizajn, technickú precíznosť a udržateľné inovácie...

Okná Internorm za minuloročné ceny + hliníkový kryt zdarma!

Využite špeciálnu akciu Internorm: okná za minuloročné ceny a hliníkový kryt úplne zadarmo. Ponuka je časovo obmedzená!

Moderné plynové technológie: Efektivita a inovácie pre 21. storočie

Sumarizácia najdôležitejších inovácií, ktoré redefinujúcich využitie tohto energetického zdroja.

Utesňovanie spodných stavieb pomocou hydro-aktívnej fólie AMPHIBIA.

AMPHIBIA 3000 GRIP 1.3 od spoločnosti ATRO predstavuje modernú hydroizolačnú technológiu, ktorá spája vysokú odolnosť,...

Dekarbonizácia individuálneho vykurovania domácností – Green Deal evolučne a nie revolučne

Ambiciózne plány EK narazili na ekonomické možnosti domácností v jednotlivých členských štátoch –...

Minimalistické dvere IDEA – technická precíznosť a čistota prevedenia

IDEA DOOR od spoločnosti JAP prináša do interiéru čistý minimalistický vzhľad vďaka bezrámovému riešeniu a precíznej...

Dom s výhľadom na údolie, Dlouhý Most (ČR)

Kontinuita riešenia od vonkajšieho obkladu až po kovania a kľučky.

Schell Vitus – osvedčené riešenie pre sprchy a umývadlá vo verejnom sektore s viac ako desaťročnou tradíciou

Nástenné nadomietkové armatúry Vitus sú mimoriadne vhodné pre rýchlu a efektívnu...

Kompozitné okná predstavujú súčasnosť a budúcnosť

Okenné profily z kompozitného materiálu RAU-FIPRO X od spoločnosti Rehau sú v porovnaní s tradičnými plastovými profilmi mnohonásobne...

Myotis - stoly 2025

Najnovší sortiment stolov pre zariadenie interiérov...

Priemyselné sklenené priečky Dorsis Digero: svetelné rozhranie pre moderné interiéry

Spojenie moderného dizajnu, funkčnosti a svetla do harmonického architektonického prvku.

Význam prirodzeného svetla pre moderné a flexibilné pracovné prostredie

Kancelárska budova Baumit v slovinskom Trzine prešla premenou na moderné a udržateľné pracovisko. Architekti kládli dôraz...

Konferencia Xella Dialóg predstaví novinky a trendy v stavebníctve

Mottom šiesteho ročníku on-line konferencie odborníkov Xella Dialóg je Efektívny návrh budov 2025+: zmeny a riešenia

Bivacco Brédy, Valle d'Aosta, Taliansko

Len to najnutnejšie, s minimálnymi zásahmi do prostredia a kompaktným hliníkovým plášťom.
Diela
Red 320.03.2023
12310+38
Bivacco Brédy, Valle d'Aosta, Taliansko
Autori: Chiara Tessarollo, Skye Sturm, Facundo ArboitSpolupráca: Roberto Dini, Politecnico di Torino, Giancarlo Casella (statika)Podlažná plocha: ~14 m2Investičný náklad: 70 000 ≈ 5 000 € / m2Návrh: 2020 - 2020Realizácia: 2021 - 2022Adresa: Comba di Vertosan, RakúskoPublikované: 20. marec 2023

Príspevok k aktuálnej téme horskej architektúry. Útulňa v Talianskych alpách vzišla z internej súťaže v rámci workshopu mladých architektov.

V porovnaní s aktuálnymi projektmi na našom území, ktoré vychádzajú z klasických archetypov, zvolili architekti pre drsnejšie alpské podmienky kompaktnú elementárnu formu. Tá má najmä kvôli efektívnosti výstavby, prevádzky a nárokom na údržbu čoraz väčšie zastúpenie medzi celkom šiestimi stovkami alpských chát a útulní.

Kontext a lokalita

Nová útulňa Bivacco Brédy vyrástla na južnom úbočí údolia Comba di Vertosan, na planine v nadmorskom výške viac ako 2500 m n. m. Drobný bivak, ktorý nesie meno politika a horolezca Claudia Brédyho, stojí v blízkosti dvoch malých alpských jazier Laghi Di Dziule.

Za návrhom bivaku stojí trio mladých architektov Skye Sturm, Facundo Arboit a Chiara Tessarollo, ktorí sa zúčastnili kurzu a workshopu YACademy. Projekt bol pod záštitou rodiny Claudia Brédy podporený aj talianskym kultúrnym spolkom Cantieri d'alta quota.

Foto: Croce & WIR
Foto: Croce & WIR
Foto: Croce & WIR

Osadenie objektu

Architekti situovali bivak na hranu prírodnej terasy, s nerušenými výhľadmi do údolia a na protiľahlé “štvortisícovky”. Presklenie v čele objektu smeruje k siluete hory Gran Paradiso. Objekt je do podložia, tvoreného kompaktnou žulou, kotvený iba bodovo na oceľových stojkách. Tie nesú roznášací rošt, zváraný z hranatých pozinkovaných profilov. masívna konštrukcia tvorí základ pre ľahkú drevostavbu a umožňuje jej vykonzolovanie. Zvolené riešenie zároveň minimalizuje zásahy do vysokohorského prostredia a umožňuje prípadné odstránenie stavby takmer bezo zvyšku. Vstup so zvýšenej úrovne rieši dôležité problémy zimnej prevádzky a zabraňuje vzniku závejov v zádverí. 

Autorská skica
Autorská skicaAutor: BCW Collective
Koncept
KonceptAutor: BCW Collective
Koncept
KonceptAutor: BCW Collective
Koncept
KonceptAutor: BCW Collective
Koncept
KonceptAutor: BCW Collective
Pôvodný zámer skladby objektu z trojice priestorových modulov sa vo výsledku ukázal ako nereálny. Stavba bola na mieste zložená z prefabrikovaných plošných stenových modulov.
Pôvodný zámer skladby objektu z trojice priestorových modulov sa vo výsledku ukázal ako nereálny. Stavba bola na mieste zložená z prefabrikovaných plošných stenových modulov.Autor: BCW Collective
Situácia
SituáciaAutor: BCW Collective
Schéma usporiadania priestoru
Schéma usporiadania priestoruAutor: BCW Collective
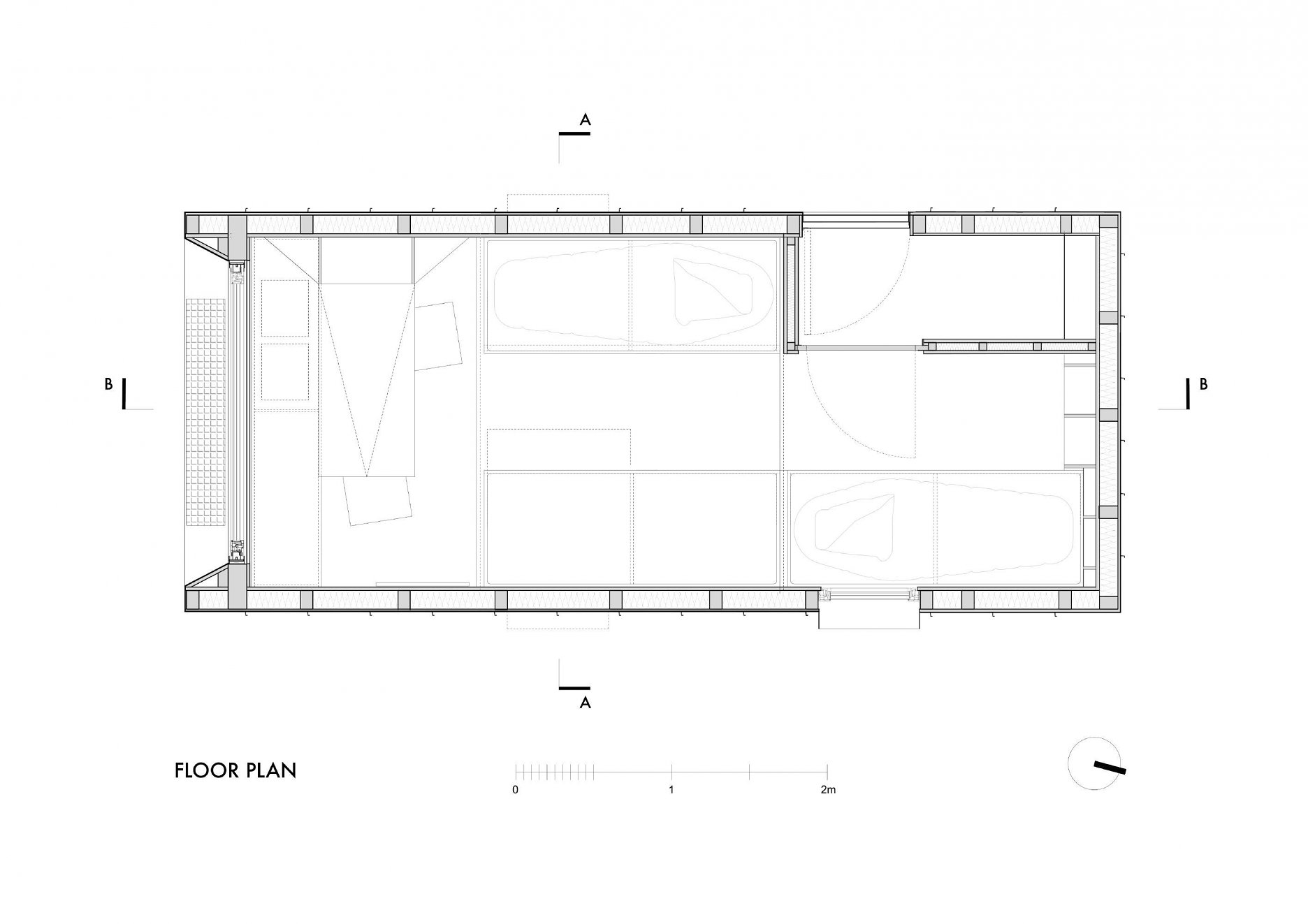
Pôdorys
PôdorysAutor: BCW Collective

Trvácny obvodový plášť dimenzovaný pre extrémne podmienky

Pohľadovú vrstvu zo strany exteriéru tvorí pravidelný raster 32 centimetrov širokých pásov hliníkovej krytiny systému PREFA Prefalz. Architekti zvolili ľahký a trvácny materiál, najmä vzhľadom k jeho odolnosti v náročných vysokohorských podmienkach, jednoduchý transport na miesto vrtuľníkom a nenáročnú manipuláciu pri kompletovaní stavby. Antracitový povrch falcovaného plechu, ktorý je použitý aj na mierne sa zvažujúcej pultovej streche, maximalizuje pasívne solárne zisky. Obvodový plášť z južnej strany otvára rozsiahle fixné zasklenie s izolačným trojsklom. Sendvičová konštrukcia z masívnych drevených prvkov je zateplená izoláciou z minerálnej vlny. Fasádu architekti dimenzovali na extrémne zaťaženie vetrom.

Štandardným postupom pri obdobných projektoch je realizácia kompletnej stavby vo výrobnej hale. Ani v prípade útulne Brédy to nebolo inak. Hotová konštrukcia bola následne opäť rozobratá na jednotlivé plošné dielce - panely, ktoré boli vrtuľníkom dopravené na miesto stavby. Dokonca aj opláštenie bočných stien zvitkovým plechom prefalz bolo realizované hlboko v údolí. Finálne spojenie hliníkovej krytiny a pokládka strešných pásov však už prebehla priamo na mieste, čo ale vzhľadom na tvárnosť hliníkového plechu a jeho poddajnosť nebol žiadny problém ani pri nižších teplotách vo vysokohorskom prostredí.

Rozložená axonometria
Rozložená axonometriaAutor: BCW Collective
Pozdĺžny rez
Pozdĺžny rezAutor: BCW Collective
Priečny rez
Priečny rezAutor: BCW Collective
Južný pohľad
Južný pohľadAutor: BCW Collective
Západný pohľad
Západný pohľadAutor: BCW Collective
Severný pohľad
Severný pohľadAutor: BCW Collective
Východný pohľad
Východný pohľadAutor: BCW Collective
Foto: Croce & WIR
Foto: Croce & WIR
Foto: Croce & WIR
Foto: Croce & WIR
Foto: Croce & WIR
Foto: Croce & WIR
Foto: Croce & WIR
Foto: Croce & WIR
Foto: Croce & WIR
Foto: Croce & WIR
Foto: Croce & WIR
Foto: Croce & WIR
Foto: Croce & WIR
Foto: Croce & WIR
Foto: Croce & WIR
Foto: Croce & WIR

Interiér v duchu tradície alpských chát

Tmavej obálke sekunduje neosvetlené svetlé drevo v interiéri. Odhalené časti drevenej konštrukcie dopĺňajú podlahy a stropy z rovnakého materiálu. Teplý, robustný a haptický povrch majú tiež vnútorné rámy okien, alebo zariadenie spoločného priestoru. Optimálne využitie priestoru zabezpečujú sklopné lôžka, ktoré nezaberajú priestor počas dňa. 

Projekt s rozpočtom 70 000 € ponúka turistom len to najnutnejšie zázemie. Okrem šiestich lôžok tu nájdete aj priestor na občerstvenie a čítanie a malý sklad. 

Foto: Croce & WIR
Foto: Croce & WIR
Foto: Croce & WIR
Foto: Croce & WIR
Foto: Croce & WIR
Foto: Croce & WIR
Foto: Croce & WIR
Foto: Croce & WIR
Foto: Croce & WIR
Foto: Croce & WIR
Foto: Croce & WIR
Foto: Croce & WIR
Foto: Croce & WIR
Foto: Croce & WIR
Foto: Croce & WIR
Foto: Croce & WIR
Foto: Croce & WIR
Foto: Croce & WIR
Foto: Croce & WIR

Vizualizácie víťazného súťažného návrhu z roku 2020. 

Vizualizácia víťazného súťažného návrhu
Vizualizácia víťazného súťažného návrhu Autor: BCW Collective
Vizualizácia víťazného súťažného návrhu
Vizualizácia víťazného súťažného návrhu Autor: BCW Collective
Vizualizácia víťazného súťažného návrhu
Vizualizácia víťazného súťažného návrhu Autor: BCW Collective
Vizualizácia víťazného súťažného návrhu
Vizualizácia víťazného súťažného návrhu Autor: BCW Collective
2128
Youtube

Podklady: PREFA ALUMINIUMPRODUKTE, BCW Collective

Použité materiály a riešenia: hliníková krytina PREFA Prefalz vo farbe P.10 “antracitová” na fasádach a streche.

Poloha diela

Chiara Tessarollo
Skye Sturm
Facundo Arboit

Súvisiace články

Vložené
13. marec 2023
0
1231
Hlavný obsahHlavný obsah
Čakajte prosím