Advertorial

Hotel Hirschen Spa House, Rakúsko

Novotvar v prostredí alpskej obce.

Vytvorte si kúpeľňu snov: dizajnové riešenie od značky hansgrohe

Hansgrohe - prémiová značka kúpeľňových riešení, ponúka nadčasový dizajn, technickú precíznosť a udržateľné inovácie...

Okná Internorm za minuloročné ceny + hliníkový kryt zdarma!

Využite špeciálnu akciu Internorm: okná za minuloročné ceny a hliníkový kryt úplne zadarmo. Ponuka je časovo obmedzená!

Pozvánka na 2. ročník stavebného veľtrhu BigMarket na Slovensku

Na podujatí sa predstaví až 37 vystavovateľov - popredných dodávateľov stavebných materiálov a inovácií s prezentáciou...

Moderné plynové technológie: Efektivita a inovácie pre 21. storočie

Sumarizácia najdôležitejších inovácií, ktoré redefinujúcich využitie tohto energetického zdroja.

Utesňovanie spodných stavieb pomocou hydro-aktívnej fólie AMPHIBIA.

AMPHIBIA 3000 GRIP 1.3 od spoločnosti ATRO predstavuje modernú hydroizolačnú technológiu, ktorá spája vysokú odolnosť,...

Dekarbonizácia individuálneho vykurovania domácností – Green Deal evolučne a nie revolučne

Ambiciózne plány EK narazili na ekonomické možnosti domácností v jednotlivých členských štátoch –...

Minimalistické dvere IDEA – technická precíznosť a čistota prevedenia

IDEA DOOR od spoločnosti JAP prináša do interiéru čistý minimalistický vzhľad vďaka bezrámovému riešeniu a precíznej...

Dom s výhľadom na údolie, Dlouhý Most (ČR)

Kontinuita riešenia od vonkajšieho obkladu až po kovania a kľučky.

Schell Vitus – osvedčené riešenie pre sprchy a umývadlá vo verejnom sektore s viac ako desaťročnou tradíciou

Nástenné nadomietkové armatúry Vitus sú mimoriadne vhodné pre rýchlu a efektívnu...

Kompozitné okná predstavujú súčasnosť a budúcnosť

Okenné profily z kompozitného materiálu RAU-FIPRO X od spoločnosti Rehau sú v porovnaní s tradičnými plastovými profilmi mnohonásobne...

Myotis - stoly 2025

Najnovší sortiment stolov pre zariadenie interiérov...

Priemyselné sklenené priečky Dorsis Digero: svetelné rozhranie pre moderné interiéry

Spojenie moderného dizajnu, funkčnosti a svetla do harmonického architektonického prvku.

Význam prirodzeného svetla pre moderné a flexibilné pracovné prostredie

Kancelárska budova Baumit v slovinskom Trzine prešla premenou na moderné a udržateľné pracovisko. Architekti kládli dôraz...

Konferencia Xella Dialóg predstaví novinky a trendy v stavebníctve

Mottom šiesteho ročníku on-line konferencie odborníkov Xella Dialóg je Efektívny návrh budov 2025+: zmeny a riešenia

Rekonštrukcia a dostavba Vrbatovej búdy (ČR)

Život prináša často požiadavky na úpravy pôvodných objektov v cennom krajinnom prostredí. Ťažké architektonické zadanie, cieľom ktorého by mala byť nevyhnutná modernizácia vrátane zachovania všetkých pôvodných hodnôt.
Diela
Red 319.01.2017
12520+22
Rekonštrukcia a dostavba Vrbatovej búdy (ČR)
Autori: Ing. arch. Tomáš Hradečný, Ing. arch. Martin ProkšSpolupráca: Ing. arch. Benedikt Markel, Ing. arch. Lukáš Zimandl, Ing. arch. Klára Hradečná, Ing. Jan Kolář (stavebná časť)Návrh: 2007 - 2013Realizácia: 2009 - 2015Adresa: Vítkovice v Krkonoších , Česká republikaPublikované: 19. január 2017

Jeden z možných príkladov, ako na to išli v susednej Českej republike si dnes môžete pozrieť v nasledujúcom článku. Samozrejme, spôsobov a foriem, ako uchopiť podobné zadanie je množstvo - a môžu byť aj úplne iné.

Iba trošku zamrzí, ak sa pozrieme do domáceho hrnca, že u nás málokedy takéto zadania chápu investori ako architektonické, kultúrne a krajinárske výzvy. Zriedka ich komplexne navrhujú bravúrni architekti. Väčšinou sa (v lepšom prípade) zadávajú ako rutinné stavebné diela. Stačí napríklad navštíviť najväšie lyžiarske stredisko Chopok a človek získa obraz o podobných realizáciách u nás, napr. dostavba "Rotundy", Kamennej chaty alebo stanice lanovky pri hoteli Kosodrevina... O tom, čo vzniká "dolu" v blízkosti lanoviek a na prístupových cestách väčšiny horských stredísk sa radšej netreba zmieňovať, lebo sú to nepomenovateľné a neuchopiteľné "diela". O hoteli Kosodrevina takisto radšej teraz pomlčíme, lebo toto výborné dielo modernej architektúry od Miroslava Begáňa patrí (patrilo) k tým nemnohým realizáciám, na ktorých nebolo treba robiť nič, iba ich pietne udržiavať v pôvodnej podobe. Výborné architektonické dielo sa postupne stáva karikatúrou toho, čo malo byť chránenou pamiatkou modernej architektúry.

Vrbatova búda v Krkonošiach je našťastie opačný príklad. Prístavba s novými funkciami je zapustená v podstavci, pod pôvodnou vyhliadkovou terasou. Najvýraznejším prvkom je nová betónová vstupná časť, navrhnutá tak, aby prežila roky bez zásahu. Projekt ateliéru IXA je nominovaný v aktuálnom ročníku ceny Mies Van Der Rohe Award.

Situácia

Rekonštruovaný objekt Vrbatovej búdy a jej betónová prístavba sú situované v Krkonošskom národnom parku vo výške 1400 m n. m.

Situácia
Situácia
Foto: Benedikt Markel

Zadanie

Vrbatova búda bola realizovaná podľa návrhu architekta Vladimíra Šíra na začiatku šesťdesiatych rokov 20. storočia v tzv. Akcii "Z" (neplatená pracovná činnosť obyvateľov). Pôvodne uvažovaná funkcia základne Horskej služby s občerstvením a nocľahárňou bola čoskoro nahradená prevádzkou Interhotel Krkonoše. V drsných podmienkach na hrebeni Krkonôš si bez zásadnej údržby zachovala svoju pevnú a prirodzenú formu. Stavebné úpravy mali podľa zadania nového majiteľa riešiť okrem nutnej sanácie tiež rozšírenie prevádzky reštaurácie o priestor bývalej terasy. Na mieste kiosku so zastávkou autobusu mala vzniknúť novostavbu bufetu, infocentra KRNAP a verejných toaliet. Niekoľkoročný proces hľadania optimálneho riešenia priniesol zhodu so správou KRNAP v podobe Vrbatovej búdy ako jedinej stavby na Zlatom návrší, do ktorej budú integrované všetky požadované funkcie, avšak nakoniec bez infocentra.

Foto: Benedikt Markel
Foto: Benedikt Markel

Koncept

Koncept návrhu bol založený na zachovaní pôvodnej stavby, očistenej od novodobých nefunkčných prístavieb a vnútorných priečok. K nej boli postupne pridávané nové vrstvy a objemy, pre ktoré boli volené prevažne tri materiály - smrekovcové drevo, nerezový plech a pohľadový betón s textúrou debnenia. Masívne smrekovcové drevo sa uplatňuje v interiéri reštaurácie, v bufete, na vonkajšom obklade podkrovia a vyhliadkovej terase. Nerezový plech vo varni a novo vstavaných toaletách. Najvýraznejším motívom je prístavba z pohľadového betónu, ktorá je vďaka zvolenej sendvičovej konštrukcii viditeľná v interiéri aj exteriéri. Kontrastná forma prístavby pritom neparazituje na pôvodnom dome, ale tvorí funkčnú symbiózu starého s novým.

Schéma dostavby
Schéma dostavby
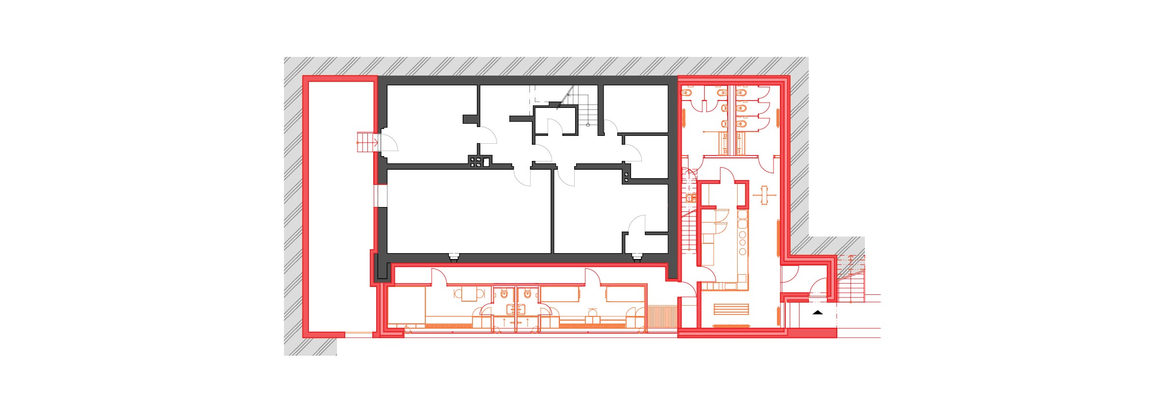
Pôdorys 1. PP
Pôdorys 1. PP
Pôdorys 1. NP
Pôdorys 1. NP
Pozdĺžny rez
Pozdĺžny rez

Konštrukcia

Pri rekonštrukcii boli použité predovšetkým tradičné remeselné postupy. Obnova interiéru a plášťa budovy prebiehala kvôli krátkej stavebnej sezóne a požiadavke na čiastočné zachovanie prevádzky počas troch rokov. Vodostavebný betón prístavby s odtlačkami tesárskeho debnenia prepožičal interiéru aj exteriéru surový vzhľad, odkazujúci na charakter bunkrov hraničného opevnenia, ktoré prežili bez akejkoľvek údržby už bezmála 80 rokov.

Foto: Benedikt Markel
Foto: Benedikt Markel
Foto: Benedikt Markel
Foto: Benedikt Markel
Foto: Benedikt Markel
Foto: Benedikt Markel
Foto: Benedikt Markel
Foto: Benedikt Markel
Foto: Benedikt Markel
Foto: Benedikt Markel
Foto: Martin Prokš
Foto: Martin Prokš

Podklady: IXA

Poloha diela

Ing. arch. Tomáš Hradečný
Ing. arch. Martin Prokš

Súvisiace články

Vložené
11. január 2017
0
1252
Hlavný obsahHlavný obsah
Čakajte prosím