Advertorial

Pozvánka na 2. ročník stavebného veľtrhu BigMarket na Slovensku

Na podujatí sa predstaví až 37 vystavovateľov - popredných dodávateľov stavebných materiálov a inovácií s prezentáciou...

Hotel Hirschen Spa House, Rakúsko

Novotvar v prostredí alpskej obce.

Vytvorte si kúpeľňu snov: dizajnové riešenie od značky hansgrohe

Hansgrohe - prémiová značka kúpeľňových riešení, ponúka nadčasový dizajn, technickú precíznosť a udržateľné inovácie...

Okná Internorm za minuloročné ceny + hliníkový kryt zdarma!

Využite špeciálnu akciu Internorm: okná za minuloročné ceny a hliníkový kryt úplne zadarmo. Ponuka je časovo obmedzená!

Moderné plynové technológie: Efektivita a inovácie pre 21. storočie

Sumarizácia najdôležitejších inovácií, ktoré redefinujúcich využitie tohto energetického zdroja.

Utesňovanie spodných stavieb pomocou hydro-aktívnej fólie AMPHIBIA.

AMPHIBIA 3000 GRIP 1.3 od spoločnosti ATRO predstavuje modernú hydroizolačnú technológiu, ktorá spája vysokú odolnosť,...

Dekarbonizácia individuálneho vykurovania domácností – Green Deal evolučne a nie revolučne

Ambiciózne plány EK narazili na ekonomické možnosti domácností v jednotlivých členských štátoch –...

Minimalistické dvere IDEA – technická precíznosť a čistota prevedenia

IDEA DOOR od spoločnosti JAP prináša do interiéru čistý minimalistický vzhľad vďaka bezrámovému riešeniu a precíznej...

Dom s výhľadom na údolie, Dlouhý Most (ČR)

Kontinuita riešenia od vonkajšieho obkladu až po kovania a kľučky.

Schell Vitus – osvedčené riešenie pre sprchy a umývadlá vo verejnom sektore s viac ako desaťročnou tradíciou

Nástenné nadomietkové armatúry Vitus sú mimoriadne vhodné pre rýchlu a efektívnu...

Kompozitné okná predstavujú súčasnosť a budúcnosť

Okenné profily z kompozitného materiálu RAU-FIPRO X od spoločnosti Rehau sú v porovnaní s tradičnými plastovými profilmi mnohonásobne...

Myotis - stoly 2025

Najnovší sortiment stolov pre zariadenie interiérov...

Priemyselné sklenené priečky Dorsis Digero: svetelné rozhranie pre moderné interiéry

Spojenie moderného dizajnu, funkčnosti a svetla do harmonického architektonického prvku.

Význam prirodzeného svetla pre moderné a flexibilné pracovné prostredie

Kancelárska budova Baumit v slovinskom Trzine prešla premenou na moderné a udržateľné pracovisko. Architekti kládli dôraz...

Konferencia Xella Dialóg predstaví novinky a trendy v stavebníctve

Mottom šiesteho ročníku on-line konferencie odborníkov Xella Dialóg je Efektívny návrh budov 2025+: zmeny a riešenia

Turistická útulňa Sláviček

Útočisko na Muránskej planine.
Diela
Red 323.08.2021
30670+18
Turistická útulňa Sláviček
Autori: Ing. arch. Darina Bartková, MgA. Vít Šimek, Ing. arch. Martina KubešováZastavaná plocha: 24,88 m2Obostavaný objem: 95 m3Návrh: 2021 - 2021Adresa: Prírodná rezervácia Tŕstie , Muránska planina, SlovenskoPublikované: 23. august 2021

Turistický klub KTS Hikemates v spolupráci madebythe vyhlásil v marci súťaž, ktorej cieľom bolo nájsť najlepšie architektonické návrhy pre útulne v blízkosti turistických chodníkov v slovenských horách. Aj vďaka svojmu formátu a atraktívnemu zadaniu zaznamenala najvyššiu účasť za posledné roky – na výzvu v prvom kole reagovalo 101 uchádzačov. Na základe predložených portfólií a motivačný listov vybrala odborná porota trojicu kolektívov, ktoré spracovali architektonické návrhy a projekty útulní pre tri samostatné lokality. Rozhovor (nielen) o príprave súťaže s jej iniciátorom Patrikom Pajtom si môžete prečítať na tomto odkaze. Prvej z útulní na na Štefánikovej magistrále sme venovali samostatný článok.

 

Projekt druhej z útulní detailne predstaví víťazný kolektív v zložení - Darina Bartková, Vít Šimek a Martina Kubešová:

Lokalita

Útulňa je navrhnutá v prírodnej rezervácii Tŕstie, ktorá je súčasťou Národného parku Muránska planina. Novostavba je situovaná na lúke, v blízkosti chaty Tŕstie, dostupnej po žltej turistickej trase z Tisovca alebo po zelenej trase z Rimavskej Píly. Chata leží v blízkosti červenej magistrály - Cesta Márie Széchy, ktorá sleduje pôvodnú medzihradnú cestu z roku 1644 a vedie medzi hradmi Fiľakovo a Muráň (82km).

 

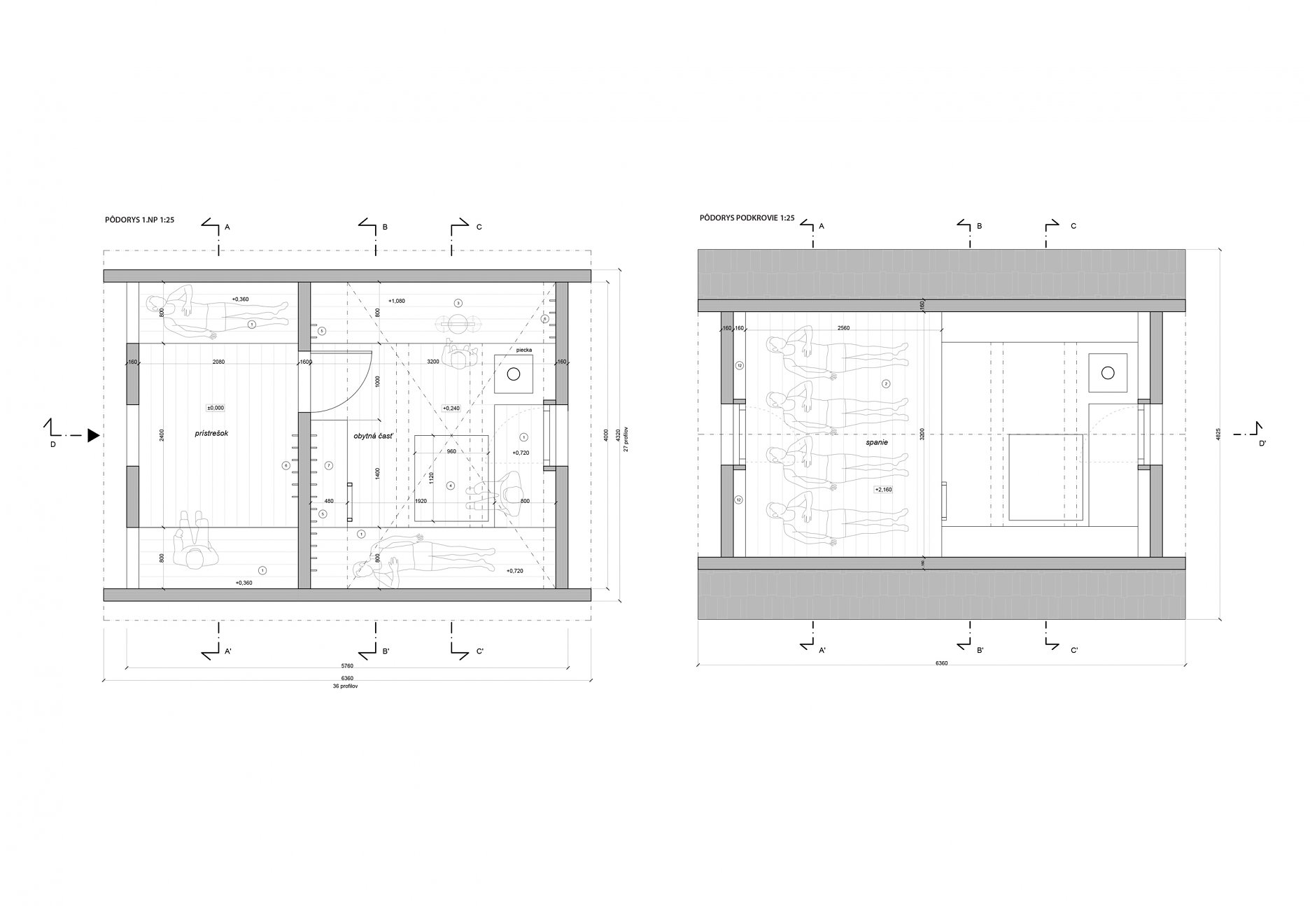
Základný opis 

Na vybrané miesto sme sa rozhodli umiestniť jednoduchý objekt - úkryt - citlivo zasadený do krajiny. Pre návštevníka poskytuje hneď niekoľko funkcií a bez zbytočných príkras vytvára bezpečný priestor. Je postavený ako masívna zrubová konštrukcia z priznaných drevených hranolov, ktoré sa tak stávajú jej dominantným výrazovým prvkom.

Objekt útulne je zasadený v severnej časti lúky na mieste súčasnej starej drevárne, v blízkosti prameňa. Útulňa nie je stredobodom. Naopak. Z okraja lúky pozoruje obzor a nenarušuje jedinečný výhľad na blízke i vzdialené vrcholy hôr.

 

Koncept

Ideovo sme pracovali s témou koliby, ktorá dodnes svojim spôsobom slúži ako horské obydlie. Tento archetypálny objekt je formálne i konštrukčne jednoznačný. Pracuje so zakladným konštrukčným prvkom, ktorý sa stáva priamou súčasťou interiéru. Znovubjavením a následnym pretvorením tradičnej zrubovej konštrukcie vytvárame objekt, ktorý v sebe nesie stopu minulosti a zároveň prináša zážitok z priestoru. Priznaná drevená konštrukcia vo svojej nahote pripomína utilitárnosť objektu.

 

Funkcia a prevádzka

Stavba je členená na dve časti - krytú predsieň / verandu, cez ktorú sa prechádza do uzavretej obytnej časti. V oboch častiach sú po stranách lavice ako súčasť obvodovej konštrukcie. Tieto dva priestory od seba delí stena s policami. Obytný priestor útulne je prevýšený a pod strechou má vložené poschodie na spanie. Oproti vstupu sa nachádza piecka, vedľa vstupu je pracovná plocha a police. 

Interiér oboch častí je navrnutý stroho a univerzálne. Vytvárame príležitosť na jeho všetranné využitie v rôznych situáciách a k naplneniu viacerých funkcií. 

Na prenocovanie je primárne určené vložené poschodie pod strechou (4 osoby) a lavice v obytnej časti (2 osoby). Núdzovým riešením je prenocovanie 2 až 4 osôb vo vstupnom priestore, ktorý slúži hlavne ako úkryt pred nepriaznivým počasím.

Predsieň zároveň plní funkciu krytého vstupu do útulne. Je osvetlený štrbinami v obvodových stenách. Na vešiaky je možné odložiť mokré bundy alebo náradie. Pokračujeme ďalej do obytnej časti - dverami prechádzame cez deliacu stenu, ktorú tvoria police a vešiaky na zavesenie a odloženie turistického oblečenia a vybavenia, paličiek, batohov a topánok. 

Príprava jedla prebieha na veľkorysej pracovnej ploche vedľa dverí. Na varenie je možné použiť piecku. V polici pod pracovnou plochou je uložený erárny riad či náradie. Lavice sú usporiadané do L a majú pri sebe fixný stôl pre 4 ľudí. Pod lavicami je dostatočný priestor pre uskladnenie suchého dreva a potrebného náradia. Mokré oblečenie je možné sušiť na šnúre medzi trámami nad stolom.

Poschodie na spanie je prístupné po rebríku. Interiér je osvetlený oknami v štítových stenách. Presklené plochy eliminujú priebežné drevené profily z vonkajšej strany. Vedľa okien sa nachádzajú odkladacie poličky na drobnosti - čelovka, fľaša na vodu...

Sklad dreva bude riešený ako samostatný drevník vedľa objektu.


Konštrukcia

Útulňa stojí na nízkej kamennej podmurovke a je orientovaná štítom kolmo k terénu. Základným stavebným prvkom samotného objektu je drevený hranol z červeného smreku o rozmeroch 120x160mm. Jeho opakovaním a skladaním natupo v dvoch smeroch vzniká obvodová konštrukcia, ktorá ostáva priznaná z vonkajšej aj vnútornej strany. Vynechaním drevených hranolov v obvodovej konštrukcii sú vytvorené štrbiny, ktoré do objektu vpúšťajú svetlo a vzduch a dodávajú stavbe jej jedinečný výraz. Medzi jednotlivé profily je do vyfrézovaných drážok vložené pero ako ochrana interiéru pred vznikom štrbín pri dodatočnom vysychaní materiálu.

Rovnaké stavebné prvky sú použité aj na členenie interiéru a “nábytok”, ktorý je tak pevnou súčasťou stavby.


Materiál

Drevený hranol z červeného smreku je dominantným výrazovým prvkom exteriéru aj interiéru útulne. Zariadenie zostáva strohé, je trvácne a odolné voči poškodeniu. Podlahu tvoria hrubé drevené dosky s perodrážkou. Ako strešná krytina je použitý drevený šindeľ. Podmurovka je vyskladaná nasucho z lomového kameňa. Interiér dopĺňajú prvky z nerezu - rebrík, vešiaky.

Poloha diela

Ing. arch. Darina Bartková
MgA. Vít Šimek
Ing. arch. Martina Kubešová

Súvisiace články

Vložené
23. august 2021
0
3067
Hlavný obsahHlavný obsah
Čakajte prosím