Advertorial

Pozvánka na 2. ročník stavebného veľtrhu BigMarket na Slovensku

Na podujatí sa predstaví až 37 vystavovateľov - popredných dodávateľov stavebných materiálov a inovácií s prezentáciou...

Hotel Hirschen Spa House, Rakúsko

Novotvar v prostredí alpskej obce.

Vytvorte si kúpeľňu snov: dizajnové riešenie od značky hansgrohe

Hansgrohe - prémiová značka kúpeľňových riešení, ponúka nadčasový dizajn, technickú precíznosť a udržateľné inovácie...

Okná Internorm za minuloročné ceny + hliníkový kryt zdarma!

Využite špeciálnu akciu Internorm: okná za minuloročné ceny a hliníkový kryt úplne zadarmo. Ponuka je časovo obmedzená!

Moderné plynové technológie: Efektivita a inovácie pre 21. storočie

Sumarizácia najdôležitejších inovácií, ktoré redefinujúcich využitie tohto energetického zdroja.

Utesňovanie spodných stavieb pomocou hydro-aktívnej fólie AMPHIBIA.

AMPHIBIA 3000 GRIP 1.3 od spoločnosti ATRO predstavuje modernú hydroizolačnú technológiu, ktorá spája vysokú odolnosť,...

Dekarbonizácia individuálneho vykurovania domácností – Green Deal evolučne a nie revolučne

Ambiciózne plány EK narazili na ekonomické možnosti domácností v jednotlivých členských štátoch –...

Minimalistické dvere IDEA – technická precíznosť a čistota prevedenia

IDEA DOOR od spoločnosti JAP prináša do interiéru čistý minimalistický vzhľad vďaka bezrámovému riešeniu a precíznej...

Dom s výhľadom na údolie, Dlouhý Most (ČR)

Kontinuita riešenia od vonkajšieho obkladu až po kovania a kľučky.

Schell Vitus – osvedčené riešenie pre sprchy a umývadlá vo verejnom sektore s viac ako desaťročnou tradíciou

Nástenné nadomietkové armatúry Vitus sú mimoriadne vhodné pre rýchlu a efektívnu...

Kompozitné okná predstavujú súčasnosť a budúcnosť

Okenné profily z kompozitného materiálu RAU-FIPRO X od spoločnosti Rehau sú v porovnaní s tradičnými plastovými profilmi mnohonásobne...

Myotis - stoly 2025

Najnovší sortiment stolov pre zariadenie interiérov...

Priemyselné sklenené priečky Dorsis Digero: svetelné rozhranie pre moderné interiéry

Spojenie moderného dizajnu, funkčnosti a svetla do harmonického architektonického prvku.

Význam prirodzeného svetla pre moderné a flexibilné pracovné prostredie

Kancelárska budova Baumit v slovinskom Trzine prešla premenou na moderné a udržateľné pracovisko. Architekti kládli dôraz...

Konferencia Xella Dialóg predstaví novinky a trendy v stavebníctve

Mottom šiesteho ročníku on-line konferencie odborníkov Xella Dialóg je Efektívny návrh budov 2025+: zmeny a riešenia

Bytový dom s perforovanou hliníkovou fasádou, Dachau

Bývanie za polotransparentným závojom.
Diela
Red 312.08.2023
31130+40
Bytový dom s perforovanou hliníkovou fasádou, Dachau
Autori: Dirk Härle, Michael Wald, Edgar Martinez, Ina GrothusenNávrh: 2019 - 2020Realizácia: 2020 - 2021Adresa: Weiherweg , 85221 2, Dachau, NemeckoPublikované: 12. august 2023

Malý bytový dom na východnom okraji  päťdesiattisícového mesta Dachau navrhol pre súkromného investora mníchovský ateliér lynx architecture. Stavba, ktorá je súčasťou obytnej zóny, s prevládajúcim domami zo 70. rokov minulého storočia, reaguje svojou formou na exponovanú polohu pri rušnej križovatke. Lokalitný program, ktorý zahŕňa šesť dvojizbových bytov s balkónmi a terasami, priestor na uskladnenie bicyklov, podzemnú garáž a tiež komunitnú záhradu sa snažili architekti sceliť do kompaktného bloku, izolovaného od ruchu priľahlej komunikácie. Výsledkom je pavlačový dom, s bytmi smerujúcimi do pokojnej záhrady, ktorých osvetlenie zaisťujú hlboké perforácie plášťa  budovy. 

Dôležitú súčasť architektonického riešenia tvorí fasáda z perforovaného a profilovaného hliníkového plechu. “Pôvodne sme uvažovali o fasáde korešpondujúcej s dreveným latovaním protiľahlého obytného domu. Po zohľadnení životnosti materiálu, nutnej údržby a realizácie stavebných detailov sme vyhodnotili ako ideálny predsadený hliníkový plášť. Nechceli sme sa však vzdať jemnej a nepravidelnej štruktúry dreva. Využili sme preto možnosti materiálu a navrhli atypické perforované a ohýbané dielce,” vysvetľujú genézu zvoleného riešenia architekti. 

Výsledný obvodový plášť, ktorý prepúšťa svetlo do priestorov pavlačí, čiastočne ich izoluje od ruchu ulice a vo večerných hodinách odhaľuje priestorovú skladbu objektu si vyžiadal neštandardné technické riešenia. Klampiarska firma spracovala celkom šesť a pol tony hliníkového plechu PREFA. Viac ako 2000 metrov zvitkového plechu najskôr pracovníci narezali na panely, ktoré v dielni na CNC strojoch perforovali. Následne platne viacnásobne ohýbali podľa dvoch profilov s uhlami 90°, 60° a 70°. Celkom tak po otočení vznikli štyri možné varianty montáže panelov, ktoré vytvárajú zámerne nepravidelný raster naprieč celou fasádou bytového domu. Rovnaký vzor využíva aj vedľajší prístrešok na autá. Profilovanie materiálov zmenšilo východiskovú šírku plechu 1200 mm na pohľadovú šírku 600 mm. Takmer všetky dielce si klampiari nachystali vopred v dielni. Priamo na stavbe prispôsobili len niekoľko plechov na odkvapovej hrane a štítovej stene. Neperforované profilované plechy na streche sú montované nad vodotesné podstrešie, čo umožnilo realizovať subtílne detaily hrebeňa strechy a jej hrán bez presahov.

Situácia
SituáciaAutor: lynx architecture
Pôdorys 1. PP
Pôdorys 1. PPAutor: lynx architecture
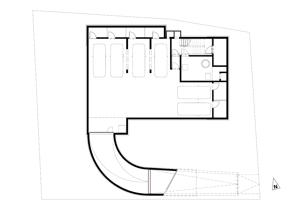
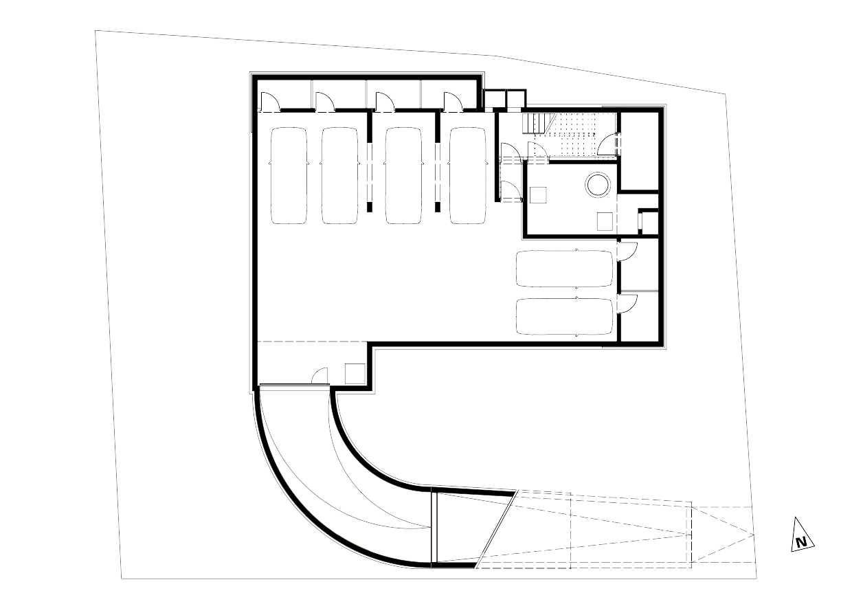
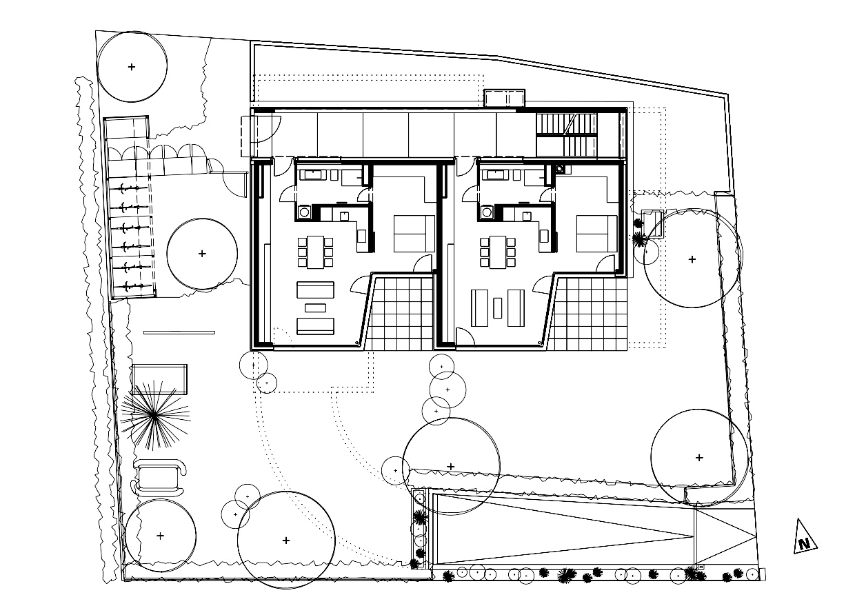
Pôdorys 1. NP
Pôdorys 1. NPAutor: lynx architecture
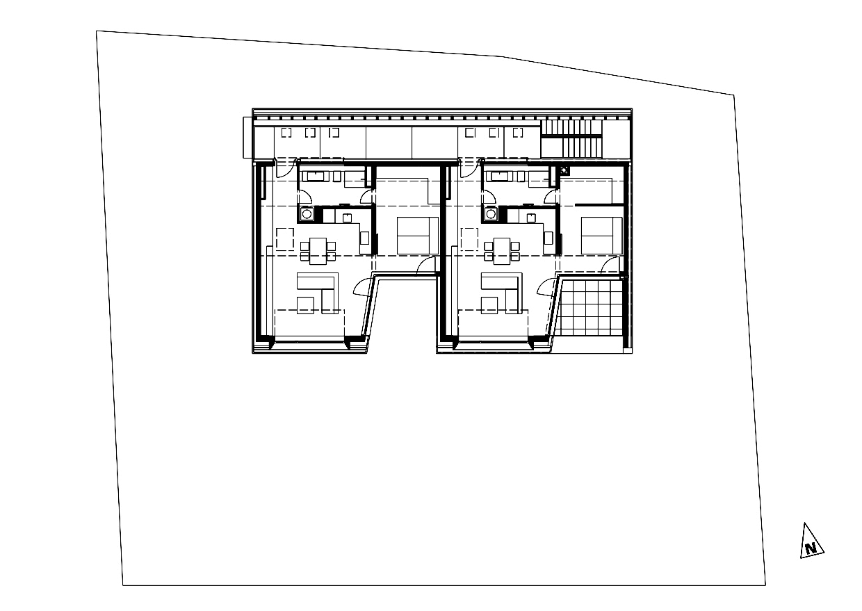
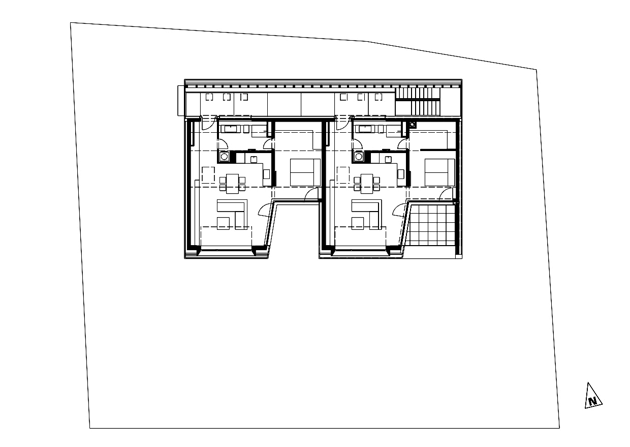
Pôdorys 2. NP
Pôdorys 2. NPAutor: lynx architecture
Pôdorys bytu s východnou orientáciou na úrovni 2. NP
Pôdorys bytu s východnou orientáciou na úrovni 2. NPAutor: lynx architecture
Pôdorys 3. NP
Pôdorys 3. NPAutor: lynx architecture
Priečny rez
Priečny rezAutor: lynx architecture
Pozdĺžny rez
Pozdĺžny rezAutor: lynx architecture

Podklady: PREFA ALUMINIUMPRODUKTE, lynx architecture
Použité materiály a riešenia:
hliníková krytina PREFA PREFALZ v bronzovej farbe RAL7048. Jednotlivé panely boli dierované a ohýbané na mieru podľa dielenskej dokumentácie.

 

Poloha diela

Dirk Härle
Michael Wald
Edgar Martinez
Ina Grothusen

Súvisiace články

Vložené
2. august 2023
0
3113
Hlavný obsahHlavný obsah
Čakajte prosím