Využite špeciálnu akciu Internorm: okná za minuloročné ceny a hliníkový kryt úplne zadarmo. Ponuka je časovo obmedzená!
Na podujatí sa predstaví až 37 vystavovateľov - popredných dodávateľov stavebných materiálov a inovácií s prezentáciou...
Sumarizácia najdôležitejších inovácií, ktoré redefinujúcich využitie tohto energetického zdroja.
AMPHIBIA 3000 GRIP 1.3 od spoločnosti ATRO predstavuje modernú hydroizolačnú technológiu, ktorá spája vysokú odolnosť,...
Ambiciózne plány EK narazili na ekonomické možnosti domácností v jednotlivých členských štátoch –...
IDEA DOOR od spoločnosti JAP prináša do interiéru čistý minimalistický vzhľad vďaka bezrámovému riešeniu a precíznej...
Kontinuita riešenia od vonkajšieho obkladu až po kovania a kľučky.
Nástenné nadomietkové armatúry Vitus sú mimoriadne vhodné pre rýchlu a efektívnu...
Okenné profily z kompozitného materiálu RAU-FIPRO X od spoločnosti Rehau sú v porovnaní s tradičnými plastovými profilmi mnohonásobne...
Najnovší sortiment stolov pre zariadenie interiérov...
Spojenie moderného dizajnu, funkčnosti a svetla do harmonického architektonického prvku.
Kancelárska budova Baumit v slovinskom Trzine prešla premenou na moderné a udržateľné pracovisko. Architekti kládli dôraz...
Mottom šiesteho ročníku on-line konferencie odborníkov Xella Dialóg je Efektívny návrh budov 2025+: zmeny a riešenia
Robot WLTR predstavuje moderný prístup k murovaným konštrukciám. Vďaka automatizácii dokáže rýchlo, presne a bezpečne realizovať...
Okrem bezpečnosti majú okná aj elegantný vzhľad, pretože nie sú viditeľné žiadne uzamykacie časti kovania.

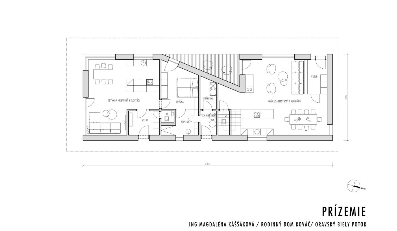
Spojovacím prvkom medzi citlivo zachovaným pôvodným kamenným domom a novostavbou je ich majiteľ – rozhľadený staviteľ s vzťahom k tradíciám. Ako mladej architektke mi vždy dôveroval a tak sme v záhrade za potokom spoločne vytvorili prezentovaný dvojdom.
Dlhý pozemok si prirodzene vyžiadal podlhovastú hmotu domu, ktorá rešpektuje existujúci urbanistický rámec. Koncept dvojdomu som materiálovo rozčlenila: zadná časť, orientovaná k severnej komunikácii je inšpirovaná v obci bežným humnom, vymurovaným z veľkých pieskovcových blokov. Dlhá hmota je na západnej strane predelená zapustenou diagonálnou terasou. Predný dom, určený pre majiteľov je veľkoryso otvorený do záhrady, ktorú s záhradou pôvodnej chalupy spája mostík cez potok. Jednou zo základných požiadaviek bolo vnútorné prepojenie dispozície – v úrovni podchodia je možné neskorším prebudovaním priečky meniť počet izieb podľa aktuálnych potrieb. V súčasnosti im vyhovuje jedna spálňa doplnená o mezanín v obývacej časti.
Na stavbu sa použil lokálny materiál – dom je napokon takmer celý obmurovaný 20 cm hrubým pieskovcom pochádzajúcim priamo z obce. Oravský Biely Potok je dlhodobo spätý s kamenárstvom, každoročne sa tu koná kamenársky plenér a jeho obyvatelia si vyslúžili prezývku „osľari“ podľa tradičných brúsnych kameňov – osiel. Je tiež známe, že ak je na kríži vytesaný z kameňa ukrižovaný Ježiš, vysoko pravdepodobne tento kríž pochádza z Oravského Bieleho Potok. Dovoľovala to práve jeho tvrdosť. Ďalším výrazným miestnym prvkom sú veľkoformátové kamenné platne, ktoré sa v minulosti využívali na gánky – verím, že majiteľovi sa podarí niekoľko takýchto autentických kusov zohnať/nájsť a zakomponovať do chodníka.
Potok medzi pôvodnou drevenicou a domom prechádza pri neďalekej píle a preteká popod drevený mlyn, ktorý je dnes rodinný dom. Žiaľ, dnes je zateplený a takmer nerozoznateľný od novostavieb.