Advertorial

Pozvánka na 2. ročník stavebného veľtrhu BigMarket na Slovensku

Na podujatí sa predstaví až 37 vystavovateľov - popredných dodávateľov stavebných materiálov a inovácií s prezentáciou...

Hotel Hirschen Spa House, Rakúsko

Novotvar v prostredí alpskej obce.

Vytvorte si kúpeľňu snov: dizajnové riešenie od značky hansgrohe

Hansgrohe - prémiová značka kúpeľňových riešení, ponúka nadčasový dizajn, technickú precíznosť a udržateľné inovácie...

Okná Internorm za minuloročné ceny + hliníkový kryt zdarma!

Využite špeciálnu akciu Internorm: okná za minuloročné ceny a hliníkový kryt úplne zadarmo. Ponuka je časovo obmedzená!

Moderné plynové technológie: Efektivita a inovácie pre 21. storočie

Sumarizácia najdôležitejších inovácií, ktoré redefinujúcich využitie tohto energetického zdroja.

Utesňovanie spodných stavieb pomocou hydro-aktívnej fólie AMPHIBIA.

AMPHIBIA 3000 GRIP 1.3 od spoločnosti ATRO predstavuje modernú hydroizolačnú technológiu, ktorá spája vysokú odolnosť,...

Dekarbonizácia individuálneho vykurovania domácností – Green Deal evolučne a nie revolučne

Ambiciózne plány EK narazili na ekonomické možnosti domácností v jednotlivých členských štátoch –...

Minimalistické dvere IDEA – technická precíznosť a čistota prevedenia

IDEA DOOR od spoločnosti JAP prináša do interiéru čistý minimalistický vzhľad vďaka bezrámovému riešeniu a precíznej...

Dom s výhľadom na údolie, Dlouhý Most (ČR)

Kontinuita riešenia od vonkajšieho obkladu až po kovania a kľučky.

Schell Vitus – osvedčené riešenie pre sprchy a umývadlá vo verejnom sektore s viac ako desaťročnou tradíciou

Nástenné nadomietkové armatúry Vitus sú mimoriadne vhodné pre rýchlu a efektívnu...

Kompozitné okná predstavujú súčasnosť a budúcnosť

Okenné profily z kompozitného materiálu RAU-FIPRO X od spoločnosti Rehau sú v porovnaní s tradičnými plastovými profilmi mnohonásobne...

Myotis - stoly 2025

Najnovší sortiment stolov pre zariadenie interiérov...

Priemyselné sklenené priečky Dorsis Digero: svetelné rozhranie pre moderné interiéry

Spojenie moderného dizajnu, funkčnosti a svetla do harmonického architektonického prvku.

Význam prirodzeného svetla pre moderné a flexibilné pracovné prostredie

Kancelárska budova Baumit v slovinskom Trzine prešla premenou na moderné a udržateľné pracovisko. Architekti kládli dôraz...

Konferencia Xella Dialóg predstaví novinky a trendy v stavebníctve

Mottom šiesteho ročníku on-line konferencie odborníkov Xella Dialóg je Efektívny návrh budov 2025+: zmeny a riešenia

Interiér v mezonetovom byte v bratislavskom Starom Meste

Priestorovo a výhľadmi zaujímavý mezonetový byt sa nachádza v Starom Meste, v jednej z mladších rezidenčných budov tejto mestskej časti. Napriek svojmu relatívne mladému veku už opotrebovaný byt, po kúpe novými vlastníkmi, potreboval nový a budúcim majiteľom bližší kabát.
Diela
Richard Kráľovič12.08.2020
1910+0
Interiér v mezonetovom byte v bratislavskom Starom Meste
Autori: Ing. arch. Richard KráľovičSpolupráca: Ing. arch. Zuzana KráľovičováInvestor: SúkromnýNávrh: 2018 - 2019Realizácia: 2019 - 2020Adresa: Bratislava, SlovenskoPublikované: 12. august 2020

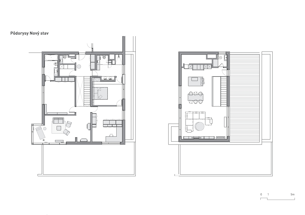
Okrem nevyhnutnej celkovej výtvarnej a architektonickej adaptácie interiéru, sa väčšej zmeny dotkli na nižšom podlaží nočná časť bytu v nadväznosti na hlavnú kúpeľňu. Úpravou usporiadania tohto traktu a prehodnotením plošných nárokov jednotlivých miestností bolo možné vytvoriť i priestor pre domáceho pána - oddelenej pracovne. Pôvodný rozsah pôdorysnej stopy kúpeľne je v návrhu v priestore spálne priznaný, a to presahom novej povrchovej vrstvy podlahy - jemne štruktúrovaného zemito sfarbeného terraza.

Na tomto podlaží sa ďalej namiesto pôvodnej pracovne vytvoril lounge priestor s výhľadom na  Staré Mesto.

foto: alex shoots buildings
pôvodný stav
pôvodný stav
nový stav
nový stavautor: Richard Kráľovič a Zuzana Kráľovičová
foto: alex shoots buildings
foto: alex shoots buildings
foto: alex shoots buildings
foto: alex shoots buildings
foto: alex shoots buildings
foto: alex shoots buildings
foto: alex shoots buildings
foto: alex shoots buildings
foto: alex shoots buildings
foto: alex shoots buildings

Byt je zariadený na mieru zhotoveným nábytkom v prírodných materiáloch - dubovej dyhy a drevených masívov v kombinácii s novým dizajnovým nábytkom a starostlivo vyberanými renovovanými nábytkami. Zvolená materialita, hra s akcentom  a citlivý prístup ku každému z priestorov prestupuje celým interiérom. Výber mobiliáru, v štýle blízkom majiteľom, predstavuje v konečnom dizajne bytu jednu z určujúcich línií definujúcich výsledný interiér ako celok. Použité výtvarné diela sú v byte umiestňované v súlade s mierkou, farebnosťou a náladou konkrétnych miestností.

Zvolený prístup k výberu prvkov osvetlenia mal za cieľ podčiarkovať vnútorný dizajn priestorov bez toho, aby mu tvoril opozíciu či dizajnom samotným bojoval o svoju pozornosť.

Na poschodí sa prehodnotil prístup ku kuchynskému bloku, kde tento v novom riešení v sebe "ukrýva" okrem drezu a spotrebičov i vstup do komory a samotný preberá podobu sivého utilitárneho bloku. Spojený obývací a kuchynský priestor tak zostáva čistý a bez, pre užívateľov nepotrebných, vizuálnych nánosov.

foto: alex shoots buildings
foto: alex shoots buildings
foto: alex shoots buildings
foto: alex shoots buildings
foto: alex shoots buildings
foto: alex shoots buildings
foto: alex shoots buildings
Ing. arch. Richard Kráľovič
Vložené
12. august 2020
0
191
Hlavný obsahHlavný obsah
Čakajte prosím