Na podujatí sa predstaví až 37 vystavovateľov - popredných dodávateľov stavebných materiálov a inovácií s prezentáciou...
Novotvar v prostredí alpskej obce.
Hansgrohe - prémiová značka kúpeľňových riešení, ponúka nadčasový dizajn, technickú precíznosť a udržateľné inovácie...
Využite špeciálnu akciu Internorm: okná za minuloročné ceny a hliníkový kryt úplne zadarmo. Ponuka je časovo obmedzená!
Sumarizácia najdôležitejších inovácií, ktoré redefinujúcich využitie tohto energetického zdroja.
AMPHIBIA 3000 GRIP 1.3 od spoločnosti ATRO predstavuje modernú hydroizolačnú technológiu, ktorá spája vysokú odolnosť,...
Ambiciózne plány EK narazili na ekonomické možnosti domácností v jednotlivých členských štátoch –...
IDEA DOOR od spoločnosti JAP prináša do interiéru čistý minimalistický vzhľad vďaka bezrámovému riešeniu a precíznej...
Kontinuita riešenia od vonkajšieho obkladu až po kovania a kľučky.
Nástenné nadomietkové armatúry Vitus sú mimoriadne vhodné pre rýchlu a efektívnu...
Okenné profily z kompozitného materiálu RAU-FIPRO X od spoločnosti Rehau sú v porovnaní s tradičnými plastovými profilmi mnohonásobne...
Najnovší sortiment stolov pre zariadenie interiérov...
Spojenie moderného dizajnu, funkčnosti a svetla do harmonického architektonického prvku.
Kancelárska budova Baumit v slovinskom Trzine prešla premenou na moderné a udržateľné pracovisko. Architekti kládli dôraz...
Mottom šiesteho ročníku on-line konferencie odborníkov Xella Dialóg je Efektívny návrh budov 2025+: zmeny a riešenia

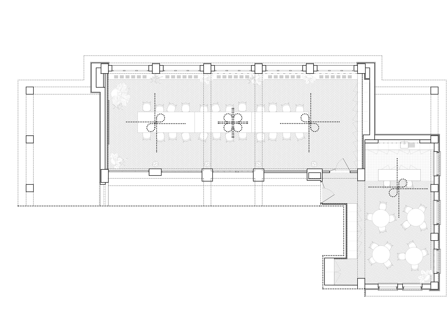
PUDIS je projektová spoločnosť s viac než päťdesiatročnou tradíciou. Špecializuje sa na návrhy cestných stavieb, mostov a súvisiacich stavebných riešení. Jej pražské sídlo sa nachádza v deväťpodlažnom objekte v pražskej časti Podbaba, zaplnenom projektovými kanceláriami a laboratóriami.
Firma sa do budovy presťahovala v roku 2019 a odvtedy postupne plánovala, ako jej priestory prispôsobiť svojim požiadavkám. Prvá etapa premeny sa sústredila na zázemie pre zamestnancov – prioritou bola moderná kuchynka a kapacitná zasadacia miestnosť. Pôvodná rozsiahla kuchyňa s jedálňou už neplnila svoju úlohu. Obedy sa dovážajú z externých prevádzok a zamestnanci ich spravidla konzumujú vo svojich kanceláriách. Nanovo vznikla útulná kuchynka so zázemím na ohrievanie jedál a kvalitnými kávovarmi, ktorá slúži aj ako miesto neformálnych stretnutí. Uvoľnený priestor po jedálni architekti pretvorili na zasadačku pre 26 osôb, potrebnú pre rozrastajúci sa tím.
Zásadným východiskom návrhu, ktorý vo všetkých fázach spracoval ateliér Studio COSMO, bol rešpekt k architektonickému charakteru budovy. Rekonštruované priestory boli cielene očistené od nánosov necitlivých zásahov. Odstránené boli vstavané priečky, podhľady, sokle či povrchom vedená kabeláž. Interiér sa vrátil k svojmu pôvodnému tvarosloviu a materialite, pričom riešenie necháva vyniknúť pôvodný betónový skelet. Dôležitá je tiež práca s prirodzeným svetlom a prírodnými materiálmi.
Na firemnú identitu architekti zo Studia COSMO nadviazali aj vo výrazných dizajnových prvkoch, ako sú atypické svietidlá navrhnuté na mieru rekonštruovanému priestoru – svojím tvarom odkazujú na križovatky, teda hlavný motív loga, a symbolicky prepájajú profesijné zameranie firmy s estetikou interiéru.
Použité materiály podčiarkujú súčasný charakter priestoru – v kuchynskej časti dominuje nerezové obloženie a keramický ostrovček, v zasadačke zas atypické MDF obloženie, ktoré nesie motív loga firmy využitý ako vzor.
Materiály:
Ateliér: Studio COSMO
Podklady: Linka
Fotografie: Petr Moschner