Advertorial

Hotel Hirschen Spa House, Rakúsko

Novotvar v prostredí alpskej obce.

Vytvorte si kúpeľňu snov: dizajnové riešenie od značky hansgrohe

Hansgrohe - prémiová značka kúpeľňových riešení, ponúka nadčasový dizajn, technickú precíznosť a udržateľné inovácie...

Okná Internorm za minuloročné ceny + hliníkový kryt zdarma!

Využite špeciálnu akciu Internorm: okná za minuloročné ceny a hliníkový kryt úplne zadarmo. Ponuka je časovo obmedzená!

Pozvánka na 2. ročník stavebného veľtrhu BigMarket na Slovensku

Na podujatí sa predstaví až 37 vystavovateľov - popredných dodávateľov stavebných materiálov a inovácií s prezentáciou...

Moderné plynové technológie: Efektivita a inovácie pre 21. storočie

Sumarizácia najdôležitejších inovácií, ktoré redefinujúcich využitie tohto energetického zdroja.

Utesňovanie spodných stavieb pomocou hydro-aktívnej fólie AMPHIBIA.

AMPHIBIA 3000 GRIP 1.3 od spoločnosti ATRO predstavuje modernú hydroizolačnú technológiu, ktorá spája vysokú odolnosť,...

Dekarbonizácia individuálneho vykurovania domácností – Green Deal evolučne a nie revolučne

Ambiciózne plány EK narazili na ekonomické možnosti domácností v jednotlivých členských štátoch –...

Minimalistické dvere IDEA – technická precíznosť a čistota prevedenia

IDEA DOOR od spoločnosti JAP prináša do interiéru čistý minimalistický vzhľad vďaka bezrámovému riešeniu a precíznej...

Dom s výhľadom na údolie, Dlouhý Most (ČR)

Kontinuita riešenia od vonkajšieho obkladu až po kovania a kľučky.

Schell Vitus – osvedčené riešenie pre sprchy a umývadlá vo verejnom sektore s viac ako desaťročnou tradíciou

Nástenné nadomietkové armatúry Vitus sú mimoriadne vhodné pre rýchlu a efektívnu...

Kompozitné okná predstavujú súčasnosť a budúcnosť

Okenné profily z kompozitného materiálu RAU-FIPRO X od spoločnosti Rehau sú v porovnaní s tradičnými plastovými profilmi mnohonásobne...

Myotis - stoly 2025

Najnovší sortiment stolov pre zariadenie interiérov...

Priemyselné sklenené priečky Dorsis Digero: svetelné rozhranie pre moderné interiéry

Spojenie moderného dizajnu, funkčnosti a svetla do harmonického architektonického prvku.

Význam prirodzeného svetla pre moderné a flexibilné pracovné prostredie

Kancelárska budova Baumit v slovinskom Trzine prešla premenou na moderné a udržateľné pracovisko. Architekti kládli dôraz...

Konferencia Xella Dialóg predstaví novinky a trendy v stavebníctve

Mottom šiesteho ročníku on-line konferencie odborníkov Xella Dialóg je Efektívny návrh budov 2025+: zmeny a riešenia

Nido Bistro

Gastro prevádzka v projekte NIDO2
Diela
Peter Šajgalík05.05.2024
5020+1
Nido Bistro
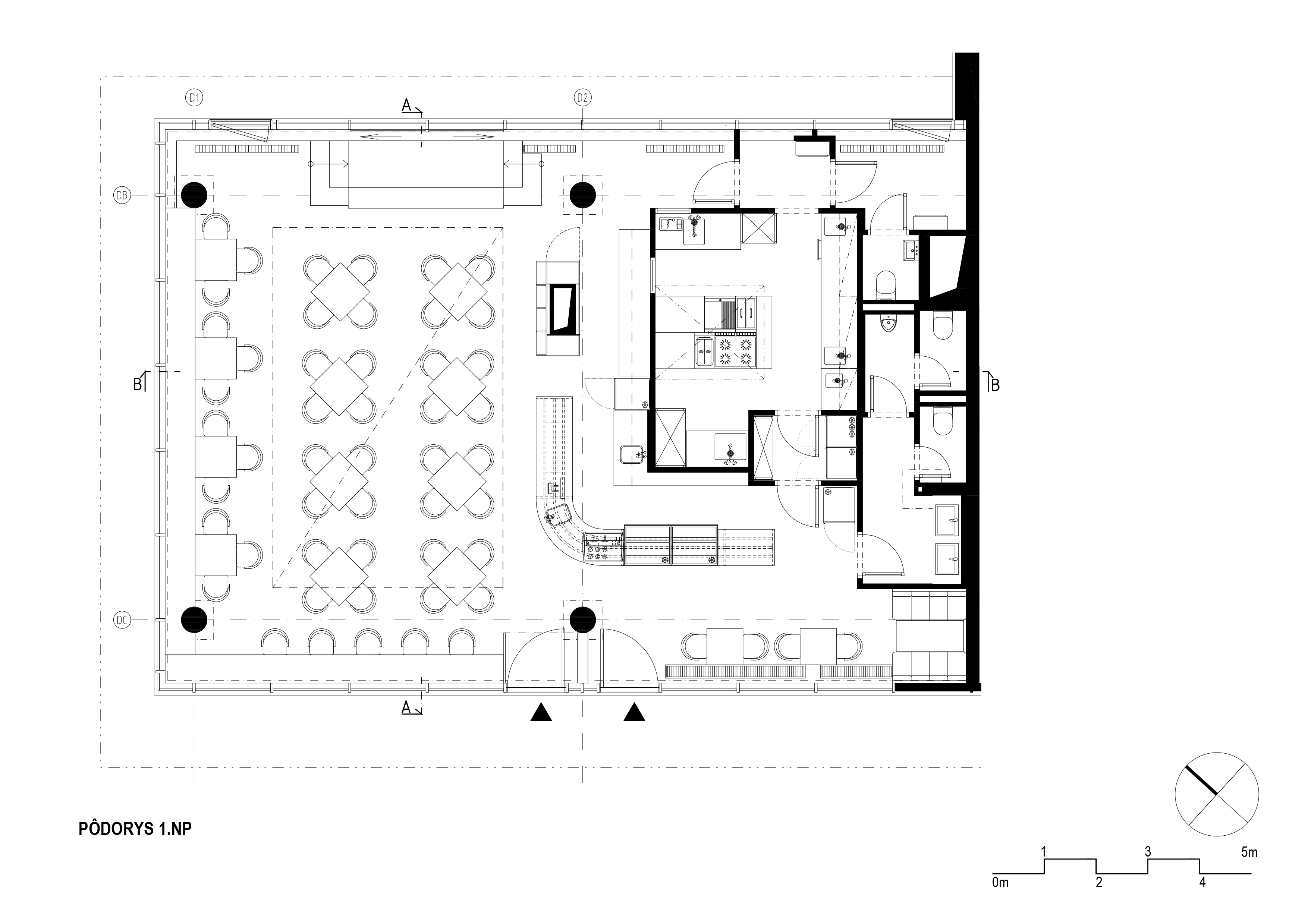
Ateliér: VIZIOARCHITECTSAutori: Ing. arch Martina Šajgalíková (architekt), Ing. Peter Šajgalík (architekt)Spolupráca: Ing. arch. Ján Kukuľa (architekt)Podlažná plocha: 150Návrh: 2022 - 2022Realizácia: 2023 - 2023Adresa: Trnavská cesta 45, Bratislava, SlovenskoPublikované: 5. máj 2024

Interiér reštaurácie NIDO BISTRO je súčasťou  druhej etapy projektu NIDO. Cieľom zadania bolo vytvoriť  priestor, ktorý bude okrem reštaurácie, s nádychom industriálneho dizajnu, slúžiť zároveň na aktivity spojené s prezentáciou a predajom vín.

Návrh je rozdelený na dve časti, prvá časť - zázemie s kuchyňou a druhá časť - reštaurácia. Pomerne skromný odbytový priestor sme sa snažili čo najefektívnejšie využiť. Po vizuálnej stránke sme sa rozhodli zachovať všetky pôvodné materiály, surové betónové prvky a technické rozvody, čo má za úlohu zdôrazniť charakter priestoru. Nové navrhované prvky sú kombináciou ocele a ťahokovu ako súčasť industriálne ladeného objektu. Zároveň sme použili  prírodný materiál - drevo, ktorý do celého priestoru  vnáša teplo a robí ho útulným a ideálnym miestom aj na dlhšie posedenia.

Koncept využíva tri dominantné prvky, ktoré vzájomne komunikujú, avšak plnia rozdielnu funkciu vzhľadom k priestoru a návštevníkovi.

Prvým dominantným prvkom je drevený pult lemujúci presklenú fasádu. Pult smerom do exteriéru prezentuje okoloidúcim víno a z vnútornej strany poskytuje návštevníkom priestor na sedenie s možnosťou vizuálnej komunikácie s okolím. Druhým prvkom je drevená vitrína s presklením, ktorej súčasťou sú drevené schody smerujúce na zadnú terasu. Tento prvok tvorí pomyselnú vstupnú bránu a zároveň obojstranné presklenie vitríny. Okrem prezentácie vín, poskytuje výhľad  na atraktívny vnútroblok bytového komplexu. Tretím prvkom je barový pult, ktorého oblý tvar a poloha vychádza z charakteru celého priestoru. Použitým materiálom je oceľ v kombinácii s ťahokovom.  Umelé osvetlenie je realizované systémom rámp pre zaručenie variability v budúcnosti.

Koncept pôsobí jednoducho, avšak výzvou architektov pri tvorbe bolo dispozičné riešenie, naplnenie očakávaní a veľkosť priestoru.

Ing. arch Martina Šajgalíková
Ing. Peter Šajgalík
Vložené
5. máj 2024
0
502
Hlavný obsahHlavný obsah
Čakajte prosím