Na podujatí sa predstaví až 37 vystavovateľov - popredných dodávateľov stavebných materiálov a inovácií s prezentáciou...
Novotvar v prostredí alpskej obce.
Hansgrohe - prémiová značka kúpeľňových riešení, ponúka nadčasový dizajn, technickú precíznosť a udržateľné inovácie...
Využite špeciálnu akciu Internorm: okná za minuloročné ceny a hliníkový kryt úplne zadarmo. Ponuka je časovo obmedzená!
Sumarizácia najdôležitejších inovácií, ktoré redefinujúcich využitie tohto energetického zdroja.
AMPHIBIA 3000 GRIP 1.3 od spoločnosti ATRO predstavuje modernú hydroizolačnú technológiu, ktorá spája vysokú odolnosť,...
Ambiciózne plány EK narazili na ekonomické možnosti domácností v jednotlivých členských štátoch –...
IDEA DOOR od spoločnosti JAP prináša do interiéru čistý minimalistický vzhľad vďaka bezrámovému riešeniu a precíznej...
Kontinuita riešenia od vonkajšieho obkladu až po kovania a kľučky.
Nástenné nadomietkové armatúry Vitus sú mimoriadne vhodné pre rýchlu a efektívnu...
Okenné profily z kompozitného materiálu RAU-FIPRO X od spoločnosti Rehau sú v porovnaní s tradičnými plastovými profilmi mnohonásobne...
Najnovší sortiment stolov pre zariadenie interiérov...
Spojenie moderného dizajnu, funkčnosti a svetla do harmonického architektonického prvku.
Kancelárska budova Baumit v slovinskom Trzine prešla premenou na moderné a udržateľné pracovisko. Architekti kládli dôraz...
Mottom šiesteho ročníku on-line konferencie odborníkov Xella Dialóg je Efektívny návrh budov 2025+: zmeny a riešenia

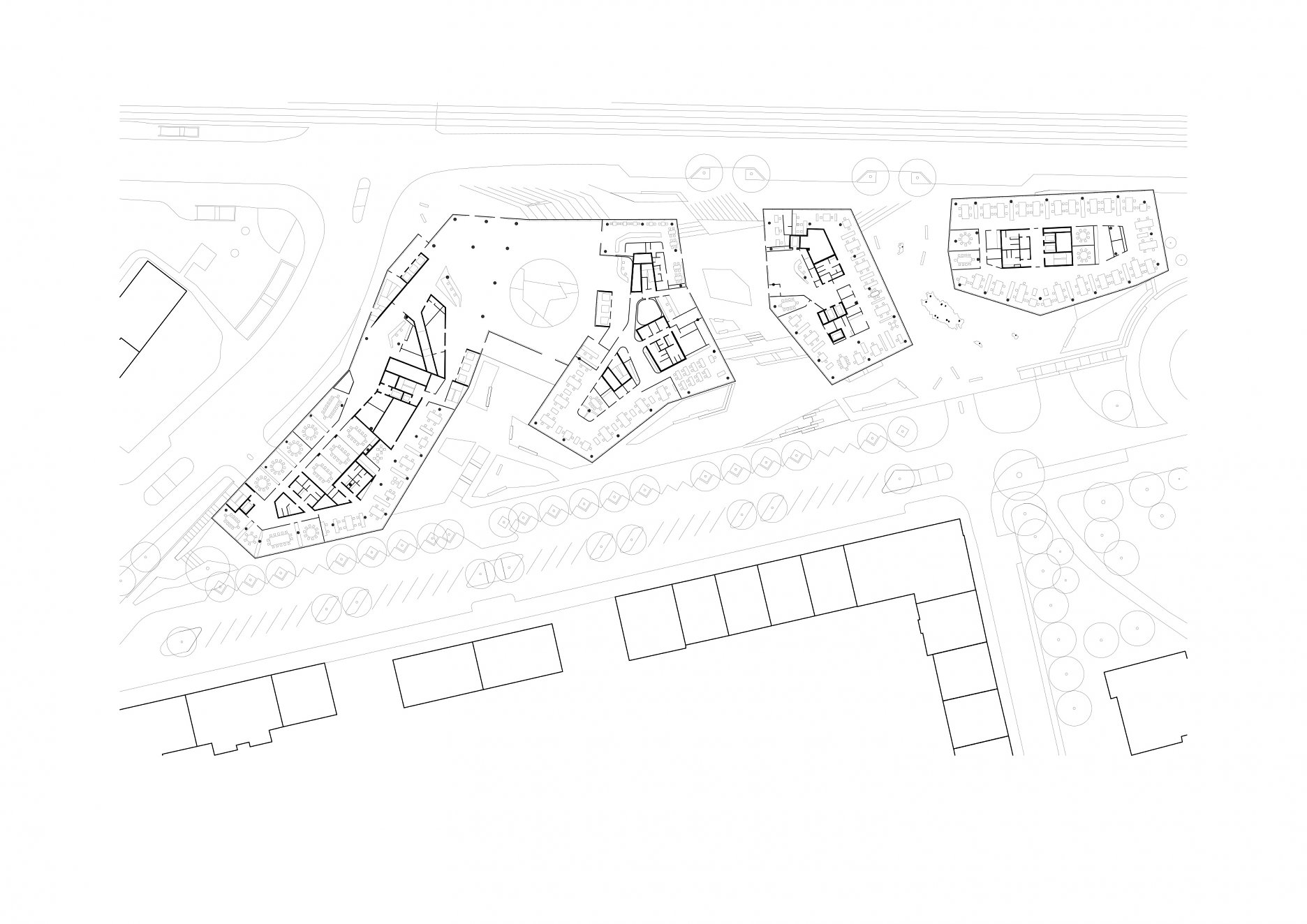
Štyri kancelárske bloky nepravidelného kryštalického tvaru, spojené spoločnou podnožou, ktorá zastrešuje obchody, administratívne plochy a parkovanie.
Pozemok leží pri významnej, ale súčasne rušnej mestskej radiále, vedúcej z centra Prahy na letisko, priamo pri stanici metra. Parcelu s nepravidelným tvarom a prevýšením až 14 metrov obklopuje rôznorodá zástavba - od mestských víl, cez menšie bytové domy, až po panelové domy sídliska.
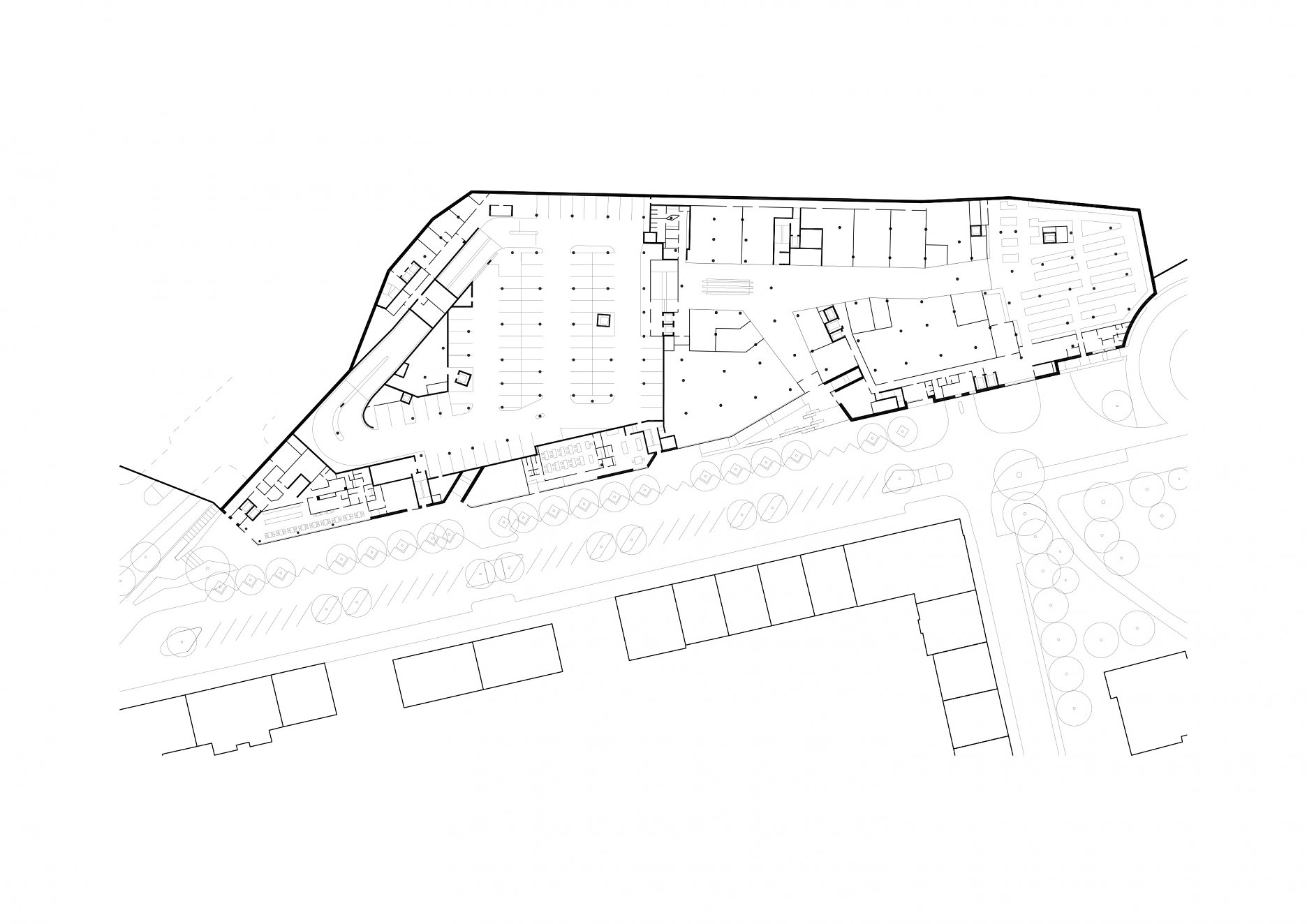
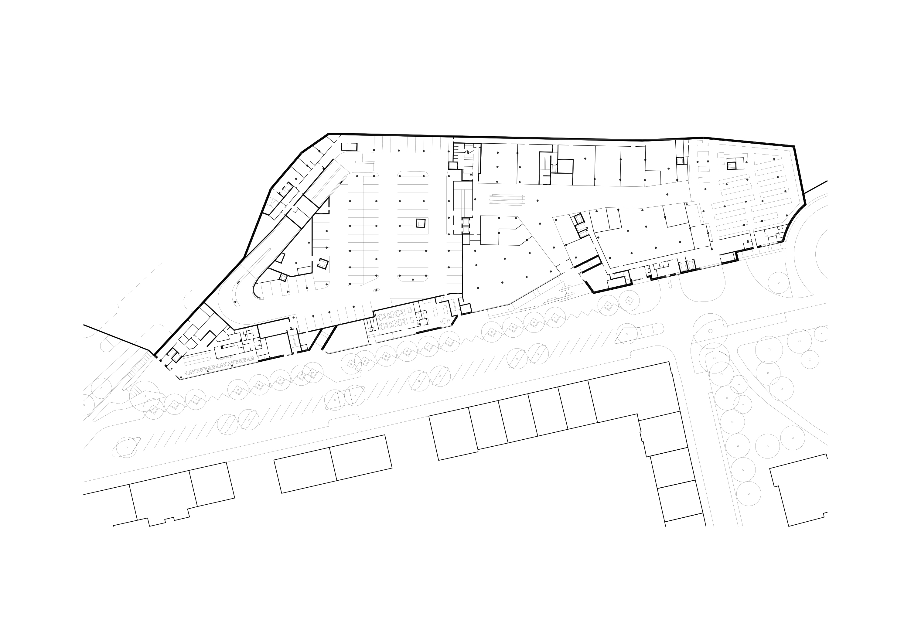
Aj vzhľadom na komplikované východiská usporiadala developerská KKCG REG v roku 2012 medzinárodný architektonický workshop. Výzvou pre všetkých účastníkov workshopu sa stalo optimálne využitie priestoru pri stanici metra a električky. Zadanie spočívalo najmä v efektívnom využití morfológie pozemku. V podzemných častiach projektu na úrovni ulice Kladenská malo vzniknúť malé lokálne obchodné centrum (9 000 m2). Platforma mala slúžiť ako základ pre viacero administratívnych objektov (minimálne tri - s výmerou 26 000 m2). S požiadavkami na “A“ kvalitu kancelárskeho prostredia bola spojená udržateľnosť budúcej prevádzky.
Aj keď mestská trieda Evropská prešla v 20. storočí výrazným rozvojom, nové sídla významných spoločností urbanisticky posilňujú iba charakter mestskej radiály, menej už lokálne mestské prostredie za ňou. Projekt ateliéru Aulík Fišer architekti sa snaží zvrátiť tento trend: “Přesah záměru také do zlepšení prostředí uvnitř navazujícího území byl pro nás nejdůležitějším bodem zadání.“
Výsledná nepravidelná kompozícia priestupného mestského bloku nie je iba vonkajším dizajnom, ale vychádza najmä z logiky prevádzky. “Při studiu historických map jsme si uvědomili, že nepravidelný tvar pozemku v podobě velmi protáhlého trojúhelníku je záznamem historických cest vedoucích k Pražskému hradu. Ostrý úhel, který cesty svírají, je důsledkem jejich různé nivelety. Toto geometrické schéma jsme rozvinuli a průchod pozemkem opět umožnili. Nepravidelnou parcelu jsme strukturovali nepravidelnými segmenty,“ vysvetľujú autori. Administratívne objekty sú položené na nízkej spoločnej platforme, ktorá vyrovnáva veľké terénne rozdiely okolitých ulíc. Medzi jednotlivými administratívnymi blokmi tak vznikajú uličky a verejné priestory, evokujúce zovretú zástavbu, ktorú poznáme z historických centier miest. Príkladom je piazzetta, navrhnutá v miestach historicky doloženého obdobného priestoru. Piazzetta umožňuje bezbariérové spojenie centra a jeho okolia priamo s vestibulom metra. Význam tohto miesta podčiarkuje socha Federica Díaza.
“Použití technicky komplikovaného řešení celoskleněných fasád nebylo cílem samo o sobě ani projevem suverenity kancelářské typologie, ale prostředkem pro vyjádření zvolené blokové kompozice,” pokračujú autori. Zvolené vlastnosti skiel celopresklenej štrukturálnej fasády, vrátane miery reflexie umožňujú vnímať geometrickú celistvosť tvarov, no nevytvárajú vo väčšine pozícií a svetelných podmienok silné zrkadlenie.
Vyrovnávacia platforma, na ktorú sú presklené objekty posadené, je z dôvodu integrácie do mestského prostredia ulice skôr masívneho, tradičného charakteru. Plné plochy stien medzi uličnými výkladmi sú obložené svetlými kamennými doskami.
Štrukturálne presklené fasády sú v pravidelnejších vertikálnych častiach riešené systémom blokových fasád, v zložitejších, lomených, priestorových častiach systémom rastrových fasád. Pri vývoji najkomplikovanejších nosných prvkov boli použité 3D tlačené makety v mierke 1:1. Neobvyklým riešením je transparentné zastrešenie dvorany medzi objektmi I. a II., tvorené priestorovou oceľovou konštrukciou so zapusteným inštalačným priestorom pre technické periférie v dolných pásniciach.
Verejné priestory sú z veľkej časti chránené pred dopravným ruchom mestskej radiály. Administratívne objekty sú vsadené do terasovitých záhrad, interiérom prechádza systém átrií so živou zeleňou.
V architektonickom koncepte Centra Bořislavka autori od začiatku počítali s umeleckými dielami ako neoddeliteľnou súčasťou prostredia. Prvá časť diel, umiestnená vo vopred určených pozíciách exteriéru (piazzetta, priestor pred vstupom do hlavnej budovy) aj interiéru, bola dokončená súčasne s budovami.
Umelecké diela tu boli vždy chápané ako slobodné vyjadrenie umelcov, architektonické libreto vymedzovalo iba ich umiestnenie. Nikdy neexistovalo zadanie v zmysle spoločného východiska uvažovaných diel alebo ich témy, nebola ani nijako definovaná miera integrity alebo kontrastnosti s architektúrou.
Celý komplex získal medzinárodne uznávaný certifikát environmentálnej udržateľnosti LEED Gold, okrem iného za využívanie dažďovej vody, rozsiahle zelené strechy, hospodárenie s energiou (napríklad rekuperáciu energie z výťahov alebo výmenník tepla).
Autori: Aulík Fišer architekti
Podklady: Linka
Fotografie: BoysPlayNice