Advertorial

Pozvánka na 2. ročník stavebného veľtrhu BigMarket na Slovensku

Na podujatí sa predstaví až 37 vystavovateľov - popredných dodávateľov stavebných materiálov a inovácií s prezentáciou...

Hotel Hirschen Spa House, Rakúsko

Novotvar v prostredí alpskej obce.

Vytvorte si kúpeľňu snov: dizajnové riešenie od značky hansgrohe

Hansgrohe - prémiová značka kúpeľňových riešení, ponúka nadčasový dizajn, technickú precíznosť a udržateľné inovácie...

Okná Internorm za minuloročné ceny + hliníkový kryt zdarma!

Využite špeciálnu akciu Internorm: okná za minuloročné ceny a hliníkový kryt úplne zadarmo. Ponuka je časovo obmedzená!

Moderné plynové technológie: Efektivita a inovácie pre 21. storočie

Sumarizácia najdôležitejších inovácií, ktoré redefinujúcich využitie tohto energetického zdroja.

Utesňovanie spodných stavieb pomocou hydro-aktívnej fólie AMPHIBIA.

AMPHIBIA 3000 GRIP 1.3 od spoločnosti ATRO predstavuje modernú hydroizolačnú technológiu, ktorá spája vysokú odolnosť,...

Dekarbonizácia individuálneho vykurovania domácností – Green Deal evolučne a nie revolučne

Ambiciózne plány EK narazili na ekonomické možnosti domácností v jednotlivých členských štátoch –...

Minimalistické dvere IDEA – technická precíznosť a čistota prevedenia

IDEA DOOR od spoločnosti JAP prináša do interiéru čistý minimalistický vzhľad vďaka bezrámovému riešeniu a precíznej...

Dom s výhľadom na údolie, Dlouhý Most (ČR)

Kontinuita riešenia od vonkajšieho obkladu až po kovania a kľučky.

Schell Vitus – osvedčené riešenie pre sprchy a umývadlá vo verejnom sektore s viac ako desaťročnou tradíciou

Nástenné nadomietkové armatúry Vitus sú mimoriadne vhodné pre rýchlu a efektívnu...

Kompozitné okná predstavujú súčasnosť a budúcnosť

Okenné profily z kompozitného materiálu RAU-FIPRO X od spoločnosti Rehau sú v porovnaní s tradičnými plastovými profilmi mnohonásobne...

Myotis - stoly 2025

Najnovší sortiment stolov pre zariadenie interiérov...

Priemyselné sklenené priečky Dorsis Digero: svetelné rozhranie pre moderné interiéry

Spojenie moderného dizajnu, funkčnosti a svetla do harmonického architektonického prvku.

Význam prirodzeného svetla pre moderné a flexibilné pracovné prostredie

Kancelárska budova Baumit v slovinskom Trzine prešla premenou na moderné a udržateľné pracovisko. Architekti kládli dôraz...

Konferencia Xella Dialóg predstaví novinky a trendy v stavebníctve

Mottom šiesteho ročníku on-line konferencie odborníkov Xella Dialóg je Efektívny návrh budov 2025+: zmeny a riešenia

Centrála nadácie pre podporu poľskej vedy

Revitalizácia objektu s viacerými zaujímavými prvkami. Vertikálna zeleň v reálnom nasadení.
Diela
Red 317.12.2015
12860+5
Centrála nadácie pre podporu poľskej vedy
Autori: Adam Białobrzeski, Adam Figurski, Maria MessinaInvestor: Nadácia pre podporu poľskej vedyPlocha pozemku: 1.592 m²Podlažná plocha: 2.180 m²Obostavaný objem: 7.090 m³Návrh: 2009 - 2012Realizácia: 2012 - 2014Adresa: Krasickiego 20/22 , Varšava, PoľskoPublikované: 17. december 2015

Hlavným poznávacím znakom tohto projektu je exteriérová vertikálna záhrada – prvá svojho druhu v Poľsku. Budova sa tak stala súčasťou zelene typickej pre túto mestskú časť. Zelená fasáda stiera hranice, zjemńuje hrany a kontrastuje s prísnou geometriou šedých betónových panelov. Výraz budovy sa mení s postupom času a striedaním ročných období. Výber rastlín bral v úvahu lokalitu a istá voľnosť bola ponechaná aj prírode – je iba otázkou času kedy sa tu rozrastú priviate semiačka…

foto: Bartłomiej Senkowski

Objekt sa nachádza na sídlisku Wierzbno, ktoré je súčasťou varšavskej štvrtí Mokotów blízko centra mesta. Táto štvrť sa pripojila k mestu v tridsiatych rokoch. Krátko nato tu začala výstavba víl zasadených doprostred zelene. Pôvodná nízkopodlažná zástavba utrpela vážne škody počas bombardovania Varšavy v priebehu druhej svetovej vojny. Bytový dom, ktorý dostali architekti za úlohu prestavať bol postavený už v roku 1933. Počas vojny bol tiež vážne poškodený. Po zásahu bola zrútená väčšina prednej fasády a došlo aj vážnemu poškodeniu stropov na všetkých podlažiach. Zvyšok budovy bol zničený ohňom. “… praskliny v múroch vážne narušujú statiku budovy”.”Uličná fasáda bola zničená tlakovou vlnou, zvyšok budovy – strecha a druhé nadzemné podlažie vyhoreli”. Inšpektor J.Maliszewski, 17.08.1945.
Po vojne bolo rozhodnuté že budova v takomto stave musí byť zbúraná. Avšak aj vďaka akútnemu nedostatku ubytovacích kapacít (až 72% obytných budov v meste bolo zničených) bolo rozhodnuté že budova bude zachránená a zrekonštruovaná. Záchranné práce na budove prebehli v krátkom čase. Aj vďaka absencii kvalitného stavebného materiálu a nedostatku zručných remeselníkov bola budova zrekonštruovaná veľmi nekvalitne a pôvodný vzhľad nebol obnovený. Objekt na základe analýzy, vyžadoval zásadnú sanáciu. Zásahy sa týkali najmä zosilnenia a nahradenia dočasných konštrukcií, ktoré boli zrealizované besprostredne po vojne. Bolo potrebné zosilniť základy, podlahy a nosné steny. Každý z rohov budov je podporený z vonkajšej strany po celej výške objektu prostredníctvom externých oceľových výstuží. Vystužené bolo taktiež pôvodné prefabrikované schodisko.

Širšia situácia
Širšia situácia

Budova je pamiatkovo chránená. Pamiatkový úrad trval hlavne na zachovaní pôvodného objemu budovy a členenia fasádnych otvorov. Zachovanie proporcie štítového múru a zbytku uličnej fasády bolo takisto podmienkou. Podmienky stanovené pamiatkarmi takisto neumožńovali zväčšiť pôdorysnú plochu budovy a symetria jednotlivých pohľadov musela byť tiež dodržaná.

foto: Bartłomiej Senkowski

Likvidácia plotu na strane ulice umožňuje zväčšenie verejného priestoru prislúchajúceho budove. Pre verejnosť bol sprístupnená aj záhrada. Budova nie je jediným príkladom pozemku, ktorý nie je oddelený od mestskej zástavby prostredníctvom fyzickej bariéry  na 900 metrovej Krasického ulici. Výrazným prvkom projektu je perforácia na úrovni prízemia, ktorá vizuálne prepája ulicu a záhradu.

situácia
situácia

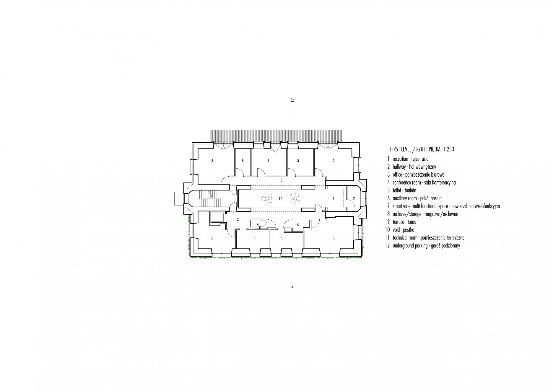
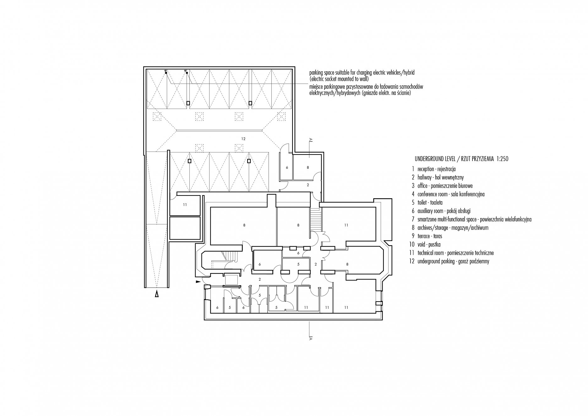
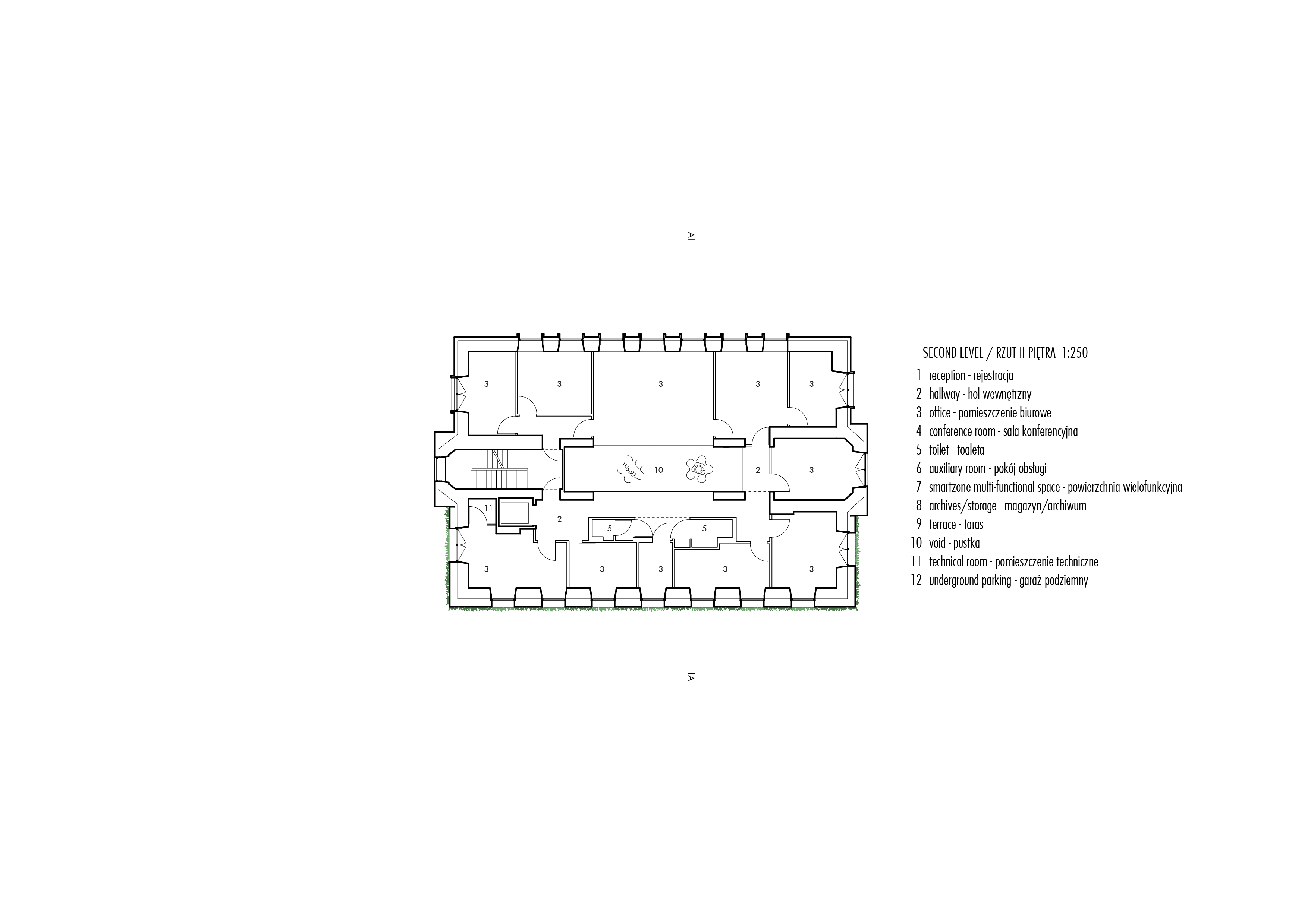
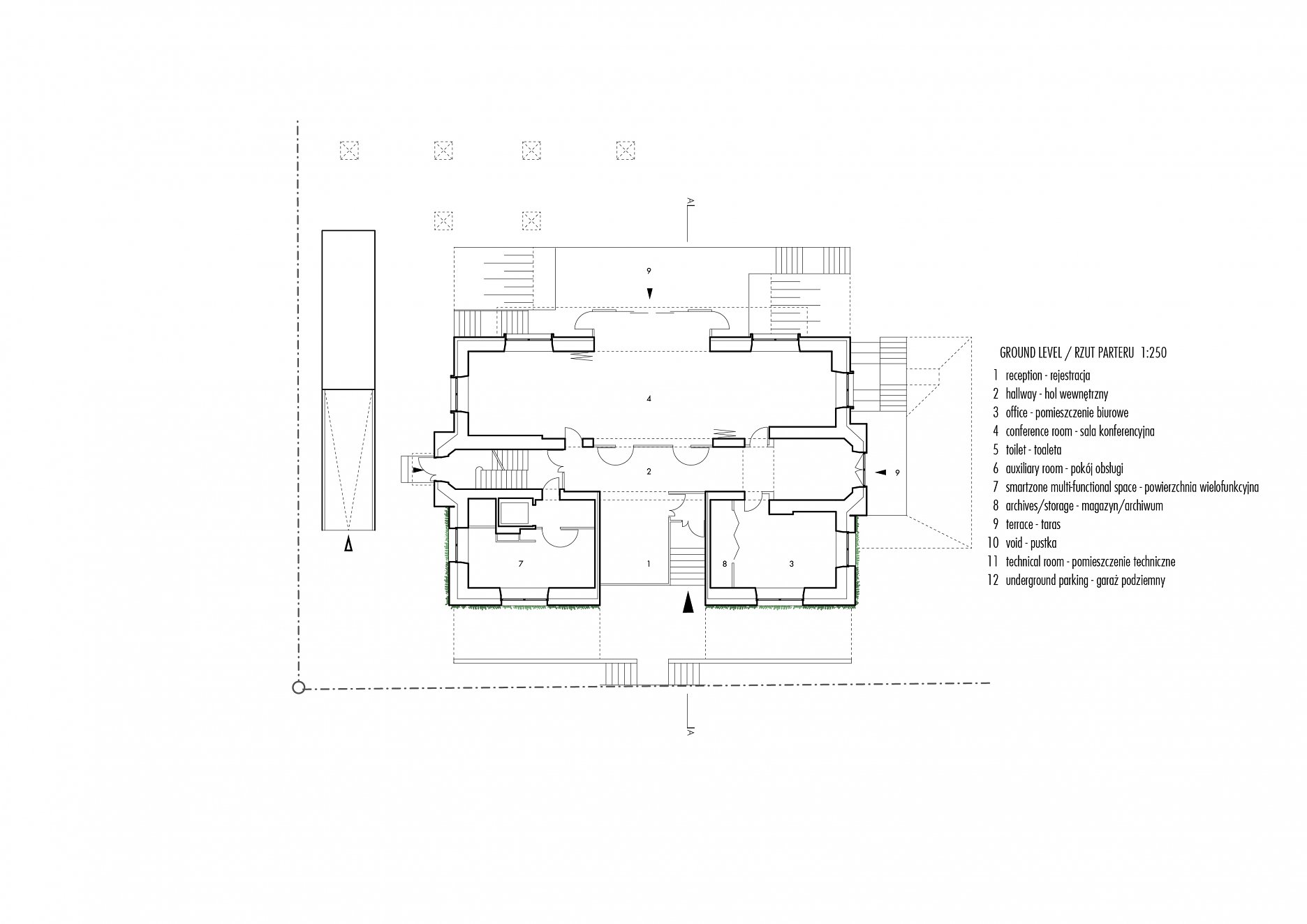
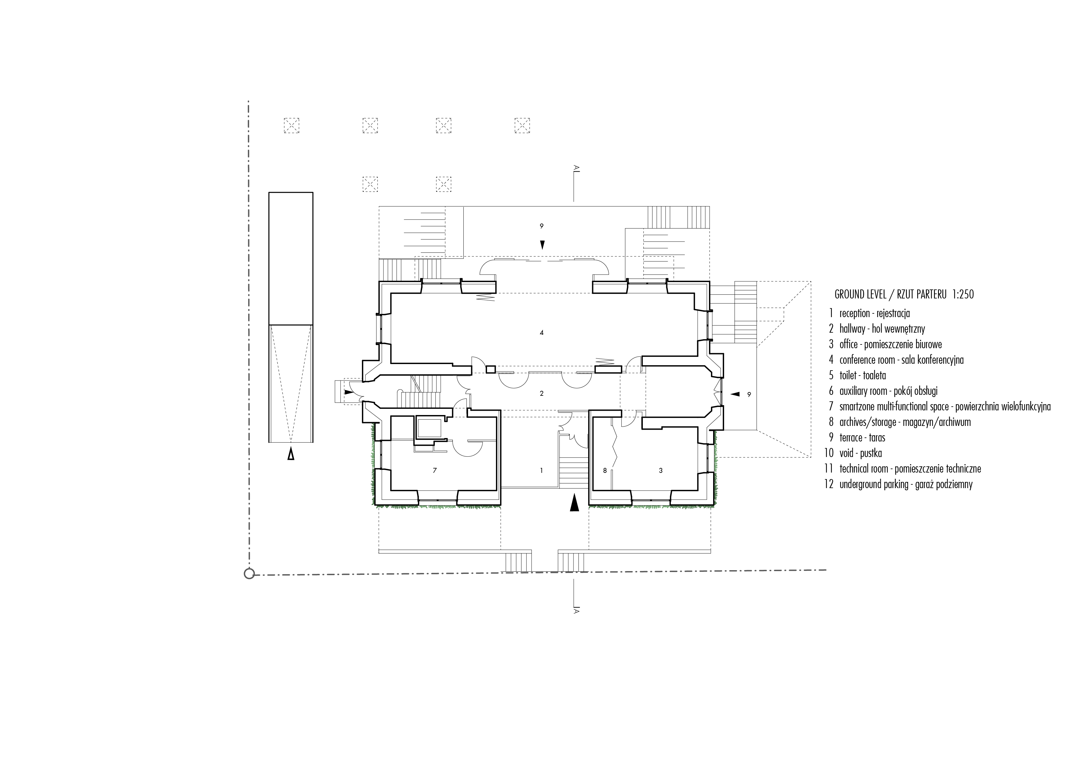
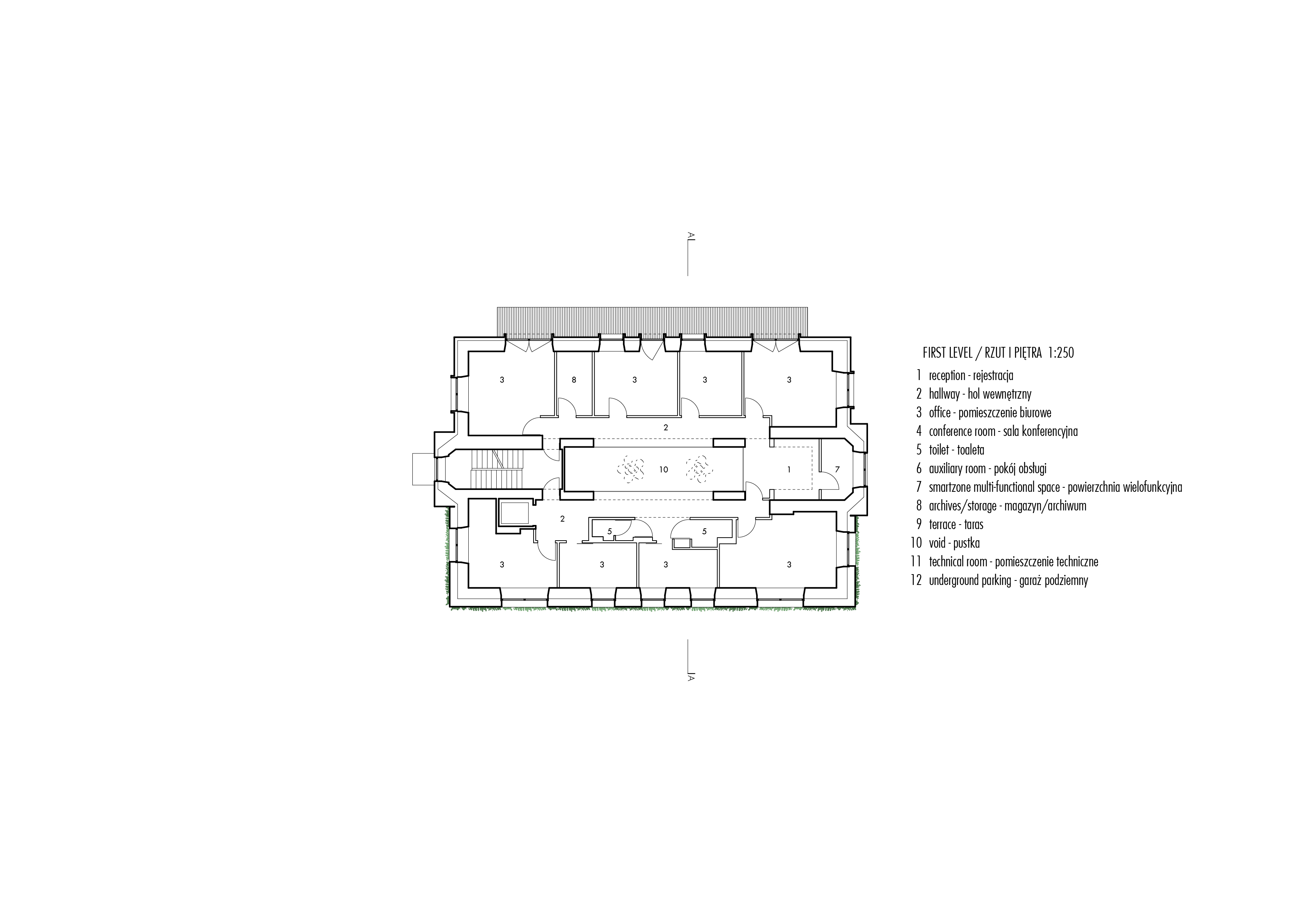
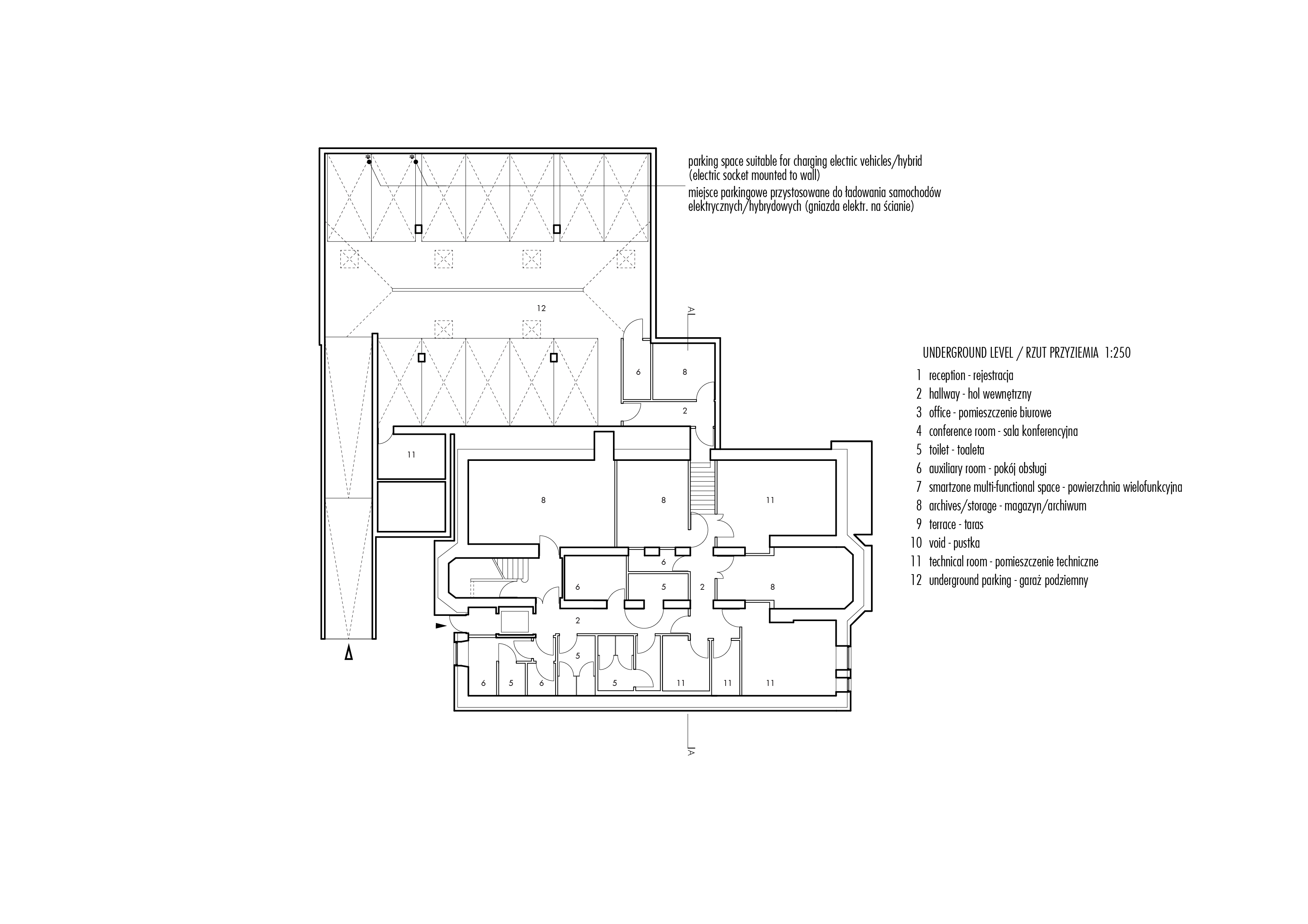
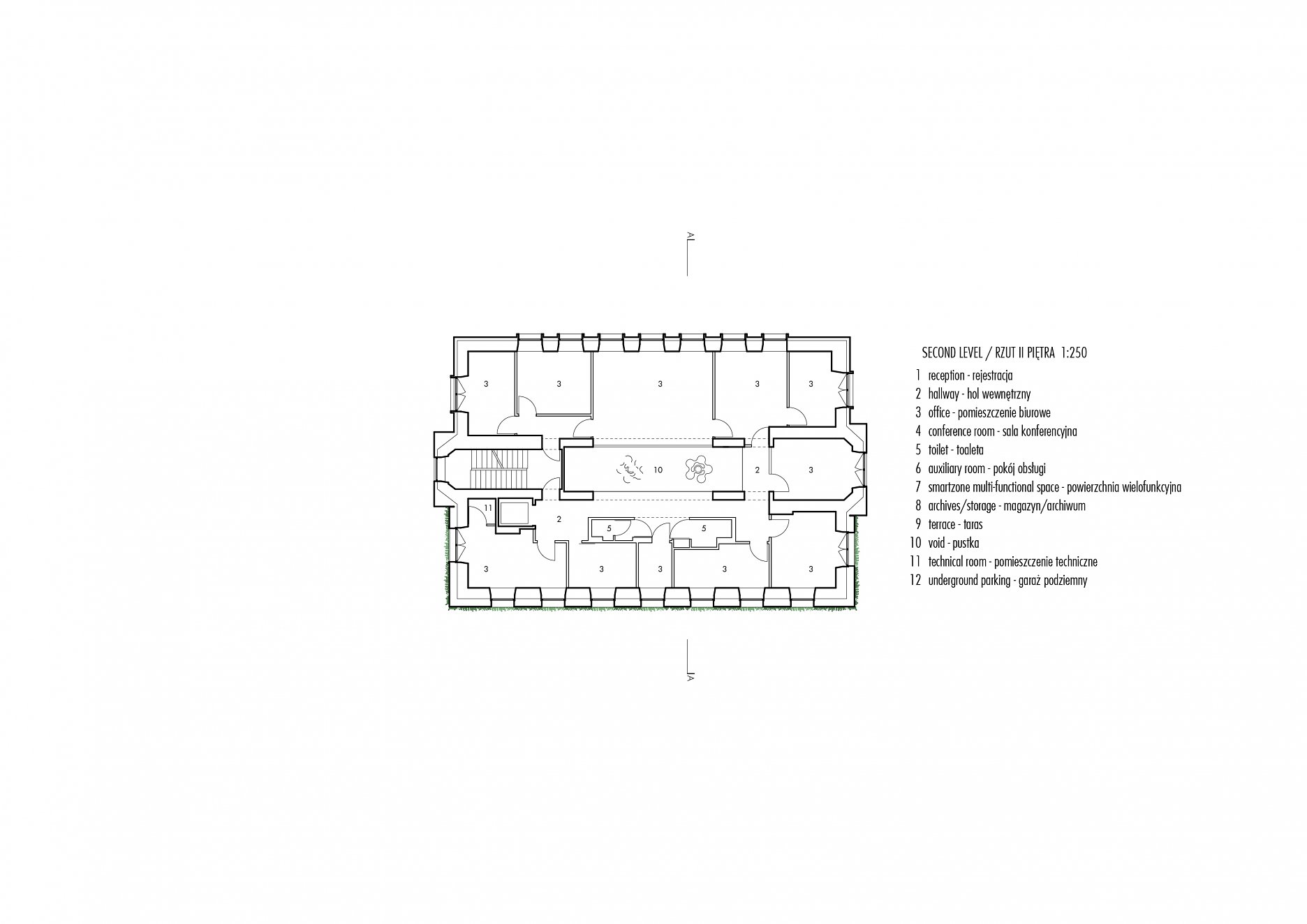
Bytový dom bol prestavaný na administratívnu budovu. Budovamá má štyri nadzemné podlažia a suterén. V suteréne je umiestnené  parkovisko, technické zázemie a miestnosti archívu. Na prízemí je  recepcia, konferenčné miestnosti, viacúčelový priestor a kancelárie. Na vyšších podlažiach sa nachádzajú kancelárie

Pôdorys 1 PP
Pôdorys 1 PP
Pôdorys 1 NP
Pôdorys 1 NP
Pôdorys 2 NP
Pôdorys 2 NP
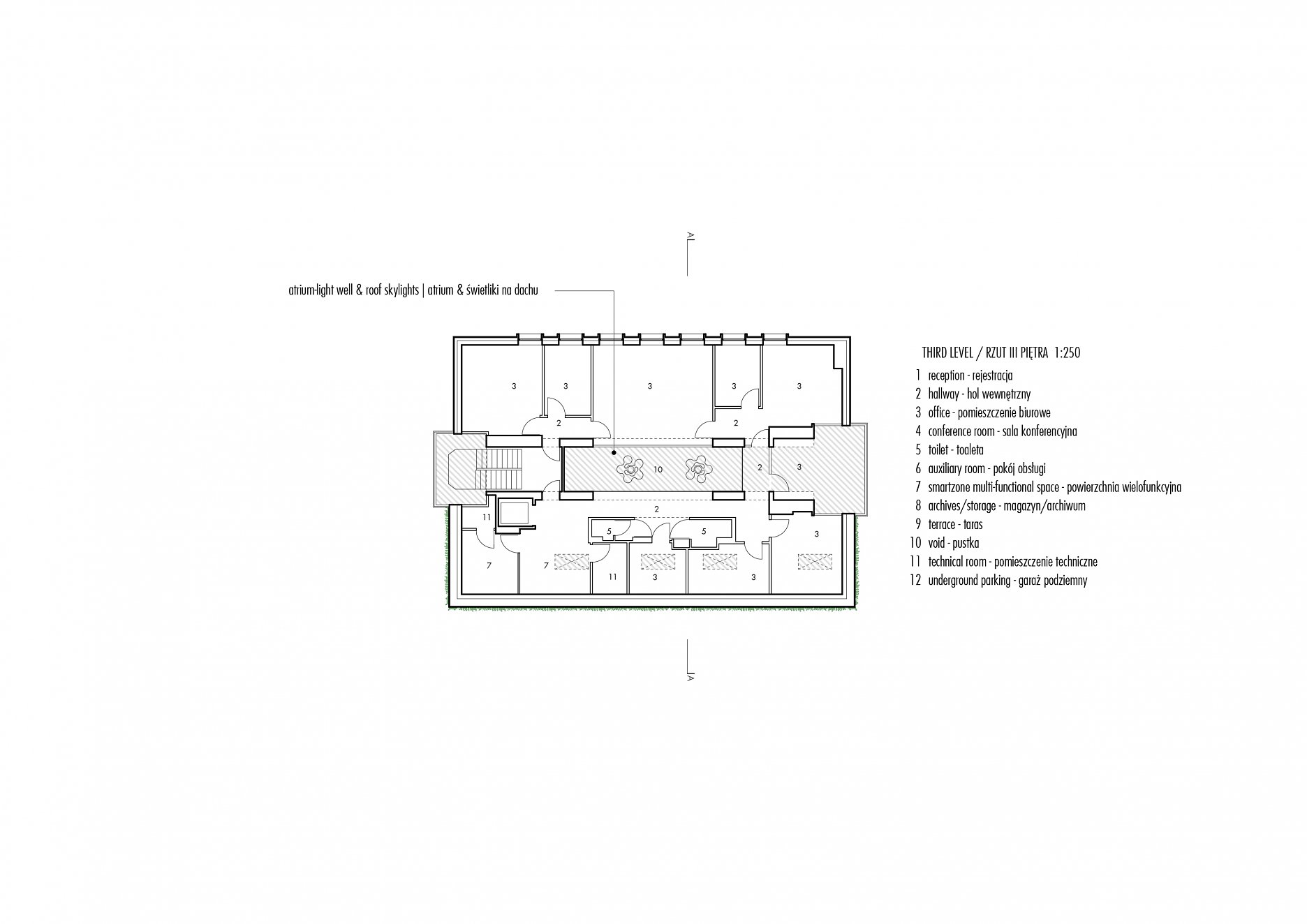
Pôdorys 3 NP
Pôdorys 3 NP
Pôdorys 4 NP
Pôdorys 4 NP
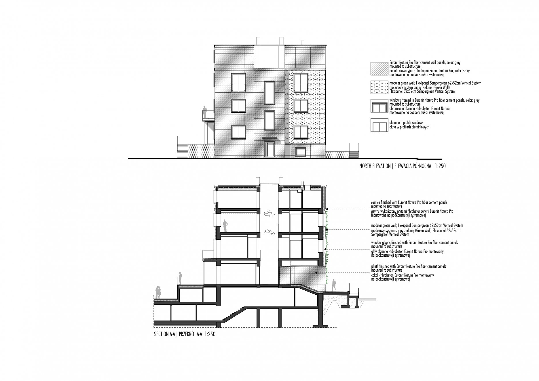
Rezy
Rezy

Vnútorné átrium, ktoré prechádza cez všetky nadzemné podlažia vedie denné svetlo do budovy. Átrium, perforácia na úrovni prízemia a okná vytvárajú spolu systém, ktorý dovoľuje presvetliť 96% plochy interiéru vrátane kancelárií, chodieb a spoločných priestorov. Prízemie a podzemné parkovisko (presvetlené pomocou svetlíkov) nepotrebujú v priebehu dňa umelé osvetlenie.

Schéma preslnenia
Schéma preslnenia
foto: Bartłomiej Senkowski

Vertikálna vegetačná stena pomáha vylepšiť vnútornú mikroklímu budovy. Zelená plocha, ktorá sa rozprestiera na uličnej a oboch bočných fasádach má spolu 260 m2. Je to v súčastnosti jediná vertikálna záhrada v Poľsku.

foto: Bartłomiej Senkowski

Na zazelenanie bolo vybraných 20 rôznych druhov rastlín. Niektoré z nich sú zelené počas celého roku, iné zas zaujmú svojou farebnosťou počas teplejších ročných období. Špeciálny druh bobuloviny dokonca vytvára farebný ackent počas zimy. Umiestnenie jednotlivých druhov rastlín bolo konzultované so záhradnými architektami. Požadovaný geometrický vzor by sa mal objaviť na konci tretieho roku po výsadbe (v septembri 2016)

Skladba zelenej plochy
Skladba zelenej plochy

Výživu rastlín zabazpečuje zavlažovací systém so senzormi, ktorý je integrovaný na povrchu panelov. Na základe zozbieraných informácií zavlažovací systém kontinuálne a rovnomerne distribuuje vodu spolu s umelým hnojivom pozdĺž celého profilu  zelenej steny. Prebytočná voda odteká do zbernej nádoby situovanej v spodnej časti. Proces je kontrolovaný v reálnom čase a možno ho sledovať on-line. Výsadby vytvárajú vlastný sebestačný ekosystém, v ktorom odumreté časti rastlín produkujú organickú hmotu poskytujúcu výživné látky na ďalší rast zelene. Týmto je samotná údržba pomerne jednoduchá a vykonáva sa maximálne 1 až 3 krát za rok. Rastlinné steny sa skladajú z variabilných prvkov, ktoré môžu byť jednoducho nahradené  po jednotkách, bez toho, aby došlo k oslabeniu samotnej steny. Použitý substrát je 100% rastlinný a jeho kapacita absorpcie predstavuje až 20-násobok svojej vlastnej hmotnosti. Substrát zároveň uvoľňuje kyslé zložky, ktoré zabraňujú množeniu baktérií. Rastlinná stena umožňuje voľný priechod vzduchu medzi stavaným múrom a rastlinnou stenou, čo zabezpečuje nezávislosť stavanej steny voči vegetácii a zväčšuje tepelnú a akustickú izoláciu. Vertikálna záhrada berie do úvahy aj svoju lokalitu. Pri výsadbe boli použité výhradne lokálne rastliny.

detailný rez fasádou
detailný rez fasádou

Biologicky aktívny povrch podporujúci vsakovanie dažďovej vody pokrýva takmer 67% pozemku. Spolu s vertikálnou záhradou tvorí  zeleň až 82% povrchu. Dažďová voda zozbieraná zo strechy a dláždených plôch je zvedená do podzemnej zbernej nádrže. Voda je ďaľej využívaná na zavlažovanie, čo pomáha znižovať zaťaženie mestskej kanalizácie.

foto: Bartłomiej Senkowski
foto: Bartłomiej Senkowski
foto: Bartłomiej Senkowski

Zachované interiérové schodisko je súčasťou veľmi osobitej architektúry Varšavy 20 a 30 rokov dvadsiateho storočia. Konzolové prefabrikované stupne vyhotovené zo zeleného terrazza sú na podestách doplnené charakteristickými jemnými kachličkami. Podlahy zdobené týmito špecifivckými farebnými kachličkami možno nájsť v predvojnových budovách po celej Európe, vrátane Amsterdamu, Paríža a Bruselu. Schodisko bolo doplnené novotvarom zábradlia. Zábradlie tvoria prvky z na čierno natretej oceľe a skla, pričom oceľové časti slúžia aj ako dodatočná výstuž schodiska. Nosné sú najmä prvky nachádzajúce sa pod originálnymi stupňami

foto: Bartłomiej Senkowski
foto: Bartłomiej Senkowski
foto: Bartłomiej Senkowski
foto: Bartłomiej Senkowski
Stav pred rekonštrukciou
Stav pred rekonštrukciou
foto: Bartłomiej Senkowski
foto: Bartłomiej Senkowski
Pôvodný stav, vľavo pohľad z ulice, vpravo zo záhrady
Pôvodný stav, vľavo pohľad z ulice, vpravo zo záhrady
Stav schodiska pred rekonštrukciou.
Stav schodiska pred rekonštrukciou.

Budova je vybavená inteligentným systémmom merania a regulácie. Inteligentná elektroinštalácia dokáže spravovať spotrebu elektriny v reálnom čase. Architekti sa snažili aj takýmto spôsobom znížiť  spotrebu energie a vplyv na sieť mestskej časti.

foto: Bartłomiej Senkowski

Cieľom projektu bolo vytvoriť udržateľné a moderné kancelárske priestory, pričom bolo nutné zachovať charakter pôvodnej budovy z roku 1933. Napriek vážnemu poškodeniu následkom bombardovania počas druhej svetovej vojny budova mala aj pred rekonštrukciou architektonické kvality. Podarilo sa zachrániť dôležité a hodnotné prvky budovy ako napríklad schodisko a dlaždice v interiéri, čím sa zachovala historická atmosféra budovy. Podobnú remeselnú kvalitu môžeme obdivovať v starších bytových domoch v Paríži, Amsterdame Bruseli… Lokalita výrazne ovplivnila koncept projektu. Bolo použité maximálne množstvo zelene a pozemok sa otvoril do ulice ako verejný priestor, čo odkazuje na predvojnové usporiadanie štvrte. Citlivo realizované zásahy ako strešné svetlíky a podzemné parkovisko umožnili zmenu funkcie budovy.  Architekti však neostali iba pri konvenčných stavebných riešeniach, zavrhli a realizovali v stredoeurópskom kontexte ojedinelú exteriérovú vertikálnu záhradu. Toto riešenie výrazne prispelo k zlepšenej ekologickej bilancii budovy a efektívnemu vodnému hospodárstvu.

Poloha diela

Adam Białobrzeski
Adam Figurski
Maria Messina
Vložené
17. december 2015
0
1286
Hlavný obsahHlavný obsah
Čakajte prosím