Advertorial

Pozvánka na 2. ročník stavebného veľtrhu BigMarket na Slovensku

Na podujatí sa predstaví až 37 vystavovateľov - popredných dodávateľov stavebných materiálov a inovácií s prezentáciou...

Hotel Hirschen Spa House, Rakúsko

Novotvar v prostredí alpskej obce.

Vytvorte si kúpeľňu snov: dizajnové riešenie od značky hansgrohe

Hansgrohe - prémiová značka kúpeľňových riešení, ponúka nadčasový dizajn, technickú precíznosť a udržateľné inovácie...

Okná Internorm za minuloročné ceny + hliníkový kryt zdarma!

Využite špeciálnu akciu Internorm: okná za minuloročné ceny a hliníkový kryt úplne zadarmo. Ponuka je časovo obmedzená!

Moderné plynové technológie: Efektivita a inovácie pre 21. storočie

Sumarizácia najdôležitejších inovácií, ktoré redefinujúcich využitie tohto energetického zdroja.

Utesňovanie spodných stavieb pomocou hydro-aktívnej fólie AMPHIBIA.

AMPHIBIA 3000 GRIP 1.3 od spoločnosti ATRO predstavuje modernú hydroizolačnú technológiu, ktorá spája vysokú odolnosť,...

Dekarbonizácia individuálneho vykurovania domácností – Green Deal evolučne a nie revolučne

Ambiciózne plány EK narazili na ekonomické možnosti domácností v jednotlivých členských štátoch –...

Minimalistické dvere IDEA – technická precíznosť a čistota prevedenia

IDEA DOOR od spoločnosti JAP prináša do interiéru čistý minimalistický vzhľad vďaka bezrámovému riešeniu a precíznej...

Dom s výhľadom na údolie, Dlouhý Most (ČR)

Kontinuita riešenia od vonkajšieho obkladu až po kovania a kľučky.

Schell Vitus – osvedčené riešenie pre sprchy a umývadlá vo verejnom sektore s viac ako desaťročnou tradíciou

Nástenné nadomietkové armatúry Vitus sú mimoriadne vhodné pre rýchlu a efektívnu...

Kompozitné okná predstavujú súčasnosť a budúcnosť

Okenné profily z kompozitného materiálu RAU-FIPRO X od spoločnosti Rehau sú v porovnaní s tradičnými plastovými profilmi mnohonásobne...

Myotis - stoly 2025

Najnovší sortiment stolov pre zariadenie interiérov...

Priemyselné sklenené priečky Dorsis Digero: svetelné rozhranie pre moderné interiéry

Spojenie moderného dizajnu, funkčnosti a svetla do harmonického architektonického prvku.

Význam prirodzeného svetla pre moderné a flexibilné pracovné prostredie

Kancelárska budova Baumit v slovinskom Trzine prešla premenou na moderné a udržateľné pracovisko. Architekti kládli dôraz...

Konferencia Xella Dialóg predstaví novinky a trendy v stavebníctve

Mottom šiesteho ročníku on-line konferencie odborníkov Xella Dialóg je Efektívny návrh budov 2025+: zmeny a riešenia

Centrum superpočítačov debrecínskej univerzity

Moderná technologická "kaplnka". Introvertná budova sa podriaďuje svojej funkčnej náplni. Čisté plochy fasád s minimom stavebných otvorov kontrastujú s okolitou zástavbou.
Diela
Red 303.11.2016
4610+7
Centrum superpočítačov debrecínskej univerzity
Autori: Dr. Marcel Ferencz Habil, DLASpolupráca: Dr. György Détári György, DLAPodlažná plocha: 400 m2Návrh: 2014 - 2015Realizácia: 2015 - 2015Adresa: Kassai útca 26, Debrcín, MaďarskoPublikované: 3. november 2016

V kampuse debrecínskej Univerzity vznikol ako výsledok spolupráce s Národným inštitútom pre rozvoj informačnej infraštruktúry nový superpočítač s výpočtovým výkonom 254 Tflop/s. Maďarsko sa tak dostalo na 308 miesto v celosvetovom rebríčku TOP500, kde sú zahrnuté najvýkonnejšie systémy súčasnosti. Pre porovnanie náš najvýkonnejší superpočítač Aurel má výkon 128 Tflop/s.

Úlohou nového počítača patriaceho do infraštruktúry HPC (sieť superpočítačov v piatich maďarských mestách) je urýchliť výpočty výskumných tímov univerzity. Superpočítač je k dispozícii aj pre firmy z komerčnej sféry a súkromníkov. Súčasťou projektu je aj dátové úložisko pre potreby univerzity. “Nové počítačové centrum približuje IT infraštruktúru Debrecínskej univerzity blízko k lídrom v oblasti” hovorí rektor Debreceni Egyetem István Gaál.

Foto: Tamás Bujnovszky

Celý systém sa nachádza v novej dvojpodlažnej budove situovanej na pozemku Fakulty informatiky. 

Situácia
Situácia

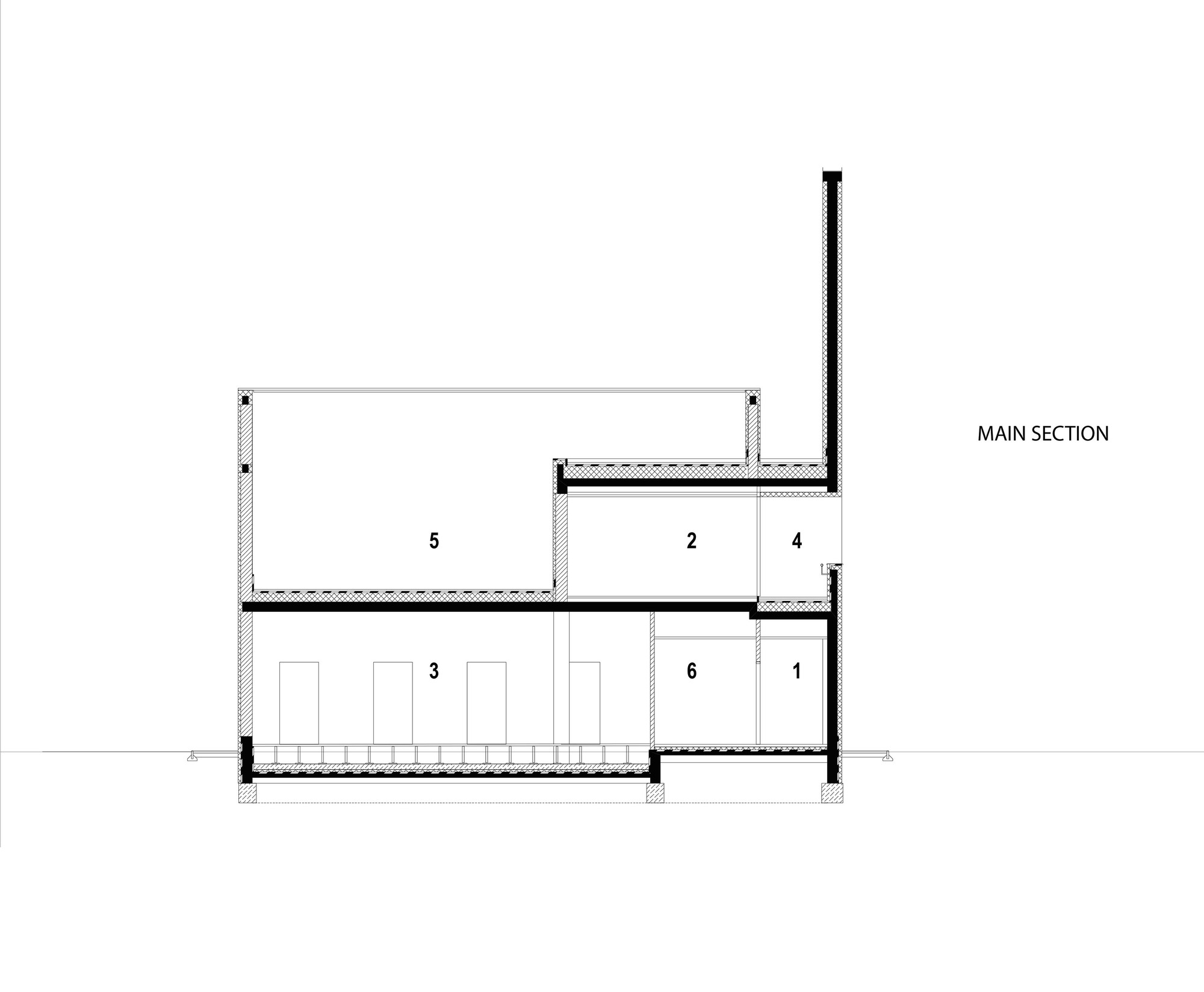
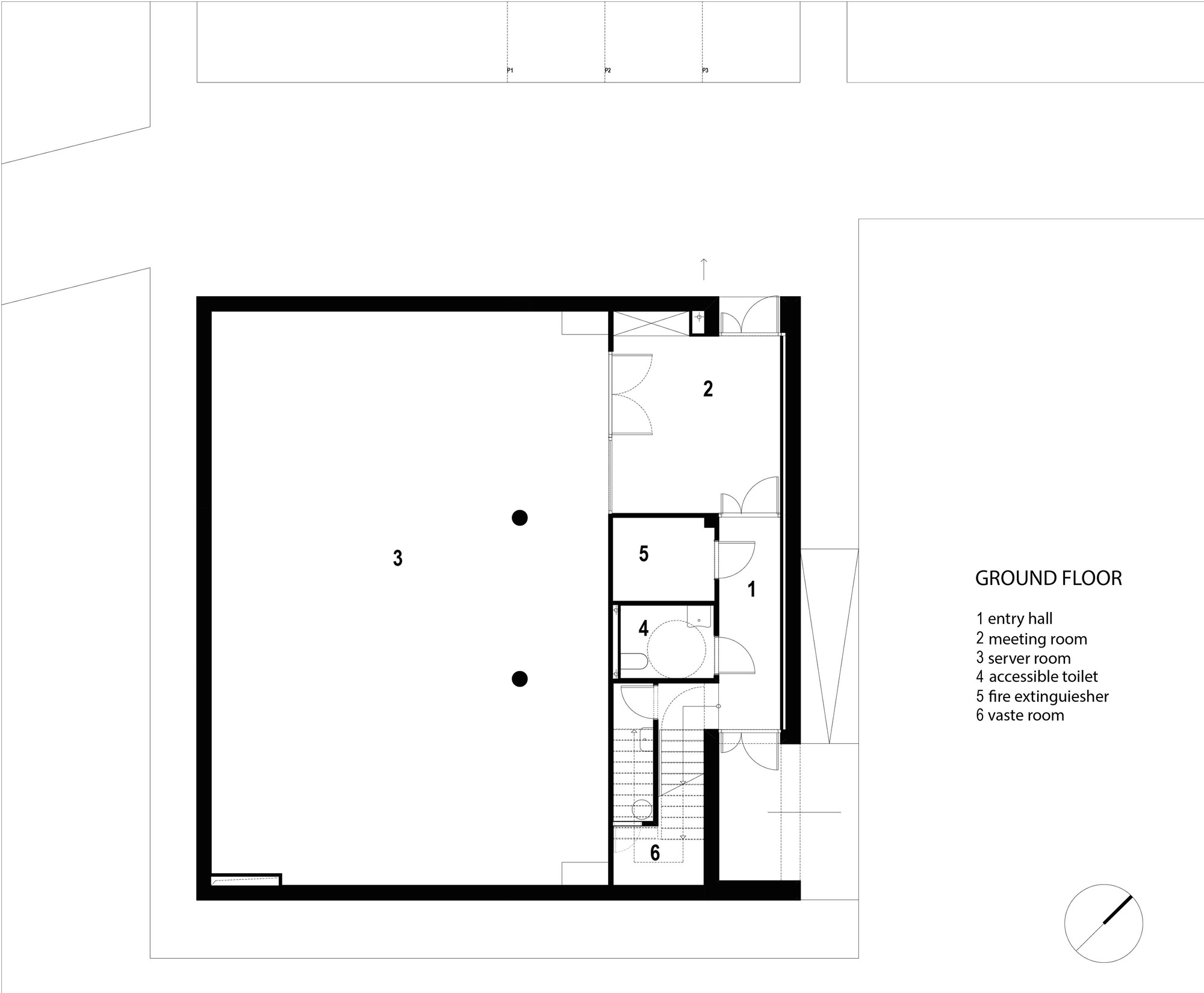
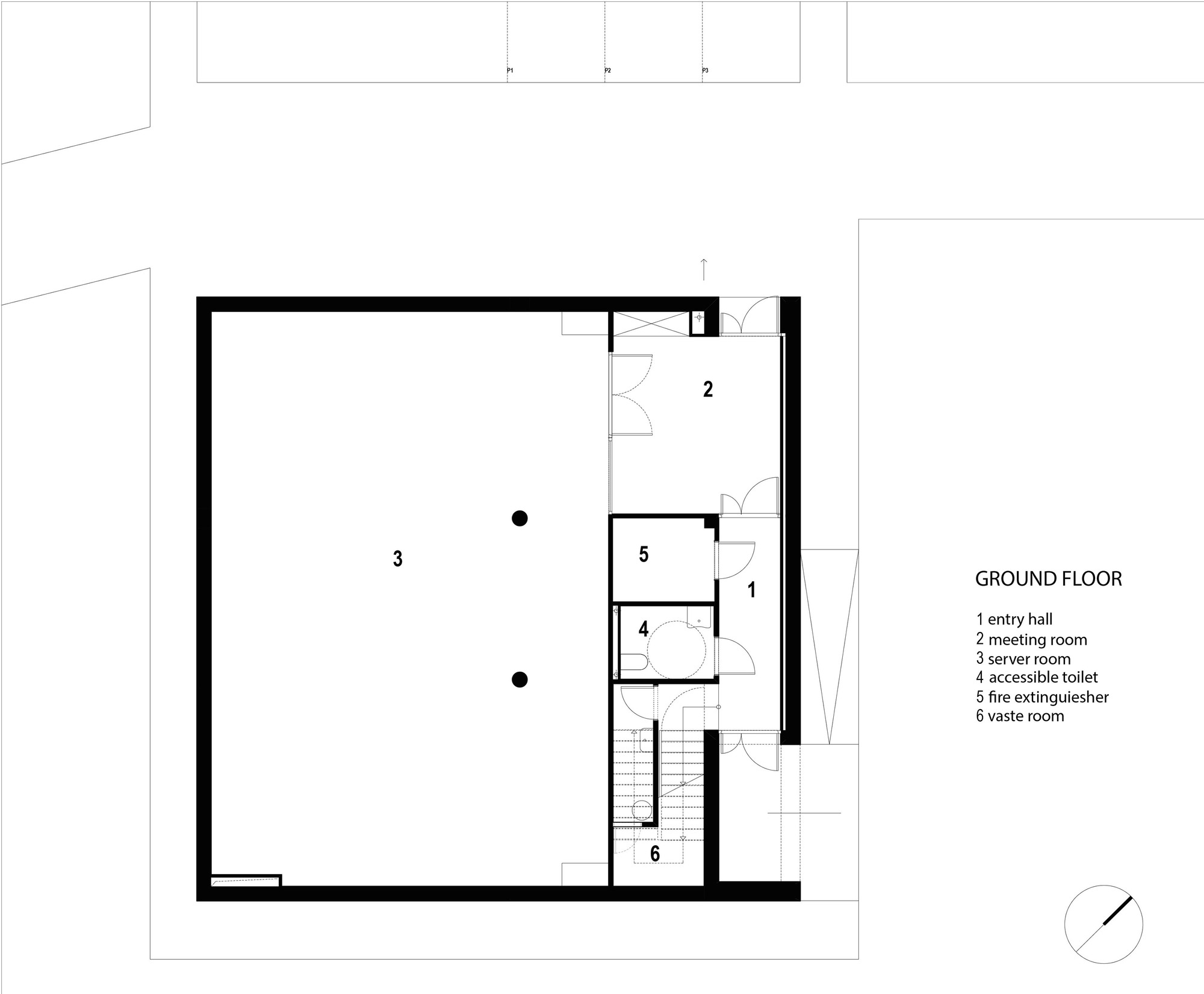
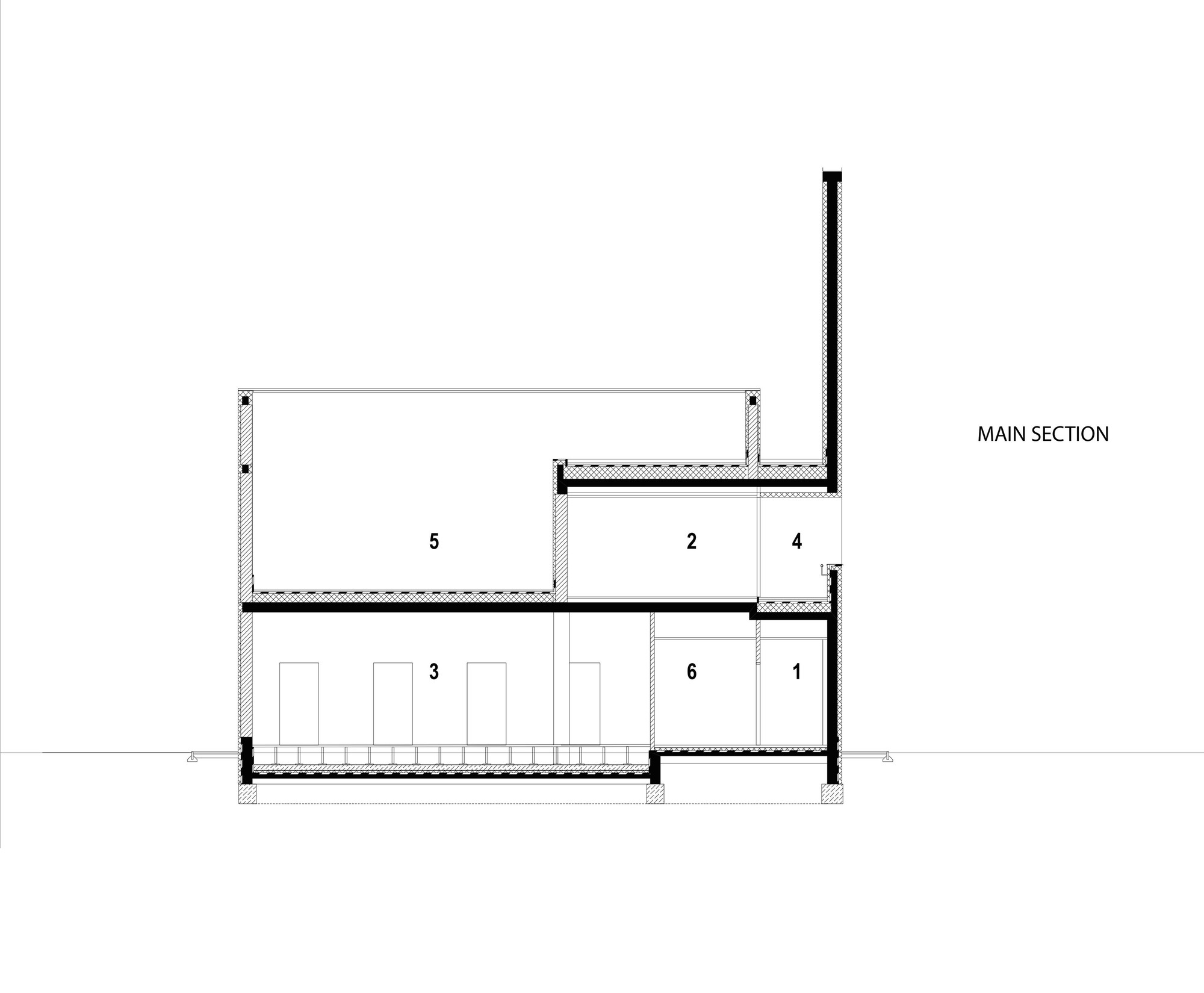
Z celkovej podlažnej plochy 400m2 zaberá 150m2 serverovňa, ktorá sa nachádza na prízemí. Zvyšok podlažia zaberajú obslužné priestory a zasadačka. 

Pôdorys 1.NP
Pôdorys 1.NP

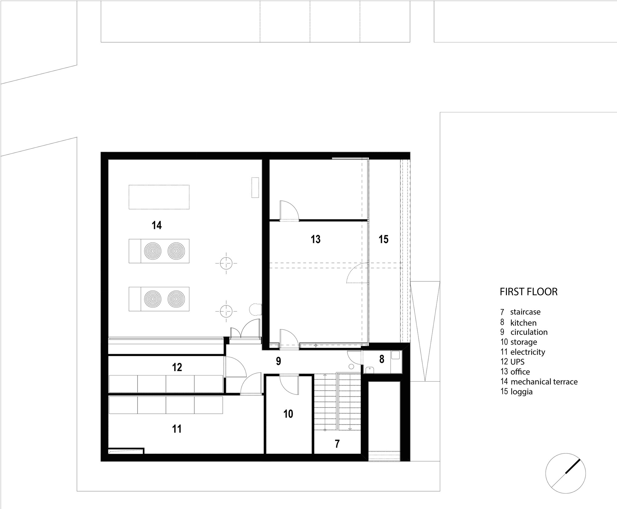
Na druhom nadzemnom podlaží najväčšiu časť zaberajú chladiace jednotky, ktoré sú umiestnené v exteriérovom priestore s otvorenou strechou. Na strojovňu chladenia nadväzuje elektroinštalácia a záložné zdroje. Na zvyšnej ploche (70m2) je výskumné pracovisko. Priestorová rezerva budovy umožňuje hardwarový upgrade do budúcnosti. V priebehu niekoľkých rokov bude možné zdvojnásobiť počet jadier superpočítača.

Pôdorys 2.NP
Pôdorys 2.NP
Rez
Rez
Pohľad severný
Pohľad severný
Foto: Tamás Bujnovszky

Budova stojí vedľa nedávno postaveného informačného centra pre udržateľné budovy (DEM). Centrum je verejne prístupné a slúži ako demonštrácia progresívnych technológií vo výstavbe a ako meracie a testovacie stredisko. Táto stavba sa hneď po svojom dokončení stala obľúbenou a vedenie univerzity požadovalo kvalitné architektonické riešenie aj pre centrum superpočítačov.

Foto: Tamás Bujnovszky

Obe susediace budovy majú zhodný pôdorys, výšku a geometriu. Vytvárajú jednotný kompozičný celok. Stavba, kde sa nachádza superpočítač pôsobí na rozdiel od ľahkej oceľovej konštrukcie DEM solídnym dojmom. Jednoduchá geometrická hmota vyznieva na pozadí heterogénnej zástavby ako sochárske dielo. Napriek obmedzenému rozpočtu sa architektom podarilo ozvláštniť inak veľmi racionálnu a elementárnu formu reliéfom, ktorý evokuje funkčnú náplň stavby. Nové objekty definujú priestorové vzťahy v rozvíjajúcom sa kampuse Fakulty informatiky.

Foto: Tamás Bujnovszky
Foto: Tamás Bujnovszky
Foto: Tamás Bujnovszky
Foto: Tamás Bujnovszky
Foto: Tamás Bujnovszky
Foto: Tamás Bujnovszky
Foto: Tamás Bujnovszky
Foto: Tamás Bujnovszky
Foto: Tamás Bujnovszky
Foto: Tamás Bujnovszky
Foto: Tamás Bujnovszky
Foto: Tamás Bujnovszky
Foto: Tamás Bujnovszky
Foto: Tamás Bujnovszky
Foto: Tamás Bujnovszky
Foto: Tamás Bujnovszky
Foto: Tamás Bujnovszky
Foto: Tamás Bujnovszky
Foto: Tamás Bujnovszky
Foto: Tamás Bujnovszky
Foto: Tamás Bujnovszky
Foto: Tamás Bujnovszky
Foto: Tamás Bujnovszky
Foto: Tamás Bujnovszky
Foto: Tamás Bujnovszky
Foto: Tamás Bujnovszky
Detaily
Detaily

Podklady: NAPUR architect

Poloha diela

Dr. Marcel Ferencz Habil, DLA
Vložené
2. november 2016
0
461
Hlavný obsahHlavný obsah
Čakajte prosím