Advertorial

Pozvánka na 2. ročník stavebného veľtrhu BigMarket na Slovensku

Na podujatí sa predstaví až 37 vystavovateľov - popredných dodávateľov stavebných materiálov a inovácií s prezentáciou...

Hotel Hirschen Spa House, Rakúsko

Novotvar v prostredí alpskej obce.

Vytvorte si kúpeľňu snov: dizajnové riešenie od značky hansgrohe

Hansgrohe - prémiová značka kúpeľňových riešení, ponúka nadčasový dizajn, technickú precíznosť a udržateľné inovácie...

Okná Internorm za minuloročné ceny + hliníkový kryt zdarma!

Využite špeciálnu akciu Internorm: okná za minuloročné ceny a hliníkový kryt úplne zadarmo. Ponuka je časovo obmedzená!

Moderné plynové technológie: Efektivita a inovácie pre 21. storočie

Sumarizácia najdôležitejších inovácií, ktoré redefinujúcich využitie tohto energetického zdroja.

Utesňovanie spodných stavieb pomocou hydro-aktívnej fólie AMPHIBIA.

AMPHIBIA 3000 GRIP 1.3 od spoločnosti ATRO predstavuje modernú hydroizolačnú technológiu, ktorá spája vysokú odolnosť,...

Dekarbonizácia individuálneho vykurovania domácností – Green Deal evolučne a nie revolučne

Ambiciózne plány EK narazili na ekonomické možnosti domácností v jednotlivých členských štátoch –...

Minimalistické dvere IDEA – technická precíznosť a čistota prevedenia

IDEA DOOR od spoločnosti JAP prináša do interiéru čistý minimalistický vzhľad vďaka bezrámovému riešeniu a precíznej...

Dom s výhľadom na údolie, Dlouhý Most (ČR)

Kontinuita riešenia od vonkajšieho obkladu až po kovania a kľučky.

Schell Vitus – osvedčené riešenie pre sprchy a umývadlá vo verejnom sektore s viac ako desaťročnou tradíciou

Nástenné nadomietkové armatúry Vitus sú mimoriadne vhodné pre rýchlu a efektívnu...

Kompozitné okná predstavujú súčasnosť a budúcnosť

Okenné profily z kompozitného materiálu RAU-FIPRO X od spoločnosti Rehau sú v porovnaní s tradičnými plastovými profilmi mnohonásobne...

Myotis - stoly 2025

Najnovší sortiment stolov pre zariadenie interiérov...

Priemyselné sklenené priečky Dorsis Digero: svetelné rozhranie pre moderné interiéry

Spojenie moderného dizajnu, funkčnosti a svetla do harmonického architektonického prvku.

Význam prirodzeného svetla pre moderné a flexibilné pracovné prostredie

Kancelárska budova Baumit v slovinskom Trzine prešla premenou na moderné a udržateľné pracovisko. Architekti kládli dôraz...

Konferencia Xella Dialóg predstaví novinky a trendy v stavebníctve

Mottom šiesteho ročníku on-line konferencie odborníkov Xella Dialóg je Efektívny návrh budov 2025+: zmeny a riešenia

Kaviareň & Galéria Dot.

Nová galéria súčasného umenia v Bratislave sa vo svojom výstavnom programe zameriava na prezentáciu profesionálnych umelcov a umelkýň najmä mladšej generácie.
Diela
Red 312.03.2017
25590+8
Kaviareň & Galéria Dot.
Autori: Ing. arch. Anita Stanková, Ing. arch. Katarína Ciglanová, Ing. arch. Rastislav StraňákInvestor: DOT. Espresso bar & Contemporary Art GalleryRealizácia: 2015 - 2015Adresa: Lazaretská 2399/13, Bratislava, SlovenskoPublikované: 12. marec 2017

Dielo predstavujeme s autorským textom:

Spojenie kaviarne a galérie je klasickým duom, ktoré patrí k sebe. Obyčajne je však kaviareň v galérii len doplnkom, ako oddychový „chill out“ priestor, alebo si kaviareň „privyrába“ predajom obrazov vo vlastných priestoroch. DOT. je rovnocenná dvojica, kde jedna prevádzka je pridanou hodnotou tej druhej. 

foto: Katarína Bako

Požiadavku klientky - zakladateľky na kaviareň sme identifikovali ako svieži mestský retroštýl. Charakter DOT sme sa snažili navodiť v dierkovanom rastri baru, fixovanom ku konštrukcii priznanými skrutkami, čo má tento raster ozvláštniť. „Doty“ sú i minimalistické svietidlá, a bodkovaná mala byť i peniažková dlážkovina, ktorú nakoniec bohužiaľ predbehol laminát so svetlým drevodekorom.

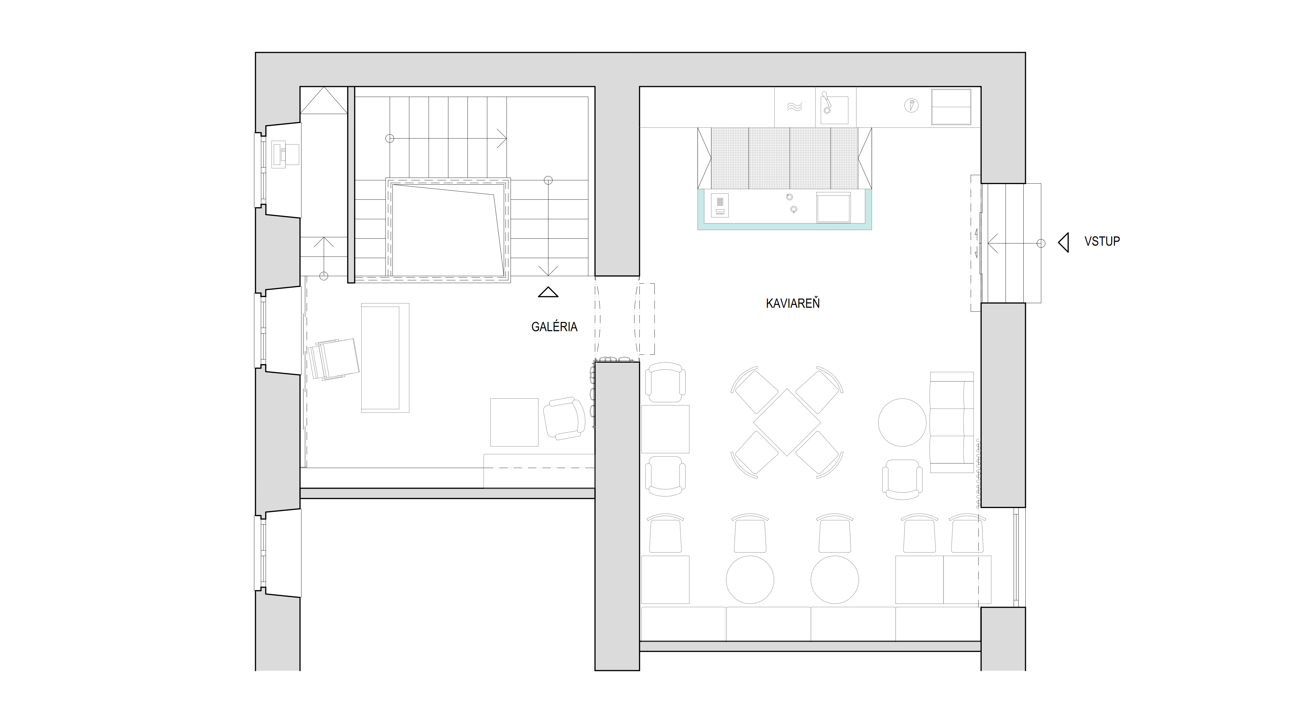
Pôdorys prízemie
Pôdorys prízemiePOINTarchitekti
Pohľady
PohľadyPOINTarchitekti

Prírodné materiály sme vyvážili jasom svetlotyrkisovej farby i originálnou grafikou z izolačnej pásky na stenách od Michaely Chmelíčkovej, ktorá pre DOT. vytvorila celý grafický vizuál. Kaviareň sa od iných odlišuje alternatívnou prípravou kávy a okrem klasického pákového kávovaru je na bare výstava rôzneho baristického náčinia. Bar je preto zámerne nižší aby mohol hosťom sprostredkovať „show“ z takejto prípravy.

foto: Katarína Bako
foto: Katarína Bako
foto: Katarína Bako
foto: Katarína Bako
foto: Katarína Bako
foto: Katarína Bako
foto: Katarína Bako
foto: Katarína Bako
foto: Katarína Bako
foto: Katarína Bako
foto: Katarína Bako

Vizualizáie návrhu:

Podklady: POINTarchitekti

Poloha diela

Ing. arch. Anita Stanková
Ing. arch. Katarína Ciglanová
Ing. arch. Rastislav Straňák
Vložené
18. január 2017
0
2559
Hlavný obsahHlavný obsah
Čakajte prosím