Advertorial

Pozvánka na 2. ročník stavebného veľtrhu BigMarket na Slovensku

Na podujatí sa predstaví až 37 vystavovateľov - popredných dodávateľov stavebných materiálov a inovácií s prezentáciou...

Hotel Hirschen Spa House, Rakúsko

Novotvar v prostredí alpskej obce.

Vytvorte si kúpeľňu snov: dizajnové riešenie od značky hansgrohe

Hansgrohe - prémiová značka kúpeľňových riešení, ponúka nadčasový dizajn, technickú precíznosť a udržateľné inovácie...

Okná Internorm za minuloročné ceny + hliníkový kryt zdarma!

Využite špeciálnu akciu Internorm: okná za minuloročné ceny a hliníkový kryt úplne zadarmo. Ponuka je časovo obmedzená!

Moderné plynové technológie: Efektivita a inovácie pre 21. storočie

Sumarizácia najdôležitejších inovácií, ktoré redefinujúcich využitie tohto energetického zdroja.

Utesňovanie spodných stavieb pomocou hydro-aktívnej fólie AMPHIBIA.

AMPHIBIA 3000 GRIP 1.3 od spoločnosti ATRO predstavuje modernú hydroizolačnú technológiu, ktorá spája vysokú odolnosť,...

Dekarbonizácia individuálneho vykurovania domácností – Green Deal evolučne a nie revolučne

Ambiciózne plány EK narazili na ekonomické možnosti domácností v jednotlivých členských štátoch –...

Minimalistické dvere IDEA – technická precíznosť a čistota prevedenia

IDEA DOOR od spoločnosti JAP prináša do interiéru čistý minimalistický vzhľad vďaka bezrámovému riešeniu a precíznej...

Dom s výhľadom na údolie, Dlouhý Most (ČR)

Kontinuita riešenia od vonkajšieho obkladu až po kovania a kľučky.

Schell Vitus – osvedčené riešenie pre sprchy a umývadlá vo verejnom sektore s viac ako desaťročnou tradíciou

Nástenné nadomietkové armatúry Vitus sú mimoriadne vhodné pre rýchlu a efektívnu...

Kompozitné okná predstavujú súčasnosť a budúcnosť

Okenné profily z kompozitného materiálu RAU-FIPRO X od spoločnosti Rehau sú v porovnaní s tradičnými plastovými profilmi mnohonásobne...

Myotis - stoly 2025

Najnovší sortiment stolov pre zariadenie interiérov...

Priemyselné sklenené priečky Dorsis Digero: svetelné rozhranie pre moderné interiéry

Spojenie moderného dizajnu, funkčnosti a svetla do harmonického architektonického prvku.

Význam prirodzeného svetla pre moderné a flexibilné pracovné prostredie

Kancelárska budova Baumit v slovinskom Trzine prešla premenou na moderné a udržateľné pracovisko. Architekti kládli dôraz...

Konferencia Xella Dialóg predstaví novinky a trendy v stavebníctve

Mottom šiesteho ročníku on-line konferencie odborníkov Xella Dialóg je Efektívny návrh budov 2025+: zmeny a riešenia

Kaviareň na vode v Hamuliakove

Ďalší, nie celkom bežný typologický druh. Aj pri takýchto netypických zadaniach je dobré, ak sa k tvorbe dostanú šikovní autori, ktorý vedia skĺbiť technologické aj architektonické požiadavky na dobré dielo.
Diela
Red 302.11.2016
63390+25
Kaviareň na vode v Hamuliakove
Autori: Mgr. art. Jaroslav Šmondrk, Ing. Peter Mandl, Ing. arch. Ivan KrevaZastavaná plocha: 130.00m2Podlažná plocha: 92.00m2Návrh: 2014 - 2014Realizácia: 2014 - 2014Adresa: ľavý breh Dunaja , Hamuliakovo, SlovenskoPublikované: 2. november 2016

Pristávacie mólo s kaviarňou vzniklo za účelom spojiť obec Hamuliakovo lodnou dopravou s mestom Bratislava. Kaviareň zároveň slúži ako čakáreň pre cestujúcich a predajné miesto lístkov na lodnú dopravu. Objekt kaviarne je umiestnený na plávajúcom železobetónovom pontóne, ktorý je k brehu vyviazaný pomocou sústavy vzpier, lávok a vyväzovacích lán.

Foto: Ondrej Bobek
Situácia
Situácia

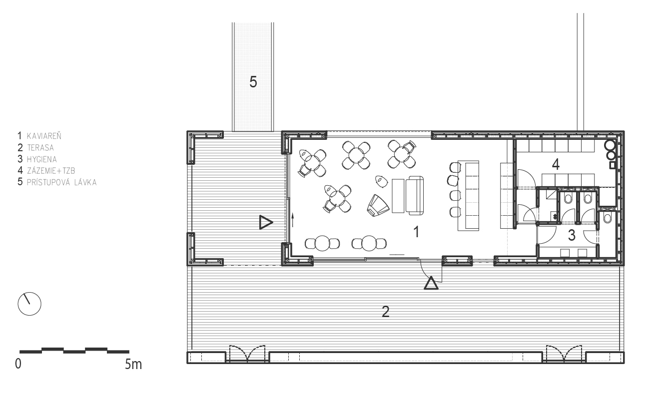
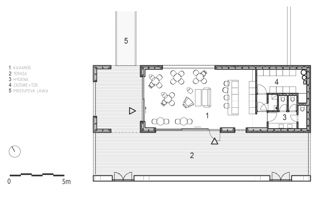
Po mostíku vstupujeme na palubu plavidla na pravoboku. Vstup do nadstavby je situovaný na návodnej strane hlavnej paluby. Vstupujeme do priestoru kaviarne, ktorá predstavuje najväčiu časť objektu. Tento priestor je z troch strán presklený a je tu umiestnené sedenie. Na priestor kaviarne smerom na kormu plavidla nadväzuje zázemie. Zázemie predstavuje technická miestonosť vybavená technológiami potrebnými pre fungovanie objektu, skladový a úložný priestor a toalety.

Foto: Ondrej Bobek
Pôdorys
Pôdorys

Návodná hrana pristávacieho móla je určená na pristávanie výletných lodí. Nachádzajú sa tu prvky pre vyviazanie lodí a zábradlie s dvomi bránkami. Dispozícia móla zabezpečuje bezkolízny príchod a odchod cestujúcich z výletných lodí.

Foto: Ondrej Bobek
Foto: Ondrej Bobek

Trup plavidla je železobetónovej konštrukcie s polystyrénovým jadrom. Táto technológia zabezpečuje plavidlu vysokú pevnosť, stabilitu a životnosť bez potreby údržby. Vďaka jadru z EPS je trup nepotopiteľný. Súčasťou pontónu je aj žiarovo zinkovaná nádoba, do ktorej je vložená čistiareň odpadových vôd. Objekt kaviarne je riešený ako drevostavba s odvetranou fasádou a výrazným presklením.

Foto: Ondrej Bobek
Foto: Ondrej Bobek

Nosnú časť nadstavby tvorí drevená stĺpiková konštrukcia. Vychádzalo sa so štandardného rozmeru nosných prvkov (60x120 mm), ktoré sa používajú v stavebníctve. Opláštenie nosnej konštrukcie je tvorené OSB doskami z vonkajšej strany konštrukcie. Z vnútornej strany nosnej konštrukcie je inštalačná vrstva určená na vedenie elektroinštalácie a potrubí. Nosná konštrukcia strechy je tvorená drevenými I-nosníkmi.

Foto: Ondrej Bobek

Vzhľadom na plytký charakter dna bolo potrebné umiestniť plavidlo 30 metrov od brehu. Systém vyviazania bol preto rozdelený na dve časti. Prvú časť tvorí pevná lávka a vzpera, ktoré spájajú breh s dalbovým systémom vo vode. Zavetrovanie tejto sústavy je spravené pomocou oceľových lán s napínačmi. Na dalby sú ďalej napojené otočná lávka a otočná vzpera, ktoré sú na dalbách a pontóne uložené vo vahadlách. Aj táto sústava je zavetrovaná oceľovými lanami s napínačmi.

Rez
Rez
Foto: Ondrej Bobek

Nakoľko je objekt z brehu pripojený len na elektrickú energiu, je vybavený technológiou úpravy riečnej vody na vodu úžitkovú a vlastnou čistiarňou odpadových vôd zabudovanou v pontóne. Voda je čerpaná priamo z rieky a následne filtrovaná cez sústavu, ktorá pozostáva z dávkovača chlóru, pieskového filtra a uhlíkového filtra. Teplá voda je zabezpečená elektrickými prietokovými ohrievačmi. Na pitie sa používa balená voda. Kúrenie a chladenie objektu zabezpečuje klimatizačná jednotka. Návodná strana móla má vyvýšenú pristávaciu hranu, ktorá je vybavená odierkami a vyväzovacími bitvami pre pristávanie plavidiel.

Hlavným prvkom odpadovej sústavy je čistiareň odpadových vôd, zabudovaná do pontónu. Do nej je zvedená všetka odpadová voda z plavidla. Vyčistená voda je vypúšťaná priamo do okolitej vody. Čistiareň je prístupná priamo cez pôchodznu časť hlavnej paluby, kadiaľ je možné vykonávať kontrolu, nastavenia a pravidelné odčerpávanie kalu.

Foto: Ondrej Bobek
Foto: Ondrej Bobek
Foto: Ondrej Bobek
Foto: Ondrej Bobek
Foto: Ondrej Bobek
Foto: Ondrej Bobek
Foto: Ondrej Bobek
Foto: Ondrej Bobek
Foto: Ondrej Bobek
Foto: Ondrej Bobek
Foto: Ondrej Bobek
Foto: Ondrej Bobek
Foto: Ondrej Bobek
Foto: Ondrej Bobek
Foto: Ondrej Bobek
Foto: Ondrej Bobek
Foto: Ondrej Bobek
Foto: Ondrej Bobek
Foto: Ondrej Bobek
Foto: Ondrej Bobek
Foto: Ondrej Bobek
Foto: Ondrej Bobek

Podklady: Podklady: SM PONTON, s. r. o.

Poloha diela

Mgr. art. Jaroslav Šmondrk
Ing. Peter Mandl
Ing. arch. Ivan Kreva
Vložené
21. október 2016
0
6339
Hlavný obsahHlavný obsah
Čakajte prosím