Advertorial

Pozvánka na 2. ročník stavebného veľtrhu BigMarket na Slovensku

Na podujatí sa predstaví až 37 vystavovateľov - popredných dodávateľov stavebných materiálov a inovácií s prezentáciou...

Hotel Hirschen Spa House, Rakúsko

Novotvar v prostredí alpskej obce.

Vytvorte si kúpeľňu snov: dizajnové riešenie od značky hansgrohe

Hansgrohe - prémiová značka kúpeľňových riešení, ponúka nadčasový dizajn, technickú precíznosť a udržateľné inovácie...

Okná Internorm za minuloročné ceny + hliníkový kryt zdarma!

Využite špeciálnu akciu Internorm: okná za minuloročné ceny a hliníkový kryt úplne zadarmo. Ponuka je časovo obmedzená!

Moderné plynové technológie: Efektivita a inovácie pre 21. storočie

Sumarizácia najdôležitejších inovácií, ktoré redefinujúcich využitie tohto energetického zdroja.

Utesňovanie spodných stavieb pomocou hydro-aktívnej fólie AMPHIBIA.

AMPHIBIA 3000 GRIP 1.3 od spoločnosti ATRO predstavuje modernú hydroizolačnú technológiu, ktorá spája vysokú odolnosť,...

Dekarbonizácia individuálneho vykurovania domácností – Green Deal evolučne a nie revolučne

Ambiciózne plány EK narazili na ekonomické možnosti domácností v jednotlivých členských štátoch –...

Minimalistické dvere IDEA – technická precíznosť a čistota prevedenia

IDEA DOOR od spoločnosti JAP prináša do interiéru čistý minimalistický vzhľad vďaka bezrámovému riešeniu a precíznej...

Dom s výhľadom na údolie, Dlouhý Most (ČR)

Kontinuita riešenia od vonkajšieho obkladu až po kovania a kľučky.

Schell Vitus – osvedčené riešenie pre sprchy a umývadlá vo verejnom sektore s viac ako desaťročnou tradíciou

Nástenné nadomietkové armatúry Vitus sú mimoriadne vhodné pre rýchlu a efektívnu...

Kompozitné okná predstavujú súčasnosť a budúcnosť

Okenné profily z kompozitného materiálu RAU-FIPRO X od spoločnosti Rehau sú v porovnaní s tradičnými plastovými profilmi mnohonásobne...

Myotis - stoly 2025

Najnovší sortiment stolov pre zariadenie interiérov...

Priemyselné sklenené priečky Dorsis Digero: svetelné rozhranie pre moderné interiéry

Spojenie moderného dizajnu, funkčnosti a svetla do harmonického architektonického prvku.

Význam prirodzeného svetla pre moderné a flexibilné pracovné prostredie

Kancelárska budova Baumit v slovinskom Trzine prešla premenou na moderné a udržateľné pracovisko. Architekti kládli dôraz...

Konferencia Xella Dialóg predstaví novinky a trendy v stavebníctve

Mottom šiesteho ročníku on-line konferencie odborníkov Xella Dialóg je Efektívny návrh budov 2025+: zmeny a riešenia

Nová scéna pre US Lúčnica

Cieľom predmetnej štúdie je návrh riešenia nového funkčného využitia a konverzie jedného z objektov bývalých vojenských kasární v Bratislave, ktoré ako areál predstavujú významný a potenciálny priestor vďaka svojej polohe v centre mesta.
Prvá časť práce analyzuje urbanistickú koncepciu priľahlého mestského bloku, predstavuje revitalizáciu dnes zanedbaných priestorov vnútrobloku a hľadá spôsoby využitia vzácnych priestranstiev nachádzajúcich sa v samom centre Starého mesta. Predmetný objekt garáží svojou polohou a tvarom predstavuje dôležitú súčasť komplexu kasární a bol následne témou konverzie, naplnený novým funkčným využitím, prevádzkou a sídlom umeleckého súboru Lúčnice, ktoré do tohto areálu vnáša ďalšiu kultúrnu hodnotu a pretvára štatút vojenského miesta na kultúrny dvor. Takmer dokonalé priestorové danosti objektu predurčujú bezproblémové fungovanie kultúrnej ustanovizne v takomto dome. Nemenej dôležitou témou konverzie objektu je zapojenie celého areálu do mestskej siete.
Diela
Lukáš Vargic28.12.2017
11370+5
Nová scéna pre US Lúčnica
Autori: Ing. Lukáš VargicInvestor: Umelecký súbor LúčnicaNávrh: 2014 - 2015Adresa: Kollárovo nám. , Bratislava, SlovenskoPublikované: 28. december 2017

Staré a nevyužívané budovy v súčasnosti predstavujú obrovský ekonomický a kultúrny potenciál nového využitia. V dnešnej dobe na európskom i svetovom poli architektúry má svoje pevné miesto téma vdychovania nového života opusteným budovám a tým pádom zabezpečuje zachovávanie pôvodných hodnôt. Navyše predstavuje veľkú výzvu pre architektov, ktorý vedia, že pohybovať sa v jestvujúcej štruktúre mesta prináša množstvo problémov, ale i impulzov a tým pádom aj pohľadov na možné spôsoby oživenia miesta. Najmä za posledné desaťročia sa dostala táto téma viac do popredia a dnes vytvára isté predpoklady, že bude naďalej aktuálnou a možno čím ďalej tým viac atraktívnejšou príležitosťou na realizovanie sa. Úvod je venovaný pohľadu na túto problematiku, na jej zhodnotenie a prepojenie okolností pripomínajúcich problematiku tvorby v priestore Hurbanových kasární.

Hurbanove kasárne - návrh revitalizácie
Hurbanove kasárne - návrh revitalizácie

Revitalizácia areálu Hurbanových kasární je už roky rezonujúcou témou či už na poli architektúry alebo na trhu nehnuteľností. Predstavuje obrovský potenciál a skrytý genius loci, ktorý vychádza už zo samotnej situácie miesta, no predovšetkým zo samotného statusu, ktorý tento komplex mal počas svojej najväčšej slávy. Historicky cenné kultúrne a nehnuteľné dedičstvo čaká na svoju novú premenu, po ktorej dlho už hlasno volá. Návrh sa sústredí na vymedzenie podstaty obnovy tohoto areálu, cez identifikáciu nových základných úloh predmetného územia a úrovní realizácie. Vychádzajúc zo súčasnej problematiky sa hľadajú pohľady a možné riešenia na urbanistickej ale aj hlbšej úrovni. V dnešným neľahkých časoch a nehostinných podmienkach pre rozvoj kultúrneho dedičstva je dôležité poukazovať a nahlas hovoriť o potrebe zachovávania jestvujúcich hodnôt, pretože vlastníkom takýchto areálov je častokrát štát, ktorý nedisponuje príslušným kapitálom na rozsiahly a koncepčný zásah. Paradoxom celej situácie je skutočnosť, že príslušné prostriedky sa vynakladajú väčšinou na prvoplánové a menej hodnotné developerské počiny, ktoré potláčajú a odsúvajú záujem o jestvujúce tradície bokom.

Opustené a chátrajúce objekty kasární je možné napĺňať rôznou funkciou. Či už ide o účely spoločenské alebo rezidenčné, oba spôsoby majú už za sebou svoju históriu. Nakoľko však pôvodný charakter vojenského využitia spočíval predovšetkým v obytnej funkcii, ktorá v dnešnej dobe vyžaduje náročnejšie štandardy ako pred mnohými rokmi, čoraz viac sa stávajú priestory vojenskej architektúry strediskami kultúry. Areály sú svojou veľkosťou schopné poňať obrovské kapacity inštitúcií rôznych druhov kultúrnych odvetví, čím sa môže dostať ku konfrontácií názorov, tímovej spolupráce ale hlavne väčšej socializácie v pracovnom prostredí.

Areály obyčajne disponujú obrovským nádvorím, tzv. “buzerákom”, ktoré ponúka rozšírenie funkčného využitia aj do exteriéru, čím sa dostáva priestor do ďalšej dimenzie. Povýšenie tohoto priestoru na úroveň “kultúrneho pódia” má za následok výrazné oživenie celého komplexu, ktorého nový život bude mať potenciál fungovať v harmonickej podobe ďalšie dekády.

Za posledné roky sa diskusia okolo osudu Hurbanových kasární začala častejšie rozvíjať a situácia sa vyvinula k záverečnému rozhodnutiu, že areál v budúcnosti naozaj pojme kultúrne inštitúcie. Významne sa o to pričinila skutočnosť, že areál prešiel pod správu Ministerstva Kultúry SR, v ktorého kompetencií je aj následná koncepcia jeho revitalizácie. Pod správou MK SR existuje už niekoľko desaťročí aj umelecké teleso súboru Lúčnica, ktoré prejavilo veľký záujem o jeden z objektov areálu.

Lúčnica ako kultúrna inštitúcia funguje už 70 rokov ako poloprofesionálne teleso dotované MK SR, ktoré propaguje tradičné a umelecké výkony doma i v zahraničí na vysokej úrovni. Umelecký súbor ako taký pozostáva okrem tanečnej, speváckej a hudobnej zložky aj z celého organizačného tímu a zázemia, ktoré zabezpečujú fungovanie tohto telesa na patričnej úrovni. V skutočnosti však táto organizácia nedisponuje kvalitnými priestormi potrebnými hlavne pre dôkladnú prípravu svojho repertoáru, a preto sa jej vedenie rozhodlo uchádzať o potenciálnu možnosť získania kvalitného sídla.

Bratislava - Staré mesto
Bratislava - Staré mesto

Záujmová lokalita sa nachádza v mestskej časti Bratislava - Staré mesto, ktorého jadro tvorí historické centrum Bratislavy, kedysi obkolesené mestským systémom opevnenia. Na okrajoch tohto jadra sa rozpestierali osady a dediny, ktoré vytvorili základ dnešných mestských častí.

Kasárenský areál na Mickiewiczovej ulici sa spája s mestom Bratislava už od nepamäti. V časoch svojej najväčšej “slávy” bol tento komplex hlavnou stanicou cisársko-kráľovskej armády, keď sa ešte mesto volalo Prešporok (Pressburg, Pozsónyi) a patrilo do jednej z najväčších európskych mocností - Rakúsko-Uhorskej monarchie. Celý areál je zhlukom vývojových etáp, ktoré vznikali v rôznych časových obdobiach. Z dochovaných zdrojov je však zrejmé, že dnes stojace budovy kasární majú majú svoje základy položené v blízkosti miesta, na ktorom stáli ešte v skorších časoch staršie barokové kasárne. Tie sa dnes podľa rôznych zachovaných materiálov dá približne vytýčiť, že boli umiestnené na hranici dediny Schöndorf (dnes mestská zóna okolo ulice Obchodná) priamo za dnes už neexistujúcou Schöndorfskou bránou. Je teda pravdepodobné, že dnešný areál bol vybudovaný v časoch, keď zanikli staršie kasárne. Autorom najhodnotnejších častí kasární je maďarský architekt Ignác Alpár, podľa projektu ktorého sa v roku 1902 prestavovali monumentálne objekty obrátené do Kollárovho námestia a Mariánskej ulice. Bývalá Mária-utca, Mariengasse dostala meno po kamennej soche Panny Márie, ktorá bola najprv umiestnená na jednom starom dome ulice a neskoršie zdobila aj priečelie honvédskych kasární. Súčasný reliéf na budove je dielom sochára Ladislava Majerského.

Hurbanove kasárne z obdobia prelomu 19. a 20. storočia
Hurbanove kasárne z obdobia prelomu 19. a 20. storočia

Riešené územie okolo areálu Hurbanových kasární vytvára jeden kompaktný mestský blok s rôznorodou zástavbou prevažne rezidenčného charakteru, postupne vznikajúcou od začiatku 20.storočia. Svojou polohou už nezasahuje do pamiatkovej rezervácie Starého mesta, nachádzajú sa tu viac i menej hodnotné mestské budovy. Svoju tvár už táto lokalita nemenila za posledné polstoročie čo sa prejavilo aj na vzhľade jednotlivých zákutí mestského bloku.

Hlavnou vízou riešenia tohoto územia je vytvoriť fungujúci mestský blok, vyčistený od nekoncepčných nánosov doterajšieho vývoja lokality. Celé územie vzhľadom k svojej polohe voči centru mesta je každodenne vyťažované obrovským množstvom áut, čo spôsobuje nemalé problémy z hľadiska statickej dopravy. Nakoľko ide o prevažne obytné územie, dostávajú sa miestni obyvatelia do problémov s návštevníkmi tejto zóny a častokrát sú potrebné len improvizačné opatrenia na zabezpečenie fungovania tohto miesta. Revitalizáciou areálu kasární sa týka najmä preriešenia vnútorného nádvoria, ktoré by mohlo byť v budúcnosti spojené s priľahlým vnútroblokom sieťou peších trás, no najmä systémom podzemného parkovania, ktorý by natrvalo vyriešil narastajúce problémy s odstavenými autami. Komplexnou obnovou prejde objekt určený pre novú funkčnú náplň, ktorá zabezpečí oživenie postupne upadajúceho miesta.

Analýza územia
Analýza územia

Urbanistický plán vymedzeného riešeného územia je zameraný na na nasledujúce potreby, zásady a východiská problémov:

  • nová regulácia územia vnútrobloku ohraničeného jestvujúcimi bytovými domami 
  • predpoklad intenzívneho využitia lokality z hľadiska novej výstavby a tvorby parteru, či zelených plôch 
  • v zjednodušenej forme riešiť doplnenie mestského bloku o novú zástavbu, ktorej cieľom je sceliť kompaktnosť územia 
  • napojenie predmetnej lokality na sieť jestvujúcej infraštruktúry s dôrazom na pešie trasy 
  • vloženie novej funkcie do vnútorného priestoru bloku formou podzemného parkovania na najväčšej možnej ploche pri zachovaní jestvujúcej vzrastlej zelene. 
  • využitie priestorového potenciálu vzniknutých vnútroblokov pre účely kultúrno-spoločenské 
  • zachovanie historickej siluety prostredia, kontextuálne doplnenej na ideovej úrovni 
  • hľadanie a vytvorenie nových miest pre zeleň s dôrazom na ekologickú stabilitu prostredia

Prioritnou zásadou pri tvorbe nového urbanistického riešenia predmetnej zóny bola idea prepojenia v súčasnosti zaslepenej ulice Dobrovského s Kollárovým námestím. Ako je zrejmé pri pohľade na situáciu, samotná ulica v minulosti pokračovala vo svojej línii na miesta, kde dnes stojí areál kasární. Túto hypotézu nie je možné ničím podložiť, no z hľadiska urbanistických vzťahov je na mieste myšlienka, ktorá hovorí o napojení tejto vetvy na spomínané námestie. Následkom tejto vízie by potom mohlo byť zaľudnenie dnes prázdnych miest tejto zóny, predovšetkým areálu kasární, ktoré by sa v budúcnosti mohli stať obľúbeným miestom stretávania sa či už miestnych obyvateľov alebo turistov. Uskutočnenie tejto myšlienky umocňuje aj fakt, že na myslenej línii pokračovania spomenutej trasy stojí budova navrhovaná na konverziu, ktorej idea obnovy môže byť ovplyvnená týmto urbanistickým konceptom.

Filozofia riešenia
Filozofia riešenia

Nemenej dôležitou súčasťou riešenia celého územia je vytvorenie systému podzemného parkovania, ktoré má natrvalo vyriešiť problémy so statickou dopravou v uvažovanej lokalite. Postupom času sa v uplynulých dekádach realizovalo na mieste niekoľko nekoncepčných zásahov smerovaných na zlepšovanie statickej dopravy. Preto je vhodným riešením neutíchajúceho problému umocniť túto ideu a dať jej koncepčnejšiu podobu, ktorá by nemala za následok znehodnocovanie verejných plôch, ale naopak, prispela by ku skvalitneniu života v meste presunutím áut do podzemia.

S týmto zámerom úzko súvisí aj doplnenie uličnej zástavby na severnej hranici zóny, ktoré koncepčne vyrieši nesúrodosť prostredia a zabezpečí vytvorenie nových miest či už na život alebo prácu.

Urbanistický návrh - situácia a pôdorys podzemných garáží
Urbanistický návrh - situácia a pôdorys podzemných garáží
Urbanistický návrh - rez podzmenými garážami vo vnútrobloku
Urbanistický návrh - rez podzmenými garážami vo vnútrobloku
Architektonická situácia - Hurbanove kasárne
Architektonická situácia - Hurbanove kasárne
Schémy funkčného využitia nádvoria
Schémy funkčného využitia nádvoria

Nenápadnou no predsa neodmysliteľnou súčasťou areálu Hurbanových kasární je objekt označovaný aj názvom “blok F”. Dom situovaný na juhozápadnej strane kasárenskeho komplexu dopĺňa jeho južnú hranu a uzatvára siluetu do takmer pravidelného štvorca. Tým je vytvorené veľmi vzácne priestranstvo nádvoria, ktoré je rovnako dôležitou súčasťou revitalizácie. Obnovovaná budova dokáže po všetkých stránkach splniť požiadavky jeho novej funkčnej náplne a pre umocnenie dôležitosti jej pozície bude vrámci urbanistického zásahu tvoriť zaujímavý orientačný bod v lokalite. Skrytý priestorový potenciál tohto domu umožní dokonalé fungovanie kultúrnej inštitúcie na dôstojenj úrovni a stane sa jej adekvátnym a reprezentatívnym sídlom.

Blok "F" - jestvujúci stav
Blok "F" - jestvujúci stav

Na pohľad možno neatraktívnou, no v každom prípade architektonicky zaujímavou formou dotvára budova prísny charakter kasární, čím nijakým spôsobom nevytŕča z kontextu. Disponuje masívnou sedlovou strechou, ktorá po potrebných opatreniach môže zabepečovať vzdušnú prevádzku administratívnych priestorov. Neprehliadnuteľnou témou na dome je jeho rytmizované členenie fasády, ktorá vychádza z jeho pôvodnej funkčnej náplne, vyzdvihujúc celé vstupné podlažie s garážovnými bránami. Neobyčajným momentom je bezpochyby zmena v strešnom tvarosloví, ktorá bude následne novým návrhom podporená nakoľko bude zastrešovať najdôležitejší priestor dispozície.

Blok "F" - návrh obnovy /nový vstup do nádvoria + garáží/
Blok "F" - návrh obnovy /nový vstup do nádvoria + garáží/

Objekt po rekonštrukcii bude slúžiť umeleckému súboru Lúčnica ako jeho sídlo, ktoré mu bude zabezpečovať podmienky pre jeho fungovanie vo všetkých smeroch. Pre chod kultúrnej organizácie tohto charakteru je nevyhnutné, splniť priestorové požiadavky týkajúce sa príprav umeleckých výkonov, údržby a technickej podpory súboru, a v neposlednom rade riadiacej funkcie s príslušnou administratívou. Všetky tieto oblasti majú možnosť využívať plnohodnotné priestory budovy, ktorej konverzia sa spája aj s dôležitým zásahom do vnútornej dispozície v podobe vytvorenia podchodu ako nového prístupu do do areálu kasární.

Najzásadnejšou podmienkou zakomponovania rekonštruovaného objektu do urbanizmu lokality je jeho priame napojenie na sieť infraštruktúr v okolí. Táto priorita sa dotýka hlavne sprístupnenia vnútorného nádvoria kasární práve v mieste, kde je v súčasnosti slepá ulica, ktorá po prestavbe riešeného objektu vyústi do areálu. Nemenej dôležititou súčasťou revitalizácie je implementácia absentujúcej zelene koncepčne premysleným spôsobom, ktorý zohľadňuje aktuálne požiadavky trvalej udržateľnosti miest. Podmienkou konverzie budovy ostáva zachovanie historickej siluety prostredia s prihliadnutím na hmotovo- priestorové regulatívy a kompozično-priestorové zásady.

Objekt pozdĺžnej figúry s kombinovaným nosným systémom ponúka variabilné riešenie dispozícii. V súčasnosti vyprázdnené priestory dvoch podlaží a nevyužívané podkrovie v sebe ukrývajú čaro majestátnosti domu, ktorou dotvára harmonickú atmosféru kasární. Jednou z mnohých architektonických hodnôt domu je určite jeho rytmizovaná minimalistická fasáda, doplnená o rozohraný parter veľkých otvorov, v minulosti slúžiacich ako brány do garáží. Po konverzii sa otvára parter nádvoriu formou transparentných výkladov zachovaných foriem. Samostatnou témou pôvodnej architektúry objektu je bezpochyby mohutný krov, ktorý hrá dôležitú úlohu v strešnej krajine celého areálu. Zaujímavosťou ostáva zámerné prerušenie sedlovej strechy, prechádzajúcej do plochej strešnej roviny, dokumentujúcej dôležitosť zatrešovaného priestoru. Rekonštrucia stavia na tejto téme, ktorú umocňuje ľahkým kubickým objemom sledujúcim pôdorysnú stopu pôvodnej plochej strechy.
Najzásadnejším architektonickým vstupom do jestvujúceho objektu je samotné prerušenie v jeho osi, vypovedajúcim o potrebe sprístupnenia nádvoria dôstojným vstupom. Stopa rekonštrukcie ostáva dôsledná vo forme i použitom materiály, ktorej idea odlíšenia má súvis aj s priestorovou orientáciou a urbanistickým motívom.
V ostatnej forme objekt ostáva zachovaný bez viditeľnejších vstupov, čím je podporená aj celková atmosféra.

Blok "F" - návrh obnovy
Blok "F" - návrh obnovy

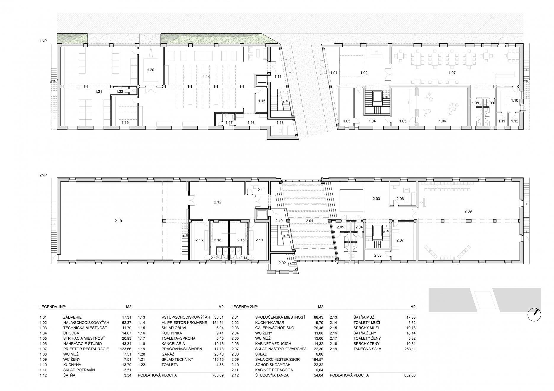
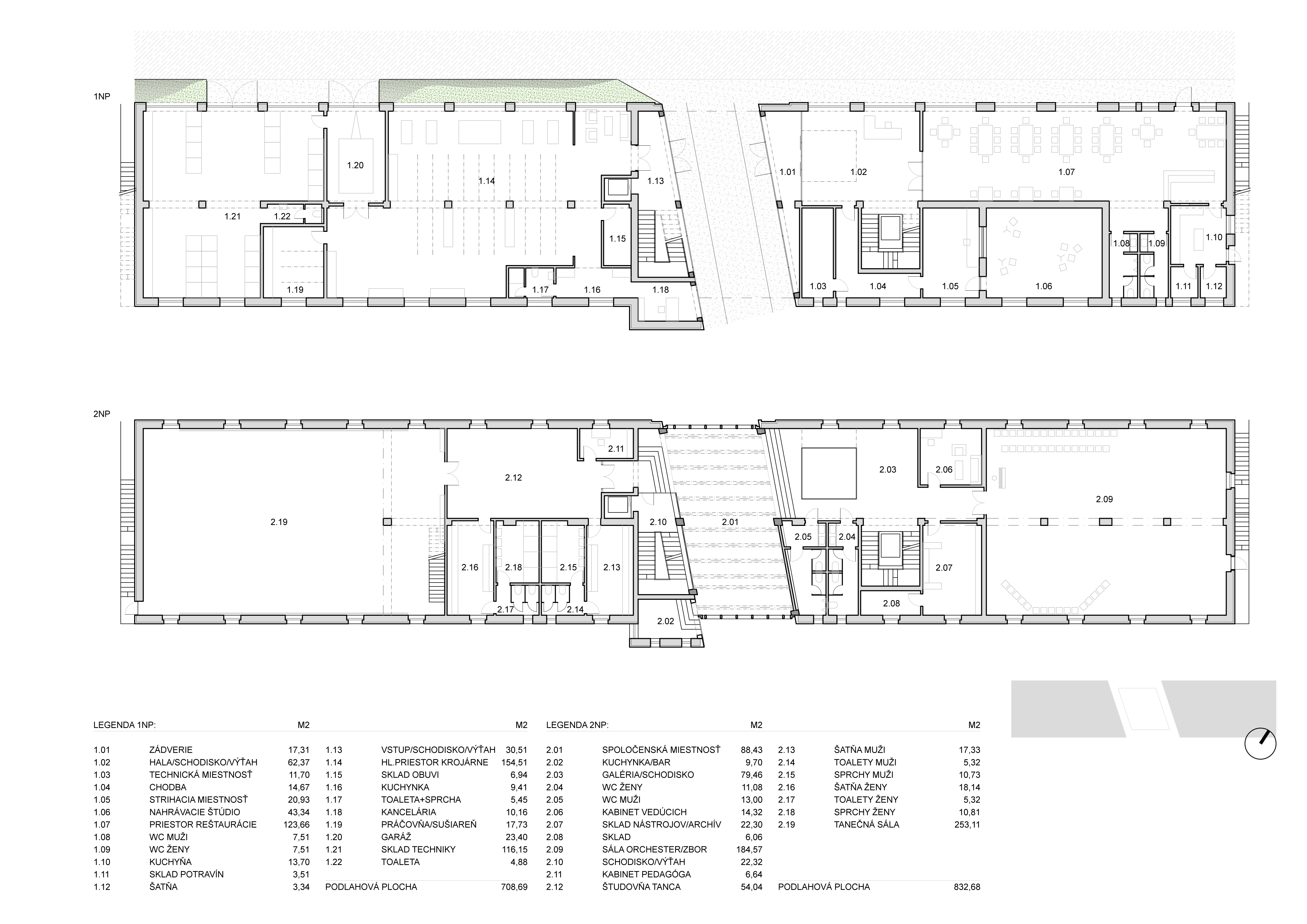
Prestavbou získava vstup do budovy úplne iný rozmer v celkovej situácii, podčiarkujúci ideu vstupu do areálu. Vytvorený koridor na osi vstupného podlažia budovy spôsobuje efekt rozdelenia hlavnej hmoty na dve časti a ponúka vstupy do jej verejnej či služobnej časti. Nakoľko ide o viaceré funkčné celky prevádzky spomínanej inštitúcie, je potrebné zabezpečiť viacero ďalších služobných prístupov do budovy. Samostatné vstupy majú prevádzky krojárne a skladu techniky, rovnako ako reštauračné zariadenie. Objekt navyše disponuje dvojicou únikových schodísk na štítoch.

Hlavný vstup

Vstupom do severnejšej polovice objektu je sprístupnená jeho verejnejšia časť. Vstupné podlažie tohto krídla zaberá z väčšej polovice priestor reštaurácie, napojenej na exteriér aj samostatným vstupom, ktorého obsluhuje zázemie kuchyne a hygienické zariadenia. Zo vstupnej haly s recepciou je okrem prístupu ku schodisku vstup do technickej časti objektu, ktorá zahŕňa priestory pre údržbu ale i nahrávacie štúdio so zázemím, potrebné pre fungovanie hudobnej i speváckej zložky súboru.

Služobný vstup

Na opačnej strane podchodu sa nachádza služobný vstup do priestorov neverejných, medzi ktoré sa radí zázemie pre údržbu a výrobu krojov, zabezpečujúcich plnohodnotné fungovanie umeleckých telies. Bez tejto prevádzky by nebola možná akákoľvek existencia umeleckého súboru, nakoľko kroje ako ľudové odevy tvoria významnú súčasť ľudových tradícií, ktoré tento súbor prezentuje. Je preto nevynutné vytvoriť nadštandardné podmienky pre fungovanie tejto odnože telesa, medzi ktorými nesmú chýbať priestory práčovne, skladov, hygieny a menšej kancelárie. Dôležitou súčasťou takejto organizácie je aj technická podpora, ktorá využíva priestory pre skladovanie technického materiálu a jeho údržbu Na ploche cca 100 m2. Okrem priestorov vertikálnych komunikácii vedúcich na ďalšie podlažia sa nachádza v tejto časti parteru priestor pre parkovanie prívesu, ktorý je potrebný pri presunoch súboru vrámci rôznych zájazdov. Prístupný je z nádvoria kasární, kde sa ľahko dostane novým podchodom aj najväčší autobus.

Nácvičné sály

Druhé nadzemné podlažie po prestavbe nezmení zásadne charakter funkčného využitia, nakoľko aj v minulosti v kasárňach fungovali vojenské umelecké súbory, a práve na tomto mieste budovy sa odohrávala ich prípava. Na samom konci južného krídla sa nachádza najväčší a najdôležitejší priestor celej budovy, určený pre tanečnú prípravu. Tanečná sála disponuje zvýšeným stropom čo sa prejavuje aj v architektonickom prevedení celej hmoty. Pre tanečnú zložku sú navrhované dve šatne (muži, ženy) s prislúchajúcimi umyvárňami a toaletami. Do severného krídla je už prístup vrámci podlažia cez novovzniknutú konštrukciu spojovacieho mostíka, ktorý svojou plochou môže byť využívaný aj pre rôzne spoločenské udalosti vrámci tohoto telesa.

V severnejšej časti tohto podlažia je k dispozícii menšia skušobná sála, primárne určená pre spevácky zbor a orchester. Zaujímavosťou tejto časti je galéria otvorená cez všetky podlažia, zabezpečujúca aj presvetlenie foyer hlavného vstupu. Okrem verejných hygienických priestorov a schodiska sa tu nachádzajú priestory skúšobne, archívov a kabinetov pre vedúcich zložiek.

Administratíva

V súčasnosti nevyužívané podkrovie disponujúce, vďaka vysokému krovu, rozľahlou podlahovou plochou dostáva funkčné využitie na celej svojej ploche. V priestore vloženého spojovacieho mostíka sa delí podlažie na dva oddelené úseky administratívy. Južnejšia časť zmenšená o plochu tanečnej sály so zvýšeným stropom je určená pre kancelárie riaditeľa so sekretariátom a zasadačkou, obsluhované menšiou kuchynkou a hygienickým zariadením. Zvláštnosťou tejto časti podlažia je napojenie na tanečnú sálu prostredníctvom väčšej galérie, z ktorej vedie do sály schodisko.

Severne od spojovacieho mostíka nasledujú priestory otvorených kancelárii s vlastným hygienickým zázemím a archívom.

Pôdorys 1NP + 2NP - navrhovaný stav
Pôdorys 1NP + 2NP - navrhovaný stav
Pôdorys 3NP + strecha - navrhovaný stav
Pôdorys 3NP + strecha - navrhovaný stav
Rezy - navrhovaný stav
Rezy - navrhovaný stav
Pohľady - navrhovaný stav
Pohľady - navrhovaný stav

Predkladaná štúdia vyjadruje snahu podania obrazu o možnosti opätovného oživovania areálov opustených komplexov. Prioritnou sa však stala tendencia hľadania novej funkčnej náplne, ktorá býva impulzom pre revitalizáciu takýchto štruktúr a násladne vedie ku konverziám jednotlivých areálov. V praxi sa ukazuje, že tieto miesta dokážu po dôkladnej a koncepčnej obnove získať nový život a naplno uplatniť svoj kultúrny ale aj ekonomický potenciál.

Pri konkrétnom komplexe Hurbanových kasární bola tendencia stavať na kvalitách starších stavebných kultúr, s decentným vstupom súčasnej architektúry pri zachovaní pôvodného genia loci miesta. Zmenou funkčnej náplne dostáva objekt druhý dych a je zhodnocovaný kultivovaným využívaním. Urbanistické gesto zanecháva odraz doby a následne vytvára zaujímavý synchrón dvoch odlišných štruktúr. Kedysi hierarchicky potláčaná budova skladu v celkovom kontexte areálu zrazu nadobúda dôležité miesto na mape mesta a môže vzbudzovať záujem aj o takýto druh architektúry v mestskom organizme.

Poloha diela

Ing. Lukáš Vargic
Vložené
28. december 2017
0
1137
Hlavný obsahHlavný obsah
Čakajte prosím