Advertorial

Pozvánka na 2. ročník stavebného veľtrhu BigMarket na Slovensku

Na podujatí sa predstaví až 37 vystavovateľov - popredných dodávateľov stavebných materiálov a inovácií s prezentáciou...

Hotel Hirschen Spa House, Rakúsko

Novotvar v prostredí alpskej obce.

Vytvorte si kúpeľňu snov: dizajnové riešenie od značky hansgrohe

Hansgrohe - prémiová značka kúpeľňových riešení, ponúka nadčasový dizajn, technickú precíznosť a udržateľné inovácie...

Okná Internorm za minuloročné ceny + hliníkový kryt zdarma!

Využite špeciálnu akciu Internorm: okná za minuloročné ceny a hliníkový kryt úplne zadarmo. Ponuka je časovo obmedzená!

Moderné plynové technológie: Efektivita a inovácie pre 21. storočie

Sumarizácia najdôležitejších inovácií, ktoré redefinujúcich využitie tohto energetického zdroja.

Utesňovanie spodných stavieb pomocou hydro-aktívnej fólie AMPHIBIA.

AMPHIBIA 3000 GRIP 1.3 od spoločnosti ATRO predstavuje modernú hydroizolačnú technológiu, ktorá spája vysokú odolnosť,...

Dekarbonizácia individuálneho vykurovania domácností – Green Deal evolučne a nie revolučne

Ambiciózne plány EK narazili na ekonomické možnosti domácností v jednotlivých členských štátoch –...

Minimalistické dvere IDEA – technická precíznosť a čistota prevedenia

IDEA DOOR od spoločnosti JAP prináša do interiéru čistý minimalistický vzhľad vďaka bezrámovému riešeniu a precíznej...

Dom s výhľadom na údolie, Dlouhý Most (ČR)

Kontinuita riešenia od vonkajšieho obkladu až po kovania a kľučky.

Schell Vitus – osvedčené riešenie pre sprchy a umývadlá vo verejnom sektore s viac ako desaťročnou tradíciou

Nástenné nadomietkové armatúry Vitus sú mimoriadne vhodné pre rýchlu a efektívnu...

Kompozitné okná predstavujú súčasnosť a budúcnosť

Okenné profily z kompozitného materiálu RAU-FIPRO X od spoločnosti Rehau sú v porovnaní s tradičnými plastovými profilmi mnohonásobne...

Myotis - stoly 2025

Najnovší sortiment stolov pre zariadenie interiérov...

Priemyselné sklenené priečky Dorsis Digero: svetelné rozhranie pre moderné interiéry

Spojenie moderného dizajnu, funkčnosti a svetla do harmonického architektonického prvku.

Význam prirodzeného svetla pre moderné a flexibilné pracovné prostredie

Kancelárska budova Baumit v slovinskom Trzine prešla premenou na moderné a udržateľné pracovisko. Architekti kládli dôraz...

Konferencia Xella Dialóg predstaví novinky a trendy v stavebníctve

Mottom šiesteho ročníku on-line konferencie odborníkov Xella Dialóg je Efektívny návrh budov 2025+: zmeny a riešenia

Polyfunkčný dom Vnoučkova ulica, Benešov

Doplnenie chýbajúcej mestskej štruktúry.
Diela
Red 428.04.2019
6760+15
Polyfunkčný dom Vnoučkova ulica, Benešov
Autori: Ing. arch. Markéta Cajthamlová, Ing. arch. Daniela Slížová, Ing. arch. Lenka Brožová KrušinováZastavaná plocha: 204,5 m2Podlažná plocha: 600 m2Obostavaný objem: 2600 m3Návrh: 2016 - 2017Realizácia: 2017 - 2018Adresa: Vnoučkova , Benešov, Česká republikaPublikované: 28. apríl 2019

Centrum malého mesta Benešov (37 km juhovýchodne od Prahy). Pomerne frekventovaná "obchodná ulica". Rastlá štruktúra s pôvodnými nízkopodlažnými domami, panelákmi a novšími obchodnými objektami. Nový polyfunkčný dom vypĺňa prieluku v exponovanej polohe, na krížení ulíc Vnoučkova a Karla Nového. 

Novostavba dotvára zaniknutý mestský blok. Z ulice sa javí ako kompaktný celok, na severozápadnej strane je na vyšších poschodiach terasovito ustúpená. Kompozícia a farebnosť fasády vychádza z miestneho kontextu, je však očistená od rušivých prvkov. Monochromatické plochy (svetlý pásikový obklad a omietka) prerušujú citlivo komponované otvory. Fasádu do ulice otvára rozsiahly výklad obchodnej časti a pásové okná na vyšších podlažiach. 

Foto: Ester Havlová
Foto: Ester Havlová
Foto: Ester Havlová

Dom v prieluke je päťpodlažný.

Situácia
Situácia

Z parteru je prístupný dvojposchodový predajný priestor s rozsiahlym výkladom orientovaným do ulice. 

Pôdorys 1. N.P.
Pôdorys 1. N.P.
Pôdorys 2. N.P.
Pôdorys 2. N.P.

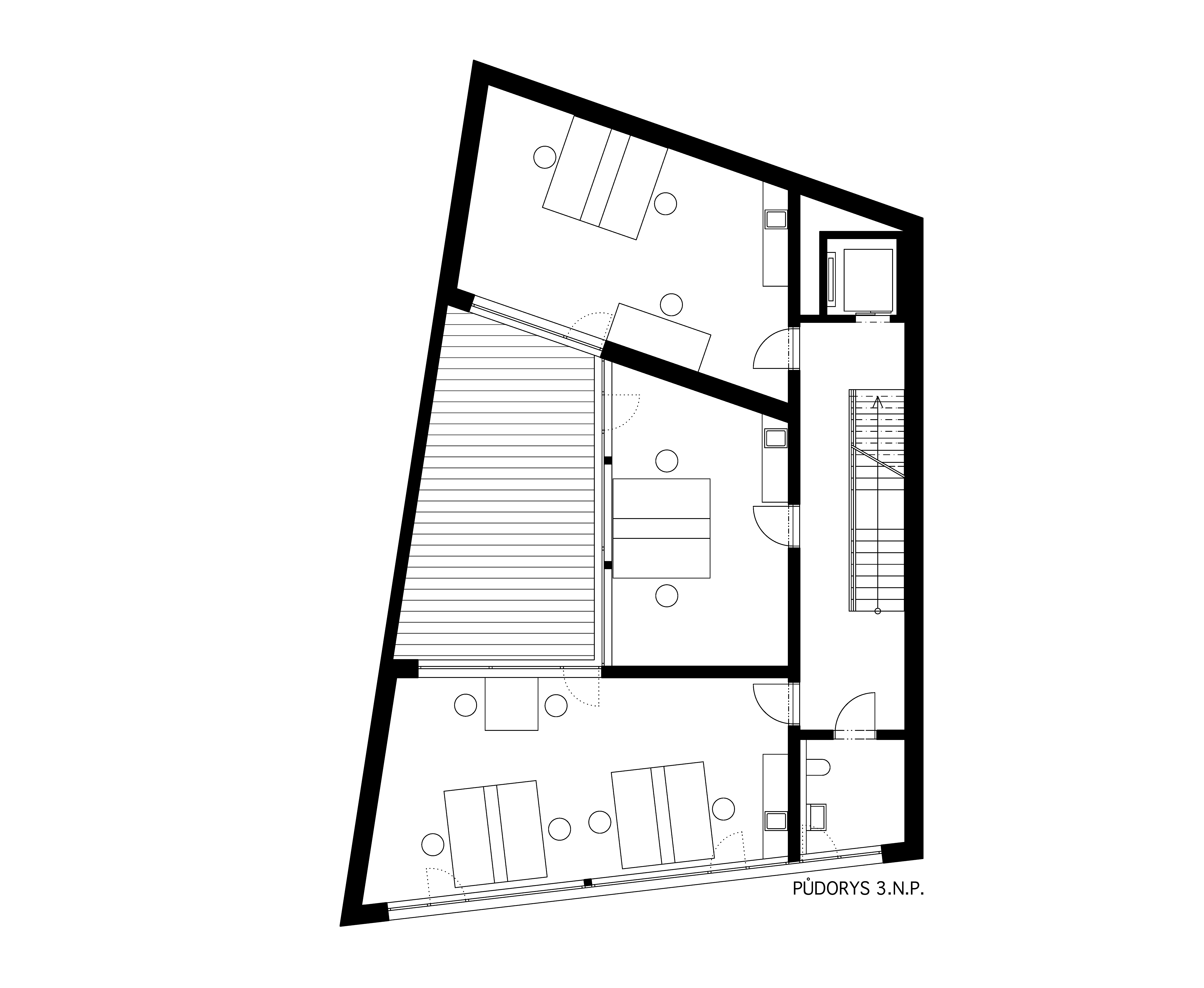
Hlbokú vnútornú dispozíciu vyšších podlaží presvetľuje vnútorný dvor. Na 3. NP je okolo átria sústredená trojica kancelárskych priestorov.

Pôdorys 3. N.P.
Pôdorys 3. N.P.

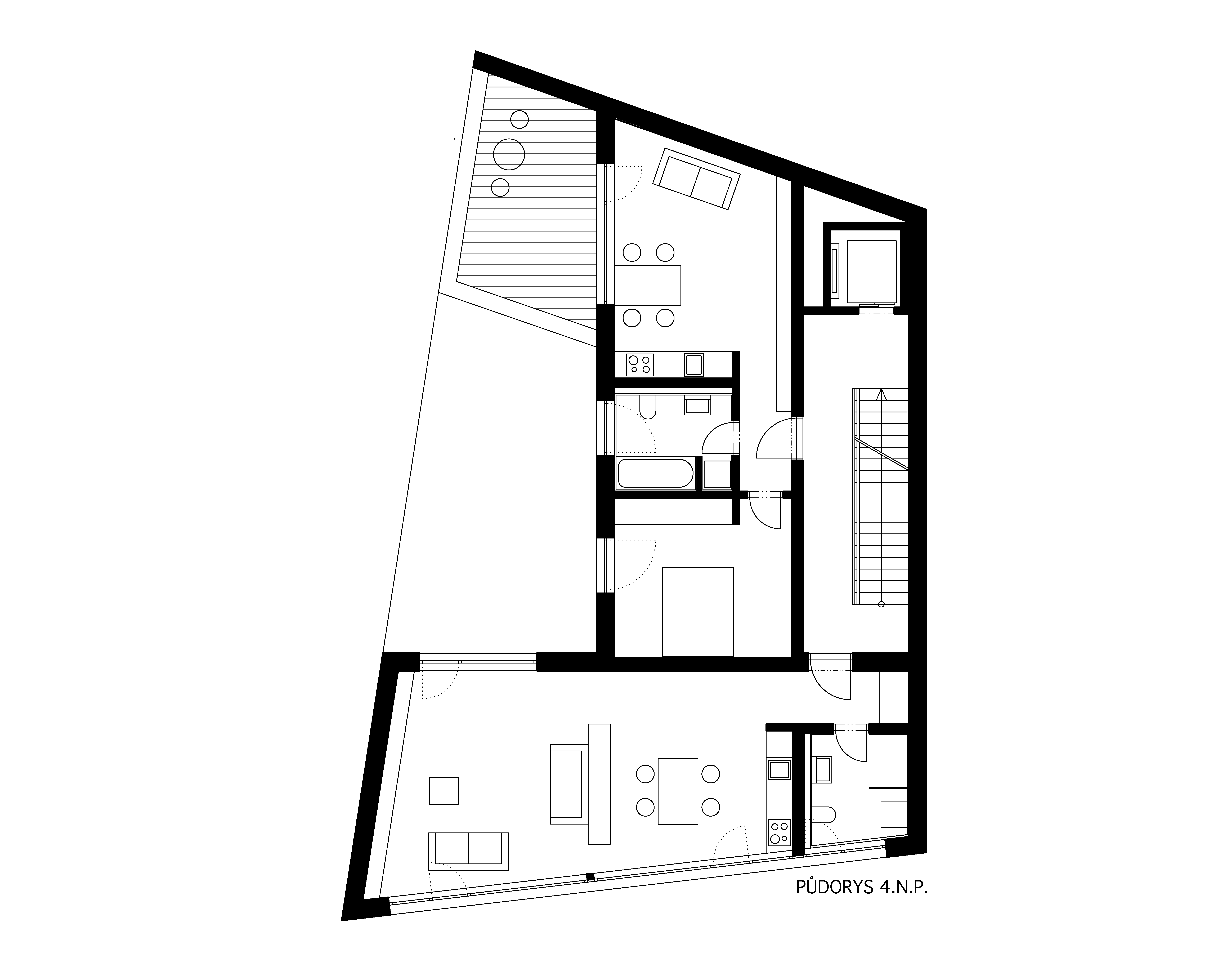
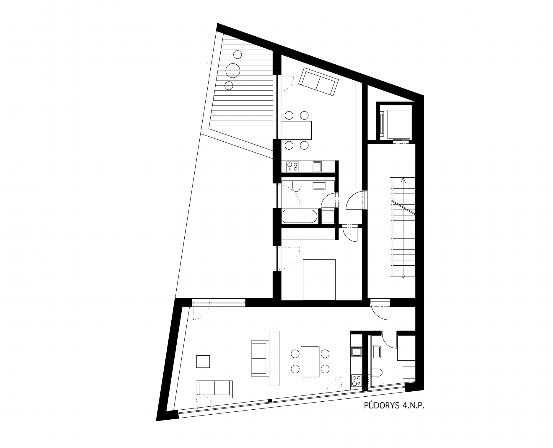
Na štvrtom poschodí sú dva byty. Jeden z nich disponuje terasou orientovanou na juhozápad.

Pôdorys 4. N.P.
Pôdorys 4. N.P.

Na najvyššom podlaží je samostatný byt s rozsiahlou strešnou terasou.

Pôdorys 5. N.P.
Pôdorys 5. N.P.

Keramické obvodové steny a vložené železobetónové konštrukcie sú prestropené monolitickými stropnými doskami.

Rez 1-1
Rez 1-1
Rez 2-2
Rez 2-2
Uličný pohľad
Uličný pohľad
Východný pohľad
Východný pohľad

Biele terrazzo použité vo frekventovaných spoločných priestoroch zabezpečuje dlhú životnosť povrchov.

Foto: Ester Havlová

Pohľadovú vrstvu zo strany exteriéru tvoria svetlé obkladové pásiky. Na podlahách bytov a kancelárií sú položené dubové parkety. Rámy okien sú drevené, na prízemí hliníkové.

Foto: Ester Havlová
Foto: Ester Havlová
Foto: Ester Havlová
Foto: Ester Havlová
Foto: Ester Havlová
Foto: Ester Havlová
Foto: Ester Havlová
Foto: Ester Havlová

Poloha diela

Ing. arch. Markéta Cajthamlová
Ing. arch. Daniela Slížová
Ing. arch. Lenka Brožová Krušinová
Vložené
8. marec 2019
0
676
Hlavný obsahHlavný obsah
Čakajte prosím