Novotvar v prostredí alpskej obce.
Hansgrohe - prémiová značka kúpeľňových riešení, ponúka nadčasový dizajn, technickú precíznosť a udržateľné inovácie...
Využite špeciálnu akciu Internorm: okná za minuloročné ceny a hliníkový kryt úplne zadarmo. Ponuka je časovo obmedzená!
Na podujatí sa predstaví až 37 vystavovateľov - popredných dodávateľov stavebných materiálov a inovácií s prezentáciou...
Sumarizácia najdôležitejších inovácií, ktoré redefinujúcich využitie tohto energetického zdroja.
AMPHIBIA 3000 GRIP 1.3 od spoločnosti ATRO predstavuje modernú hydroizolačnú technológiu, ktorá spája vysokú odolnosť,...
Ambiciózne plány EK narazili na ekonomické možnosti domácností v jednotlivých členských štátoch –...
IDEA DOOR od spoločnosti JAP prináša do interiéru čistý minimalistický vzhľad vďaka bezrámovému riešeniu a precíznej...
Kontinuita riešenia od vonkajšieho obkladu až po kovania a kľučky.
Nástenné nadomietkové armatúry Vitus sú mimoriadne vhodné pre rýchlu a efektívnu...
Okenné profily z kompozitného materiálu RAU-FIPRO X od spoločnosti Rehau sú v porovnaní s tradičnými plastovými profilmi mnohonásobne...
Najnovší sortiment stolov pre zariadenie interiérov...
Spojenie moderného dizajnu, funkčnosti a svetla do harmonického architektonického prvku.
Kancelárska budova Baumit v slovinskom Trzine prešla premenou na moderné a udržateľné pracovisko. Architekti kládli dôraz...
Mottom šiesteho ročníku on-line konferencie odborníkov Xella Dialóg je Efektívny návrh budov 2025+: zmeny a riešenia

Novopostavený Pub Tryskáč sa nachádza v mestskej časti Košice-Sever, priamo v areáli štadióna Lokomotíva na južnom okraji lesoparku, ktorý oddeľuje električkové obratisko od športoviska.
Nový objekt z CLT panelov, od začiatku koncipovaný ako drevostavba so zelenou strechou, nahradil pôvodnú krčmu v severovýchodnej časti pozemku.
“Na tomto mieste kedysi stála búdka s občerstvením a na dobovej fotografii vidno aj ´tryskáč´ MiG-15. Chceli sme urobiť fasádu zo starého plechu, aký bol na hangároch a lietadlách, aby sme odkázali na stíhačku, ktorá tu stála a dala miestu meno. Plánujeme ešte pridať nity po škárach omietky,” približuje východiská návrhu architekt Marek Bakalár.
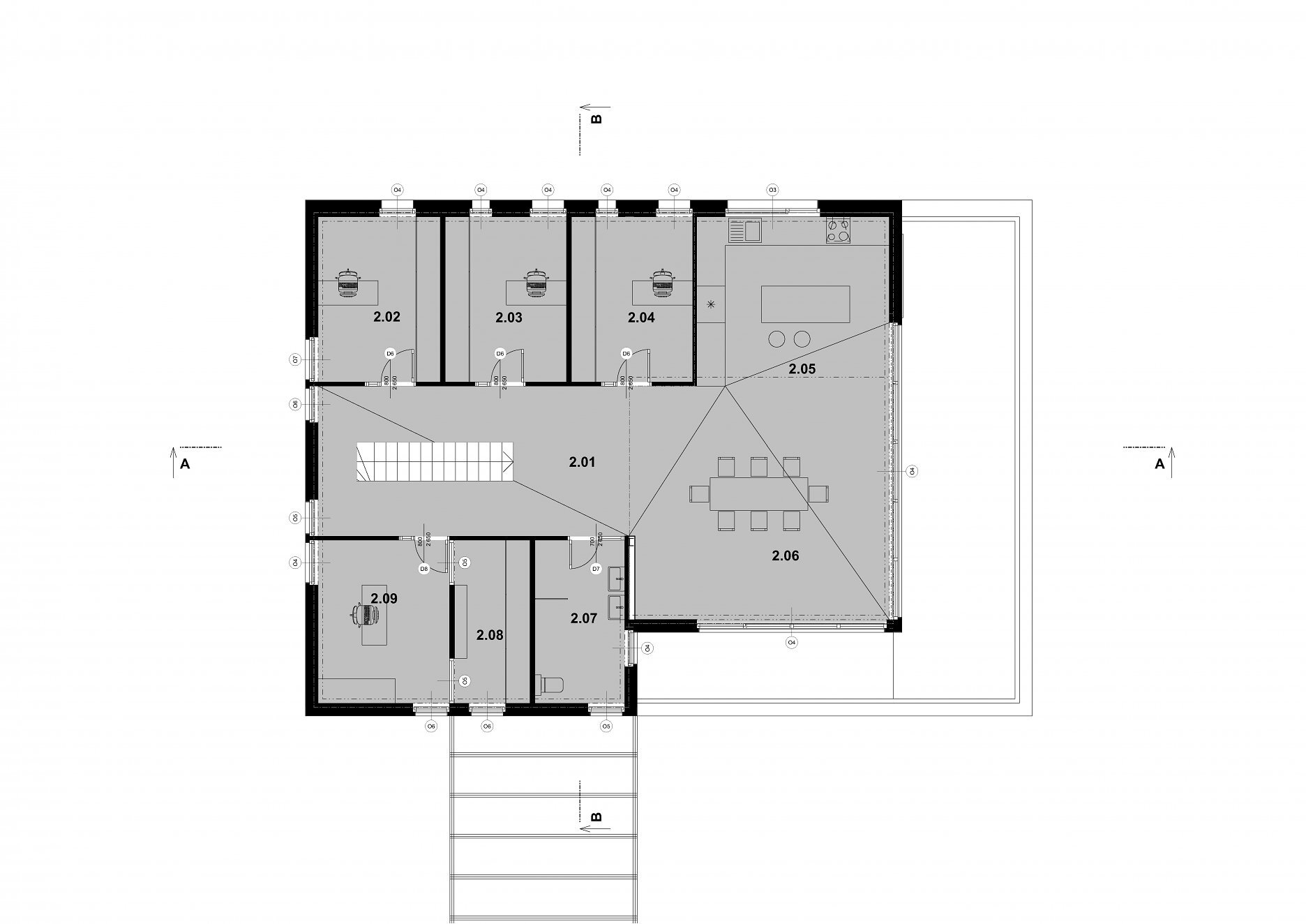
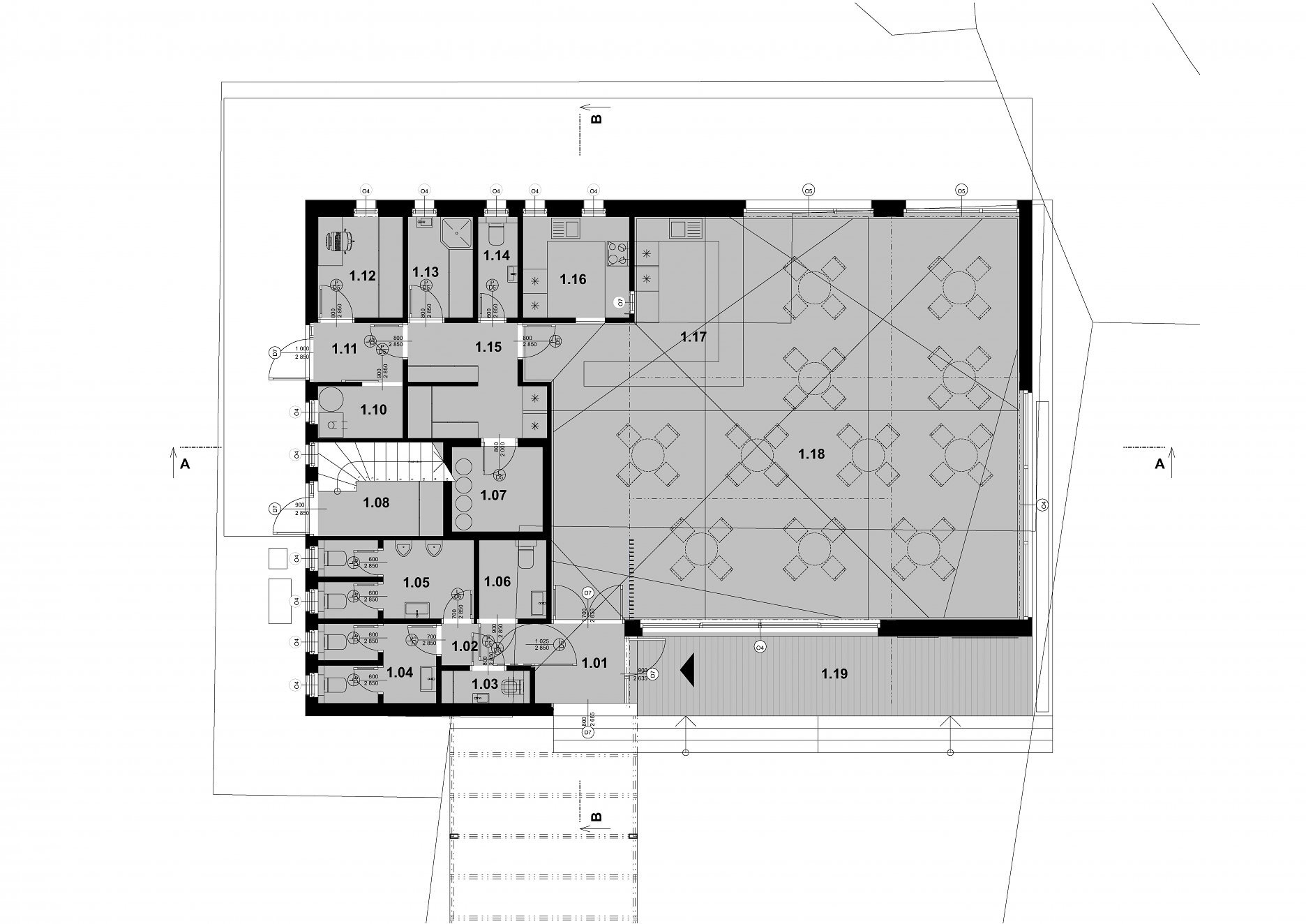
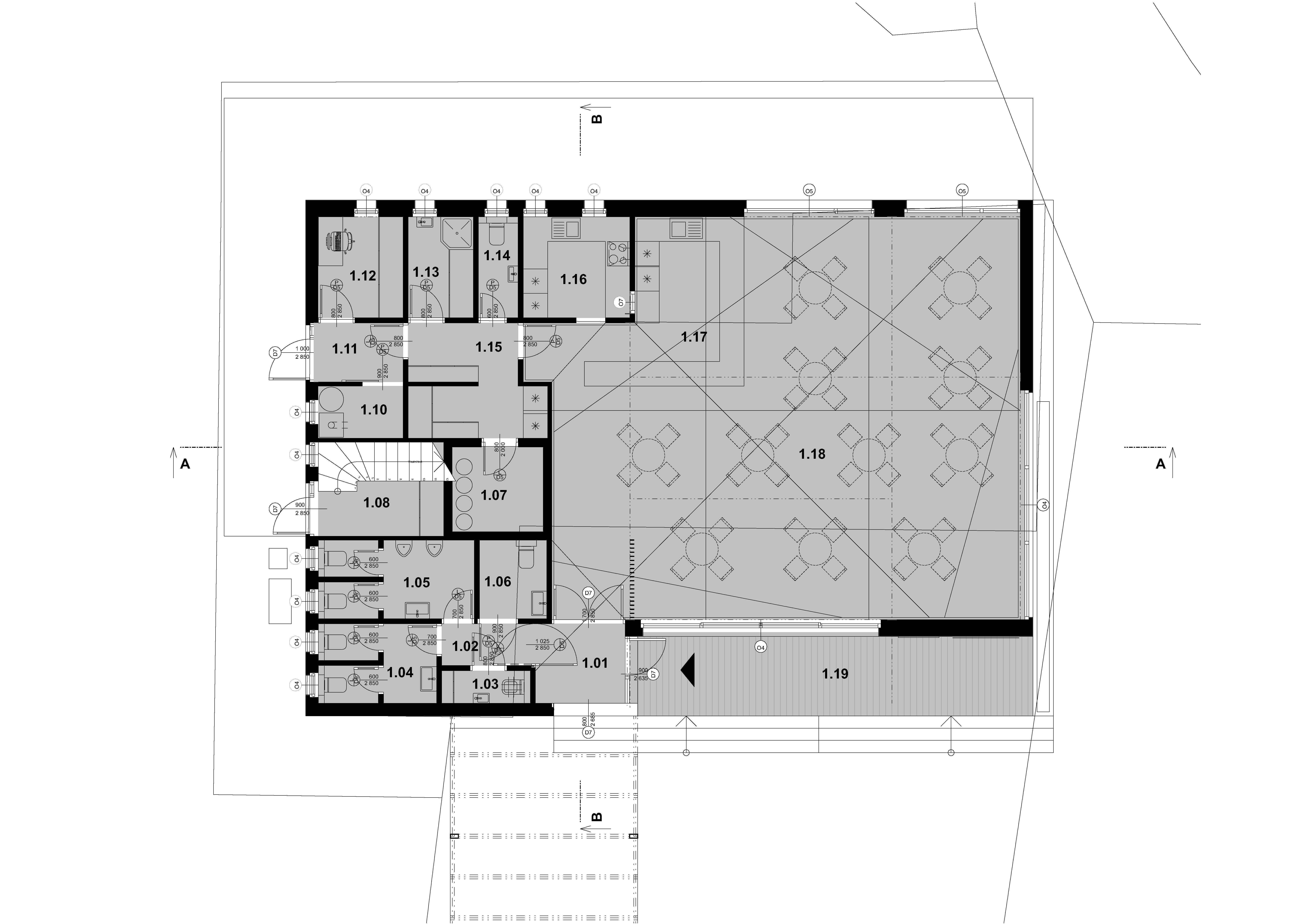
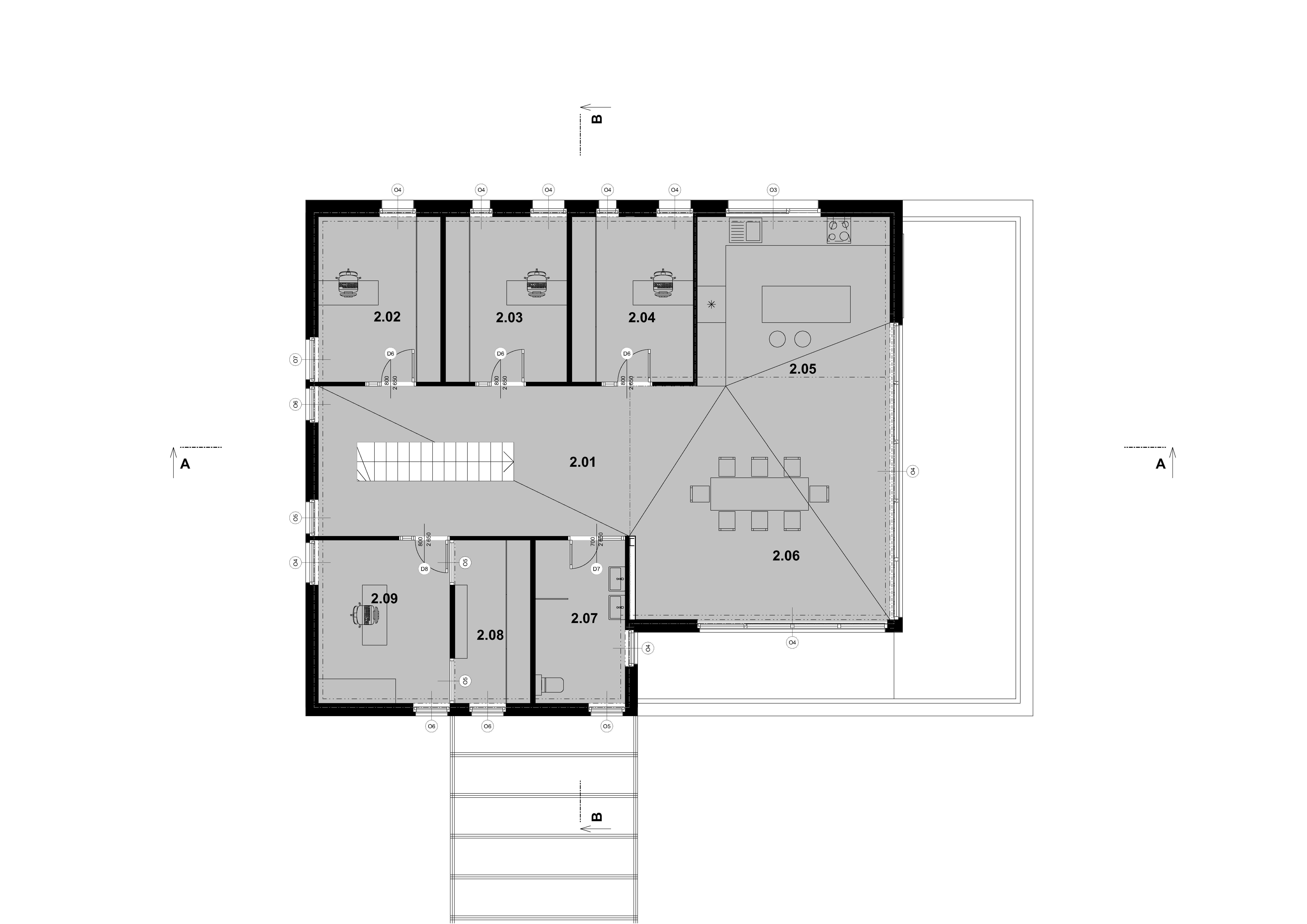
Na prízemí, prístupnom z juhozápadu, sa nachádza samotný pub s výdajným pultom, prípravňou a skladmi, doplnený o technickú miestnosť, šatňu a toaletu pre personál a hygienické zázemie pre návštevníkov. Pred vstupom sa rozprestiera krytá terasa, ktorá plynule prepája priestory pubu s exteriérom. Zo severozápadnej fasády vedie samostatné schodisko na ustúpené druhé podlažie s kanceláriami, zasadacou miestnosťou, kuchynkou a toaletou. Aj táto úroveň má plochú zelenú strechu, čo zlepšuje mikroklímu a znižuje energetickú náročnosť objektu.
Architektonický výraz stavia na kontraste materiálov a farieb: strieborná hladká omietka a drevené terasy sú protiváhou antracitových okenných rámov a lamiel tienenia. Obvodové steny zateplené minerálnou vlnou zabezpečujú tepelný komfort, zatiaľ čo interiér charakterizuje kombinácia CLT panelov a drevenej stĺpikovej konštrukcie. Tryskáč Pub tak spája ekologické princípy drevostavby s funkčným dispozičným riešením a nadväzuje na charakter solitérnych objektov v okolí.
Fotografie pôvodnej krčmy:
Podklady: Marek Bakalár / bakalar architekt