Okenné profily z kompozitného materiálu RAU-FIPRO X od spoločnosti Rehau sú v porovnaní s tradičnými plastovými profilmi mnohonásobne...
Najnovší sortiment stolov pre zariadenie interiérov...
Spojenie moderného dizajnu, funkčnosti a svetla do harmonického architektonického prvku.
Kancelárska budova Baumit v slovinskom Trzine prešla premenou na moderné a udržateľné pracovisko. Architekti kládli dôraz...
Mottom šiesteho ročníku on-line konferencie odborníkov Xella Dialóg je Efektívny návrh budov 2025+: zmeny a riešenia
Robot WLTR predstavuje moderný prístup k murovaným konštrukciám. Vďaka automatizácii dokáže rýchlo, presne a bezpečne realizovať...
Okrem bezpečnosti majú okná aj elegantný vzhľad, pretože nie sú viditeľné žiadne uzamykacie časti kovania.
Dvere MASTER v skrytej zárubni AKTIVE je možné vyrobiť až do výšky 3 700 mm
Internorm stavia na energetickú efektívnosť a inteligentné tieniace riešenia.
Pohľad na moderné prístupy k výrobe s dôrazom na udržateľnosť.
Slovensko vo výbere zastupuje šesť realizácií.
Spoločnosť Internorm odteraz stavia na novej variante tepelnoizolačného skla od AGC, ktorá v produkcii ročne ušetrí 10...
Jubilejný 20. ročník prestížnej medzinárodnej súťaže pre študentov architektúry priniesol...
Otočné a posuvné dvere MASTER od podlahy až po strop, ponúkajú mimoriadnu variabilitu výšky, materiálu a zladenia so skrytými...
Predstavené produkty, spájajú premyslený dizajn, funkčnosť a udržateľnosť. Nábytok Materia vzniká s cieľom podporiť inšpiratívne stretnutia...

Pri troch ocenených návrhoch prikladáme hodnotenie poroty. Pri ostatných návrhoch uvádzame komentár redakcie vytvorený na základe pracovných poznámok z rozpravy poroty.
Súťažné návrhy predstavujeme v chronologickom poradí:
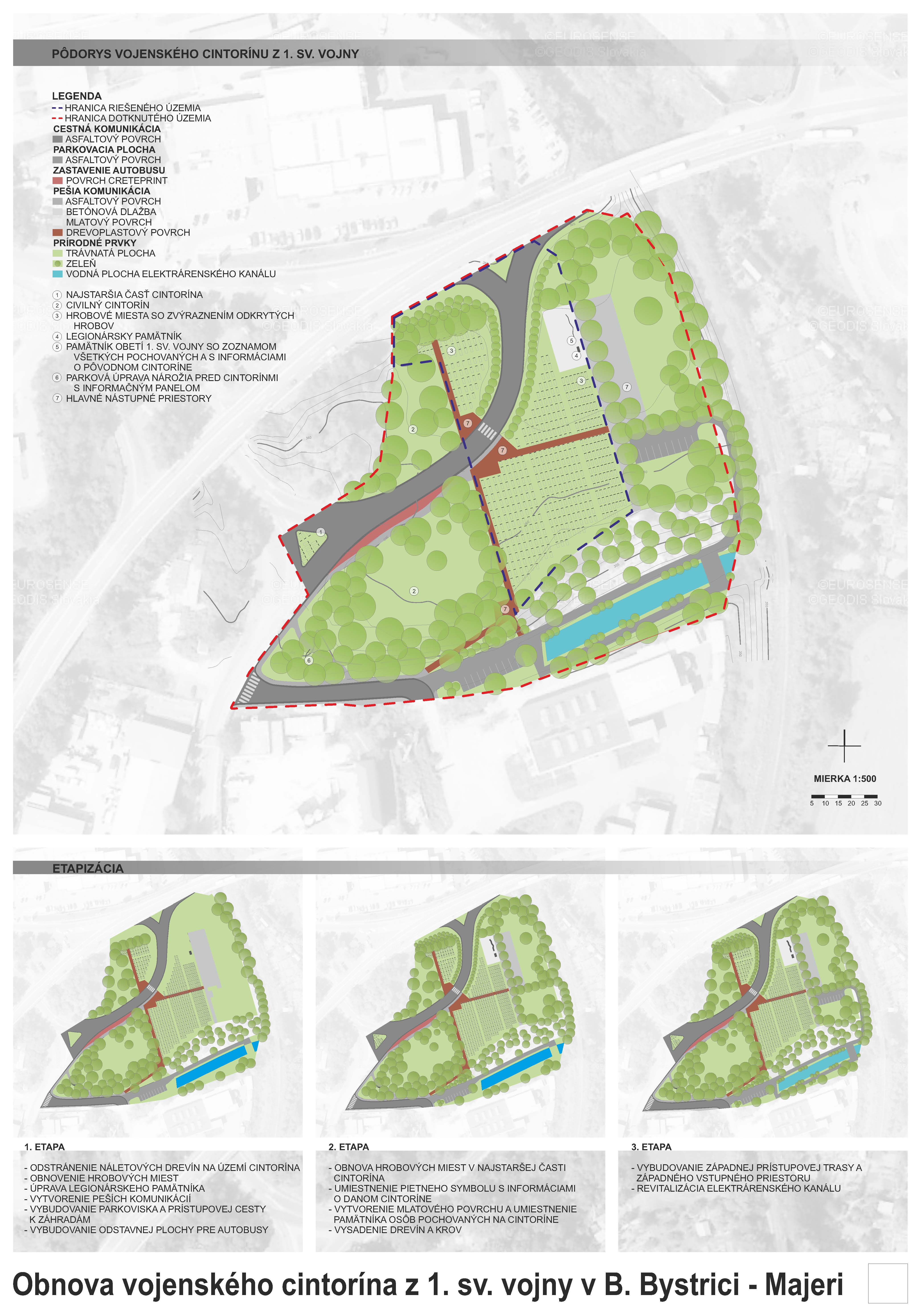
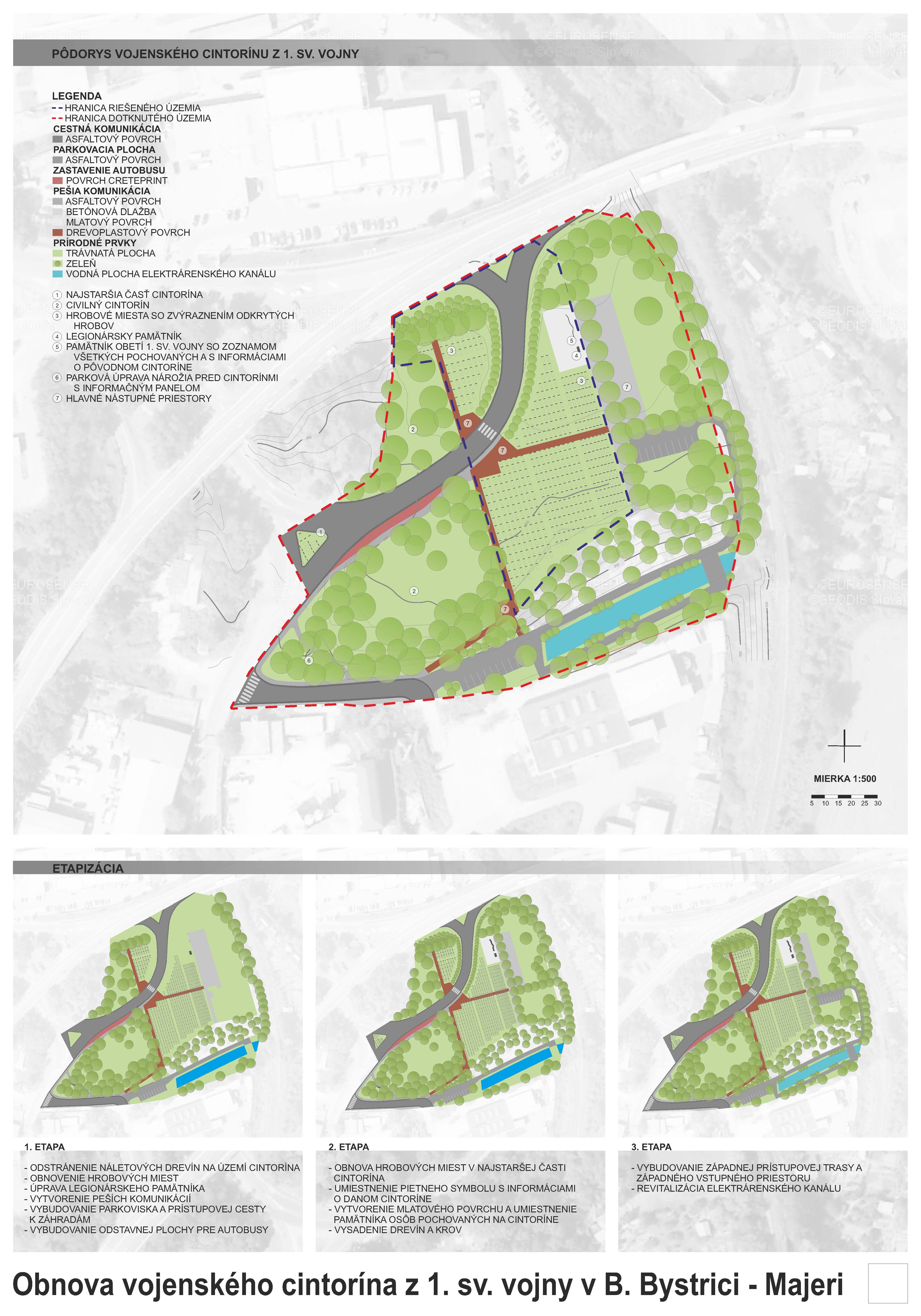
Súťažný návrh č.3 - odmena, autori: Ing. arch. Michal Bugáň, Ing. arch. Marián Ján, Banská Bystrica
Hodnotenie poroty:
Plusy:
Prehľadná a vyvážená kompozícia priestoru cintorína. Vhodne umiestnené vstupy do cintorína. Návrh vychádza zo súčasnej klasickej úpravy vojnových cintorínov. Obsahuje prvky, ktoré sa na vojnovom cintoríne očakávajú a spĺňa predpoklady jednoduchej údržby pri zachovaní dôstojného stavu počas celého roka. Jednoduchý, ľahko vnímateľný raster hrobov, jednoznačné trasy pohybu a dostatočná plocha na stretávanie. Vhodne zvolené architektonické riešenie prvkov (zákop, bajonety) odkazujúce sa na históriu I. svetovú vojnu.
Mínusy:
Chýba výraznejšia invencia. Spojenie pietneho miesta s pamätníkom legionárov na jednom podstavci je nevhodné.
Súťažný návrh č.4, autori: Ing. arch. Marián Antal, Ing. arch. Simona Antalová, Ing. Martin Tomáš, Dubnica nad Váhom
Hodnotenie poroty:
Plusy:
Návrh je prínosný v riešení zahĺbeného prístupového chodníka – spomienkovej cesty k cintorínu, predstavujúcej paralelu zákopu, v materiálovom stvárnení oporných stien zahĺbeného chodníka (prútené ohrady používané v zákopoch I. sv. vojny). Akceptovateľným je aj riešenie centrálnej pamätnej steny so spevnenou plochou. Vhodné umiestnenie parkoviska s napojením na cintorín.
Mínusy:
Menej hodnotne je riešený ústredný priestor okolo pamätníka legionárov. Problém konkrétnej identifikácie hrobov a znemožnený prístup k nim. Symbol holubice – holubica bola symbolom mieru po 2 sv. vojne. Spojenie hlavného pietneho miesta s pamätníkom legionárov.
Súťažný návrh č.5 - 2. cena ex aequo, autori: mgr inž. arch. Szymon Rozwalka, Ing. arch. Adéla Kyselová, Brno
Hodnotenie poroty:
Plusy:
Porota oceňuje moderné a progresívne riešenie. Návrh úpravy hrobových miest ich zdvihnutím z úrovne terénu, do korténových plechových obrúb, je bez potreby akýchkoľvek ďalších doplňujúcich prvkov (oplotenie cintorína, ústredný pamätník) plne dostačujúcou, priamočiarou a jednoznačnou prezentáciou cintorína. Za jeden z najväčších kladov návrhu pokladáme zaujímavý a pútavý motív rastra vystupujúcich hrobových miest prechádzajúcich cez cestu v pôdoryse pôvodného areálu. Vynikajúce je vtiahnutie okoloidúcich automobilistov do deja. Cintorín je neprehliadnuteľný. Upozorňuje na seba každého okoloidúceho, núti ho spomaliť a zamyslieť sa. Aj nad necitlivou intervenciou pri stavbe cesty v minulosti, priamo na hroboch pochovaných i nad neúctou k ľuďom a k histórii. Hrobové miesta premietnuté do vrstvy vozovky ešte umocňujú pripomienku na význam lokality. Návrh má vhodne riešený dopravný prístup do areálu, parkovanie aj prístup pre imobilných z južnej strany od elektrárenského kanála.
Mínusy:
Návrh svojím štrukturálnym makrokonceptom výrazne pripomína Pamätník Holokaustu v Berlíne, čím stráca na originalite. Je to jedno z najdrahších riešení, ktoré predpokladá náročné konštrukčné a materiálové úpravy stoviek hrobových miest, ktoré musia odolávať tlaku a vplyvom zeminy i počasiu. S tým sa spájajú aj vysoké nároky na údržbu a dlhodobú udržateľnosť. Zároveň vznikajú ťažko kontrovateľné a neprehľadné zákutia, čo má vplyv na bezpečnosť a možnosť vytvorenia podmienok pre asociálne konanie neželaných návštevníkov.
Súťažný návrh č.6, autori: Ing. arch. Peter Lényi, Ing. Michal Marcinov, Dipl. Ing. Dominika Čerepiaková, Ing. Andrej Morávek, Katarína Stanislavová, Bratislava
Plusy:
Minimalistický návrh prezentovaný výbornou grafikou s jednoduchým motívom udržiavaného priestorového stromoradia. Prezentácia všetkých (aj zaniknutých) hrobových miest využitím východných pozemkov a netradičný prístup. Efektný výsledok a ekologický prístup.
Mínusy:
Komplikovaná a náročná realizácia. Náročná údržba vyžadujúca si priebežnú odbornú starostlivosť. Nedostatočná prehľadnosť pohybu s malými zhromažďovacími priestormi.
Pozn.: Tip redakcie za invenčné, čisté, elegantné a environmentálne ohľaduplné riešenie.
Súťažný návrh č.7 - 1. cena, autori: Ing. arch. Benjamín Brádňanský, Ing. arch. Vít Halada, Maroš Greš, Bratislava
Hodnotenie poroty:
Plusy:
Návrh predstavuje odlišný pohľad na spôsob obnovy areálu cintorína ako ostatné súťažné návrhy. Autori sa rozhodli vložiť do priestoru „novú životaschopnú vrstvu“ a to „bez zničenia pôvodných vrstiev. “ Pozdĺž západnej hranice pôvodného vojenského cintorína navrhli lineárne MÓLO (spevnená mlatová plocha), ktoré vnáša do územia novú organizáciu a objekt MONUMENTu, ktorý okrem toho, že sám o sebe je pamätníkom dokumentujúcim a pripomínajúcim históriu cintorína, „prináša do existujúcej periférie“ aj „nadhľad.“ MONUMENT v sebe spája funkcie pietneho miesta, náhrobnej dosky s menami pochovaných, kaplnky, vyhliadky, prezentačnej steny, zázemia, aj výrazného symbolu miesta - viditeľného z okolia. MONUMENT je veža 10 m vysoká a 2 m úzka, ktorú tvorí oceľová konštrukcia s cortenovými stenami (corten - patinovaná, počasiu odolná oceľ), na ktorých sú „vyrezané“ údaje rokov a mien. Autori sa vyhli akýmkoľvek stavebným zásahom v miestach hrobových polí a navrhli po odstránení náletovej zelene realizovať LÚKU osiatu lúčnymi kvetmi. LÚKA chráni vrstvu hrobov pod sebou a súčasne „dokáže v sebe integrovať aj možnosť lokálnych sond a obnovení hrobov.“ Forma označenia hrobových miest s nedominantným „jednotným systémom označenia hrobov cortenovými doskami osadenými pri hlave hrobu“ je zdokumentovaná v textovej časti návrhu. Pre prístup do areálu autori navrhujú „úpravu krajnice existujúcej cesty rozšírením o chodníkový pruh a pohotovostné parkovanie“ pozdĺž okraja južného civilného cintorína. V ďalšej fáze uvažujú s realizáciou vstupu a parkovania smerom od elektrárenského kanála.
Porota ocenila zaujímavý koncept, vhodné umiestnenie MÓLA a objektu MONUMENTU v rámci riešeného územia rešpektujúci historický pôdorys, ako aj ideovo ucelený minimalistický návrh architektúry s modernými vyjadrovacími prostriedkami a atraktívnym materiálovým stvárnením nevyžadujúcim náročnú údržbu. Rovnako pozitívne hodnotila, že autori sa vyhli zasahovaniu do hrobových polí.
Mínusy:
V grafickej časti návrhu nie je dostatočne konkrétne zdokumentované označenie hrobových miest v priestore LÚKY (je to súčasťou textovej časti a prílohy) a otázne je aj premiestnenie pamätníka legionárov do novej polohy, čo nie je v návrhu jednoznačne odprezentované. Pre riešenie prístupu do areálu vojnového cintorína vzhľadom na náročnosť dopravnej situácie v území porota považuje za prijateľnejšie riešenie hlavného prístupu z južnej strany (tzv. „spodný prístup“- od elektrárenského kanála).
Súťažný návrh č.8 - odmena, autori: Ing. arch. Vladimír Tomala, Ing. arch. Martin Sedláček, Bc. Boris Rusiňák, Banská Bystrica
Hodnotenie poroty:
Plusy:
Pekný motív lávky vznášajúcej sa nad lúkou s jednoduchým rastrom hrobov, dobre umiestnený vstup aj diagonála chodníka. Spája originálne prvky s klasickými. Obsahuje tie prvky, ktoré sa na vojnovom cintoríne očakávajú. Návrh pôsobí dôstojne. Prezentácia všetkých troch častí cintorína. Označenie hrobových miest jednoduchou formou.
Mínusy:
Nie je správne zvolená symbolika v rámci centrálneho pietneho miesta. Parkovanie, preseknutie jednotného priestoru výrazným líniovým prvkom. Absencia bezbariérového prístupu.
Súťažný návrh č.9 - 2. cena ex aequo, autori: Bc. Katarína Sýkorová, Bc. Dan Šamánek, Ing. arch. Martin Šarafín, Banská Bystrica
Hodnotenie poroty:
Plusy:
Porota kladne hodnotí zvolenú formu obnovy a prezentácie hrobových miest betónovými obrubami v rastri podľa pôvodného plánu.
V celkovom riešení cintorína tak prevláda zeleň - trávnaté plochy, živé ploty, z ktorých kontrastne vystupujú novonavrhované pietne miesta - vstupný priestor, priestor ôsmich červených javorov, diagonálny chodník s kamennými stenami, zahĺbený priestor s lipou. Pietne miesta vytvárajú hodnotné mikropriestory so spomienkovou a oddychovou funkciou. Priestory svojou polouzatvorenou formou sú príjemné, ukľudňujúce a intímne. Návrh vytvára najviac najrôznorodejších doplňujúcich priestorov a funkcií oproti ostatným návrhom. Navrhovaná obnova cintorína je dôstojná, viacobrazná, priťahujúca návštevnikov nielen za spomienkou, ale aj oddychom a relaxom. Vhodne je zvolené i oplotenie cintorína živým plotom. Návrh obsahuje prvky pre všetky kategórie návštevníkov cintorína. Návrh je akceptovateľný celoročne. Údržba cintorína pri tomto návrhu nepredpokladá vysokú náročnosť pri zachovaní jeho dôstojného vzhľadu za akýchkoľvek vonkajších podmienok.
Mínusy:
Množstvo nápadov a foriem neprispieva k jednoduchosti a vyváženosti architektonického konceptu. Na jednej strane je to skôr konzervatívne tradičné riešenie, na druhej strane je tu spojené množstvo heterogénnych prvkov. Niektoré z nich sú samoúčelné, napr. diagonálne preťatie hrobových miest za účelom umiestnenia pamätníka legionárov.
Súťažný návrh č.10 - odmena, autori: Ing. arch. Emanuel Zatlukaj, Ing. arch. Branislav Lackovič, Mgr. Art. Rea Dilhoffová, Ing. Ing. arch. Marian Trcka, Mgr. Art. Jana Moreno, Bratislava
Hodnotenie poroty:
Plusy:
Snaha o komplexné riešenia celého areálu a prepojenie s pôvodným historickým cintorínom. Pochôdzny múr umožňuje pohľad na cintorín. Riešenie hlavného objektu v južnej časti s prezentáciou artefaktov, mien a histórie. Kultivovaná až sochárska práca s objektami a hmotami.
Mínusy:
Udržateľnosť do budúcna a skutočná realizácia monumentu sa javí finančne náročnejšia ako samotný rozpočet v návrhu. Nevhodné označenie hrobov - myšlienka/idea vyznamenania pretavená do symbolu rovnormenného kríža evokuje náboženský symbol. Idea virtuálnej prezentácie na plexiskle je v praxi ťažko realizovateĺná až nepoužiteĺná, resp. nemožno ju vnímať v celom zamýšľanom rozsahu. Plexisklová bariéra opticky oddeľuje cintorín od okolia.
Súťažný návrh č.11, autori: Ing. arch. Juraj Furdík, CSc., Bc. Patrik Mádel, DiS., Ágnes Gyarmati, Topoľčany
Hodnotenie poroty:
Plusy:
Prínosom návrhu je vytvorenie južného predpolia cintorína, predstavujúceho komunikačné priestory so zapojením vody z kanála. Prezentácia všetkých častí cintorína, využitie východného nástupu.
Mínusy:
Nedostatok zhromaždovacích priestorov, chýbajúce pietne miesto s adekvátnym symbolom. Slabá grafická prezentácia prakticky neumožňuje sa s ním oboznámiť na takej úrovni, aby došlo k plnohodnotnej komparácii s ostatnými návrhmi.
Súťažný návrh č.12, autori: Ing. arch. Marian Ravasz, Ing. arch. Peter Tóth, Ing. Erik Mayer, Ravasz&Partners - Dunajská streda
Hodnotenie poroty:
Plusy:
Návrh má vhodne riešené umiestnenie parkoviska a prístupovej cesty vzhľadom k hlavnému vstupu. Prezentácia všetkých častí cintorína, možnosť interaktívnej prehliadky, bezbariérovosť a ľahká údržba. Jednoduchý nápad vytvorenia hrobových miest s jediným priestorovotvorným prvkom. Komfortný pre väčšie delegácie a skupiny návštevníkov. Nenáročná údržba.
Mínusy:
Navrhnutá prezentácia pôsobí industriálne, masívne a nepostihuje atmosféru cintorína. Veľká masa spevnenej plochy. Nevyužitie charakteru prírodného potenciálu lokality.
Súťažný návrh č.13, autori: doc. Ing. arch. Alexander Schleicher, PhD., Ing. arch. Petra Schleicher, Bc. Tomáš Jopek, Bratislava
Plusy:
Riešenie múzea ako pripomienky I. sv. vojny a nástupného priestoru. Nekonfliktnosť, ľahká údržba, bezbariérovosť, múzeum. Zvládnuté výtvarné dielo.
Mínusy:
Nedostatok zhromažďovacích priestorov aj kvôli navrhnutému kruhovému chodníku. Pietne miesto navrhované len pri pamätníku legionárov, kópia mohyly mimo hlavného areálu. Nevhodná etapizácia. Masívne použitie bronzu - drahé a rizikové riešenie.