Na podujatí sa predstaví až 37 vystavovateľov - popredných dodávateľov stavebných materiálov a inovácií s prezentáciou...
Novotvar v prostredí alpskej obce.
Hansgrohe - prémiová značka kúpeľňových riešení, ponúka nadčasový dizajn, technickú precíznosť a udržateľné inovácie...
Využite špeciálnu akciu Internorm: okná za minuloročné ceny a hliníkový kryt úplne zadarmo. Ponuka je časovo obmedzená!
Sumarizácia najdôležitejších inovácií, ktoré redefinujúcich využitie tohto energetického zdroja.
AMPHIBIA 3000 GRIP 1.3 od spoločnosti ATRO predstavuje modernú hydroizolačnú technológiu, ktorá spája vysokú odolnosť,...
Ambiciózne plány EK narazili na ekonomické možnosti domácností v jednotlivých členských štátoch –...
IDEA DOOR od spoločnosti JAP prináša do interiéru čistý minimalistický vzhľad vďaka bezrámovému riešeniu a precíznej...
Kontinuita riešenia od vonkajšieho obkladu až po kovania a kľučky.
Nástenné nadomietkové armatúry Vitus sú mimoriadne vhodné pre rýchlu a efektívnu...
Okenné profily z kompozitného materiálu RAU-FIPRO X od spoločnosti Rehau sú v porovnaní s tradičnými plastovými profilmi mnohonásobne...
Najnovší sortiment stolov pre zariadenie interiérov...
Spojenie moderného dizajnu, funkčnosti a svetla do harmonického architektonického prvku.
Kancelárska budova Baumit v slovinskom Trzine prešla premenou na moderné a udržateľné pracovisko. Architekti kládli dôraz...
Mottom šiesteho ročníku on-line konferencie odborníkov Xella Dialóg je Efektívny návrh budov 2025+: zmeny a riešenia

Autorský text:
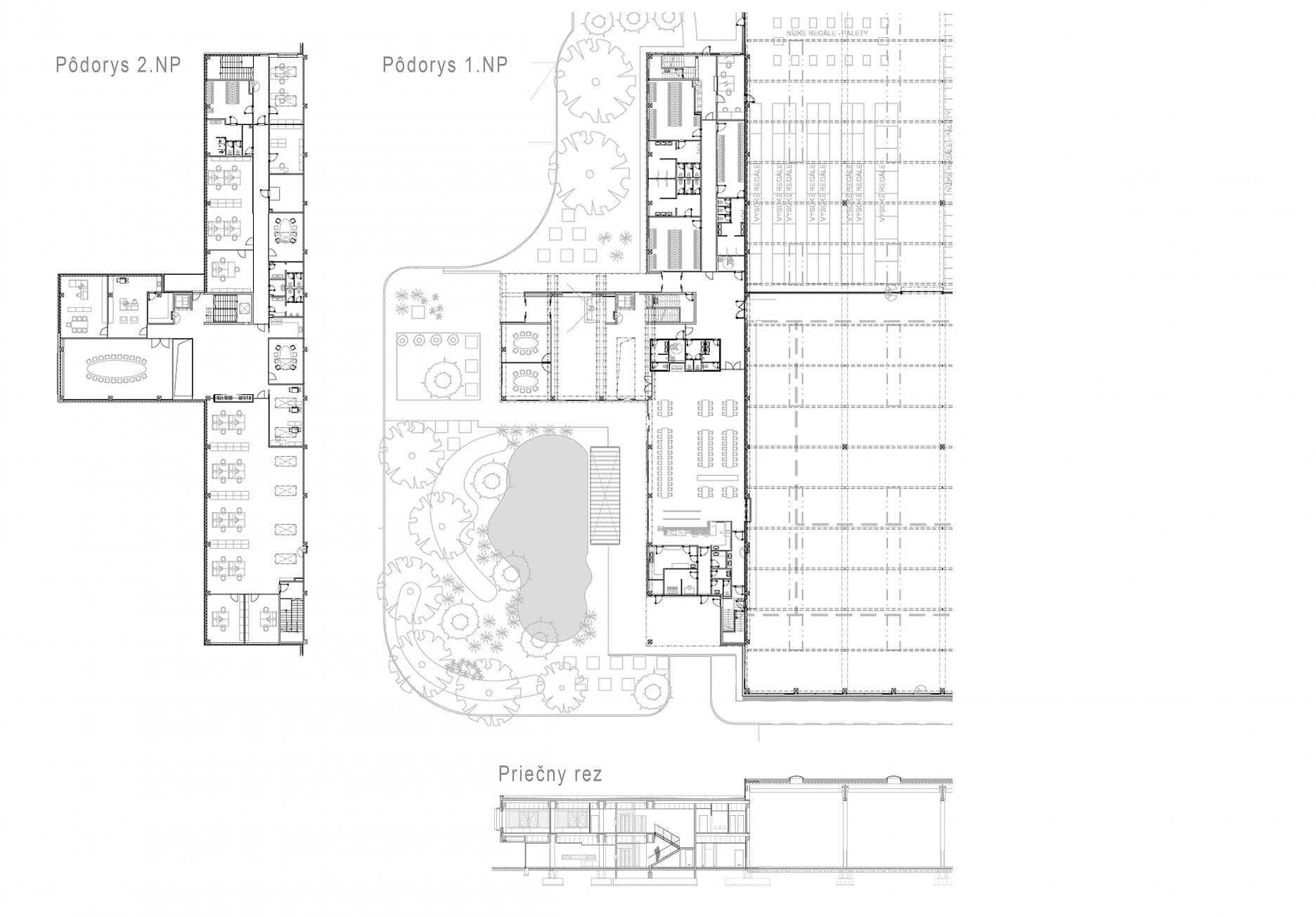
Výrobný závod MEVIS sa vyznačuje komplexným riešením celého areálu od architektonického detailu cez urbanistické riešenie, sadové úpravy až po progresívne udržateľné technológie domovej techniky. Areál veľkosti 5,842 ha je riešený na poslednej veľkej parcele priemyselného parku VICENZA v Šamoríne. Nachádza sa preto v ideálnej polohe voči obytným plochám mesta Šamorín s dobrým dopravným napojením na nadradenú dopravnú infraštruktúru.
Areál sa člení na vonkajšie plochy parkovísk so vstupným objektom vrátnice a prístrešku na bicykle. Vnútorný oplotený areál sa delí na severnú zásobovaciu časť so širokými betónovými manipulačnými plochami pre kamióny a na južnú ukľudnenú časť s okrasným parkom, ktorý slúži na oddych a relaxáciu zamestnancov. V čelnej časti areálu sú tieto dve zóny závodu oddelené kolmým krídlom administratívnej prístavby pristavanej k výrobnej hale v pôdorysnom tvare písmena „T“. Celkovo ma hlavná stavba 36.000 m2 zastavenej plochy.
Areál MEVIS predstavuje pozitívny príklad pozdvihnutia štandardu priemyselnej architektúry vo všetkých jej aspektoch. Už na prvý pohľad pri vstupe do areálu prekvapí architektúra administratívnej časti komplexu, pre ktorú je charakteristické vertikálne tienenie vonkajšími kovovými lamelami, ktoré sa točia automaticky podľa snímača slnečného žiarenia
Zaujímavá je svojou členenou fasádou s bielymi horizontálnymi líniami, ktoré sa striedajú s vertikálami výrazných vonkajších slnolamov v korporatívnej modrej farbe, ktoré zároveň vytvárajú dynamiku fasády. Významovo a architektonicky dominantná administratívna časť vytvára bielu predsadenú hmotu priamo napojenú na rozsiahlu halu, v ktorej sa nachádzajú všetky výrobné prevádzky.
Pôdorysné riešenie je založené na čistom ortogonálnom usporiadaní logicky navrhnutých hlavných komunikačných trás zamestnancov a komunikačných línii v nevýrobných a výrobných prevádzkach. Vedľa hlavného vstupu do administratívnej časti na prízemí paralelne prebieha vstup pre zamestnancov do bloku so sociálnymi zariadeniami cez zamestnaneckú halu, z ktorej pokračuje komunikačný ľah v priamej línii do výrobnej haly a do protiľahlého bloku jedálne. Bonusom jedálne je vizuálne prepojenie s vodnou plochou, vonkajšou zeleňou a terasou.
Kancelárie, zasadačka, jedáleň, vstupná hala sú orientované k priestoru s vodnou plochou a drevenou terasou, ktorá je zvýraznená a chránená pergolou. Fasádu tvoria metalické sendvičové panely, panely z pohľadového betónu a obklad z CEMBRIT-u. Okná sú hliníkové. Hala je obložená metalickými sendvičovými panelmi s modulmi z oceľového lankového rastra pre popínavé rastliny. Netradičné je aj riešenie átria v strede priemyselnej haly, pre získanie prírodného svetla pre kancelárie výroby umiestnenej okolo átria, ktoré slúži zároveň aj pre pobyt a relax počas krátkych prestávok pracovného dňa.
Na poschodí sa po obvode pôdorysu nachádzajú kancelárske priestory osvetlené denným svetlom. Centrálny blok je v zadnej časti ukončený priestormi zasadačiek osvetlených zhora cez svetlíky a s priamym výhľadom do výrobnej haly. Interiér administratívnej časti je ladený v troch dominujúcich farbách, ktoré sa prelínajú celým komplexom - v sivej, bielej a modrej. Farebnosť povrchov, priznané materiály ako pohľadový betón hlavného komunikačného jadra, poly-uretánová podlaha v bielej a sivej kombinácii, hliníkový podhľad Hunter Douglas rastrovaný pásovými led-svietidlami sú determinujúcimi prvkami vysokého štandardu interieru.
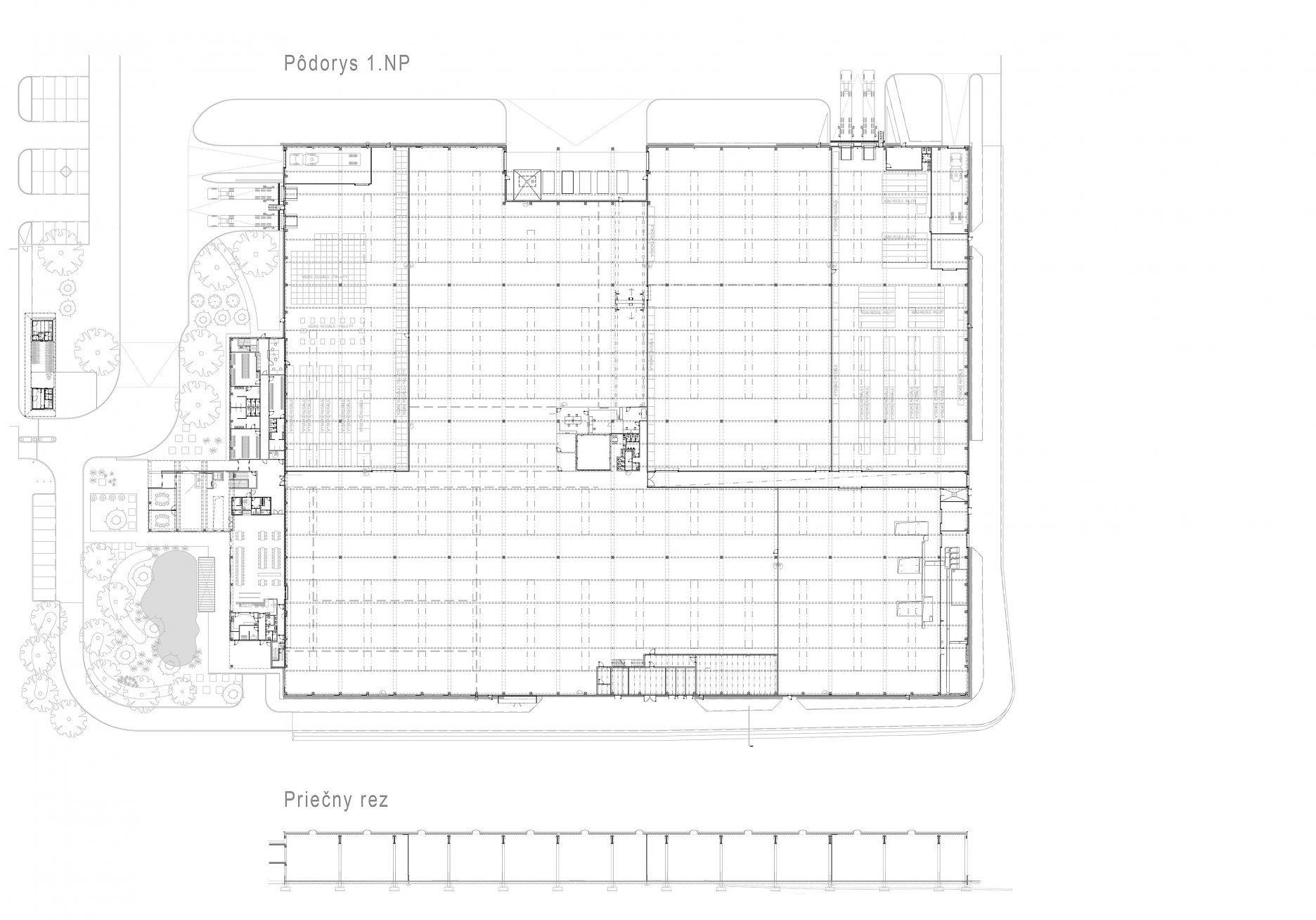
Priestory výroby sú umiestnené v rozsiahlej štvorloďovej hale, ktorej pôdorysné rozmery sú 120 x 300 m. Konštrukciu haly tvorí železobetónový prefabrikovaný skelet, s modulovým rozpätím lodi 30 x 12 m. V hale dominuje jasné vedenie prevádzkových komunikačných trás v čistých priamkových líniách čitateľných už na prvý pohľad ich signálnym odlíšením vo farbe liatej podlahy. Pre zabezpečenie bezkolíznej prevádzky v hale sú komunikačné pásy určené pre pohyb dopravných vozíkov a zamestnancov zreteľne diferencované od výrobných plôch.
V rámci haly sú priestorovo oddelené úseky hlavnej kovovýroby, skladov, lisovne, lakovne a technického zabezpečenia komplexu.
Hala obsahuje v strede svojej dispozície novátorsky riešenú vstavbu kancelárskeho a laboratórneho boxu obsahujúcu aj dennú miestnosť. Táto netradičná vstavba v podobe vloženého strohého bieleho „bauhausovského" domu v dome haly je prederavená vnútorným átriom, ktoré zaplavuje denným svetlom nielen priľahlé kancelárie, ale aj samotnú výrobnú halu. Na naše pomery neobvyklé riešenie vnieslo do výroby prvok oázy zelene, svetla a čerstvého vzduchu.
Domová technika využíva udržateľné zdroje pomocou tepelných čerpadiel pre kúrenie a chladenie. Čerpá sa studničná podzemná voda pre sálavé chladenie a adiabatické vetranie priemyselnej haly. Táto zabezpečuje chladenie výrobných priestorov. Celý areál je nasvetlený LED technológiou , a to rovnako v interiéroch aj v exteriérových priestoroch. Dažďové vody sú vsakované do štrkového podložia.
Areál je dotvorený hodnotnou výsadbou a náročným riešením sadových úprav. Udržateľnosť výsadby zabezpečuje automatické zavlažovanie. Použité boli kvalitné materiály dlažby, vonkajšieho osvetlenia a dizajnových prvkov malej architektúry.
Celkovo sa realizácia vyznačuje vysokou kvalitou architektonického detailu, čo je výsledkom dobrej spolupráce generálneho dodávateľa, investora, architekta i stavebného dozoru.
podklady: ARCHITEKTI BOBEK JÁVORKA