Advertorial

Pozvánka na 2. ročník stavebného veľtrhu BigMarket na Slovensku

Na podujatí sa predstaví až 37 vystavovateľov - popredných dodávateľov stavebných materiálov a inovácií s prezentáciou...

Hotel Hirschen Spa House, Rakúsko

Novotvar v prostredí alpskej obce.

Vytvorte si kúpeľňu snov: dizajnové riešenie od značky hansgrohe

Hansgrohe - prémiová značka kúpeľňových riešení, ponúka nadčasový dizajn, technickú precíznosť a udržateľné inovácie...

Okná Internorm za minuloročné ceny + hliníkový kryt zdarma!

Využite špeciálnu akciu Internorm: okná za minuloročné ceny a hliníkový kryt úplne zadarmo. Ponuka je časovo obmedzená!

Moderné plynové technológie: Efektivita a inovácie pre 21. storočie

Sumarizácia najdôležitejších inovácií, ktoré redefinujúcich využitie tohto energetického zdroja.

Utesňovanie spodných stavieb pomocou hydro-aktívnej fólie AMPHIBIA.

AMPHIBIA 3000 GRIP 1.3 od spoločnosti ATRO predstavuje modernú hydroizolačnú technológiu, ktorá spája vysokú odolnosť,...

Dekarbonizácia individuálneho vykurovania domácností – Green Deal evolučne a nie revolučne

Ambiciózne plány EK narazili na ekonomické možnosti domácností v jednotlivých členských štátoch –...

Minimalistické dvere IDEA – technická precíznosť a čistota prevedenia

IDEA DOOR od spoločnosti JAP prináša do interiéru čistý minimalistický vzhľad vďaka bezrámovému riešeniu a precíznej...

Dom s výhľadom na údolie, Dlouhý Most (ČR)

Kontinuita riešenia od vonkajšieho obkladu až po kovania a kľučky.

Schell Vitus – osvedčené riešenie pre sprchy a umývadlá vo verejnom sektore s viac ako desaťročnou tradíciou

Nástenné nadomietkové armatúry Vitus sú mimoriadne vhodné pre rýchlu a efektívnu...

Kompozitné okná predstavujú súčasnosť a budúcnosť

Okenné profily z kompozitného materiálu RAU-FIPRO X od spoločnosti Rehau sú v porovnaní s tradičnými plastovými profilmi mnohonásobne...

Myotis - stoly 2025

Najnovší sortiment stolov pre zariadenie interiérov...

Priemyselné sklenené priečky Dorsis Digero: svetelné rozhranie pre moderné interiéry

Spojenie moderného dizajnu, funkčnosti a svetla do harmonického architektonického prvku.

Význam prirodzeného svetla pre moderné a flexibilné pracovné prostredie

Kancelárska budova Baumit v slovinskom Trzine prešla premenou na moderné a udržateľné pracovisko. Architekti kládli dôraz...

Konferencia Xella Dialóg predstaví novinky a trendy v stavebníctve

Mottom šiesteho ročníku on-line konferencie odborníkov Xella Dialóg je Efektívny návrh budov 2025+: zmeny a riešenia

Areál jazdeckej školy ŠTIFT - ústredná knižnica SAV

Areál bývalej jazdeckej školy ŠTIFT sa nachádza na severo-západnom okraji mesta. Samotný komplex pamiatkových objektov ako velkorysá stavebná koncepcia na veľkej ploche pozemkov zahŕňa hospodársky dvor s účelovými objektami, reprezentačným krídlom, konským výbehom, tzv.záhradníkovým domom a priľahlé pozemky povodne ohradené barokovým plotom.
Pamiatka je podľa pamiatkového zámeru navrhnuta ná ústrednú knižnicu a archív Slovenskej Akadémie Vied.
Diela
Ema Ruhigová (Kiabová)18.12.2018
10410+10
Areál jazdeckej školy ŠTIFT - ústredná knižnica SAV
Ateliér: ER AtelierAutori: Ing. arch. Ing. Ema Kiabová, Ing. arch. Ing. Roman RuhigZastavaná plocha: 1148m2Podlažná plocha: 1622m2Adresa: Vinohradnícka , Senec, SlovenskoPublikované: 18. december 2018

Kúria s majerom jazdeckej školy vznikla ako veľká koncepcia účelovej architektúry významného barokového architekta v 1.polovici 18.soročia, v jedno časovom slohovom období. Je známa ako tzv. Veľký štift a je jedným z najväčších objektov v meste. Jej majiteľmi boli Esterháziovci. 
V 18.storočí slúžil ako ženská polepšovňa. Miestnosti boli prebudované na cely. Ženy z polepšovne pracovali v textilnej manufaktúre, ktorá bola zriadená v priestoroch kúrie. V roku 1780 bol vo veľkom štifte mestský sirotinec. O 2 roky neskôr bola zriadená škola, v priestoroch predtým využívaných ako polepšovňa. Gróf balaš tu dal spraviť školu pre budúcich dôstojníkov, v službách rakúsko-uhorska.
V minulosti slúžila ako jazdecká škola.  Stavba patrí medzi národné kultúrne pamiatky a je chránená pamiatkovým úradom. Avšak môže byť vyňatá zo zoznamu kultúrnych pamiatok. Kúria je v zlom technickom stave a vyžaduje sa jej rekonštrukcia.  Má niekoľko majiteľov. Využíva sa ako sklad zeleniny, v časti kúrie sa býva a časť je nevyužívaná.

Podľa požiadaviek pamiatkoveho zámeru sa má pri obnove dbať na prisposobenie lokalitného programu funkčnej logike stavby, obnoviť nivelitu pôvodného okolitého terénu, t.j. odstrániť terén, ktorý prirodzeným spôsobom narastal. Je potrebné odstrániť novotvary a novodobé priečky, prístavby a pri úprave rešpektovať pôvodné slohové prvky, t.j. barokové klenby, štuky, nástenné maľby, kamenné architektonicke članky a reštaurovať kamenné plastiky, dvere, okná, kovanie, časti krovu a pod.

Funkcia, ktorú bude kúria plniť po úprave nie je taká istá, ako pri jej vzniku. Avšak využitie komplexu pre ústrednú knižnicu - ako vysunuté pracovisko Slovenskej Akadémie Vied dáva možnosť dôstojne zhodnotiť jej význam, ako aj výtvarné kvality, pri minimálnych zásahoch do stavebného organizmu.
Pri maximalnom zachovani hmoty je potrebné odstrániť závady zapríčenené nedostatočnou údržbou a takisto treba obnoviť a funkčne zapojiť do prevádzky druhý vjazd do hospodárskeho krídla. Rozmerne plochy okolo prístupovej cesty k reprezentačnému krídlu, vnútorneho dvora a konskeho výbehu si vyžadujú parkovú úpravu.
Do štátneho zoznamu nehnuteľnych pamiatok je zapísaný nielen hospodársky dvor s funkčnými objektami a reprezentačným krídlom, ale aj priľahlé pozemky, ktoré k nemu v minulosti patrili.Reštaurované prvky výtvarnej výzdoby a funkčné dobové prvky majú byť znovu umiestnené v objekte.

Východné krídlo je v súčasnosti značne schátrané, zachovalo sa len vo fragmente kováčskej dielne.

Južné – reprezentačné krídlo je výtvarne najhodnotnejšie. Uprostred neho sa nachádza vstupný podjazd, ktorý je sklenutý na dve polia pruskej klenby a rámovaný dvoma nikami a alegorickými plastikami. Pruské klenby so zrkadlami sa nachádzajú aj vo vnútorných rozľahlých priestoroch. Tieto klenby členené pásmi zvýraznenými štukovými lištami majú v zrkadlách nástenné maľby. V západnej časti krídla je veľká spoločenská miestnosť sekundárne podklenutá stropom z drevených hrád podoprených stĺpikmi, ktorá bola prerobená na maštaľ. Nad dreveným stropom je pôvodná plochá zrkadlová klenba s fabionovou rímsou, konštruovaná na drevenej kostre podbitej rákosom.

Západné krídlo tvorení celou svojou dĺžkou i šírkou rozmerný priestor koniarne, sklenutý na kamenné toskánske stĺpiky valenou klenbou s lunetami.

Severné krídlo je prevažne tvorené trojpodlažným skladom. Za v súčasnosti zamurovaným podjazom na severnej strane tzv. malé severné krídlo. V minulosti slúžilo na garážovanie vozov a kočov.

Hmotová kompozícia stavby vychádza z pamiatkového zámeru, takže pri návrhu nedošlo ku hmotovým zmenám pamiatky. Keďže na severnej strane došlo ku zrúteniu jedného krídla, toto krídlo sa nám vo forme novotvaru objaví ako uzatvárací prvok nádvoria, s funkciou čítarne a detskej knižnice. Svojou materialitou ani hmotou sa nesnaží napodobňovať formu pamiatky – práve naopak – súčasným jazykom dáva jasne najavo, že v pôvodnej koncepcii sa nenachádzal a vďaka svojej transparentnej konštrukcíi nepôsobí rušivo.

Stavebný komplex budov kúrie s novým funkčným využitím je sústredený okolo trojkrídlového hospodárskeho dvora, takže k uchovaniu logiky tohoto komplexu je obnova navrhovaná tak, aby i naďalej tvoril jeden celok. Existujúce vstupy do nádvoria cez južné a západné krídlo sa napájajú na okolité komunikácie, no sú navrhnuté ako pešie ťahy. Pojazdná komunikácia sa nachádza na severnej strane objektu a napája sa na existujúcu cestu, ktorá vedie do centra mesta.

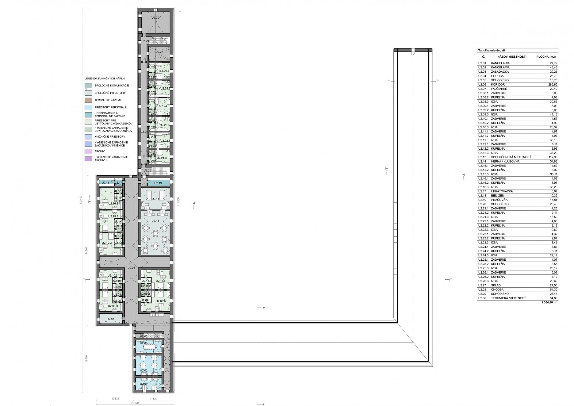
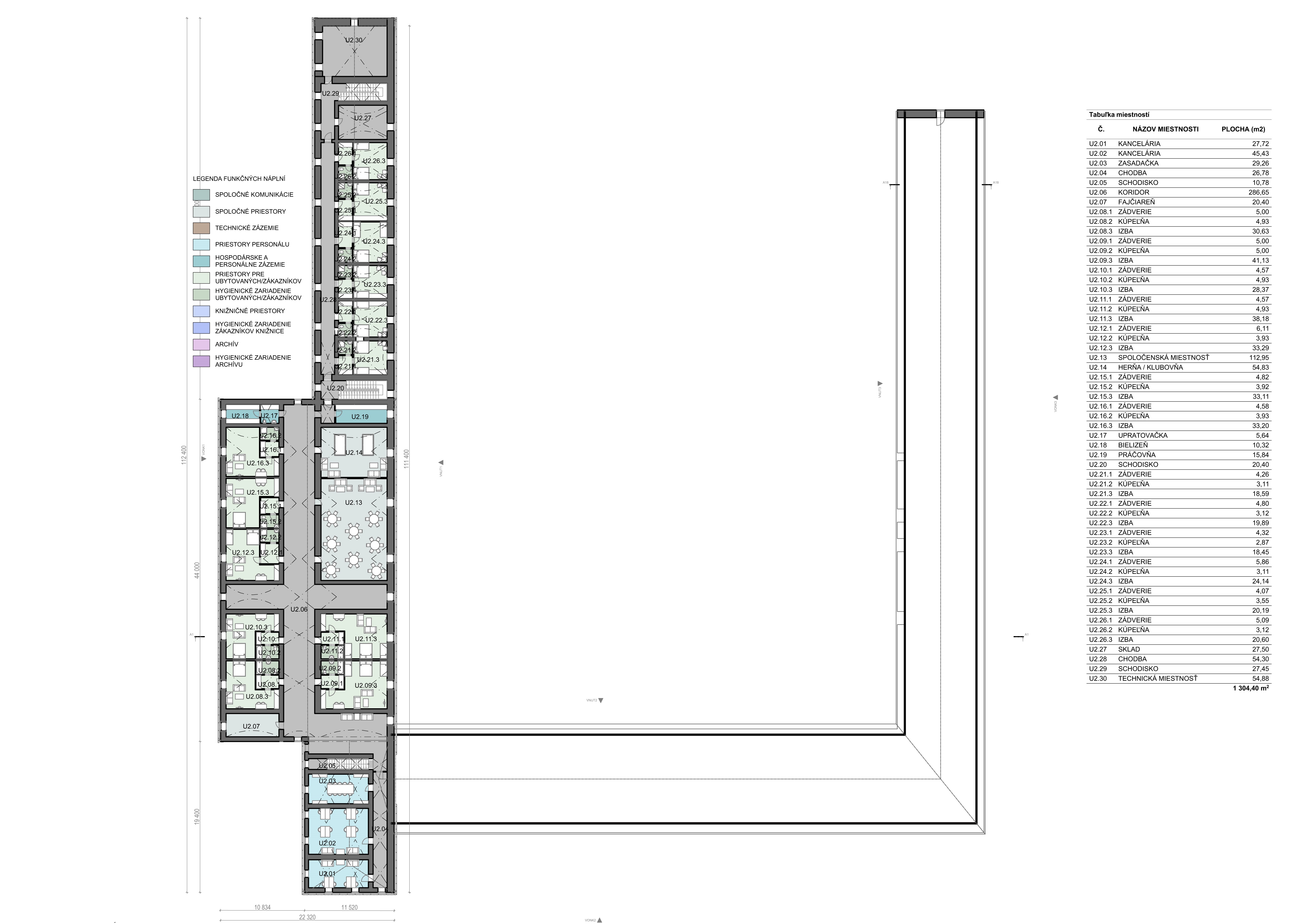
Pôvodné funkčné využitie (ako jazdecká škola) bude nahradené funkciou ústrednej knižnice SAV, kde sa budú nachádzať knižničné fondy spoločensko-vedných odborov. Okrem toho sa v komplexe bude nachádzať krátkodobé ubytovanie pre návštevníkov archívu, ktoré bude umiestnené v terajšej hospodárskej časti – v severnom krídle. Je to jediné dvojpodlažné krídlo, ubytovanie sa bude nacházdať na oboch podlažiach. Navrhovaná kapacita lôžok teda umožňnuje v obejkte organizovať okrem pracovných a študijných ciet aj iné spoločenské udalosti. Samotný archív a knižničné priestory budú orientované v južnom krídle. V priestoroch bývalej koniarne v západnom krídle je navrchovaná veľká prednášková sála, ktorá vďaka svojej čistej dispozícii dovoľuje variabilnosť jej alternatívneho využitia. V severo-západnom vysunutom krídle sa budú nachádzať kancelárie a zázemie pre personál. K západnému krídlu je pristavaný novotvar, ktorý bude využívaný ako čítareň a detská knižnica a zároven svojou polohou z časti uzatvára vnútorné nádvorie, na ktorom budú prebiehať exteriérové letné aktivity /letné čítarne a pod./. V návrhu nádvoria, ako verejného priestoru, je príznačné, že vytvára priestor pre ľudí, kde sa bude dať čítať, relaxovať, stretávať a tráviť voľný čas mimo mestského ruchu. Aj preto je zachované maximálne množstvo existujúcej zelene a nové zásahy ju rešpektujú v maximálnej miere.

Klenby v riešenom objekte sú poškodené trhlinami a na viacerých miestach majú chýbajúce a povypadávané tehly. Jedným z možných dôvodov je aj poškodená malta v styčných špárach, ktorá je na viacerých miestach úplne povypadávaná. Táto deštrukcia je pravdepodobne zapríčinená zatekaním dažďovej vody z dôsledku netesnej krytiny a postupného rozrušovania tehiel vodou. Najzávažnejšie poruchy klenieb vznikli poklesom podpier, čoho príčinou bola buď malá hĺbka ich založenia, alebo rozmočenie základovej pôdy.

 

Jednoduchú dočasnú opravu, ktorá klenby (ale aj klenbové oblúky, alebo klenuté nadpražia) aj čiastočné spevní, možno dosiahnuť vyklinovaním trhlín v klenbe klinmi z tvrdého dreva (dubového, príp. agátového, nie bukového!).

Kliny sa do trhlín zatĺkajú suché a následne sa navlhčia, čím zväčšia svoj objem a takto vnesú do klenby potrebné napätie. V prípade vlhkého muriva klenby (napríklad v suterénoch) je zvlhčenie dreveného klina trvalé. Ak je klenba vo veľmi zlom stave, tak sa najprv zdola zabezpečí celoplošnou výdrevou na ramenátoch, zhora vyklinuje a vyškáruje a potom sa ten postup zopakuje zospodu.

Drevo teda musí byť úplne vyschnuté, tvrdé, ideálne je jasanové, ktoré takmer vôbec nereaguje s vápnom. Aj keď je dubové drevo dostatočne tvrdé,  v prípade vlhkosti v klenbe sa z neho uvoľňujú zložky, ktoré s vápnom na omietke  vytvoria ťažko odstrániteľné hnedé škvrny.

Po zatlčení klinov a prípadnom vyplnení väčších trhlín (napr. konopným povrazcom) možno klenbu omietnuť, čo samozrejme nie je podmienkou opravy. Táto technológia patrí medzi tradičné, historické a je vhodná nielen na dočasné, či havarijné zabezpečenie stability, ale aj ako trvalá jednoduchá oprava klenby

Celá fasáda pamiatky bude farebne kopírovať svoj pôvodný stav – biela omietka  a červená keramická krytina. Pôvodne otvorené prechody cez južné a západné krídlo budú celoplošne zatvorené sklenenou bránou, pretož tento novovytvorený uzatvorený priestor tvorí súčasne aj zádverie  jednotlivých navrchovaných prevádzok v priľahlých krídlach.

Typ okien, ktoré sú rekonštruované na fasádach južného krídla sú rovnaké na severnej i južnej fasáde. Pôvodne boli vytiahnuté z hladenej uťahovanej omietky, no zachovali sa iba v odtlačkoch podkladovej omietky. Ich tvar je zdôrazňovaný rámujúcou lištou. Na hlavnej fasáde južnej budú na hladenej omietke v plochách stien svetlé a hladené okenné šambrány vytiahnuté v omietke, orámované lištami. Ostenia vo farebnosti bielej, steny snehobiele.

Kedže okenné a dverné otvory sa z veľkej miery nepodarilo zachovať, návrh ich obnovy prebieha vo veľkom rozsahu. V závislosti od pamiatkového zámeru, v návrhu sa v severnom krídle nachádzajú ubytovacie jednotky, pri ktorých okenné otvory museli byť zväčsené. Tento zásah však nezotiera pôvodné rozmery okien – z výtvarného riešenia je zrejmé, ktoré časti presklenia boli dodatočne pridané. Pôvodné okná preberajú pôvodné rastrové členie zasklenia, pridané otvory sú oddelené betónovými prekladmi a majú jednoduché zasklenie vložené do kovových rámov.

Ateliér

Ing. arch. Ing. Ema Kiabová
Ing. arch. Ing. Roman Ruhig
Vložené
18. december 2018
0
1041
Hlavný obsahHlavný obsah
Čakajte prosím