Európska značka okien oslavuje jubileum: za 95 rokov sa vyvinula na najväčšiu medzinárodne pôsobiacu okennú značku a inovačného...
Na podujatí sa predstaví až 37 vystavovateľov - popredných dodávateľov stavebných materiálov a inovácií s prezentáciou...
Novotvar v prostredí alpskej obce.
Hansgrohe - prémiová značka kúpeľňových riešení, ponúka nadčasový dizajn, technickú precíznosť a udržateľné inovácie...
Využite špeciálnu akciu Internorm: okná za minuloročné ceny a hliníkový kryt úplne zadarmo. Ponuka je časovo obmedzená!
Sumarizácia najdôležitejších inovácií, ktoré redefinujúcich využitie tohto energetického zdroja.
AMPHIBIA 3000 GRIP 1.3 od spoločnosti ATRO predstavuje modernú hydroizolačnú technológiu, ktorá spája vysokú odolnosť,...
Ambiciózne plány EK narazili na ekonomické možnosti domácností v jednotlivých členských štátoch –...
IDEA DOOR od spoločnosti JAP prináša do interiéru čistý minimalistický vzhľad vďaka bezrámovému riešeniu a precíznej...
Kontinuita riešenia od vonkajšieho obkladu až po kovania a kľučky.
Nástenné nadomietkové armatúry Vitus sú mimoriadne vhodné pre rýchlu a efektívnu...
Okenné profily z kompozitného materiálu RAU-FIPRO X od spoločnosti Rehau sú v porovnaní s tradičnými plastovými profilmi mnohonásobne...
Najnovší sortiment stolov pre zariadenie interiérov...
Spojenie moderného dizajnu, funkčnosti a svetla do harmonického architektonického prvku.
Kancelárska budova Baumit v slovinskom Trzine prešla premenou na moderné a udržateľné pracovisko. Architekti kládli dôraz...

Projekt, ktorý môže byť v mnohom príkladom pre plánované a pripravované rekonštrukcie zdravotníckych zariadení. Autorom z brnianskeho ateliéru dkarchitekti sa podarilo skĺbiť aktuálne normy a požiadavky na kvalitu prostredia s citlivým prístupom k dobovému architektonickému riešeniu.
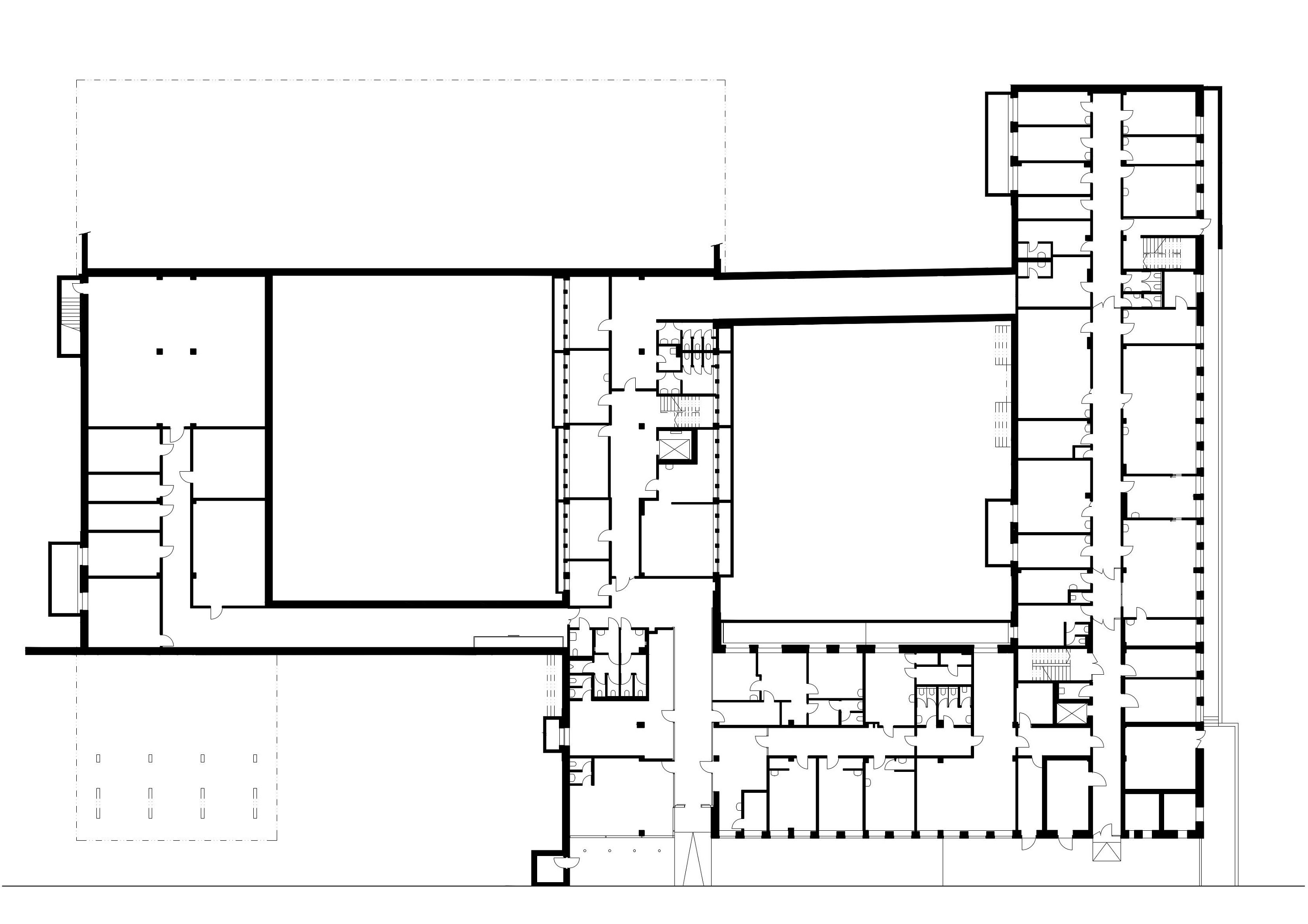
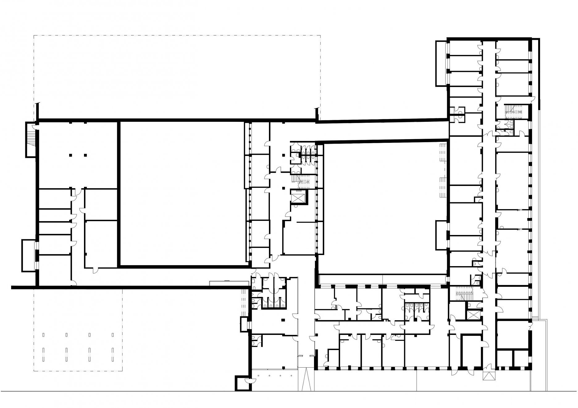
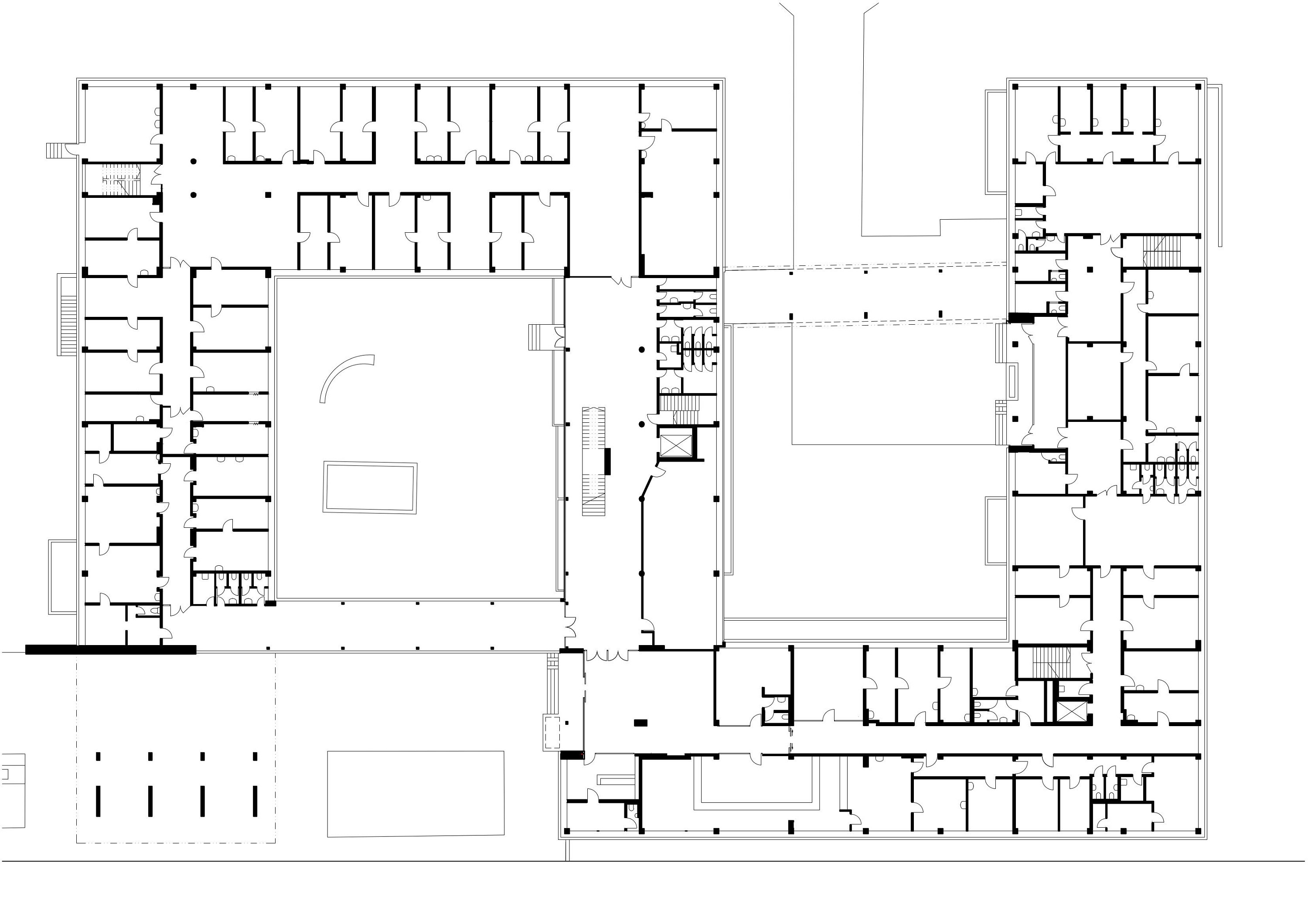
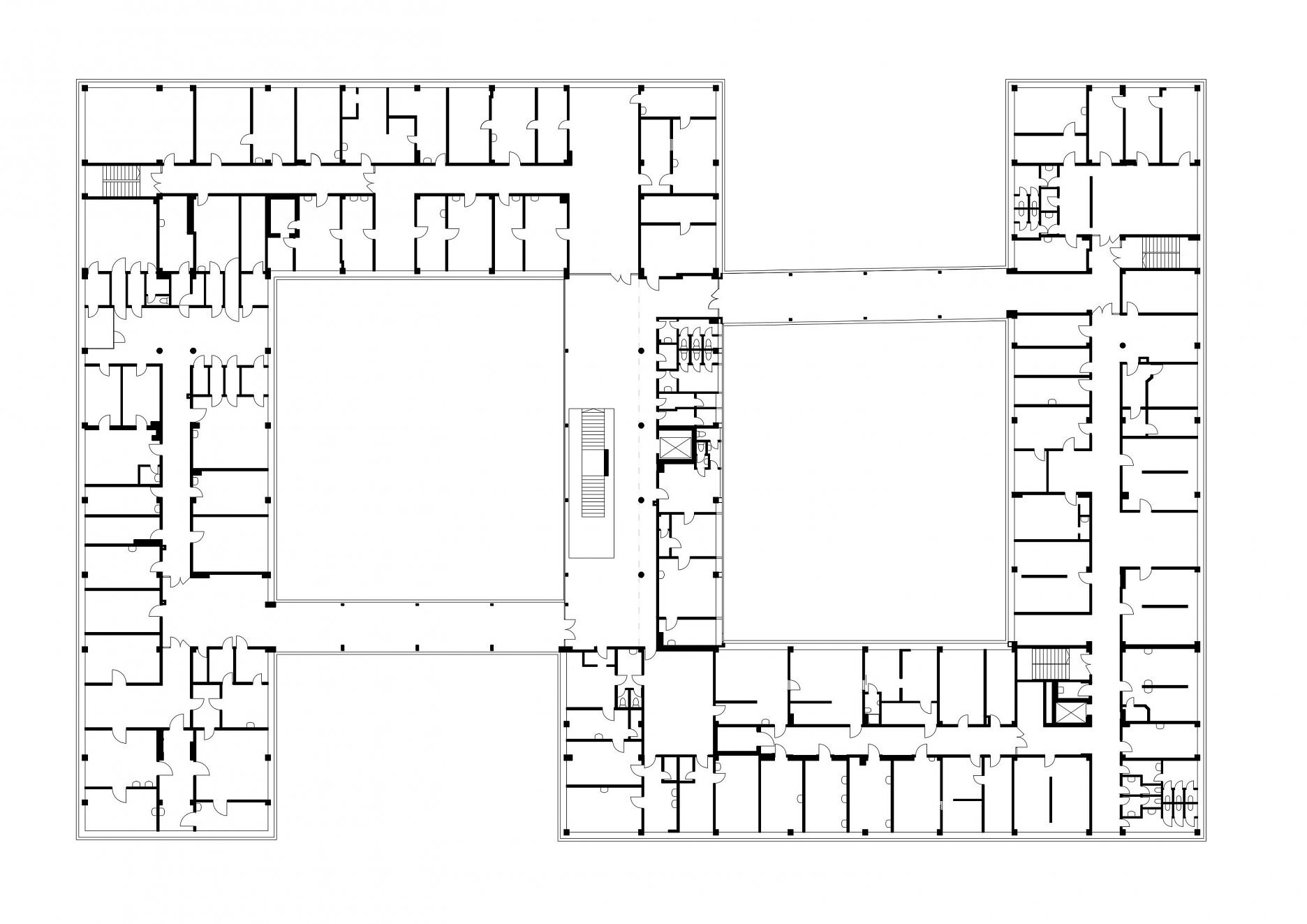
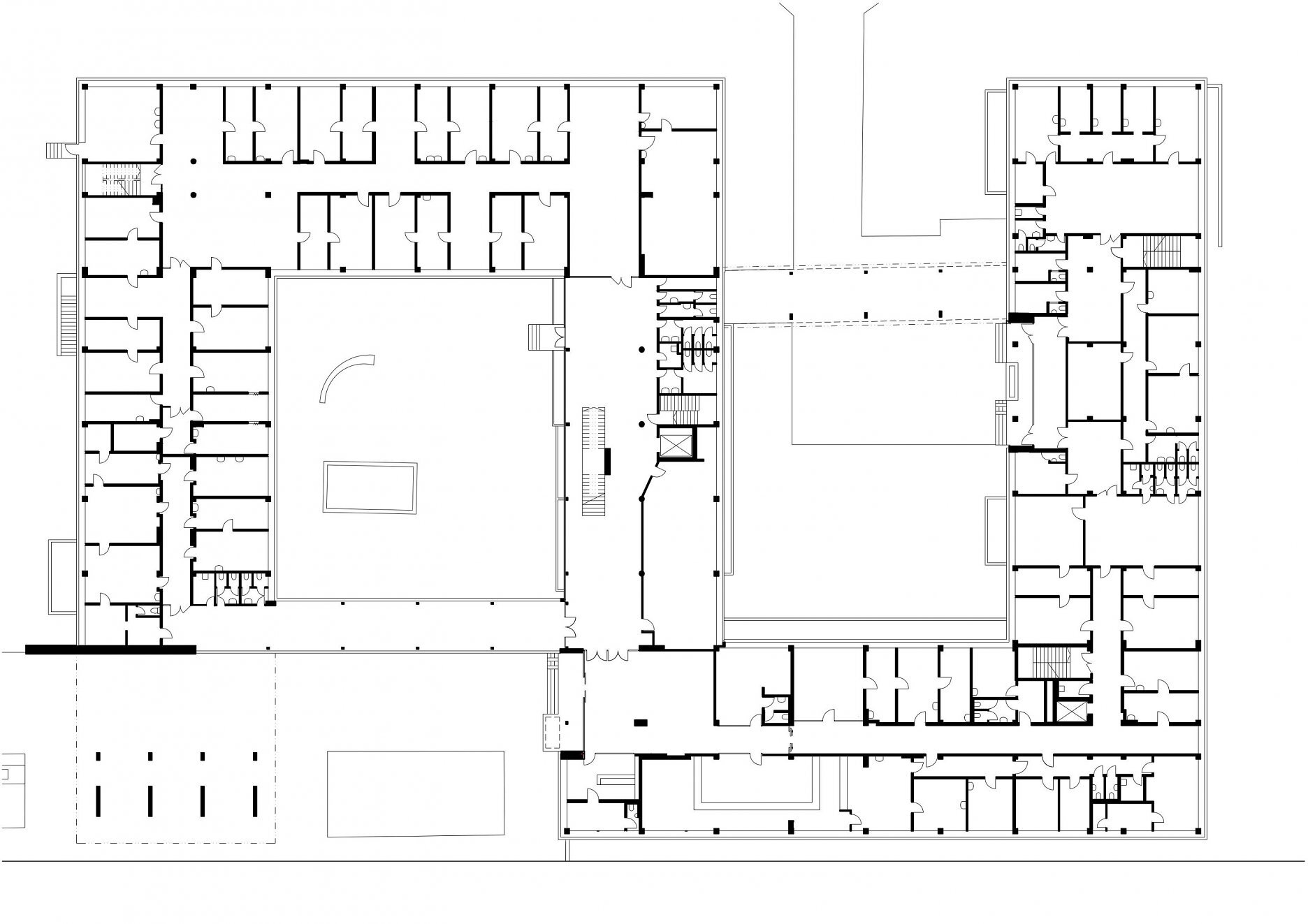
Na južnom okraji ikonického sídliska Lesná, ktoré patrí k najvydarenejším obytným celkom z obdobia minulého režimu, stojí jedna z brnianskych polikliník, ktoré sú v správe mesta Brno. Objekt bol postavený v rokoch 1968 – 1974 podľa návrhu architektky Libuše Kopřivíkovej. Je oceňovaný pre svoje kvalitné hmotové a materiálové riešenie v exteriéri aj interiéri.
Pôdorys v tvare pravouhlého písmena S vytvára vnútorné átriá, uzavreté dvoma spojovacími krčkami. Budova je dvojpodlažná, čiastočne podpivničená. Fasáda bola navrhnutá z tzv. boletických panelov sivomodrej farby, spojovacie krčky boli kompletne presklené na celú výšku podlažia. Sokel objektu bol obložený tehlovými pásikmi, zatiaľ čo exteriérové stĺpy nesúce konzolu pri hlavnom vstupe zdobila čierna keramická mozaika. Prekrývajúce sa objemy a vstupné niky charakterizovali presné detaily, ktoré na seba čisto a presne nadväzovali.
Presvedčiť investora, aby boletické panely nahradili podobne vyzerajúcim skleneným fasádnym systémom, ktorý spĺňa dnešné štandardy, nebolo jednoduché. Výsledok realizovanej rekonštrukcie fasádneho plášťa však rešpektuje pôvodné premyslené prepojenie jednotlivých hmôt objektu, zachováva atypické členenie fasády na tehlový sokel, dva biele kontrastné horizontálne pásy omietky a výraznú plochu ľahkého preskleného plášťa. Spojovacie krčky sú v súlade s pôvodným riešením vyhotovené zo systému veľkoformátového zasklenia, ktorého súčasťou sú ventilačné krídla šikovne skryté v rastri subtílnych stĺpikov fasádneho systému. Oproti pôvodnému riešeniu architekti zjednotili šírku bielych horizontálnych pásov, ktoré lemujú presklenú časť, a zvolili odlišnú farebnosť skleneného plášťa.
Rekonštrukcia zahŕňala zateplenie a nové opláštenie fasády, výmenu strešného plášťa, novú hydroizoláciu spodnej stavby, bezbariérový vstup priamo z parkoviska pod poliklinikou a úpravu priľahlých zelených plôch.
Na rekonštrukciu obvodového plášťa budovy nadviazala prvá etapa rekonštrukcie interiéru podlaží polikliniky, vrátane hlavného vstupu. V rámci stavebných úprav došlo aj k prepojeniu s pediatriou.
Význam reprezentatívnej vstupnej haly zdôrazňuje zachovaná vyššia svetlá výška bez podhľadových konštrukcií, s viditeľnými rozvodmi. Trojica kruhových závesných svietidiel kontrastuje s pravouhlým rastrom objektu. Pôvodný materiál železobetónového stropu ostáva odhalený v pôvodnej podobe. Koncept bodového osvetlenia a zvolené materiály svojou nenápadnou farebnosťou nechávajú vyniknúť renovovanú mozaiku z ruženínu a skla od manželov Vašicových.
V hale je novopostavená recepcia objektu (umiestnená do útulnej niky) obloženej drevom. Nika zároveň integruje priechod do administratívneho zázemia.
V rámci prvého podlažia bolo rozšírené detské oddelenie, ktoré je priechodné od hlavného vstupu až do pôvodnej detskej časti. Pribudli dve ordinácie, z toho jedna s čakárňou prispôsobenou detským pacientom. Pri hlavnom vstupe vzniklo nové zázemie pre mamičky s deťmi. Prístupnosť objektu sa zlepšila pridaním druhého výťahu.
Navrhnuté materiály v interiéri vyberali architekti s rešpektom k pôvodnému výtvarnému konceptu. Na stenách chodieb zachovali zelenú mozaiku až do výšky dverí. Drevený obklad vo vyššej polohe maskuje elektroinštaláciu, rovnako ako rozoberateľné podhľady. Súčasťou riešenia interiéru je nový informačný systém.
Materiály:
Exteriér
Interiér:
Autor: dkarchitekti
Podklady: Linka
Fotografie: Jiří Hloušek