Využite špeciálnu akciu Internorm: okná za minuloročné ceny a hliníkový kryt úplne zadarmo. Ponuka je časovo obmedzená!
Na podujatí sa predstaví až 37 vystavovateľov - popredných dodávateľov stavebných materiálov a inovácií s prezentáciou...
Sumarizácia najdôležitejších inovácií, ktoré redefinujúcich využitie tohto energetického zdroja.
AMPHIBIA 3000 GRIP 1.3 od spoločnosti ATRO predstavuje modernú hydroizolačnú technológiu, ktorá spája vysokú odolnosť,...
Ambiciózne plány EK narazili na ekonomické možnosti domácností v jednotlivých členských štátoch –...
IDEA DOOR od spoločnosti JAP prináša do interiéru čistý minimalistický vzhľad vďaka bezrámovému riešeniu a precíznej...
Kontinuita riešenia od vonkajšieho obkladu až po kovania a kľučky.
Nástenné nadomietkové armatúry Vitus sú mimoriadne vhodné pre rýchlu a efektívnu...
Okenné profily z kompozitného materiálu RAU-FIPRO X od spoločnosti Rehau sú v porovnaní s tradičnými plastovými profilmi mnohonásobne...
Najnovší sortiment stolov pre zariadenie interiérov...
Spojenie moderného dizajnu, funkčnosti a svetla do harmonického architektonického prvku.
Kancelárska budova Baumit v slovinskom Trzine prešla premenou na moderné a udržateľné pracovisko. Architekti kládli dôraz...
Mottom šiesteho ročníku on-line konferencie odborníkov Xella Dialóg je Efektívny návrh budov 2025+: zmeny a riešenia
Robot WLTR predstavuje moderný prístup k murovaným konštrukciám. Vďaka automatizácii dokáže rýchlo, presne a bezpečne realizovať...
Okrem bezpečnosti majú okná aj elegantný vzhľad, pretože nie sú viditeľné žiadne uzamykacie časti kovania.

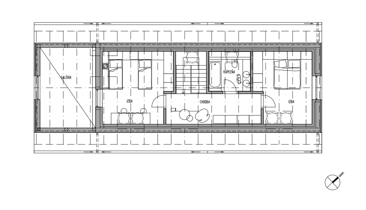
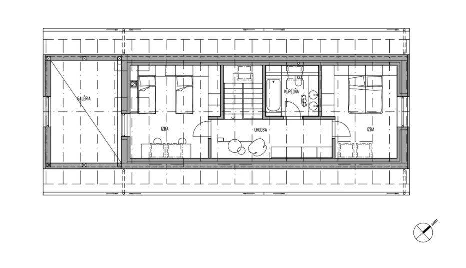
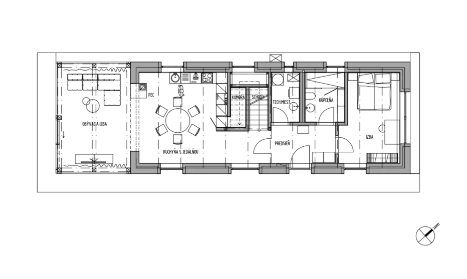
Na začiatku procesu sme so stavebníkom zvažovali dve alternatívy. Postaviť úplne nový drevený nízkoenergetický dom alebo sa pustíme do prevezenia a následnej rekonštrukcie darovanej drevenice. Drevenice a jej zdravého dreva bolo majiteľovi ľúto. Mojou úlohou pri spracovaní štúdie bolo trafiť sa dispozíciou do existujúcich otvorov a kontextu nového pozemku.
K pôvodnej hmote pribudla presklená prístavba obývacej izby orientovaná do juhozápadnej záhrady. Keďže celý krov a nové konštrukcie poschodia zaťažia pôvodné steny, bolo nutné do vnútra vstavať nosný systém. Povodne sme navrhovali tehlu, ktorou by dom získal aj akumulačne vlastnosti, ale nakopon sa stavebník rozhodol pre vstavaný systém z KVH profilov, vyplnený minerálnou vlnou a následne ošetrený hlinenou omietkou. Keďže sa nevyužila celá pôvodná dĺžka drevenice, v prístavbe namiesto navrhovanej subtílnej oceľovej konštrukcie využil pôvodné drevo z drevenice.