Advertorial

Pozvánka na 2. ročník stavebného veľtrhu BigMarket na Slovensku

Na podujatí sa predstaví až 37 vystavovateľov - popredných dodávateľov stavebných materiálov a inovácií s prezentáciou...

Hotel Hirschen Spa House, Rakúsko

Novotvar v prostredí alpskej obce.

Vytvorte si kúpeľňu snov: dizajnové riešenie od značky hansgrohe

Hansgrohe - prémiová značka kúpeľňových riešení, ponúka nadčasový dizajn, technickú precíznosť a udržateľné inovácie...

Okná Internorm za minuloročné ceny + hliníkový kryt zdarma!

Využite špeciálnu akciu Internorm: okná za minuloročné ceny a hliníkový kryt úplne zadarmo. Ponuka je časovo obmedzená!

Moderné plynové technológie: Efektivita a inovácie pre 21. storočie

Sumarizácia najdôležitejších inovácií, ktoré redefinujúcich využitie tohto energetického zdroja.

Utesňovanie spodných stavieb pomocou hydro-aktívnej fólie AMPHIBIA.

AMPHIBIA 3000 GRIP 1.3 od spoločnosti ATRO predstavuje modernú hydroizolačnú technológiu, ktorá spája vysokú odolnosť,...

Dekarbonizácia individuálneho vykurovania domácností – Green Deal evolučne a nie revolučne

Ambiciózne plány EK narazili na ekonomické možnosti domácností v jednotlivých členských štátoch –...

Minimalistické dvere IDEA – technická precíznosť a čistota prevedenia

IDEA DOOR od spoločnosti JAP prináša do interiéru čistý minimalistický vzhľad vďaka bezrámovému riešeniu a precíznej...

Dom s výhľadom na údolie, Dlouhý Most (ČR)

Kontinuita riešenia od vonkajšieho obkladu až po kovania a kľučky.

Schell Vitus – osvedčené riešenie pre sprchy a umývadlá vo verejnom sektore s viac ako desaťročnou tradíciou

Nástenné nadomietkové armatúry Vitus sú mimoriadne vhodné pre rýchlu a efektívnu...

Kompozitné okná predstavujú súčasnosť a budúcnosť

Okenné profily z kompozitného materiálu RAU-FIPRO X od spoločnosti Rehau sú v porovnaní s tradičnými plastovými profilmi mnohonásobne...

Myotis - stoly 2025

Najnovší sortiment stolov pre zariadenie interiérov...

Priemyselné sklenené priečky Dorsis Digero: svetelné rozhranie pre moderné interiéry

Spojenie moderného dizajnu, funkčnosti a svetla do harmonického architektonického prvku.

Význam prirodzeného svetla pre moderné a flexibilné pracovné prostredie

Kancelárska budova Baumit v slovinskom Trzine prešla premenou na moderné a udržateľné pracovisko. Architekti kládli dôraz...

Konferencia Xella Dialóg predstaví novinky a trendy v stavebníctve

Mottom šiesteho ročníku on-line konferencie odborníkov Xella Dialóg je Efektívny návrh budov 2025+: zmeny a riešenia

Biely dom pod Devínom

Jednoduchý obdĺžnikový dom na dlhej a úzkej pacele od ateliéru cakov+partners . Hľadanie vzťahov nový dom - pôvodná urbánna štruktúra.
Diela
Red 119.08.2015
28230+18
Biely dom pod Devínom
Autori: Ing. arch. Kalin Cakov, Ing. arch. Metodiy Monev, Ing. arch Ján Obušek, Ing. arch. Emil MakaraInvestor: Súkromná osobaPlocha pozemku: 740 m2Zastavaná plocha: 119 m2Podlažná plocha: 244,6 m2Návrh: 2009 - 2009Realizácia: 2010 - 2012Adresa: Devín, SlovenskoPublikované: 19. august 2015

Slovo Devín v takmer každom človeku vyvolá predstavu notoricky známej hradnej zrúcaniny. Devín je ale viac než len hrad, je to tichý a príjemný kúsok Bratislavy. (Ak pravdaže, na hrade a v podhradí práve neprebieha nejaký festival. Vtedy je z Devína celkom hlučný, i keď o to čarovnejší kúsok Bratislavy.) Devín má úzke uličky, včelársku a vinársku tradíciu a v ostatnej dobe čoraz väčší počet rekonštrukcií a novostavieb. Napriek ohrozeniu dunajskými záplavami totiž starí aj noví Devínčania prišli tomuto romantickému miestu na chuť. Stavajú tu teda a čím ďalej, tým častejšie stavajú uvážlivo a s citom. Čo sa dá dosiahnuť, ak sa k stavbe pristupuje ešte aj s hojnou zásobou imaginácie, nám názorne ukazuje táto vilka. Opravujeme, tento rodinný dom. Pretože ak nejaká uličná fasáda evokuje slovo „dom“ viac ako táto, tak ju ešte len musíme objaviť.

foto: Matej Kováč

Občas architekti navrhnú stavbu, ktorá má celkom očividný tvar, s úsmevom často nazývaný aj „prvoplánový“, akoby ho načrtlo dieťa pastelkou na výkres. Robia tak, pretože v istých súvislostiach je osviežujúce takto šokovať. V prvom momente si to človek pomyslí aj o tejto stavbe, ale stačí krátka prechádzka po najbližšom okolí, aby bolo jasno. V okolitej historickej zástavbe nájdeme nejeden úzky, dlhý dom so štítovou strechou presne v tých istých proporciách.

Situácia s osadením domu na pozemku
Situácia s osadením domu na pozemku

A tak tento dom zapadá... viac­menej, pretože originalitu mu nejde uprieť. Tvar a charakter snáď odráža záujem investora o chatárstvo či želanie, aby tento dom nebola „iba ďalšia kocka“. Podstatne však tento dom sformovala hlavne funkcia a súvislosti.

Trojpodlažný objekt (má obytný suterén, prízemie a podkrovie) stojí zapustený v miernom svahu a je značne odsadený od ulice. K hlavnému vchodu na prízemí vedie rampa z drevených profilov.

Rez priečny
Rez priečny
Rez pozdĺžny
Rez pozdĺžny

Dohora a ďaleko – tento dom sám trochu pôsobí ako hrad, pod ktorým stojí. Má to svoj dôvod, samozrejme. Okolité stavby sú pomerne blízko pri veľmi úzkom pozemku, a tak sa architekti kvôli intimite rozhodli obvyklý „zadný dvor“ preniesť dopredu, smerom do ulice. Ústi doň krytá terasa zo suterénu lemovaná opornými múrmi, aj balkón nad ňou. Aby zvedavé oči z ulice nevideli nechcené, okrem brány z dômyselne perforovaných profilov je pred terasou v trávniku vytvorený kopček, majiteľmi aj architektmi láskyplne prezývaný „golfový“.

foto: Matej Kováč

Aj keď je toto riešenie trošku úsmevné, nie je mu čo vyčítať. Intimita je zaistená a človek vidí z terasy aspoň viac zelene. Nehovoriac o tom golfe, ktorý tam raz niekto určite vyskúša. Zvyšok pozemku je obkolesený múrom z domáceho devínskeho kameňa. Tomuto domu sa zvonka akosi darí vyzerať väčším, než je, a to aj napriek tomu, že jeho skutočnú výšku aj dĺžku architekti pomocou práce s vonkajšími materiálmi decentne zatajili. Suterén vďaka kamennému obkladu z gabionových košov jemne korešponduje s terénom, a drevený obklad zadnej časti domu skrýva jeho celkovú dĺžku.

foto: Matej Kováč

Prvý „oficiálny“ pohľad do interiéru domu sa nám naskytne vďaka skosenému oknu pred hlavným vstupom, ktorý sa nachádza až v zadnej polovici dispozície. Zasklená časť vedľa vstupu presvetľuje vstupnú halu a tvarom kopíruje jednoramenné oceľové schodisko vedúce do podkrovia.

foto: Matej Kováč

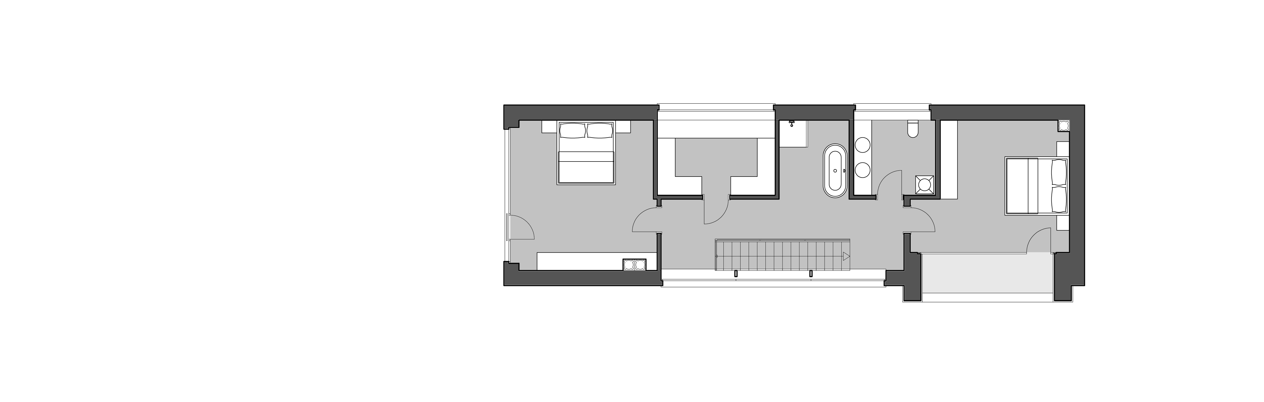
Na prízemí nájdeme kotolňu, malú hygienu a obývačku s kuchyňou, v suteréne bar a spoločenskú miestnosť a v podkroví dve spálne – hlavnú a hosťovskú s jednou kúpeľňou a šatníkom. Tento dom je široký iba čosi vyše šiestich metrov, a tak bolo pre architektov dôležité efektívne usporiadať priestory. Hlbokú dispozíciu presvetľujú celoplošné sklené steny orientované do uličnej fasády. Tie okrem slnečného svetla zabezpečujú ešte ničím nerušený výhľad na dunajskú hrádzu, no sú to okná a lodžia na bočnej, juhozápadnej fasáde, ktoré človeku vezmú dych. Sú totiž nasmerované presne na hrad Devín. Prvý ranný pohľad zo spálne a dokonca i z atypicky riešenej kúpeľne tak získava úplne inú kvalitu. Nie je to iba prosté (i keď možno osviežujúce) okienko do zelene. Je to instantný relax.

Pôdorys 1 PP
Pôdorys 1 PP
Pôdorys 1 NP
Pôdorys 1 NP
Pôdorys 2 NP
Pôdorys 2 NP

Tri a pol metra vysoký strop najvyššieho podlažia tomuto otvorenému priestoru zaručuje vzdušnosť a biele steny zasa jas. Farebná schéma celého interiéru je prevažne bielo­čierna, doplnená elegantnou veľkoformátovou gresovou dlažbou a drevenými podlahami. Dodatočný „šmrnc“ dodáva priestoru pohľadový betón, ktorým je lemované spomínané čierne oceľové schodisko.

foto: Matej Kováč

Ďalší korešpondujúci betónový prvok je napríklad betónová lavica votknutá do oporných múrov vonkajšej terasy. Svietidlá v interiéri aj exteriéri kopírujú minimalizmus celého domu. Dôraz majiteľov na dizajn a atmosféru ich domova ich vedie k spolupráci s architektmi aj pri otázkach výberu zariadenia či textílií.

foto: Matej Kováč

Sami majú dobrý cit a rešpektujú ducha, v ktorom sa dom nesie. Nevidíme žiadne zbytočné miestnosti, žiadne zbytočné dekorácie, žiadny bazén, iba dobre spracovaný, pohodlný dom. Je nekomplikovaný, jasný, a koniec koncov i trošku vtipný.

Podklady: cakov+partners, text: Korina Krchniaková.

Poloha diela

Ing. arch. Kalin Cakov
Ing. arch. Metodiy Monev
Ing. arch Ján Obušek
Ing. arch. Emil Makara
Vložené
17. august 2015
0
2823
Hlavný obsahHlavný obsah
Čakajte prosím