Advertorial

Minimalistické dvere IDEA – technická precíznosť a čistota prevedenia

IDEA DOOR od spoločnosti JAP prináša do interiéru čistý minimalistický vzhľad vďaka bezrámovému riešeniu a precíznej...

Schell Vitus – osvedčené riešenie pre sprchy a umývadlá vo verejnom sektore s viac ako desaťročnou tradíciou

Nástenné nadomietkové armatúry Vitus sú mimoriadne vhodné pre rýchlu a efektívnu...

Kompozitné okná predstavujú súčasnosť a budúcnosť

Okenné profily z kompozitného materiálu RAU-FIPRO X od spoločnosti Rehau sú v porovnaní s tradičnými plastovými profilmi mnohonásobne...

Myotis - stoly 2025

Najnovší sortiment stolov pre zariadenie interiérov...

Priemyselné sklenené priečky Dorsis Digero: svetelné rozhranie pre moderné interiéry

Spojenie moderného dizajnu, funkčnosti a svetla do harmonického architektonického prvku.

Význam prirodzeného svetla pre moderné a flexibilné pracovné prostredie

Kancelárska budova Baumit v slovinskom Trzine prešla premenou na moderné a udržateľné pracovisko. Architekti kládli dôraz...

Konferencia Xella Dialóg predstaví novinky a trendy v stavebníctve

Mottom šiesteho ročníku on-line konferencie odborníkov Xella Dialóg je Efektívny návrh budov 2025+: zmeny a riešenia

Murovací robot WLTR stavia svoj prvý dom na Slovensku

Robot WLTR predstavuje moderný prístup k murovaným konštrukciám. Vďaka automatizácii dokáže rýchlo, presne a bezpečne realizovať...

Nová éra bezpečnosti s I-tec Secure od Internorm

Okrem bezpečnosti majú okná aj elegantný vzhľad, pretože nie sú viditeľné žiadne uzamykacie časti kovania.

Skryté zárubne JAP – intenzívny zážitok z bývania

Dvere MASTER v skrytej zárubni AKTIVE je možné vyrobiť až do výšky 3 700 mm

Tienenie namiesto klimatizácie

Internorm stavia na energetickú efektívnosť a inteligentné tieniace riešenia.

BigMat International Architecture Award 2025 - vybrané diela

Slovensko vo výbere zastupuje šesť realizácií.

Milník udržateľnej výroby okien: Internorm zavádza Low-Carbon-Glas iplus

Spoločnosť Internorm odteraz stavia na novej variante tepelnoizolačného skla od AGC, ktorá v produkcii ročne ušetrí 10...

Výsledky 20. ročníka medzinárodnej študentskej súťaže Saint-Gobain Architecture Student Contest 2025

Jubilejný 20. ročník prestížnej medzinárodnej súťaže pre študentov architektúry priniesol...

Dvere MASTER - pre interiéry navrhnuté s rozumom aj vášňou!

Otočné a posuvné dvere MASTER od podlahy až po strop, ponúkajú mimoriadnu variabilitu výšky, materiálu a zladenia so skrytými...

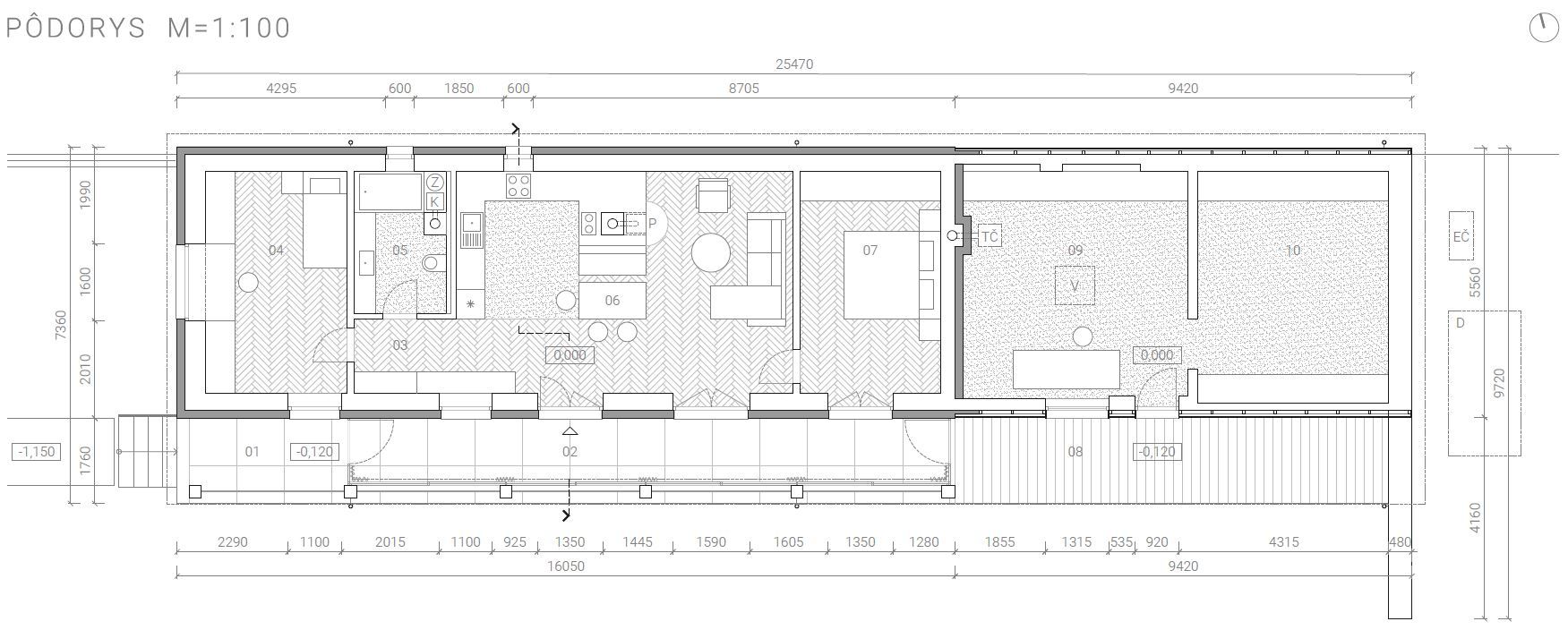
Gánkový dom

Súťažný návrh v jednokolovej architektonickej súťaži, ktorej zadaním bolo hľadanie ideového prístupu k obnove rodinného domu typu GÁNKOVÝ DOM.
Diela
Robert Provazník12.12.2023
4970+2
Gánkový dom
Autori: Ing. Robert ProvazníkPlocha pozemku: 1700Zastavaná plocha: 177Návrh: 2023 - 2023Adresa: SlovenskoPublikované: 12. december 2023

Návrh reaguje na linearitu, stĺporadie, orientáciu na svetové strany a polohu voči ulici a záhrade. Dom je členený na obytnú a hospodársku časť. To sa prejavuje v dispozíčnej schéme i vizuálnom riešení.

 

Je zachovaná pôvodná silueta domu, pričom novým prvkom je zasklenie časti gánku, čo vytvára ako energetickú, tak aj prevádzkovú pridanú hodnotu. Centrom domu je pec v spoločenskej časti.

Dispozične sa objekt mení na trojizbový s využitím pôvodnej časti domu. Boli zachované všetky komíny a poloha väčšiny okien. Nové materiály boli volené trvácne, s nižšou zabudovanou energiou.

Ing. Robert Provazník
Vložené
12. december 2023
0
497
Hlavný obsahHlavný obsah
Čakajte prosím