Advertorial

Hotel Hirschen Spa House, Rakúsko

Novotvar v prostredí alpskej obce.

Vytvorte si kúpeľňu snov: dizajnové riešenie od značky hansgrohe

Hansgrohe - prémiová značka kúpeľňových riešení, ponúka nadčasový dizajn, technickú precíznosť a udržateľné inovácie...

Okná Internorm za minuloročné ceny + hliníkový kryt zdarma!

Využite špeciálnu akciu Internorm: okná za minuloročné ceny a hliníkový kryt úplne zadarmo. Ponuka je časovo obmedzená!

Pozvánka na 2. ročník stavebného veľtrhu BigMarket na Slovensku

Na podujatí sa predstaví až 37 vystavovateľov - popredných dodávateľov stavebných materiálov a inovácií s prezentáciou...

Moderné plynové technológie: Efektivita a inovácie pre 21. storočie

Sumarizácia najdôležitejších inovácií, ktoré redefinujúcich využitie tohto energetického zdroja.

Utesňovanie spodných stavieb pomocou hydro-aktívnej fólie AMPHIBIA.

AMPHIBIA 3000 GRIP 1.3 od spoločnosti ATRO predstavuje modernú hydroizolačnú technológiu, ktorá spája vysokú odolnosť,...

Dekarbonizácia individuálneho vykurovania domácností – Green Deal evolučne a nie revolučne

Ambiciózne plány EK narazili na ekonomické možnosti domácností v jednotlivých členských štátoch –...

Minimalistické dvere IDEA – technická precíznosť a čistota prevedenia

IDEA DOOR od spoločnosti JAP prináša do interiéru čistý minimalistický vzhľad vďaka bezrámovému riešeniu a precíznej...

Dom s výhľadom na údolie, Dlouhý Most (ČR)

Kontinuita riešenia od vonkajšieho obkladu až po kovania a kľučky.

Schell Vitus – osvedčené riešenie pre sprchy a umývadlá vo verejnom sektore s viac ako desaťročnou tradíciou

Nástenné nadomietkové armatúry Vitus sú mimoriadne vhodné pre rýchlu a efektívnu...

Kompozitné okná predstavujú súčasnosť a budúcnosť

Okenné profily z kompozitného materiálu RAU-FIPRO X od spoločnosti Rehau sú v porovnaní s tradičnými plastovými profilmi mnohonásobne...

Myotis - stoly 2025

Najnovší sortiment stolov pre zariadenie interiérov...

Priemyselné sklenené priečky Dorsis Digero: svetelné rozhranie pre moderné interiéry

Spojenie moderného dizajnu, funkčnosti a svetla do harmonického architektonického prvku.

Význam prirodzeného svetla pre moderné a flexibilné pracovné prostredie

Kancelárska budova Baumit v slovinskom Trzine prešla premenou na moderné a udržateľné pracovisko. Architekti kládli dôraz...

Konferencia Xella Dialóg predstaví novinky a trendy v stavebníctve

Mottom šiesteho ročníku on-line konferencie odborníkov Xella Dialóg je Efektívny návrh budov 2025+: zmeny a riešenia

Hosťovský dom na konci

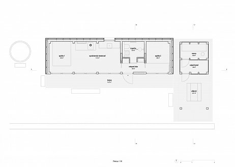
Dom na konci sa nachádza v pokojnej časti Banskej Štiavnice. Dom je osadený vo svahu za vysokou zeleňou, ktorá mu ponúka intimitu a pokoj. Funkciou dopĺňa jestvujúcu stavbu určenú pre krátkodobú rekreáciu ako hosťovský dom s altánkom a saunou.

Dom je orientovaný pozdĺžne svojou otvorenou fasádou smerom k svahu. Okolité prostredie sa stáva súčasťou domu. Preniká do interiéru tak, ako dom sa stáva súčasťou okolia. Uzavretá severná fasáda chráni, južná prepája.

Smerom von otváravé okná umožňujú vystúpiť z interiéru na gánok. Presah strechy bez dažďových zvodov, aluzinkový vlnitý plech na streche. Drevo vo svojej prirodzenosti, nášlapníky z hrubo opracovanej žuly, remeselne spracované kováčske prvky. Materiálová jednoduchosť, priznané prvky nosnej konštrukcie zo smrekových hranolov. Dom bol navrhnutý pre umocnenie zmyslových vnemov. Materiál vo svojej prirodzenosti.

Dom je zložený z piatich modulov rozmerov 2x2m. Asymetrický umiestnený modul so zádverím a hygienickým zázemím oddeľuje spoločenskú časť so spálňou od samostatnej spálne. Priestory je možné v prípade potreby oddeliť posuvnými dverami. Strecha v kúpeľni je nahradená strešným svetlíkom v plnej ploche.

Drevená konštrukcia stavby je založená na betónových pätkách. Sedlová jednoplášťová strecha využíva medzipriestor nad dreveným podhľadom pre prevetrávanie stavby.

Kolmo k domu je prisadený altánok so saunou. Konštrukčne rovnaká stavba, materiálovo v kontraste. Namiesto drevenej smrekovej fasády, ktorá je použitá na dome je doplnková stavba opláštená fasádnym polykarbonátom. Priestor sauny a odpočivárne je tienený interiérovými drevenými lamelami na stenách a strope. Tienenie altánku je vyriešené textilnými roletami.

vizualizácie: willbe.studio
Diela
Jakub Kolarovič18.08.2023
1570+0
Hosťovský dom na konci
Ateliér: Jakub Kolarovič Architects s.r.o.Autori: Ing. arch. Jakub Kolarovič (Architekt, CEO)Zastavaná plocha: 81 m2Návrh: 2023 - 2023Realizácia: 2023 - 0Adresa: Banská Štiavnica, SlovenskoPublikované: 18. august 2023

Záverečná fotogaléria za článkom

Ing. arch. Jakub Kolarovič
Vložené
18. august 2023
0
157
Hlavný obsahHlavný obsah
Čakajte prosím