Na podujatí sa predstaví až 37 vystavovateľov - popredných dodávateľov stavebných materiálov a inovácií s prezentáciou...
Novotvar v prostredí alpskej obce.
Hansgrohe - prémiová značka kúpeľňových riešení, ponúka nadčasový dizajn, technickú precíznosť a udržateľné inovácie...
Využite špeciálnu akciu Internorm: okná za minuloročné ceny a hliníkový kryt úplne zadarmo. Ponuka je časovo obmedzená!
Sumarizácia najdôležitejších inovácií, ktoré redefinujúcich využitie tohto energetického zdroja.
AMPHIBIA 3000 GRIP 1.3 od spoločnosti ATRO predstavuje modernú hydroizolačnú technológiu, ktorá spája vysokú odolnosť,...
Ambiciózne plány EK narazili na ekonomické možnosti domácností v jednotlivých členských štátoch –...
IDEA DOOR od spoločnosti JAP prináša do interiéru čistý minimalistický vzhľad vďaka bezrámovému riešeniu a precíznej...
Kontinuita riešenia od vonkajšieho obkladu až po kovania a kľučky.
Nástenné nadomietkové armatúry Vitus sú mimoriadne vhodné pre rýchlu a efektívnu...
Okenné profily z kompozitného materiálu RAU-FIPRO X od spoločnosti Rehau sú v porovnaní s tradičnými plastovými profilmi mnohonásobne...
Najnovší sortiment stolov pre zariadenie interiérov...
Spojenie moderného dizajnu, funkčnosti a svetla do harmonického architektonického prvku.
Kancelárska budova Baumit v slovinskom Trzine prešla premenou na moderné a udržateľné pracovisko. Architekti kládli dôraz...
Mottom šiesteho ročníku on-line konferencie odborníkov Xella Dialóg je Efektívny návrh budov 2025+: zmeny a riešenia

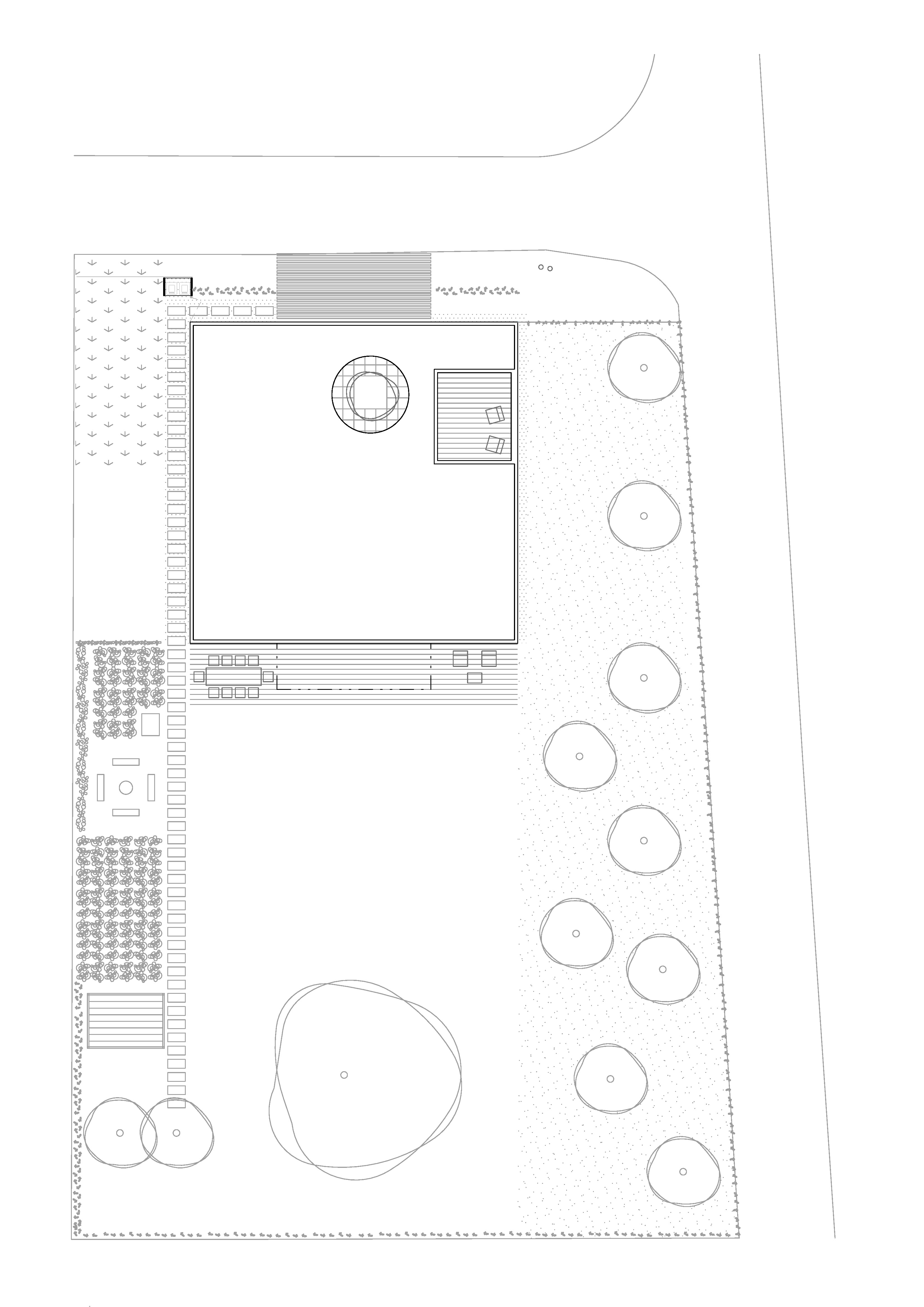
Čistá podlahová plocha takmer 100 m2. Náklady pri svojpomocnej výstavbe ľahko prevyšujúce 115 tisíc eur. Hrubá stavba ako finálna pohľadová vrstva. Nábytok na mieru...
Riešenie, ktoré (ako každý na reálny výsledok zameraný návrh) kladie vysoké požiadavky na projekt a prípravu stavby. Žiaľ v spektre štandardnej výstavby to stále ešte nie je pravidlom.
Práca architektov s priestorom, materiálom a detailom maximalizuje kvalitu obytného prostredia vo vzťahu k investičným nákladom.
Je zrejmé, že architekti dobre poznali životný štýl a osobné preferencie budúcich obyvateľov :-)
Viac ich slovami:
Dům pro dva architekty a jejich děti, dům pro nás. Na místě cihlového domu po praprababičce. Nenáročný na metry čtverečné a technologie. Náročný na kompaktnost, jednoduché hmoty a přiznané materiály.
Po stranách jsou dva cihelné bloky, jeden se soukromou ložnicí otevřenou do atria se saunou, druhý s dětskými pokoji a kůlnou. Mezi nimi proplouvá denní život. Od ulice vstupním nádvořím se stromkem a krytým stáním, kolem kuchyně a koupelen do obýváku s jídelnou až na terasu do zahrady. Betonový strop vybíhá ven nad jižní prosklenou stěnou, kterou chrání proti přehřívání. Podlaha je z hlazeného betonu. Plné cihly jsou v interiéru doplněny nábytkem a obklady z překližky.
Někdo se diví, že nám je vidět až do talíře. Nám to ale nevadí. Užíváme si výhledu do krajiny, psa povalujícího se na terase, rozkvetlé květinové louky, sílících ovocných stromů v sadu, vůně bylinek a šumění rákosí.