Advertorial

95 rokov Internorm: 30 miliónov okien a dverí z Rakúska

Európska značka okien oslavuje jubileum: za 95 rokov sa vyvinula na najväčšiu medzinárodne pôsobiacu okennú značku a inovačného...

Pozvánka na 2. ročník stavebného veľtrhu BigMarket na Slovensku

Na podujatí sa predstaví až 37 vystavovateľov - popredných dodávateľov stavebných materiálov a inovácií s prezentáciou...

Hotel Hirschen Spa House, Rakúsko

Novotvar v prostredí alpskej obce.

Vytvorte si kúpeľňu snov: dizajnové riešenie od značky hansgrohe

Hansgrohe - prémiová značka kúpeľňových riešení, ponúka nadčasový dizajn, technickú precíznosť a udržateľné inovácie...

Okná Internorm za minuloročné ceny + hliníkový kryt zdarma!

Využite špeciálnu akciu Internorm: okná za minuloročné ceny a hliníkový kryt úplne zadarmo. Ponuka je časovo obmedzená!

Moderné plynové technológie: Efektivita a inovácie pre 21. storočie

Sumarizácia najdôležitejších inovácií, ktoré redefinujúcich využitie tohto energetického zdroja.

Utesňovanie spodných stavieb pomocou hydro-aktívnej fólie AMPHIBIA.

AMPHIBIA 3000 GRIP 1.3 od spoločnosti ATRO predstavuje modernú hydroizolačnú technológiu, ktorá spája vysokú odolnosť,...

Dekarbonizácia individuálneho vykurovania domácností – Green Deal evolučne a nie revolučne

Ambiciózne plány EK narazili na ekonomické možnosti domácností v jednotlivých členských štátoch –...

Minimalistické dvere IDEA – technická precíznosť a čistota prevedenia

IDEA DOOR od spoločnosti JAP prináša do interiéru čistý minimalistický vzhľad vďaka bezrámovému riešeniu a precíznej...

Dom s výhľadom na údolie, Dlouhý Most (ČR)

Kontinuita riešenia od vonkajšieho obkladu až po kovania a kľučky.

Schell Vitus – osvedčené riešenie pre sprchy a umývadlá vo verejnom sektore s viac ako desaťročnou tradíciou

Nástenné nadomietkové armatúry Vitus sú mimoriadne vhodné pre rýchlu a efektívnu...

Kompozitné okná predstavujú súčasnosť a budúcnosť

Okenné profily z kompozitného materiálu RAU-FIPRO X od spoločnosti Rehau sú v porovnaní s tradičnými plastovými profilmi mnohonásobne...

Myotis - stoly 2025

Najnovší sortiment stolov pre zariadenie interiérov...

Priemyselné sklenené priečky Dorsis Digero: svetelné rozhranie pre moderné interiéry

Spojenie moderného dizajnu, funkčnosti a svetla do harmonického architektonického prvku.

Význam prirodzeného svetla pre moderné a flexibilné pracovné prostredie

Kancelárska budova Baumit v slovinskom Trzine prešla premenou na moderné a udržateľné pracovisko. Architekti kládli dôraz...

Rezidenčný projekt Origami v Prahe

Zaujímavá forma bývania na rozhraní bytového domu a mestskej vily. Druh mestskej štruktúry, ktorej potenciál nie je v praxi celkom využitý. Najmä v kultivovanej podobe, ako v tomto prípade.
Diela
Red 313.07.2016
17400+10
Rezidenčný projekt Origami v Prahe
Autori: Ing. arch. David Wittassek, Ing. arch. Jiří ŘezákInvestor: DBD groupNávrh: 2011 - 2012Realizácia: 2012 - 2015Adresa: Pod Karlovarskou silnicí , Praha 6, Česká republikaPublikované: 13. júl 2016

Rezidenčný projekt Origami vo vilovej štvrti Prahy 6 vybočuje z bežného vnímania individuálneho bývania. Hoci je formálne definovaný ako bytový dom, jeho koncept má bližšie k bývaniu v samostatnej vile. V každom zo siedmich domov sú maximálne dva byty, každý z má vlastný vchod a samostatnú záhradu. Spojením bytov je možné získať samostatný dom s celkovou úžitkovou plochou až 330 m². Spoločné vnútorné komunikácie a podzemné garáže vytvárajú z bytových jednotiek intímny rezidenčný súbor, ktorý je z vonkajšej strany uzatvorený.

QARTA Architektura

Stavba sa nachádza v katastrálnom území Prahy 6 - Ruzyně. Leží severne od Karlovarské ulice a juhozápadne od ulice Drnovská. V úrovni nadzemných podlaží je rozdelený do 4 samostatných dvoj a troj podlažných hmôt s plochými strechami. Objekty sa mierkou prispôsobujú okolitej zástavbe solitérnych rodinných domov. Každá hmota je stavebne rozdelená na polovice s rôznou podlažnosťou, v ktorých sú umiestnené jednotlivé bytové jednotky.

QARTA Architektura

Byty sú prístupné z otvoreného priestoru, na streche spoločného suterénu. Táto vnútorná pešia komunikácia spája ulice Zbuzanská a Pod Karlovarskou cestou. Vyúsťujú tu aj vertikálnej komunikácie (výťah so schodiskom) zo suterénu. Štvorizbové mezonetové byty majú plochu 120 m2 a sú dvoj alebo troj podlažné. Na prízemí sú obytné miestnosti s kuchynskými kútmi, na horných poschodiach sa nachádza spálňová časť. Obytné miestnosti sú orientované do zelene, ktorá slúži ako predzáhradky jednotlivým bytom. Orientácia okien na horných poschodiach je zvolená tak, aby bola zaručená intimita a dostatočné preslnenie obytných miestností.

Pôdorys 1. PP
Pôdorys 1. PPQarta Architektura
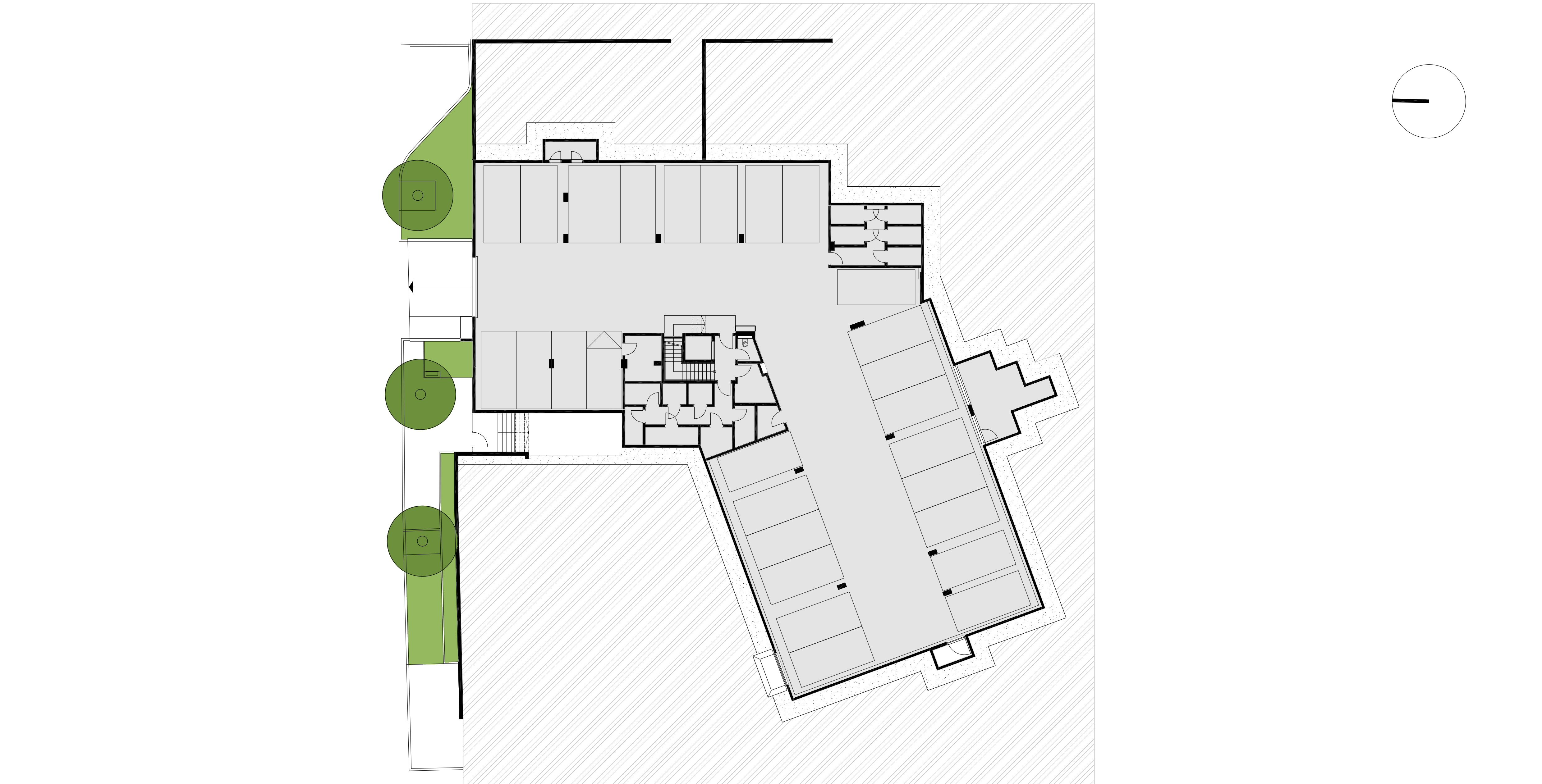
Pôdorys 1. NP
Pôdorys 1. NPQarta Architektura
Pôdorys 2. NP
Pôdorys 2. NPQarta Architektura
Pôdorys 3. NP
Pôdorys 3. NPQarta Architektura

Nad spoločným podzemným podlažím stojí trinásť bytových jednotiek rozložených do viacerých úrovní. Pri pohľade zvonku preto jednotky vyzerajú ako polovice dvojdomov či samostatné rodinné domy. Každý byt má vlastnú záhradu s vonkajšou terasou. Trojpodlažné byty sú navyše na druhom poschodí doplnené o terasou.

QARTA Architektura
QARTA Architektura
QARTA Architektura
QARTA Architektura
QARTA Architektura
QARTA Architektura
QARTA Architektura
QARTA Architektura
QARTA Architektura
QARTA Architektura
QARTA Architektura
QARTA Architektura
Model
Model
Model
Model

Projekt Origami získal na Grand Prix Architektů - Národní cena za architekturu 2016 čestné uznanie v kategórii Novostavba

Podklady: Qarta Architektura

Archinfo, architektúra, urbanizmus, dizajn, grafika, umenie, Slovensko (architecture, architect, design, CGI, art, Slovakia),  architekt, architekti, architektonický ateliér,

Poloha diela

Ing. arch. David Wittassek
Ing. arch. Jiří Řezák
Vložené
29. jún 2016
0
1740
Hlavný obsahHlavný obsah
Čakajte prosím