Advertorial

Vytvorte si kúpeľňu snov: dizajnové riešenie od značky hansgrohe

Hansgrohe - prémiová značka kúpeľňových riešení, ponúka nadčasový dizajn, technickú precíznosť a udržateľné inovácie...

Okná Internorm za minuloročné ceny + hliníkový kryt zdarma!

Využite špeciálnu akciu Internorm: okná za minuloročné ceny a hliníkový kryt úplne zadarmo. Ponuka je časovo obmedzená!

Pozvánka na 2. ročník stavebného veľtrhu BigMarket na Slovensku

Na podujatí sa predstaví až 37 vystavovateľov - popredných dodávateľov stavebných materiálov a inovácií s prezentáciou...

Moderné plynové technológie: Efektivita a inovácie pre 21. storočie

Sumarizácia najdôležitejších inovácií, ktoré redefinujúcich využitie tohto energetického zdroja.

Utesňovanie spodných stavieb pomocou hydro-aktívnej fólie AMPHIBIA.

AMPHIBIA 3000 GRIP 1.3 od spoločnosti ATRO predstavuje modernú hydroizolačnú technológiu, ktorá spája vysokú odolnosť,...

Dekarbonizácia individuálneho vykurovania domácností – Green Deal evolučne a nie revolučne

Ambiciózne plány EK narazili na ekonomické možnosti domácností v jednotlivých členských štátoch –...

Minimalistické dvere IDEA – technická precíznosť a čistota prevedenia

IDEA DOOR od spoločnosti JAP prináša do interiéru čistý minimalistický vzhľad vďaka bezrámovému riešeniu a precíznej...

Dom s výhľadom na údolie, Dlouhý Most (ČR)

Kontinuita riešenia od vonkajšieho obkladu až po kovania a kľučky.

Schell Vitus – osvedčené riešenie pre sprchy a umývadlá vo verejnom sektore s viac ako desaťročnou tradíciou

Nástenné nadomietkové armatúry Vitus sú mimoriadne vhodné pre rýchlu a efektívnu...

Kompozitné okná predstavujú súčasnosť a budúcnosť

Okenné profily z kompozitného materiálu RAU-FIPRO X od spoločnosti Rehau sú v porovnaní s tradičnými plastovými profilmi mnohonásobne...

Myotis - stoly 2025

Najnovší sortiment stolov pre zariadenie interiérov...

Priemyselné sklenené priečky Dorsis Digero: svetelné rozhranie pre moderné interiéry

Spojenie moderného dizajnu, funkčnosti a svetla do harmonického architektonického prvku.

Význam prirodzeného svetla pre moderné a flexibilné pracovné prostredie

Kancelárska budova Baumit v slovinskom Trzine prešla premenou na moderné a udržateľné pracovisko. Architekti kládli dôraz...

Konferencia Xella Dialóg predstaví novinky a trendy v stavebníctve

Mottom šiesteho ročníku on-line konferencie odborníkov Xella Dialóg je Efektívny návrh budov 2025+: zmeny a riešenia

Murovací robot WLTR stavia svoj prvý dom na Slovensku

Robot WLTR predstavuje moderný prístup k murovaným konštrukciám. Vďaka automatizácii dokáže rýchlo, presne a bezpečne realizovať...

Rodinný dom 3M

Koncept návrhu je ťažiskovo opretý o lokálnu tradičnú architektúru. Vychádza z úzkej formy domu, kde sú jednotlivé miestnosti radené za sebou a napojené na exteriérový prekrytý gánok. Gánok je umiestnený na západnej fasáde domu a je v priamom kontakte so záhradou. V rámci uličnej zástavby dom rešpektuje susedné objekty pôvodnej zástavby jednoduchou čistou formou. Raster okien je inšpirovaný 4 - osovou tradičnou fasádou.
Diela
Ema Ruhigová (Kiabová)18.12.2018
30860+14
Rodinný dom 3M
Ateliér: ER AtelierAutori: Ing. arch. Ing. Ema Kiabová, Ing. arch. Ing. Roman RuhigPlocha pozemku: 2499Zastavaná plocha: 230,63Adresa: Blahová, SlovenskoPublikované: 18. december 2018

Navrhovaný objekt sa nachádza v stabilizovanom urbanizovanom území obce Blahová. Obec má prevažne vidiecky charakter, nachádza sa tu množstvo pôvodných objektov, ktoré v minulosti slúžili na bývanie a táto funkcia prevláda dodnes. K pôvodným domom prislúchali hospodárske domčeky samostatne stojace, alebo aditívne priradené k domom. Z toho vychádza aj charakteristický archetyp tunajšej tradičnej architektúry, ktorý pozostáva zo štíhlych domov predĺžených smerom do
dvora. Ich charakteristickou črtou je aj gánok prebiehajúci pozdĺž celej bočnej fasády. Na predmetnej parcele sa už nachádza jeden objekt v minulosti slúžiaci na bytové účely.
Navrhovaný objekt novostavby rešpektuje uličnú zástavbu-stavebnú a uličnú čiaru celkovou formou a navrhovaným objemom. Zrkadlením formy susedného objektu (tiež ležiaceho na predmetnej parcele) sa vytvára príjemné intímne nádvorie, do
ktorého sú orientované obytné miestnosti.

Koncept návrhu je ťažiskovo opretý o lokálnu tradičnú architektúru. Vychádza z úzkej formy domu, kde sú jednotlivé miestnosti aditívne radené za sebou a prepojené exteriérovým prekrytým gánkom. Gánok je umiestnený na západnej fasáde domu a
je v priamom kontakte so záhradou. V rámci uličnej zástavby dom rešpektuje susedné objekty pôvodnej zástavby jednoduchou čistou fasádou. Raster okien je inšpirovaný 4 - osovou tradičnou fasádou.
Materiálovo je objekt tvorený troma základnými prvkami - neutrálnou bielou omietkou, drevenými prvkami a oplechovaním strešnej konštrukcie. Týmto riešením objekt dostáva elegantný súčasný vzhľad, ktorý je však opretý o tradičné prírodné
materiály. Ich vzájomným spolupôsobením vzniká fungujúci komplex jednoduchého charakteru, vďaka čomu vyniknú jednotlivé modré prvky (drevené vráta z pobytovej zóny, vstupné dvere a pod.) tvoriace hlavnú odvolávku na miestnu ľudovú
architektúru.

Do domu vedú 2 vstupy. Vedľajší vstup (tiež umiestnený v gánku) slúži hosťovskej časti. Tá je vďaka nemu samostatne fungujúca - pozostáva z vlastného zádveria, kúpeľne a dvoch hosťovských ubytovacích jednotiek. Vďaka gánku je však priamo
napojená aj na hlavné priestory domu. Táto jednotka však môže byť na ostatné priestory v dome napojená aj tzv. „suchou nohou“, keďže je možné sa do nej dostať aj z hlavného vstupného priestoru (pozn: v prípade potreby je možné v tomto mieste
umiestniť uzamykateľné dvere, ktoré zabezpečia samostatnosť chodu týchto dvoch celkov).
Hlavný vstup do domu vedie do zádveria, z ktorého je možné dostať sa do spálne (so samostatnou kúpeľňou a šatníkovým priestorom), do pohotovostného WC, do práčovne, do schodiskového priestoru a do kuchyne spojenej s obývacou izbou.
Kuchyňa má priamy prístup do komory (ktorá môže byť prístupná aj zo záhrady, pozn. pre investorov). Z obývacej izby je možné dostať sa do polo-exteriérového priestoru terasy s vonkajším sedením a uzavretou saunou.
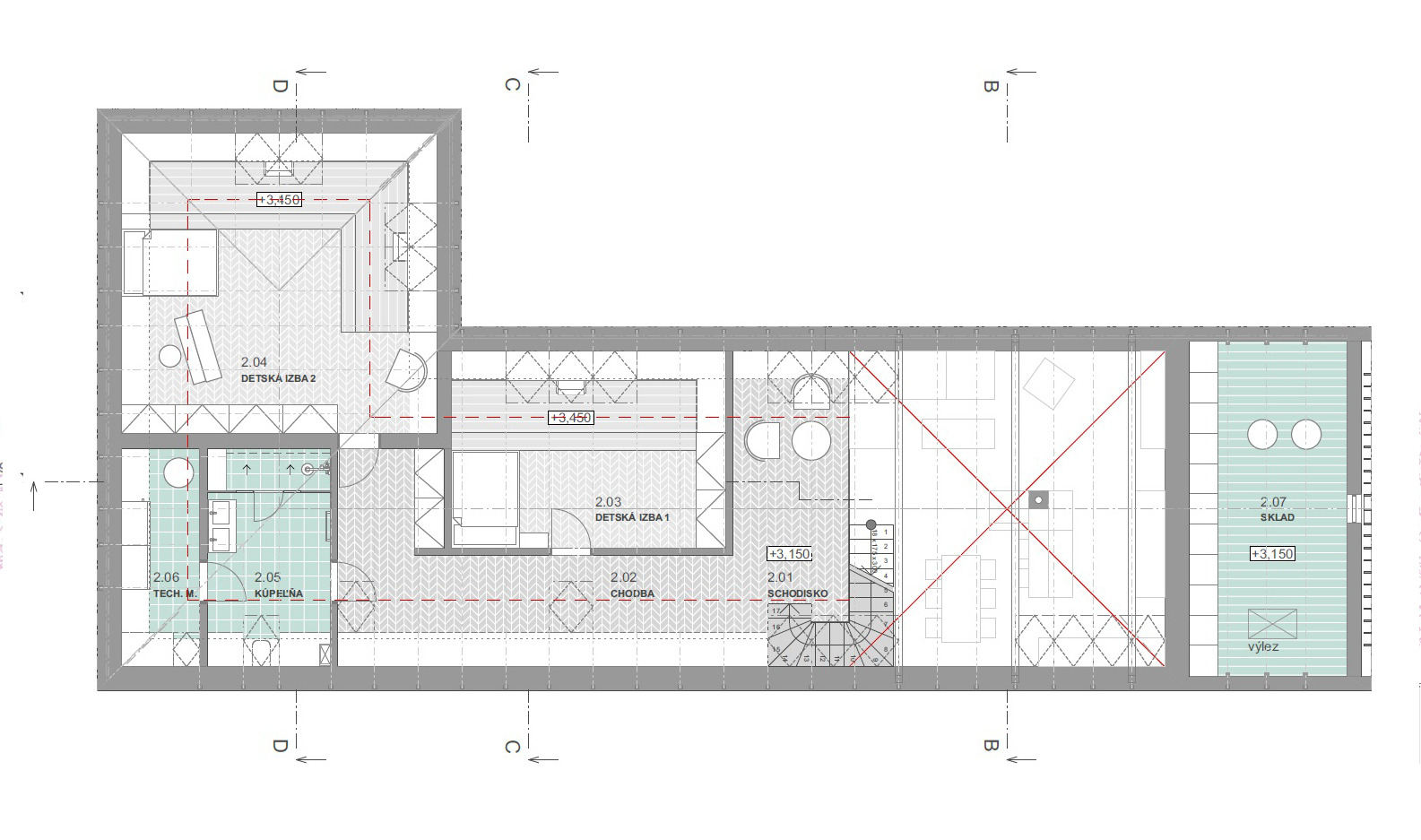
Nad obývacou izbou sa nachádza galéria, ktorá komunikuje so schodiskovým priestorom a detskými izbami. Tie sa nachádzajú na druhom nadzemnom podlaží a majú vlastnú kúpeľňu. Ich charakteristickým prvkom je vyvýšené pódium v polohe pod
oknom, ktoré umožňuje priamy výhľad von cez strešné okná aj pre deti s menšou výškou. Týmto prvkom sa miestnosť pomyselne rozdelí na „pracovnú“ a „hraciu“ časť, kde sú pracovné stoly umiestňované práve na vyvýšených pódiach pre
zabezpečenie dostatočného denného osvetlenia. Za kúpeľňou (smerom k ulici) sa nachádza technická miestnosť na umiestnenie rekuperačných (vzduchotechnických) jednotiek a tepelného čerpadla. Nad komorou sa nachádza podkrovný sklad, ktorý je prístupný padajúcimi rebríkovými schodíkmi a alternatívne môže slúžiť aj pre decentralizovanú rekuperačnú jednotku.

Ateliér

Ing. arch. Ing. Ema Kiabová
Ing. arch. Ing. Roman Ruhig
Vložené
18. december 2018
0
3086
Hlavný obsahHlavný obsah
Čakajte prosím