Využite špeciálnu akciu Internorm: okná za minuloročné ceny a hliníkový kryt úplne zadarmo. Ponuka je časovo obmedzená!
Na podujatí sa predstaví až 37 vystavovateľov - popredných dodávateľov stavebných materiálov a inovácií s prezentáciou...
Sumarizácia najdôležitejších inovácií, ktoré redefinujúcich využitie tohto energetického zdroja.
AMPHIBIA 3000 GRIP 1.3 od spoločnosti ATRO predstavuje modernú hydroizolačnú technológiu, ktorá spája vysokú odolnosť,...
Ambiciózne plány EK narazili na ekonomické možnosti domácností v jednotlivých členských štátoch –...
IDEA DOOR od spoločnosti JAP prináša do interiéru čistý minimalistický vzhľad vďaka bezrámovému riešeniu a precíznej...
Kontinuita riešenia od vonkajšieho obkladu až po kovania a kľučky.
Nástenné nadomietkové armatúry Vitus sú mimoriadne vhodné pre rýchlu a efektívnu...
Okenné profily z kompozitného materiálu RAU-FIPRO X od spoločnosti Rehau sú v porovnaní s tradičnými plastovými profilmi mnohonásobne...
Najnovší sortiment stolov pre zariadenie interiérov...
Spojenie moderného dizajnu, funkčnosti a svetla do harmonického architektonického prvku.
Kancelárska budova Baumit v slovinskom Trzine prešla premenou na moderné a udržateľné pracovisko. Architekti kládli dôraz...
Mottom šiesteho ročníku on-line konferencie odborníkov Xella Dialóg je Efektívny návrh budov 2025+: zmeny a riešenia
Robot WLTR predstavuje moderný prístup k murovaným konštrukciám. Vďaka automatizácii dokáže rýchlo, presne a bezpečne realizovať...
Okrem bezpečnosti majú okná aj elegantný vzhľad, pretože nie sú viditeľné žiadne uzamykacie časti kovania.

Návrh domu v švajčiarskom Ernene sa snaží nadviazať na miestnu stavebnú tradíciu. Hmota je kompaktná, krytá sedlovou strechou so sklonom typickým pre región, obložená horizontálne ukladaným červeným smrekom. Na rozdiel od pôvodných stavieb má upravené proporcie – objem prekrýva vstupy a vytvára chránený zárez, ktorý zároveň formuje jasnú hierarchiu fasád. Regionálne odkazy sú čitateľné v pásových oknách, L-kovej betónovej podstave reagujúcej na terén a v archetypoch súvisiacich s ochranou pred lavínami.
Dom je osadený do svahu tak, aby kryl záhradu majiteľa a vytváral súkromie pre hlavnú obytnú úroveň situovanú na poschodí. Tá je orientovaná na juh do lesa a otvára sa výhľadom cez horizontálne okná na okolité kopce. Severná fasáda je naopak uzavretejšia, smerom k ceste a susedným pozemkom. Výhľady na severné kopce sú rámované pásovými oknami.
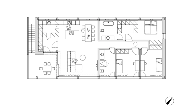
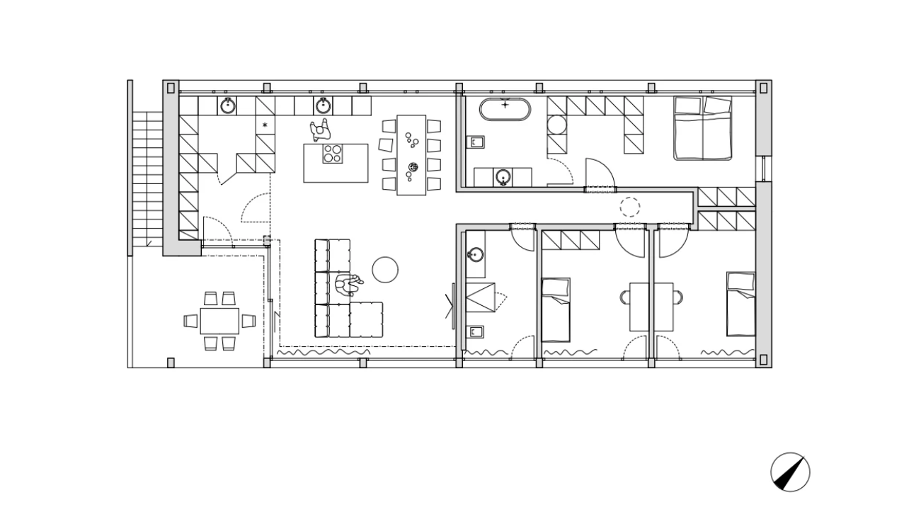
Prízemie tvoria dva samostatné apartmány a veľká garáž s technickou miestnosťou. Z tejto úrovne vedú kryté schody na terasu, kde sa nachádza vstup do hlavnej obytnej časti. Vstupná predsieň je prekrytá, vedľa nej je dielňa. Obytný priestor tvorí kuchyňa s obývačkou, z ktorej sa prechádza do dvoch izieb s mezanínmi a do rodičovskej spálne s vlastnou kúpeľňou.