Advertorial

Pozvánka na 2. ročník stavebného veľtrhu BigMarket na Slovensku

Na podujatí sa predstaví až 37 vystavovateľov - popredných dodávateľov stavebných materiálov a inovácií s prezentáciou...

Hotel Hirschen Spa House, Rakúsko

Novotvar v prostredí alpskej obce.

Vytvorte si kúpeľňu snov: dizajnové riešenie od značky hansgrohe

Hansgrohe - prémiová značka kúpeľňových riešení, ponúka nadčasový dizajn, technickú precíznosť a udržateľné inovácie...

Okná Internorm za minuloročné ceny + hliníkový kryt zdarma!

Využite špeciálnu akciu Internorm: okná za minuloročné ceny a hliníkový kryt úplne zadarmo. Ponuka je časovo obmedzená!

Moderné plynové technológie: Efektivita a inovácie pre 21. storočie

Sumarizácia najdôležitejších inovácií, ktoré redefinujúcich využitie tohto energetického zdroja.

Utesňovanie spodných stavieb pomocou hydro-aktívnej fólie AMPHIBIA.

AMPHIBIA 3000 GRIP 1.3 od spoločnosti ATRO predstavuje modernú hydroizolačnú technológiu, ktorá spája vysokú odolnosť,...

Dekarbonizácia individuálneho vykurovania domácností – Green Deal evolučne a nie revolučne

Ambiciózne plány EK narazili na ekonomické možnosti domácností v jednotlivých členských štátoch –...

Minimalistické dvere IDEA – technická precíznosť a čistota prevedenia

IDEA DOOR od spoločnosti JAP prináša do interiéru čistý minimalistický vzhľad vďaka bezrámovému riešeniu a precíznej...

Dom s výhľadom na údolie, Dlouhý Most (ČR)

Kontinuita riešenia od vonkajšieho obkladu až po kovania a kľučky.

Schell Vitus – osvedčené riešenie pre sprchy a umývadlá vo verejnom sektore s viac ako desaťročnou tradíciou

Nástenné nadomietkové armatúry Vitus sú mimoriadne vhodné pre rýchlu a efektívnu...

Kompozitné okná predstavujú súčasnosť a budúcnosť

Okenné profily z kompozitného materiálu RAU-FIPRO X od spoločnosti Rehau sú v porovnaní s tradičnými plastovými profilmi mnohonásobne...

Myotis - stoly 2025

Najnovší sortiment stolov pre zariadenie interiérov...

Priemyselné sklenené priečky Dorsis Digero: svetelné rozhranie pre moderné interiéry

Spojenie moderného dizajnu, funkčnosti a svetla do harmonického architektonického prvku.

Význam prirodzeného svetla pre moderné a flexibilné pracovné prostredie

Kancelárska budova Baumit v slovinskom Trzine prešla premenou na moderné a udržateľné pracovisko. Architekti kládli dôraz...

Konferencia Xella Dialóg predstaví novinky a trendy v stavebníctve

Mottom šiesteho ročníku on-line konferencie odborníkov Xella Dialóg je Efektívny návrh budov 2025+: zmeny a riešenia

Rodinný dom pre obete tornáda, Hrušky (ČR)

Návrh nového bývania v zničenej juhomoravskej obci.
Diela
Red 327.08.2021
33490+36
Rodinný dom pre obete tornáda, Hrušky (ČR)
Ateliér: NOMAARCHAutori: Ing. arch. Pavla Maxová, Ing. arch. Jan Novotný, Bc Eva PrcinováNávrh: 2021 - 2021Adresa: Týnecká , Hrušky, Česká republikaPublikované: 27. august 2021

24. júna, tesne pred pol siedmou večer, sa okresmi Hodonín a Břeclav prehnalo tornádo, ktoré zasiahlo sedem obcí Juhomoravského kraja. V zasiahnutých sídlach zničilo desiatky domov a verejných stavieb. Polícia potvrdila 6 obetí. Už tri dni na to založil architekt Jiří Lev iniciatívu Architekti Pro Bono, ktorú zastrešila Česká komora architektov. Obyvatelia postihnutých obcí dostali možnosť kontaktovať prostredníctvom adresára členské ateliéry, ktoré následne vyhodnotia situáciu a preskúmajú možnosti pomoci - v závislosti od konkrétnych okolností a rozsahu dostupnej pro bono asistencie. Od jednoduchej rady, až po kompletné architektonické služby…. Do iniciatívy sa doteraz zapojilo 78 ateliérov. 

S pomocou neváhal ani ateliér NOMA, v ktorom pracujú českí a slovenskí architekti. Prostredníctvom projektu Architekti Pro Bono ich oslovila pani Husáková. “Tornádo zničilo jej mamičke dom v Hruškách a hľadala architektov pre návrh nového,” vysvetľuje architektka Eva Prcinová a pokračuje: “Našim spoločným cieľom bolo navrhnúť skromný dom pre ženu v zrelom veku a príležitostné návštevy rodiny, predovšetkým vnúčat.”

Situácia
SituáciaAutor: NOMA
Vizualizácia
VizualizáciaAutor: NOMA
Vizualizácia
VizualizáciaAutor: NOMA
Vizualizácia
VizualizáciaAutor: NOMA

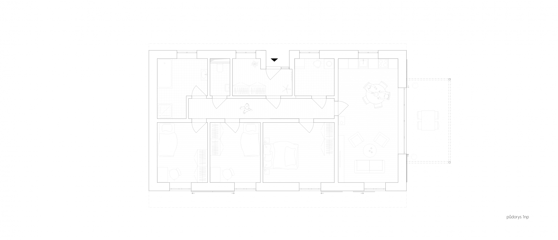
Návrh podľa slov architektov vychádza z princípov  tradičných českých a moravských domov. Zapustený a krytý vstup z ulice sprístupňuje skromne riešenú nočnú časť domu s drevenou podlahou a stropom. Dennú zónu na juhozápade tvorí prevýšený  priestor obývačky a kuchyne, otvorený do krovu.

Všetky izby sú prepojené so záhradou cez vysoké francúzske okná, ktoré v lete tienia posuvné okenice a pergola. 

Tradičné materiály - červená keramická škridla, biele omietky a drevené okná - odkazujú na zničenú stavbu. Nový dom nekopíruje ten pôvodný, ale snaží sa prostredníctvom známych prvkov prinavrátiť atmosféru chýbajúceho domova.

Pôdorys
PôdorysAutor: NOMA
Priestorová schéma
Priestorová schémaAutor: NOMA
Južný pohľad
Južný pohľadAutor: NOMA
Východný pohľad
Východný pohľadAutor: NOMA

“Ako  architekti vnímame projekt ako príležitosť, pri ktorej sa môžeme spojiť s ľuďmi, ktorí by pravdepodobne inak služby architekta nevyužili a môžeme tak ukázať, aká môže byť úloha architekta v spoločnosti. Dokážeme projekt naplánovať tak, aby sme sa vošli do skromného rozpočtu klienta a na základe požiadaviek rodín tvoríme priestor, kde se budú znovu cítiť ako doma a v bezpečí. Pre dom v obci Hrušky sa aktuálne pracuje na stavebnom povolení, vo vzniknutej situácii je potrebné reagovať rýchlo. Radi by sme inšpirovali aj slovenské ateliéry, ktoré sa sa do projektu môžu zapojiť tiež,"  dopĺňa na záver architektka Eva Prcinová z Ateliéru NOMA.

Vizualizácia
VizualizáciaAutor: NOMA
Vizualizácia
VizualizáciaAutor: NOMA
Vizualizácia
VizualizáciaAutor: NOMA
Vizualizácia
VizualizáciaAutor: NOMA

Návrh a podklady: NOMA

Ateliér

Poloha diela

Ing. arch. Pavla Maxová
Ing. arch. Jan Novotný
Bc Eva Prcinová
Vložené
25. august 2021
0
3349
Hlavný obsahHlavný obsah
Čakajte prosím