Na podujatí sa predstaví až 37 vystavovateľov - popredných dodávateľov stavebných materiálov a inovácií s prezentáciou...
Novotvar v prostredí alpskej obce.
Hansgrohe - prémiová značka kúpeľňových riešení, ponúka nadčasový dizajn, technickú precíznosť a udržateľné inovácie...
Využite špeciálnu akciu Internorm: okná za minuloročné ceny a hliníkový kryt úplne zadarmo. Ponuka je časovo obmedzená!
Sumarizácia najdôležitejších inovácií, ktoré redefinujúcich využitie tohto energetického zdroja.
AMPHIBIA 3000 GRIP 1.3 od spoločnosti ATRO predstavuje modernú hydroizolačnú technológiu, ktorá spája vysokú odolnosť,...
Ambiciózne plány EK narazili na ekonomické možnosti domácností v jednotlivých členských štátoch –...
IDEA DOOR od spoločnosti JAP prináša do interiéru čistý minimalistický vzhľad vďaka bezrámovému riešeniu a precíznej...
Kontinuita riešenia od vonkajšieho obkladu až po kovania a kľučky.
Nástenné nadomietkové armatúry Vitus sú mimoriadne vhodné pre rýchlu a efektívnu...
Okenné profily z kompozitného materiálu RAU-FIPRO X od spoločnosti Rehau sú v porovnaní s tradičnými plastovými profilmi mnohonásobne...
Najnovší sortiment stolov pre zariadenie interiérov...
Spojenie moderného dizajnu, funkčnosti a svetla do harmonického architektonického prvku.
Kancelárska budova Baumit v slovinskom Trzine prešla premenou na moderné a udržateľné pracovisko. Architekti kládli dôraz...
Mottom šiesteho ročníku on-line konferencie odborníkov Xella Dialóg je Efektívny návrh budov 2025+: zmeny a riešenia

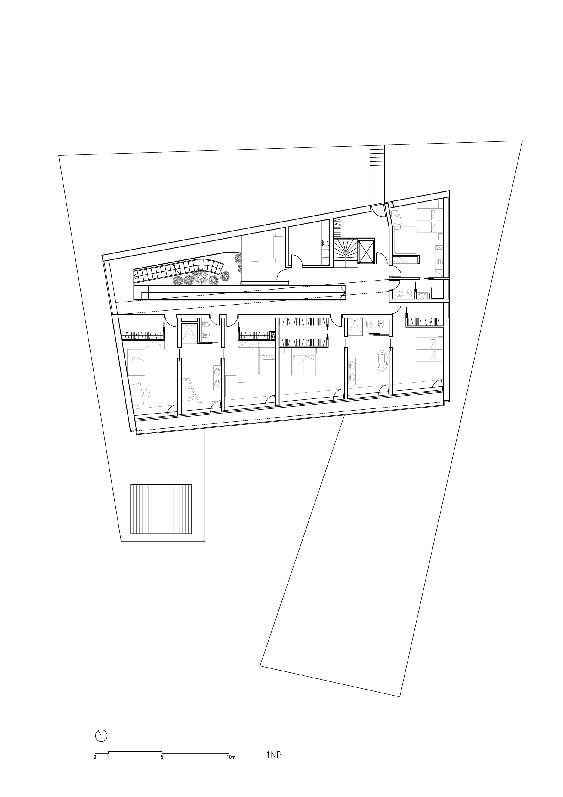
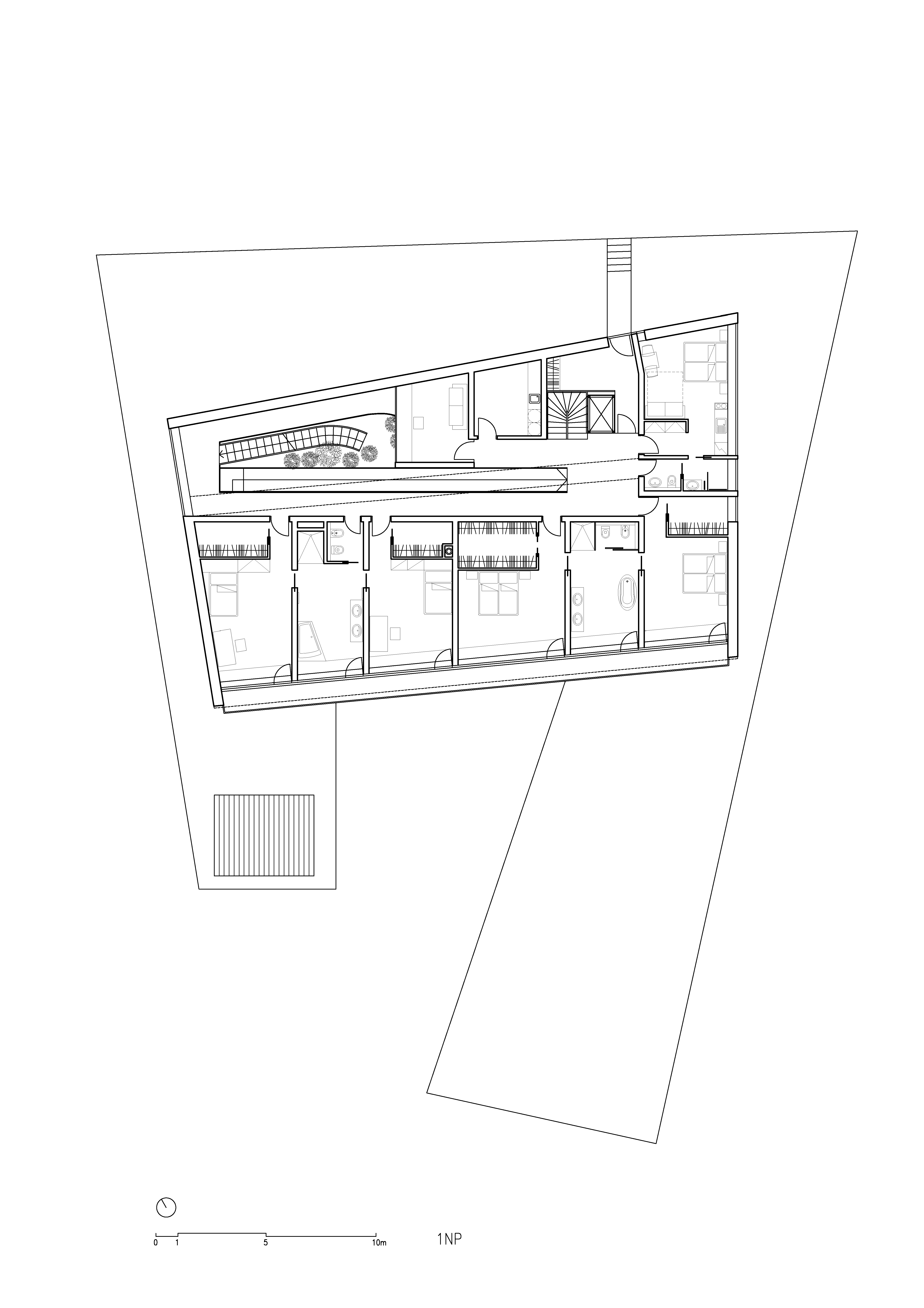
Dom z dielne ateliéru Fránek Architects neďaleko Brna obklopuje rozsiahla záhrada s prírodným kúpacím biotopom a divokou zeleňou. Zelená strecha podporuje prepojenie stavby s okolím.
„Dům je umístěn na pozemku svažujícím se k jihu a na tuto morfologii přirozeně reaguje. Má půdorysný tvar písmene C tak, aby ochránil soukromí a zvýšil míru intimity,“ uvádza architekt Zdeněk Fránek. Tím autorov riešil aj požiadavku stavebného úradu na sedlovú strechu; jej nenápadné začlenenie do najvyššej úrovne strešnej roviny neruší celkový výraz domu. Vonkajší pohľadový materiál tvorí prírodný vápenec z chorvátskeho ostrova Brač.
Interiér a umenie
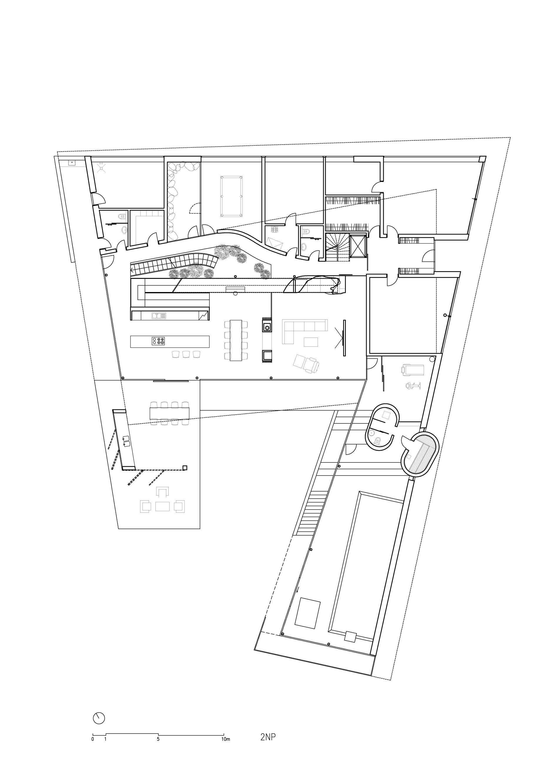
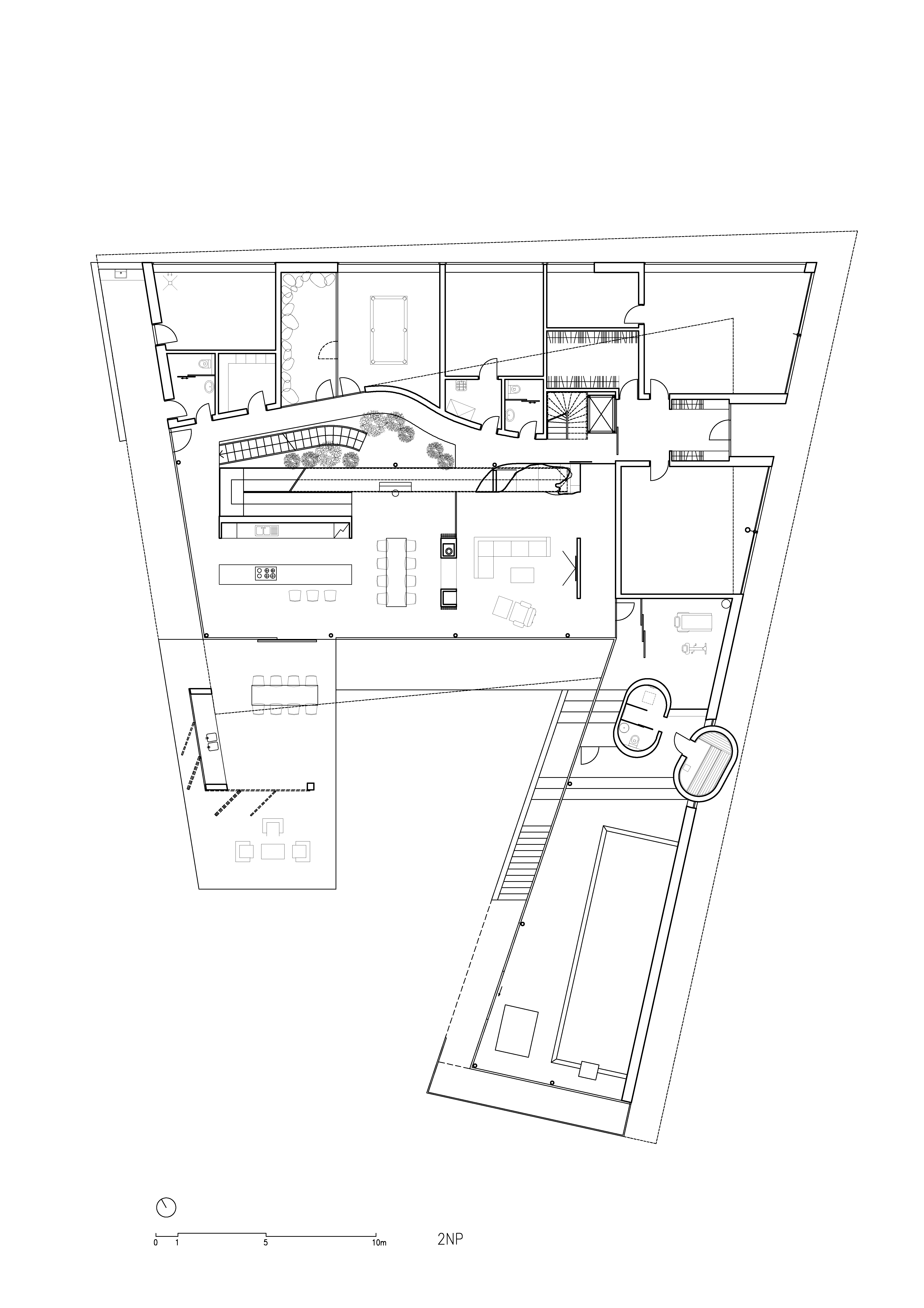
Vstupná časť vedie do kuchyne, obytného priestoru a wellness zóny. Obytná časť je prepojená s terasou veľkoformátovým zasklením. Na terase je situovaná vonkajšia kuchyňa s grilom a jedálenské sedenie.
Riešenie zohľadňuje preferencie investora. „Majitel je velký milovník umění a kladl důraz především na umělecký dojem z celého „oživlého muzea“. Výborné bylo, že jsme při výběru dostali naprosto volnou ruku, a to nám umožnilo vše sladit s citem pro detail,“ hovorí Zdeněk Fránek. Medzi neobvyklé prvky patrí integrované sedenie v organicky tvarovanej stene zhotovenej zo sklolaminátu, alebo jaseňová dyha z jedného kmeňa, použitá na veľkoformátových obkladoch stien, dverí a nábytku. Ako dodáva architekt Fránek: „V celém objektu se vlastně už počítalo s aktivním užitím umění, a proto je mu věnováno spoustu prostoru. Je to takový zážitkový dům.“
Kuchyňa v čiernom laku nadväzuje na obslužný pult z jaseňového masívu. V jedálni autori pracujú s čiernymi stoličkami a jaseňovým stolom. Závesné svietidlá sú osadené na stropoch z pohľadového betónu Obytnú časť oddeľuje stena s krbom, pričom podlahy z bračského vápenca zjednocujú interiér. V celom dome je nainštalované podlahové vykurovanie s tepelným čerpadlom.
Z obývacej izby sa vstupuje do wellness zóny s interiérovým bazénom, vírivkou a menšou fitness časťou. Jej súčasť tvorí sprcha a toaleta. Veľkoformátové okná otvárajú výhľad do záhrady.
Prízemie a poschodie spája protiľahlé dvojramenné schodisko so skleneným zábradlím. Drevené obklady plynule nadväzujú na jednotlivé stupne. Súčasťou riešenia sú skryté interiérové dvere. Celok dopĺňajú kľučky MAXIMAL z manufaktúry M&T. „Používám kování MAXIMAL a MINIMAL z české rodinné firmy M&T téměř všude. Když mi něco vyhovuje, tak to pak opakuji. Líbí se mi, že se jedná o ucelenou kolekci kování, která zahrnuje produkty nejen pro dveře, ale také pro okna,“ uvádza Fránek. Roman Ulich, hlavný dizajnér M&T, dopĺňa: „Kolekce kování MAXIMAL zahrnuje kromě dveřních a okenních klik také kování pro HS portály, spodní rozety se zámky, ale třeba i dveřní zarážky. Jednotlivé prvky jsou tak pohledově sladěné a interiéru dodávají ucelený výraz. Klika MAXIMAL navíc dokáže nést ve své čelní ploše výplň z nejrůznějších materiálů, čímž je umožněno buď sladění například s dekorem dveřních a okenních prvků, nebo naopak kontrast, díky kterému kliky pohledově vyniknou.“
Na nadzemných podlažiach sú spálne s príslušnými kúpeľňami, riešené na mieru. Je tu aj technické zázemie. Vzhľadom na svahovitý pozemok je druhý hlavný vstup na úrovni druhého nadzemného podlažia, napojený na ulicu.
Ateliér: Fránek Architects
Fotografie: Petr Polák pre M&T