Advertorial

Pozvánka na 2. ročník stavebného veľtrhu BigMarket na Slovensku

Na podujatí sa predstaví až 37 vystavovateľov - popredných dodávateľov stavebných materiálov a inovácií s prezentáciou...

Hotel Hirschen Spa House, Rakúsko

Novotvar v prostredí alpskej obce.

Vytvorte si kúpeľňu snov: dizajnové riešenie od značky hansgrohe

Hansgrohe - prémiová značka kúpeľňových riešení, ponúka nadčasový dizajn, technickú precíznosť a udržateľné inovácie...

Okná Internorm za minuloročné ceny + hliníkový kryt zdarma!

Využite špeciálnu akciu Internorm: okná za minuloročné ceny a hliníkový kryt úplne zadarmo. Ponuka je časovo obmedzená!

Moderné plynové technológie: Efektivita a inovácie pre 21. storočie

Sumarizácia najdôležitejších inovácií, ktoré redefinujúcich využitie tohto energetického zdroja.

Utesňovanie spodných stavieb pomocou hydro-aktívnej fólie AMPHIBIA.

AMPHIBIA 3000 GRIP 1.3 od spoločnosti ATRO predstavuje modernú hydroizolačnú technológiu, ktorá spája vysokú odolnosť,...

Dekarbonizácia individuálneho vykurovania domácností – Green Deal evolučne a nie revolučne

Ambiciózne plány EK narazili na ekonomické možnosti domácností v jednotlivých členských štátoch –...

Minimalistické dvere IDEA – technická precíznosť a čistota prevedenia

IDEA DOOR od spoločnosti JAP prináša do interiéru čistý minimalistický vzhľad vďaka bezrámovému riešeniu a precíznej...

Dom s výhľadom na údolie, Dlouhý Most (ČR)

Kontinuita riešenia od vonkajšieho obkladu až po kovania a kľučky.

Schell Vitus – osvedčené riešenie pre sprchy a umývadlá vo verejnom sektore s viac ako desaťročnou tradíciou

Nástenné nadomietkové armatúry Vitus sú mimoriadne vhodné pre rýchlu a efektívnu...

Kompozitné okná predstavujú súčasnosť a budúcnosť

Okenné profily z kompozitného materiálu RAU-FIPRO X od spoločnosti Rehau sú v porovnaní s tradičnými plastovými profilmi mnohonásobne...

Myotis - stoly 2025

Najnovší sortiment stolov pre zariadenie interiérov...

Priemyselné sklenené priečky Dorsis Digero: svetelné rozhranie pre moderné interiéry

Spojenie moderného dizajnu, funkčnosti a svetla do harmonického architektonického prvku.

Význam prirodzeného svetla pre moderné a flexibilné pracovné prostredie

Kancelárska budova Baumit v slovinskom Trzine prešla premenou na moderné a udržateľné pracovisko. Architekti kládli dôraz...

Konferencia Xella Dialóg predstaví novinky a trendy v stavebníctve

Mottom šiesteho ročníku on-line konferencie odborníkov Xella Dialóg je Efektívny návrh budov 2025+: zmeny a riešenia

Rodinný dom, Snina

Veľkorysý dom. Korekcia mierky. Hra priehľadov.
Diela
Richard Kráľovič23.08.2019
8610+3
Rodinný dom, Snina
Autori: Ing. arch. Richard KráľovičInvestor: SúkromnýPlocha pozemku: 10 330 m2Zastavaná plocha: 358 m2Podlažná plocha: 388,3 m2Návrh: 2013 - 0Realizácia: 2015 - 2018Adresa: SlovenskoPublikované: 23. august 2019
Foto: Matúš Rendek
Foto: Matúš Rendek
Foto: Matúš Rendek
Foto: Matúš Rendek
Pôdorys 1.N.P.
Pôdorys 1.N.P.Richard Kráľovič
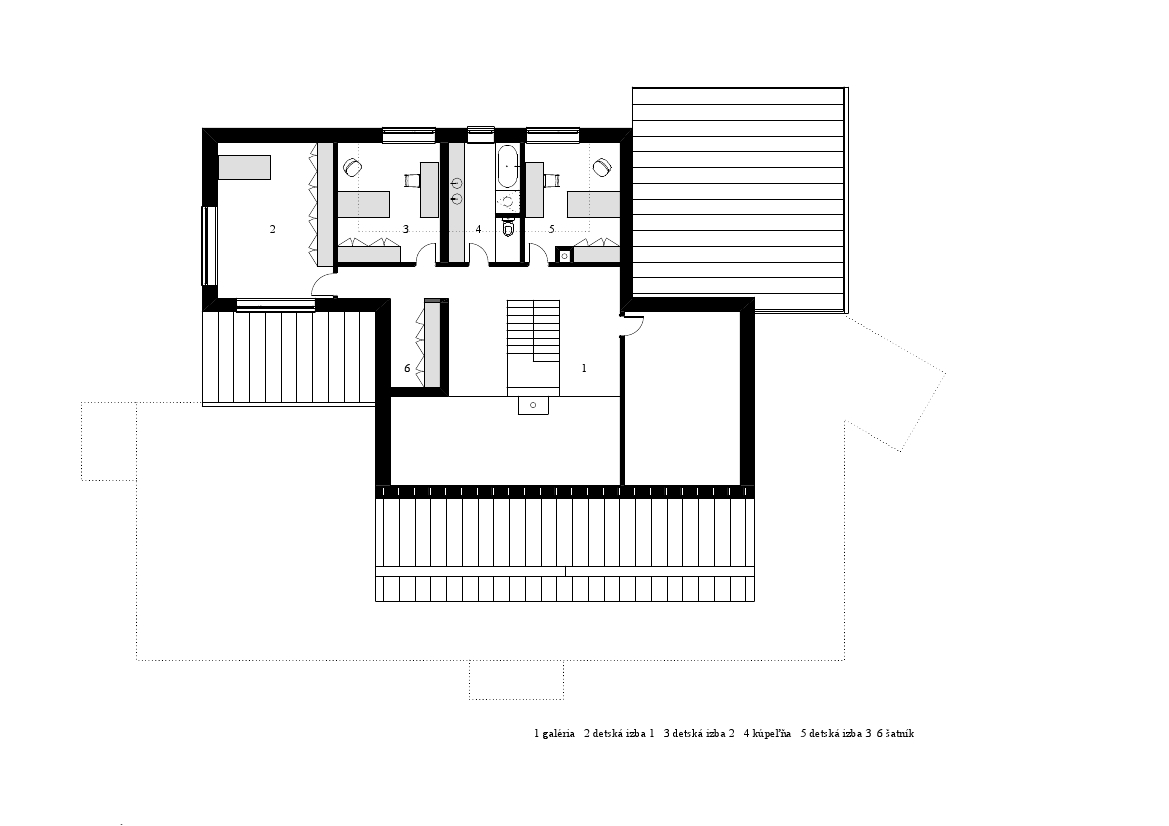
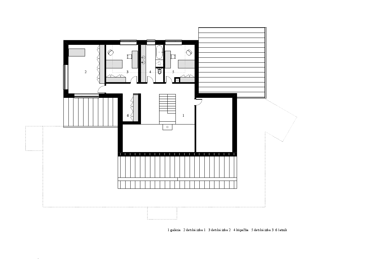
Pôdorys 2.N.P.
Pôdorys 2.N.P.Richard Kráľovič
Pohľad juhovýchodný
Pohľad juhovýchodnýRichard Kráľovič
Pohľad juhozápadný
Pohľad juhozápadnýRichard Kráľovič

Dispozičné riešenie domu je výsledkom racionálneho zhodnotenia plošných a priestorových nárokov klienta v rámci značne rozľahlého a pozdĺžne tvarovaného pozemku. Pridanú hodnotu tvorí scenéria blízkej prírody, z ktorej dom svojím riešením ťaží. Dôraz je kladený na využitie daností územia, orientáciu objektu a využitie preslnenia zo slnečných strán či otvorenosť smerom do exteriérových  zelených plôch.

Forma i tvarovanie domu sledujú potreby jeho užívateľov a miestne podmienky. Dom je jednopodlažný s podkrovím, kde prízemie - či jeho väčšia časť plní prevažne funkciu spoločenskú. Veľkosť domu je držaná na "uzde" korekciou mierky - tektonickým pohybom strešných rovín nad hlavným priestorom, či odľahčujúcou kompozíciou pultových striech nad jednotilivými funkčne odlíšenými traktami. Jedálenská a obytná zóna tu na seba voľne nadväzujú, po celej svojej dĺžke sú lemované veľkými presklenými portálovými otvormi s prístupom na východnú, južnú a západnú terasu. Juhozápadná terasa je prekrytá previsom hlavnej pultovej strechy, ktorá v letných mesiacoch zabezpečuje potrebné tienenie spoločenskej časti domu, v zimných zasa vhodne zvolenou dĺžkou previsu dovoľuje preslnenie domu smerom do interiéru nižším zimným slnkom. 

Schodisková hala
Schodisková halaFoto: Matúš Rendek
Schodisková hala
Schodisková halaFoto: Matúš Rendek
Schodisková hala
Schodisková halaFoto: Matúš Rendek
Foto: Matúš Rendek
Spálňa, prepojenie s kúpeľňou
Spálňa, prepojenie s kúpeľňouFoto: Matúš Rendek

Spoločenská časť prízemia plynulo prechádza do spálňovej časti (hlavnej a hosťovskej spálne), či technologického bloku centrálnym halovým schodiskovým priestorom. Materiálovo je tento stvárnený v paneloch z drevenej dubovej dyhy, materiálovo odlišným prvkom je tu centrálne umiestnené schodisko s bielymi oceľovými schodnicami a preskleným zábradlím. Tento priestor je určujúcim v rámci celkovej hierarchie domu kde, okrem komunikačnej funkcie, umožňuje i komunikáciu vizuálnu a to cez rôzne priehľady a pohľady. V mieste podesty je priestor zvýraznený zaveseným krbom orientovaným do obývacej časti. Schodisko ústi na poschodí do otvorenej galérie dovoľujúcej vizuálne a priestorové prepojenie s nižšou spoločenskou časťou. Vytvorený priestor je vzdušný, otvorený, popritom však stále optimálne oddelený od ostatných priestorov domu.

Miestnosť rodičovskej spálne, ukrytej za celodreveným obkladom halového priestoru, je s exteriérom prepojená cez veľkorysý priestor kúpeľne prepojenej zo spálňou dvojkrídlovými posuvnými dverami.

Poschodie má, okrem schodiskovej haly vyúsťujúcej do galérie, už intímnejší ráz. Nachádzajú sa na ňom izby detí, šatník, kúpeľňa a skladová miestnosť.

Dom je zastrešený už spomínanou kombináciou pultových striech s rôznymi sklonmi, so zalomením pri ich prepojení nad galériou. Tu je umiestnený pozdĺžny svetlík zabezpečujúci príjemné až bazilikálne prirodzené osvetlenie. Prvok presklenia svetlíka skrýva okrem samozrejmého svetlo a tepelno - technického aspektu i podstatný konštrukčný detail, keďže sa jedná o oceľovú priehradovú konštrukciu nesúcu strechu ako nad hlavným prevýšeným obytným priestorom tak i strešnú konštrukciu samotného podkrovia.

Použité materiály sú zvolené striedmo a neutrálne. V exteriéri je použitá biela hladká omietka v kombinácii s betónovou stierkou v blokoch garáže a technologickej časti. Strecha je svetlo sivá, typu Rheinzink, okná sú drevo- hliníkové. Spoločne s interiérovým riešením a konštrukčnými detailmi tak dávajú domu vyvážený a harmonický charakter.

 

Foto: Matúš Rendek
Priehľad, jedálenskú časť
Priehľad, jedálenskú časťFoto: Matúš Rendek
Foto: Matúš Rendek
Foto: Matúš Rendek
Foto: Matúš Rendek
Foto: Matúš Rendek
Foto: Matúš Rendek
Pôvodná
Pôvodná vizualizácia - Roman Dibarbora
Ing. arch. Richard Kráľovič
Vložené
23. august 2019
0
861
Hlavný obsahHlavný obsah
Čakajte prosím