Na podujatí sa predstaví až 37 vystavovateľov - popredných dodávateľov stavebných materiálov a inovácií s prezentáciou...
Novotvar v prostredí alpskej obce.
Hansgrohe - prémiová značka kúpeľňových riešení, ponúka nadčasový dizajn, technickú precíznosť a udržateľné inovácie...
Využite špeciálnu akciu Internorm: okná za minuloročné ceny a hliníkový kryt úplne zadarmo. Ponuka je časovo obmedzená!
Sumarizácia najdôležitejších inovácií, ktoré redefinujúcich využitie tohto energetického zdroja.
AMPHIBIA 3000 GRIP 1.3 od spoločnosti ATRO predstavuje modernú hydroizolačnú technológiu, ktorá spája vysokú odolnosť,...
Ambiciózne plány EK narazili na ekonomické možnosti domácností v jednotlivých členských štátoch –...
IDEA DOOR od spoločnosti JAP prináša do interiéru čistý minimalistický vzhľad vďaka bezrámovému riešeniu a precíznej...
Kontinuita riešenia od vonkajšieho obkladu až po kovania a kľučky.
Nástenné nadomietkové armatúry Vitus sú mimoriadne vhodné pre rýchlu a efektívnu...
Okenné profily z kompozitného materiálu RAU-FIPRO X od spoločnosti Rehau sú v porovnaní s tradičnými plastovými profilmi mnohonásobne...
Najnovší sortiment stolov pre zariadenie interiérov...
Spojenie moderného dizajnu, funkčnosti a svetla do harmonického architektonického prvku.
Kancelárska budova Baumit v slovinskom Trzine prešla premenou na moderné a udržateľné pracovisko. Architekti kládli dôraz...
Mottom šiesteho ročníku on-line konferencie odborníkov Xella Dialóg je Efektívny návrh budov 2025+: zmeny a riešenia

Zámerom architektov Miloša Hájnika a Slavomíry Cichej Kokindovej bola transformácia objektu z posledných dekád XX storočia na komfortný dom, spĺňajúci aktuálne požiadavky kladené na bývanie. Realizáciu v juhovýchodnej časti Prešova charakterizuje materiálovo zjednotený rámec. Dôležitou súčasťou bývania sa stala záhrada a prepojenie obytnej plochy s exteriérom.
Realizáciu bližšie predstavia autori:
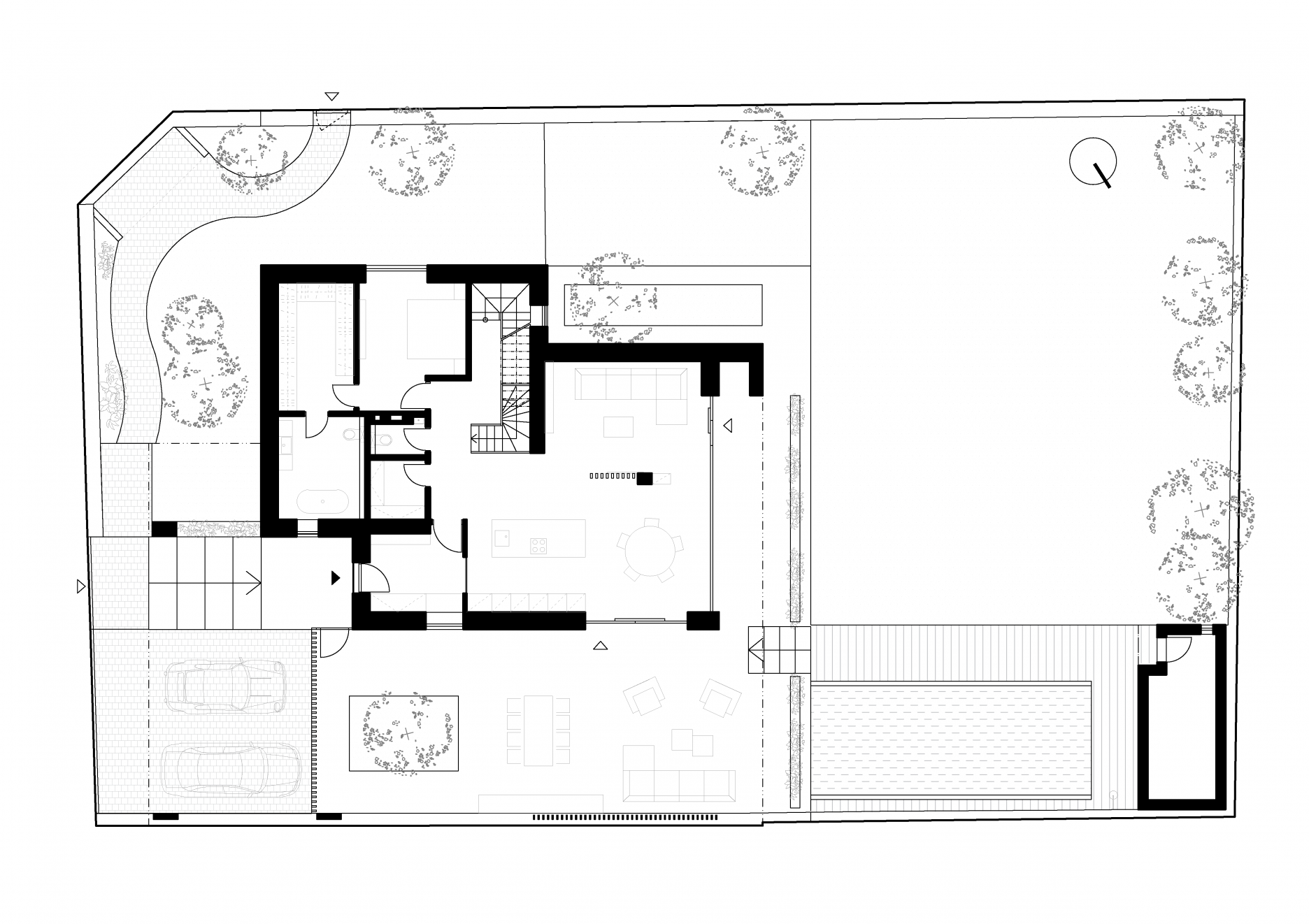
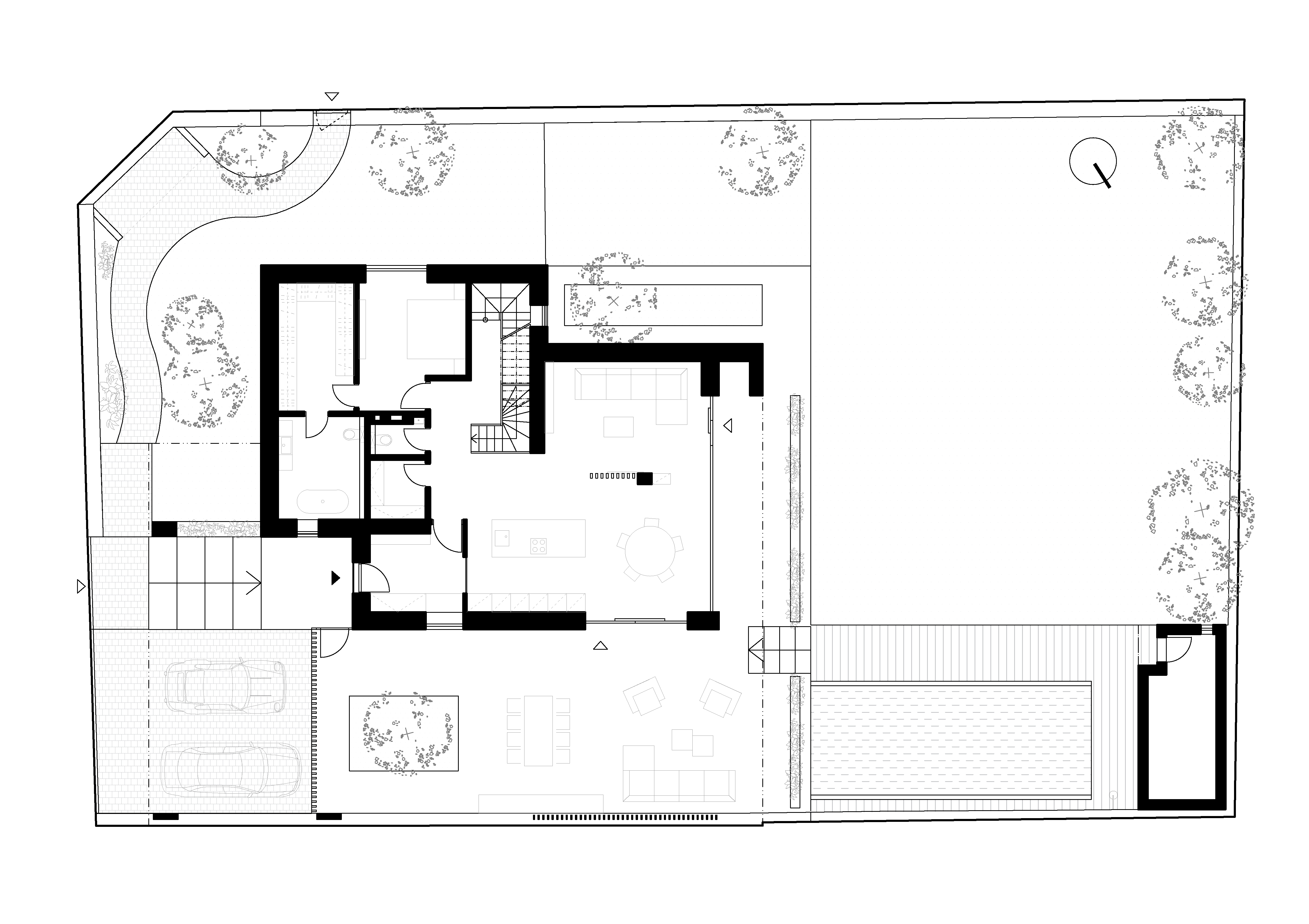
Rekonštrukcia rodinného domu Solivar v Prešove ukazuje premenu kocky z 80. rokov na mestskú rezidenciu pre mladú rodinu. Cieľom bolo prepojenie interiéru hlavnej obytnej časti smerom do záhrady, realizované prostredníctvom vytvorenia krytej terasy, prepojenej s priestormi domu cez rozmerné zasklenie. V podzemnom podlaží sa nachádzajú technické miestnosti a wellness. Na prízemí sa odohráva život rodiny, najvyššie podlažie je určené deťom. Jednoznačnosť hmoty domu umocňuje tehličkový fasádny obklad, doplnený o sivé a hliníkové prvky.
Rodinný dom je koncipovaný ako rekonštrukcia pôvodného objektu z 80. rokov, pri ktorej bola zachovaná väčšia časť hmoty. Stavebnými úpravami, zamurovaním otvorov a prístavbou vznikli funkčné priestory, ktoré výrazne rozšírili komfort bývania.
Exteriér rodinného domu charakterizujú tri materiály a farby. Dominantným prvkom na fasáde a oplotení sú biele / béžové tehličky. Tie dopĺňajú sivé hliníkové rámy okien a časti plota. Pochôdzne plochy tvoria betónové a dláždené povrchy. Všetko vyvažuje zeleň a stromy v záhrade.
Spojitosť medzi interiérom a exteriérom podporuje sivá dlažba. V interiéri prevládajú biele steny. Farebnosť oživuje drevená dyha a kašmírová farba, zvolená ako akcent nábytkových prvkov na mieru. Kompozíciu dopĺňajú farebné kusy nábytku, svietidlá a rastliny. V kúpeľňi nájdeme kombináciu bieleho a čierneho calacatta mramoru. Návrh riešil aj stvárnenie ostatných miestností, ktoré nie sú súčasťou portfólia.