Advertorial

Vytvorte si kúpeľňu snov: dizajnové riešenie od značky hansgrohe

Hansgrohe - prémiová značka kúpeľňových riešení, ponúka nadčasový dizajn, technickú precíznosť a udržateľné inovácie...

Okná Internorm za minuloročné ceny + hliníkový kryt zdarma!

Využite špeciálnu akciu Internorm: okná za minuloročné ceny a hliníkový kryt úplne zadarmo. Ponuka je časovo obmedzená!

Pozvánka na 2. ročník stavebného veľtrhu BigMarket na Slovensku

Na podujatí sa predstaví až 37 vystavovateľov - popredných dodávateľov stavebných materiálov a inovácií s prezentáciou...

Moderné plynové technológie: Efektivita a inovácie pre 21. storočie

Sumarizácia najdôležitejších inovácií, ktoré redefinujúcich využitie tohto energetického zdroja.

Utesňovanie spodných stavieb pomocou hydro-aktívnej fólie AMPHIBIA.

AMPHIBIA 3000 GRIP 1.3 od spoločnosti ATRO predstavuje modernú hydroizolačnú technológiu, ktorá spája vysokú odolnosť,...

Dekarbonizácia individuálneho vykurovania domácností – Green Deal evolučne a nie revolučne

Ambiciózne plány EK narazili na ekonomické možnosti domácností v jednotlivých členských štátoch –...

Minimalistické dvere IDEA – technická precíznosť a čistota prevedenia

IDEA DOOR od spoločnosti JAP prináša do interiéru čistý minimalistický vzhľad vďaka bezrámovému riešeniu a precíznej...

Dom s výhľadom na údolie, Dlouhý Most (ČR)

Kontinuita riešenia od vonkajšieho obkladu až po kovania a kľučky.

Schell Vitus – osvedčené riešenie pre sprchy a umývadlá vo verejnom sektore s viac ako desaťročnou tradíciou

Nástenné nadomietkové armatúry Vitus sú mimoriadne vhodné pre rýchlu a efektívnu...

Kompozitné okná predstavujú súčasnosť a budúcnosť

Okenné profily z kompozitného materiálu RAU-FIPRO X od spoločnosti Rehau sú v porovnaní s tradičnými plastovými profilmi mnohonásobne...

Myotis - stoly 2025

Najnovší sortiment stolov pre zariadenie interiérov...

Priemyselné sklenené priečky Dorsis Digero: svetelné rozhranie pre moderné interiéry

Spojenie moderného dizajnu, funkčnosti a svetla do harmonického architektonického prvku.

Význam prirodzeného svetla pre moderné a flexibilné pracovné prostredie

Kancelárska budova Baumit v slovinskom Trzine prešla premenou na moderné a udržateľné pracovisko. Architekti kládli dôraz...

Konferencia Xella Dialóg predstaví novinky a trendy v stavebníctve

Mottom šiesteho ročníku on-line konferencie odborníkov Xella Dialóg je Efektívny návrh budov 2025+: zmeny a riešenia

Murovací robot WLTR stavia svoj prvý dom na Slovensku

Robot WLTR predstavuje moderný prístup k murovaným konštrukciám. Vďaka automatizácii dokáže rýchlo, presne a bezpečne realizovať...

Rodinný dom, Štiřín

Stále aj víkendové bývanie pod jednou strechou.
Diela
Red 402.03.2018
6930+3
Rodinný dom, Štiřín
Autori: Ing. arch. Eva Heyworth, Ing. arch. Martina Frydrychová BařinováSpolupráca: Ing. arch. Magdalena BodlákováInvestor: Súkromná osobaPlocha pozemku: 1854 m2Zastavaná plocha: 353,7m2Podlažná plocha: 425,6 m2 Obostavaný objem: 2026 m3Návrh: 2013 - 2017Realizácia: 2015 - 2017Adresa: Štiřín, Česká republikaPublikované: 2. marec 2018

Dielo architektky:

Klientka nás oslovila po přečtení článku v časopise v době, kdy již měla zpracovány dvě studie, podanou žádost o územní rozhodnutí, ale nebyla si kvalitou projektů jistá. Požadavek klienta byl umírněný dům pro manželé, oddělená část domu pro návštěvy dětí s rodinami, sauna a později byl přidán i venkovní bazén.  Stavebním úřadem byla požadovaná maximální výška hřebene 8m a  také byl dán povolený tvar střechy - sedlová případně pultová.

Foto: Iveta Kopicová
Situácia
Situáciaheyworth studio-architekti

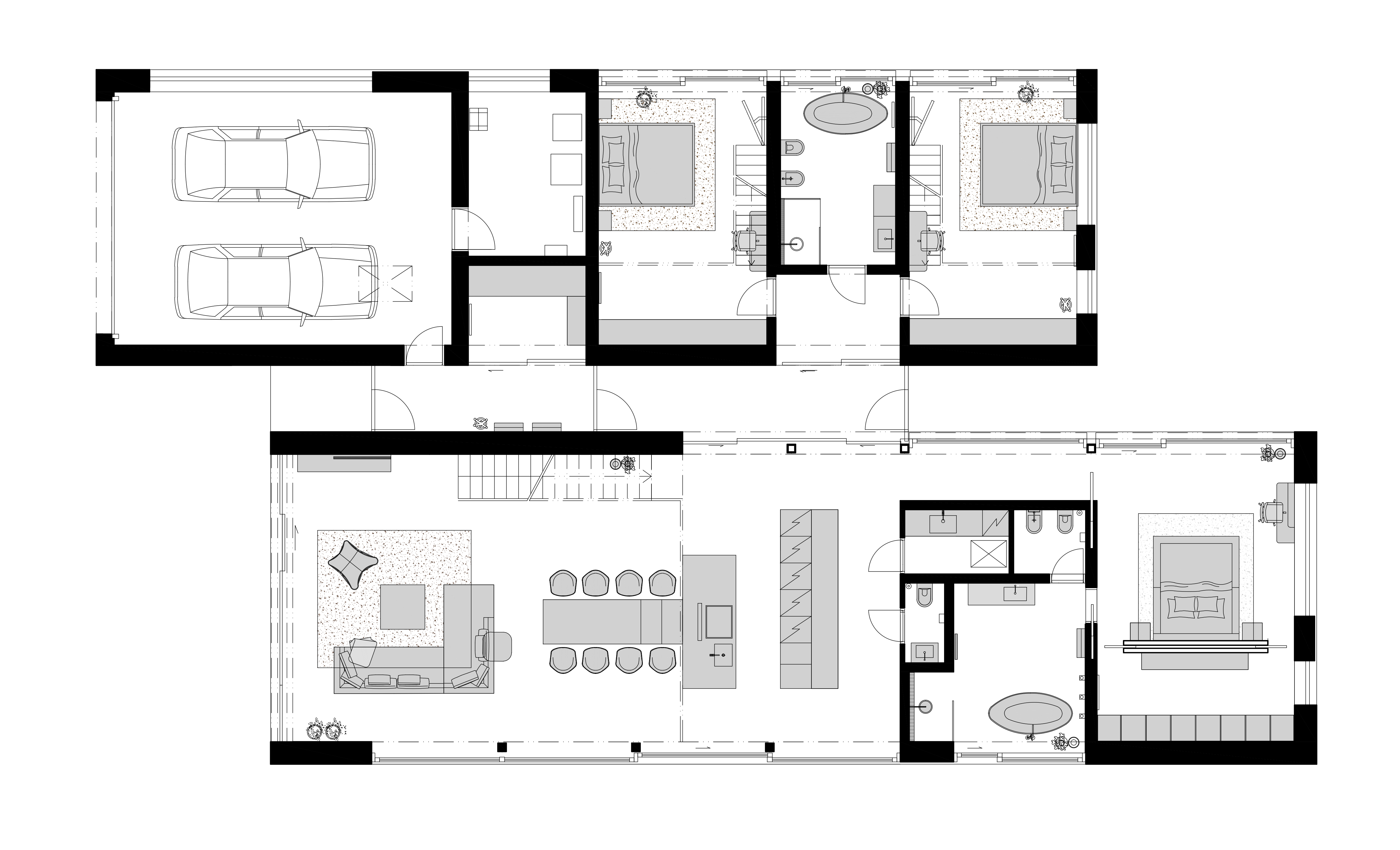
Objekt je dispozičně i kompozičně navržen jako trojtrakt. Východní a západní trakt tvoří samostatné hmoty s pultovou střechou, propojené středním spojovacím prostorem – halou, zastřešenou pultovým světlíkem. Západní nižší trakt je půdorysně mírně předsunut před hmotu východního traktu tak, že osoba přicházející od vstupní brány nevnímá výškový rozdíl hmot - opticky hmoty působí jako stejně vysoké. Toto předsunutí, také napomohlo k vytvoření útulnějšího prostoru pro jižní a severní terasu, posunutí garáže blíže ke komunikaci a prosvětlení místností v soukromé části východního traktu. Prosklenou spojovací halou, která je prodloužením přístupového chodníku, je umožněn průhled do prostoru zahrady za domem. Štítová stěna východního traktu je prosklená, velké plochy oken jsou výrazným prvkem východní i západní fasády. Fasáda východního traktu byla v návrhu obložena fasádními deskami rezavé barvy, ale na přání klienta byla změněna na omítku v podobném tónu vybraného obkladu. Západní trakt je dle původního návrhu v bílé omítce. Nenápadná plechová střešní krytina je skryta za střešní atikou domu.

Foto: Iveta Kopicová
Foto: Iveta Kopicová
Foto: Iveta Kopicová
Foto: Iveta Kopicová
Foto: Iveta Kopicová

Dispoziční řešení:

Východní hmota domu je určena pro potřeby manželského páru a západní hmota pak pro jejich dospělé děti s rodinami, které obývají dům jen u příležitostí návštěv.

Hlavním komunikačním prostorem je střední chodba zastřešená světlíkem, která oba trakty jak hmotově, tak komunikačně spojuje. Ve východním traktu se nachází kuchyň, jídelna, obývací prostor (na celou výšku objektu) se schodištěm do 2.NP (podkroví). V 1.NP se dále nachází WC, koupelna, prádelna a ložnice se šatnou. Po schodišti se vstupuje na galerii (pracovna), z ní je přístupná relaxační zóna (sauna, fittness, sprcha, wc, úložný prostor).

V západním traktu je situována garáž pro 2 osobní auta, dále technická místnost, šatna, předsíň, 2 ložnice a koupelna. Nad garáží a technickou místností je úložný prostor, přístupný po výklopném schodišti. Ložnice mají interiérovou vestavbu – galerii-spaní pro děti hostů. Dům je vybaven venkovními žaluziemi a je vytápěn tepelným čerpadlem do podlahového topení.

Pôdorys 1. NP
Pôdorys 1. NPheyworth studio-architekti
Pôdorys 2. NP
Pôdorys 2. NPheyworth studio-architekti

Objekt je založen plošně na základových pasech se základovou spárou v písčitých jílech a nad hladinou podzemní vody.

Svislé nosné konstrukce jsou tvořeny železobetonovými stěnami, v místech průběžných oken s ocelovým nadpražím + plech, podepřeným ocelovými sloupky. Příčné stěny jsou zděné z Porothermu.

Rez
Rezheyworth studio-architekti

Dominantou převýšeného obývacího pokoje je původně fotografická koláž Antonia Mory namalovaná na stěnu 6x12m Ondřejem Laštůvkou.

Jednoramenná ocelová schodiště jsou opatřena skleněným zábradlím.

Foto: Iveta Kopicová
Foto: Iveta Kopicová
Foto: Iveta Kopicová
Foto: Iveta Kopicová
Foto: Iveta Kopicová
Foto: Iveta Kopicová
Foto: Iveta Kopicová
Foto: Iveta Kopicová

Poloha diela

Ing. arch. Eva Heyworth
Ing. arch. Martina Frydrychová Bařinová
Vložené
23. október 2017
0
693
Hlavný obsahHlavný obsah
Čakajte prosím