Advertorial

Pozvánka na 2. ročník stavebného veľtrhu BigMarket na Slovensku

Na podujatí sa predstaví až 37 vystavovateľov - popredných dodávateľov stavebných materiálov a inovácií s prezentáciou...

Hotel Hirschen Spa House, Rakúsko

Novotvar v prostredí alpskej obce.

Vytvorte si kúpeľňu snov: dizajnové riešenie od značky hansgrohe

Hansgrohe - prémiová značka kúpeľňových riešení, ponúka nadčasový dizajn, technickú precíznosť a udržateľné inovácie...

Okná Internorm za minuloročné ceny + hliníkový kryt zdarma!

Využite špeciálnu akciu Internorm: okná za minuloročné ceny a hliníkový kryt úplne zadarmo. Ponuka je časovo obmedzená!

Moderné plynové technológie: Efektivita a inovácie pre 21. storočie

Sumarizácia najdôležitejších inovácií, ktoré redefinujúcich využitie tohto energetického zdroja.

Utesňovanie spodných stavieb pomocou hydro-aktívnej fólie AMPHIBIA.

AMPHIBIA 3000 GRIP 1.3 od spoločnosti ATRO predstavuje modernú hydroizolačnú technológiu, ktorá spája vysokú odolnosť,...

Dekarbonizácia individuálneho vykurovania domácností – Green Deal evolučne a nie revolučne

Ambiciózne plány EK narazili na ekonomické možnosti domácností v jednotlivých členských štátoch –...

Minimalistické dvere IDEA – technická precíznosť a čistota prevedenia

IDEA DOOR od spoločnosti JAP prináša do interiéru čistý minimalistický vzhľad vďaka bezrámovému riešeniu a precíznej...

Dom s výhľadom na údolie, Dlouhý Most (ČR)

Kontinuita riešenia od vonkajšieho obkladu až po kovania a kľučky.

Schell Vitus – osvedčené riešenie pre sprchy a umývadlá vo verejnom sektore s viac ako desaťročnou tradíciou

Nástenné nadomietkové armatúry Vitus sú mimoriadne vhodné pre rýchlu a efektívnu...

Kompozitné okná predstavujú súčasnosť a budúcnosť

Okenné profily z kompozitného materiálu RAU-FIPRO X od spoločnosti Rehau sú v porovnaní s tradičnými plastovými profilmi mnohonásobne...

Myotis - stoly 2025

Najnovší sortiment stolov pre zariadenie interiérov...

Priemyselné sklenené priečky Dorsis Digero: svetelné rozhranie pre moderné interiéry

Spojenie moderného dizajnu, funkčnosti a svetla do harmonického architektonického prvku.

Význam prirodzeného svetla pre moderné a flexibilné pracovné prostredie

Kancelárska budova Baumit v slovinskom Trzine prešla premenou na moderné a udržateľné pracovisko. Architekti kládli dôraz...

Konferencia Xella Dialóg predstaví novinky a trendy v stavebníctve

Mottom šiesteho ročníku on-line konferencie odborníkov Xella Dialóg je Efektívny návrh budov 2025+: zmeny a riešenia

Tančiareň, Bratislava

Realizovaný objekt Tančiarne je úzko spätý so svojím okolím, fenoménom Starej Dúbravky s drobnou, vrstvenou mierkou rôzne veľkých rodinných domov a priľahlých záhrad, prírodným lesným kontextom a blízkym kostolom, všetko dôležitými kulisami návrhu.
Diela
Richard Kráľovič01.04.2025
10560+21
Tančiareň, Bratislava
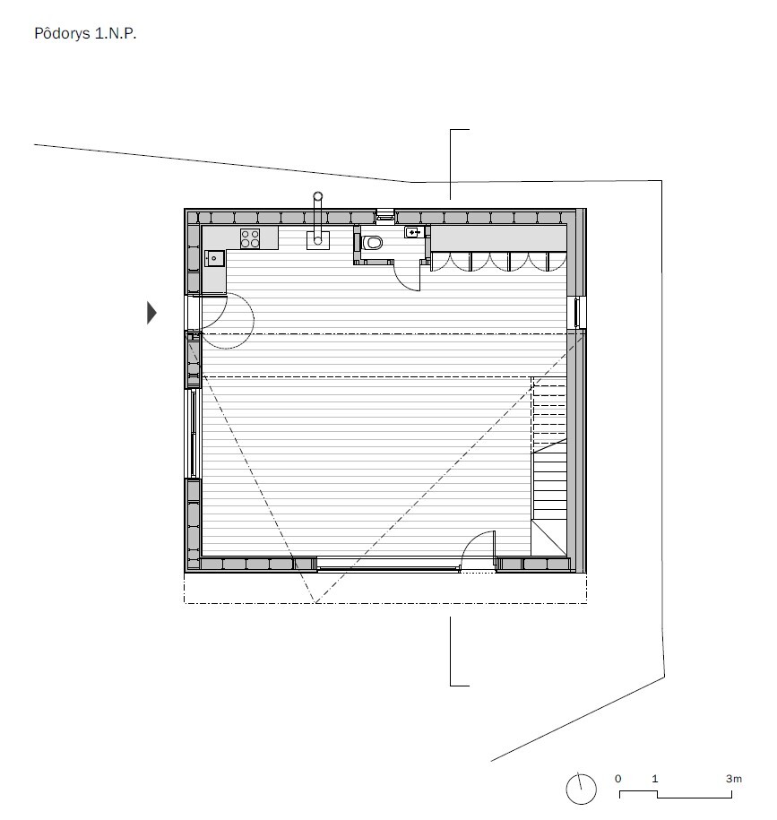
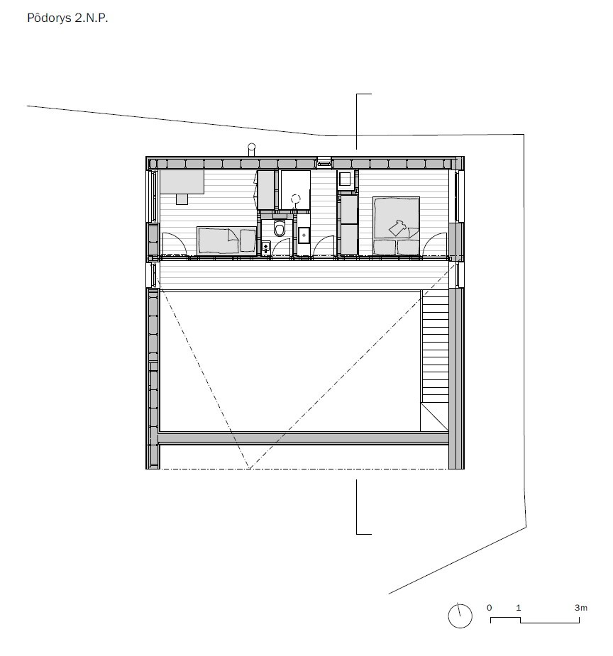
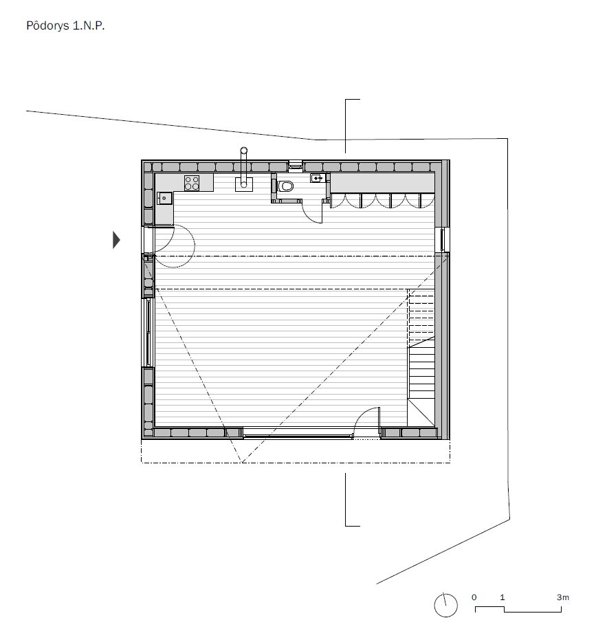
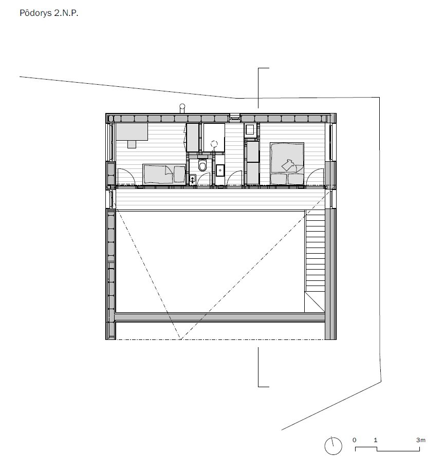
Autori: Ing. arch. Richard Kráľovič, Ing. arch. Roman TalašSpolupráca: Ateliér SIEBERT + TALAŠ, spol. s r.o.Plocha pozemku: 391 m2Zastavaná plocha: 105 m2Podlažná plocha: 121.5 m2Obostavaný objem: 498 m3Návrh: 2011 - 2016Realizácia: 2016 - 2024Adresa: Strmé Sady , Bratislava, SlovenskoPublikované: 1. apríl 2025

Projekt je zhmotnením predstavy klientov - manželského páru. Rozšírenie obytnej funkcie priľahlého rodinného domu, a to vytvorením separátneho priestoru pre spoločné záujmy ako tanec, fotografovanie, či stretnutia s priateľmi.

"Tančiareň" vďačí za svoju existenciu vlastne hlavne tomuto detailu – náhodnému stretnutiu pri tanci, pri ktorom sa manželský pár pred rokmi spoznal. Vytvorenie priestoru pre ďalšie spoločné rozvíjanie tohto záujmu sa tak dávnejšie stalo ich dlhodobým snom, ktorý sa dnes stáva skutočnosťou.

Objekt tančiarne je navrhnutý ako flexibilná konštrukčná schránka, ktorá umožňuje rôzne využitie v závislosti od budúcich potrieb. Návrh kladie dôraz na variabilitu priestoru a jeho prispôsobivosť. Prízemie tvorí otvorený priestor s rozmermi 10 × 9 metrov, bez akýchkoľvek stavebných prekážok, presvetlený južným a juhozápadným slnkom. Na poschodí, dostupnom cez galériu nesenú priehradovou konštrukciou, sa nachádzajú dve spálne so sociálnym zázemím, poskytujúce komfort a oddych pre obyvateľov domu aj ich hostí.

© Matej Hakár
© Matej Hakár
© Matej Hakár
© Matej Hakár
© Matej Hakár

Napriek tomu, že je objekt stavebne založený na najstaršom a najznámejšom stavebnom materiáli - dreve, svojím hmotovým, priestorovým vyznením a materiálovým riešením nie je bežným príkladom drevostavby. Špecifické konštrukčné riešenie montovanej drevenej konštrukcie umožnilo vytvorenie atypického vnútorného priestoru. Okrem iného k tomu prispieva aj tvarovanie geometrie strešnej roviny - jemné zalomenie, viditeľného zvnútra aj na vonok.

Pridanou hodnotou zvolenej priestorovej geometrie je ponuka rôznorodých interiérových pohľadov a začlenenie novotvaru do urbanistického a prírodného kontextu miesta. Tančiareň na seba síce svojou tektonikou okoloidúcich nenásilne upozorní, tvarovaním strešných rovín však nezacloní výhľad na blízky kostol. 

© Matej Hakár
© Matej Hakár
© Matej Hakár
© Matej Hakár
© Matej Hakár

Dom komunikuje s okolím aj prostredníctvom presklených plôch, orientovaných ako do záhradnej časti, tak i smerom do ulice. Priestor nie je "zabetónovaným", nedostupným pozemkom, ale dovoľuje nahliadnuť do svojho vnútra i okoloidúcim. Na poschodí zas ponúka obyvateľom domu výhľad na Starú Dúbravku, alebo na masív Malých Karpát spolu s neodmysliteľnou vežou na Kamzíku.

Použitie prírodných materiálov ďalej umocňuje atmosféru priestoru – jemné tóny interiérových obkladov zo smrekovej biodosky, drevené parkety a zvonku horizontálne vrstvený termo borovicový obklad, ktorý vytvára dynamický rytmus fasády. Tieto prvky spoločne definujú charakter objektu ako miesta, ktoré má prinášať potešenie a kde sa ľudia cítia príjemne a prirodzene.

Ďakujeme investorom za príležitosť a dôveru. Vznikol dom, ktorý im a nám robí radosť.

© Matej Hakár
© Matej Hakár
© Matej Hakár
© Matej Hakár
© Matej Hakár
© Matej Hakár
Detail fasádneho obkladu
Detail fasádneho obkladuRichard Kráľovič
Úvodná scéna, 2016
Úvodná scéna, 2016Richard Kráľovič

Fotografie z interiéru pred dokončením realizácie:

Foto: DYNAMEET visual studio
Foto: DYNAMEET visual studio
Koncepčné skice, 2011
Koncepčné skice, 2011Richard Kráľovič
Skica
SkicaRichard Kráľovič
Richard Kráľovič
Richard Kráľovič
Richard Kráľovič
Richard Kráľovič
Richard Kráľovič
Richard Kráľovič
Richard Kráľovič

Použité materiály a riešenia: 

Strešná krytina PREFA Prefalz v odtieni svetlošedá P.10 s povrchovou úpravou hladká od spoločnosti Prefa Slovensko

Poloha diela

Ing. arch. Richard Kráľovič
Ing. arch. Roman Talaš

Súvisiace články

Vložené
3. júl 2024
0
1056
Hlavný obsahHlavný obsah
Čakajte prosím