IDEA DOOR od spoločnosti JAP prináša do interiéru čistý minimalistický vzhľad vďaka bezrámovému riešeniu a precíznej...
Nástenné nadomietkové armatúry Vitus sú mimoriadne vhodné pre rýchlu a efektívnu...
Okenné profily z kompozitného materiálu RAU-FIPRO X od spoločnosti Rehau sú v porovnaní s tradičnými plastovými profilmi mnohonásobne...
Najnovší sortiment stolov pre zariadenie interiérov...
Spojenie moderného dizajnu, funkčnosti a svetla do harmonického architektonického prvku.
Kancelárska budova Baumit v slovinskom Trzine prešla premenou na moderné a udržateľné pracovisko. Architekti kládli dôraz...
Mottom šiesteho ročníku on-line konferencie odborníkov Xella Dialóg je Efektívny návrh budov 2025+: zmeny a riešenia
Robot WLTR predstavuje moderný prístup k murovaným konštrukciám. Vďaka automatizácii dokáže rýchlo, presne a bezpečne realizovať...
Okrem bezpečnosti majú okná aj elegantný vzhľad, pretože nie sú viditeľné žiadne uzamykacie časti kovania.
Dvere MASTER v skrytej zárubni AKTIVE je možné vyrobiť až do výšky 3 700 mm
Internorm stavia na energetickú efektívnosť a inteligentné tieniace riešenia.
Slovensko vo výbere zastupuje šesť realizácií.
Spoločnosť Internorm odteraz stavia na novej variante tepelnoizolačného skla od AGC, ktorá v produkcii ročne ušetrí 10...
Jubilejný 20. ročník prestížnej medzinárodnej súťaže pre študentov architektúry priniesol...
Otočné a posuvné dvere MASTER od podlahy až po strop, ponúkajú mimoriadnu variabilitu výšky, materiálu a zladenia so skrytými...

Z hodnotenia poroty: "Rodinný dům je dělán na míru životnímu stylu klienta. Pro zámožné klienty je obtížné, aby při výstavbě svých nemovitostí zůstali racionální a skromní – při svých širokých možnostech. V případě odměněného projektu se objednávka a dodržovaná disciplína na straně klienta a dokonalost a přesnost na straně architekta dokonale potkaly. Vzájemná existence těchto dvou faktorů vyústila v prostředí tak vysoké třídy, které bylo oceněno čestným uznáním poroty."
Pozemok sa nachádza v zastavanej časti obce Průhonice (Praha - západ). Na pozemku sa pôvodne nachádzal dom zo začiatku 90. rokov. „Původní záměr klienta bylo dům z počátku 90. let přestavět, ale během přípravy konceptu jsme od této myšlenky upustili. Díky tomu se nám podařilo vytvořit rodinný dům, který je v nejvyšší možné míře propojen s okolní zelení a dosahuje vysoké úrovně vnitřního komfortu a energetické účinnosti,“ uviedol Radek Teichman.
Pozemok je orientovaný svojou južnou stranou do ulice a aj napriek nízkej frekventovanosti komunikácie bolo potrebné vytvoriť vizuálnu bariéru, ktorá by zaručovala úplné súkromie obyvateľov. V juhovýchodnej časti pozemku túto funkciu plní garáž.
Dom je navrhnutý ako dvojpodlažný so zapusteným suterénom. Vstupná fasáda domu je charakteristická výraznými líniami presklených plôch, balkóna a presahom strechy. V prízemí bolo použitím bezrámového zasklenia zaistené prepojenie so záhradou a terasou, ktorá prebieha po celej dĺžke domu. Prehrievaniu zamedzujú presahy jednotlivých poschodí. Severná fasáda je členená mozaikou štvorcových okien, rozmiestnených na základe funkčného členenie interiéru.
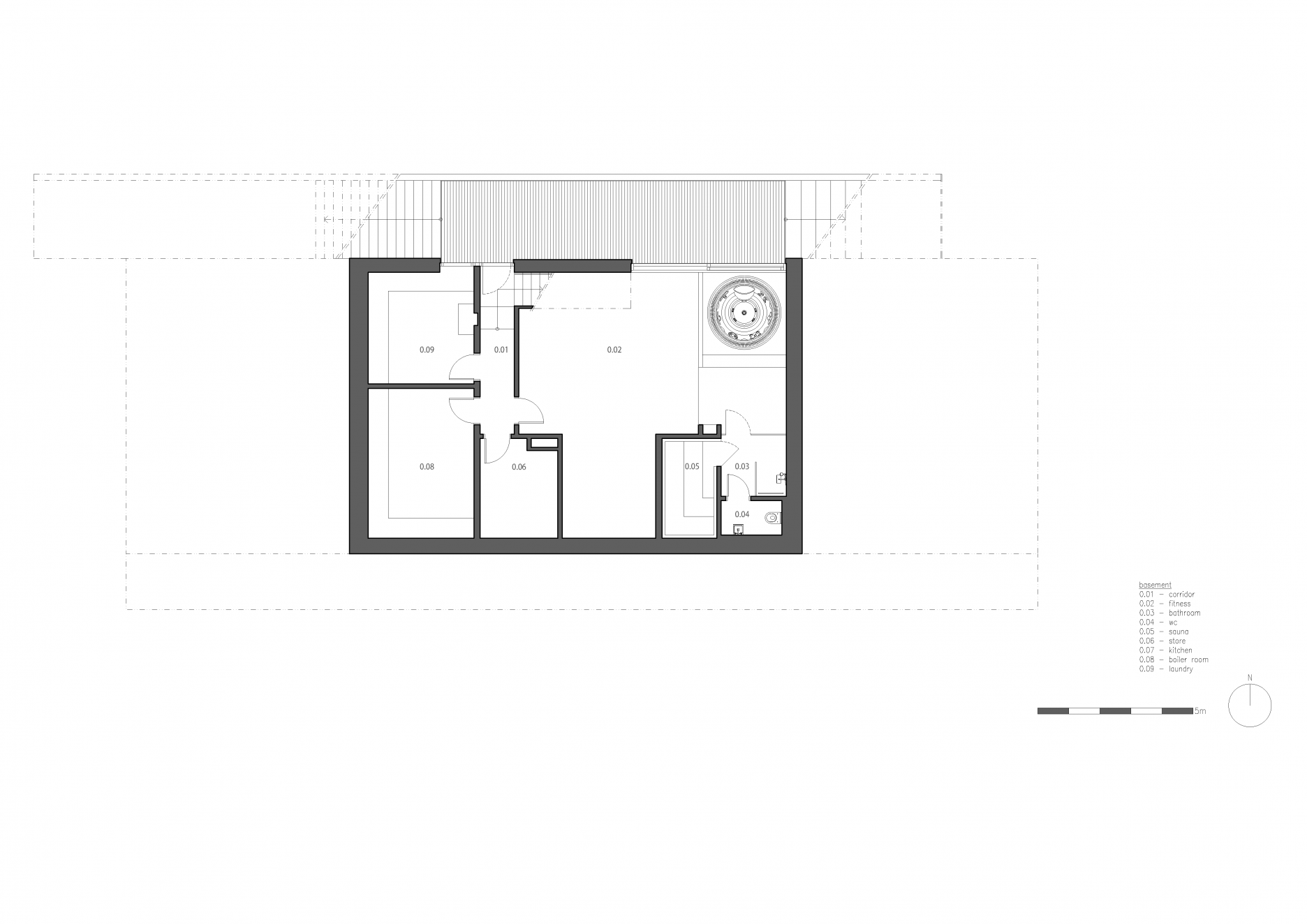
Suterén sa otvára do súkromného anglického dvorčeku, ktorý slúži na oddych po saunovaní.
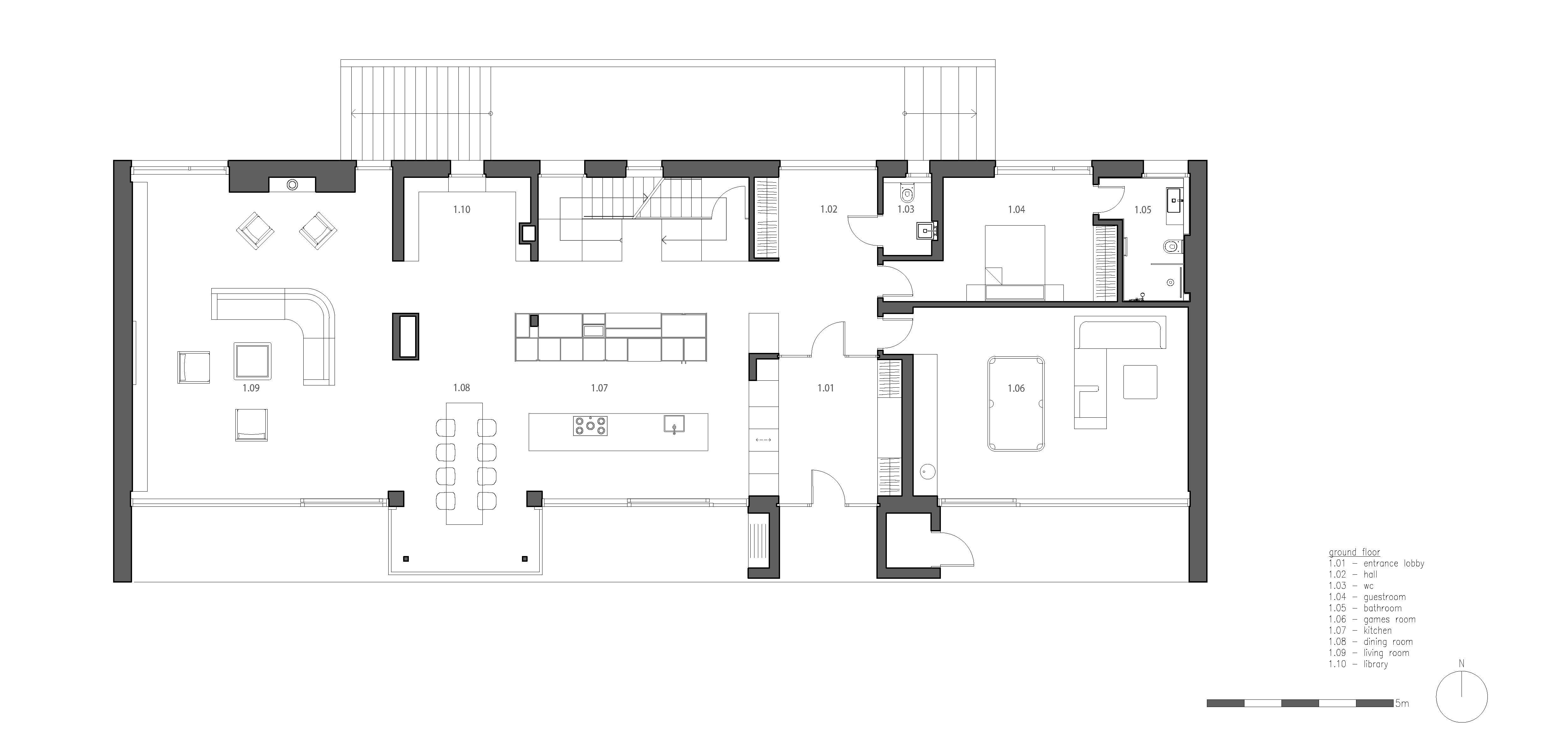
Dispozícia prízemia je veľkorysá, dôraz bol kladený na voľný priestor a množstvo prirodzeného svetla. Jedálenský stôl je vysunutý do preskleného výklenku, presvetlenie zabezpečuje stropný svetlík, ktorý je v presahu strechy zvýraznený otvorom s betónovými rebrami. Časť domu určená pre hostí obsahuje priestrannú herňu a samostatnú izbu s kúpeľňou. Schodisková hala minimalistického rázu prepája obe nadzemné podlažia so suterénom, kde sa nachádzajú miestnosti pre relax a technické zázemie.
Horné poschodie je rozdelené na dve nezávislé zóny. Hlavná spálňa má pridruženú šatňu, kúpeľňu a pracovňu, v zóne pre deti sa nachádzajú tri izby so spoločnou šatňou a dvoma kúpeľňami.
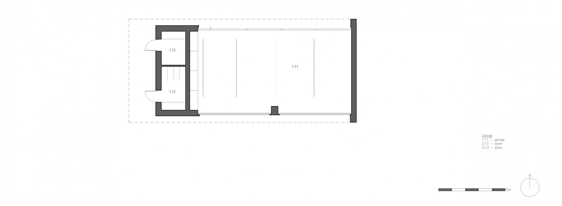
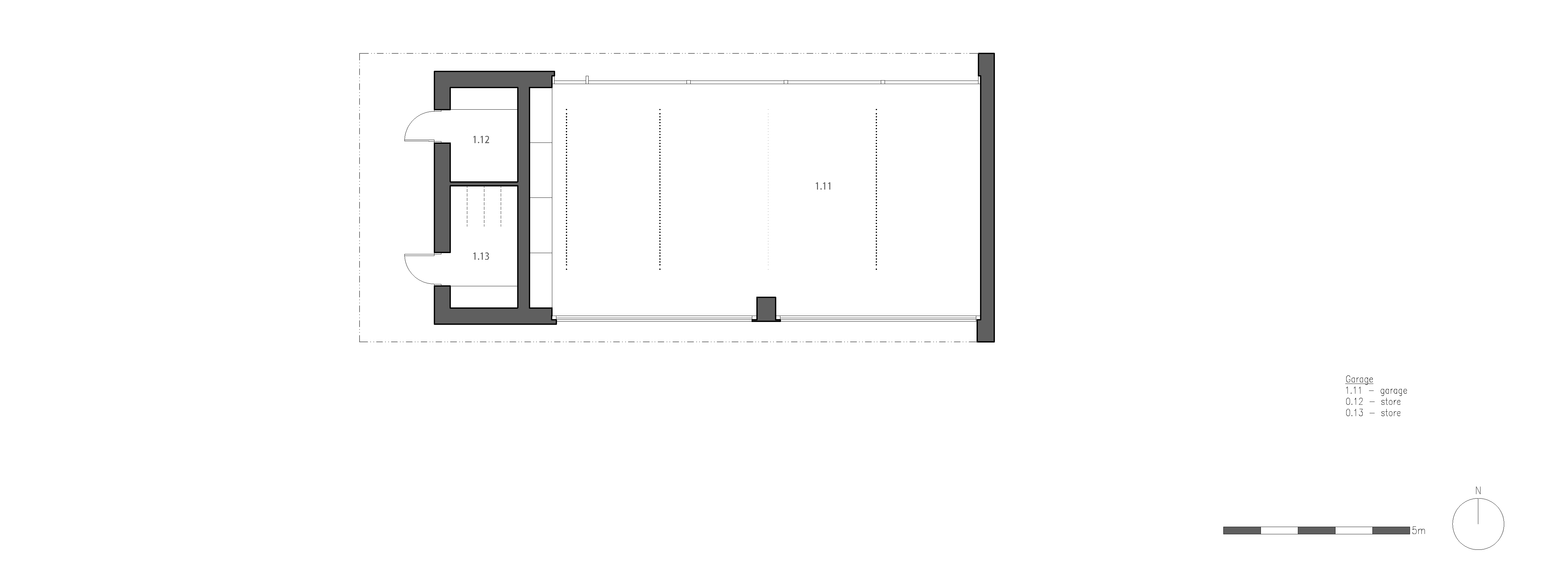
Garáž okrem štyroch parkovacích miest poskytuje priestor aj pre skladovanie záhradnej techniky a bicyklov.
Strecha garáže je vykonzolovaniá a vytvára krytý priechod od vstupnej bránky k hlavnému vchodu. Severná fasáda garáže je presklená, čo poskytuje zážitok pri príchode autom a zároveň sa tým opticky prehlbuje priestor medzi domom a garážou.
Záhrada bola navrhnutá v spolupráci so záhradnou architektkou a je rozdelená do funkčných zón. Rozmiestnenie a tvary záhonov vychádzjú z racionálnej architektúry domu. Strecha garáže je vysadená extenzívnu zeleňou, stáva sa tak súčasťou záhrady pri pohľade z horného poschodia.
Návrh interiéru vznikol v súbehu s projektom domu a vznikal v úzkej spolupráci s klientom. V obytných miestnostiach prevažuje podlahová krytina z bieleného duba, obklady a dlažby kúpeľní sú obložené carrarským mramorom, vstavaný nábytok je vyrobený z lakovaných MDF dosiek potiahnutých voskovanou dýhou. V časti interiéru boli použité stropy z pohľadového betónu, v schodiskovej hale sú použité ako podhľad sklenené panely.
Vila je vybavená inteligentným systémom elektroinštalácie, ktorý umožňuje kompletné ovládanie domu z mobilných zariadení aj stacionárnych dotykových panelov rozmiestnených po dome. Majiteľovi umožňuje pohodlnú kontrolu nad osvetlením, tienením, ovládaním audia a videa, vykurovaním a zabezpečením domu.
podklady: Jestico + Whiles , Crest Communications