Na podujatí sa predstaví až 37 vystavovateľov - popredných dodávateľov stavebných materiálov a inovácií s prezentáciou...
Novotvar v prostredí alpskej obce.
Hansgrohe - prémiová značka kúpeľňových riešení, ponúka nadčasový dizajn, technickú precíznosť a udržateľné inovácie...
Využite špeciálnu akciu Internorm: okná za minuloročné ceny a hliníkový kryt úplne zadarmo. Ponuka je časovo obmedzená!
Sumarizácia najdôležitejších inovácií, ktoré redefinujúcich využitie tohto energetického zdroja.
AMPHIBIA 3000 GRIP 1.3 od spoločnosti ATRO predstavuje modernú hydroizolačnú technológiu, ktorá spája vysokú odolnosť,...
Ambiciózne plány EK narazili na ekonomické možnosti domácností v jednotlivých členských štátoch –...
IDEA DOOR od spoločnosti JAP prináša do interiéru čistý minimalistický vzhľad vďaka bezrámovému riešeniu a precíznej...
Kontinuita riešenia od vonkajšieho obkladu až po kovania a kľučky.
Nástenné nadomietkové armatúry Vitus sú mimoriadne vhodné pre rýchlu a efektívnu...
Okenné profily z kompozitného materiálu RAU-FIPRO X od spoločnosti Rehau sú v porovnaní s tradičnými plastovými profilmi mnohonásobne...
Najnovší sortiment stolov pre zariadenie interiérov...
Spojenie moderného dizajnu, funkčnosti a svetla do harmonického architektonického prvku.
Kancelárska budova Baumit v slovinskom Trzine prešla premenou na moderné a udržateľné pracovisko. Architekti kládli dôraz...
Mottom šiesteho ročníku on-line konferencie odborníkov Xella Dialóg je Efektívny návrh budov 2025+: zmeny a riešenia

Cenu Dušana Jurkoviča udelil Spolok architektov Slovenska už po 53. krát. Architektonická cena s najväčšou tradíciou u nás sa udeľuje autorovi alebo autorskému kolektívu za dielo, ktoré prispieva k zvýšeniu úrovne a prestíže architektonickej tvorby na Slovensku.
Porota konštatovala veľmi vyrovnanú úroveň a neobyčajnú rôznorodosť tém a typologických druhov. O dobrom smerovaní slovenskej architektúry vypovedá podľa prihlásených prác, okrem iného aj fakt, že sa stále viac pozornosti venuje verejnému priestoru, kultúrnemu dedičstvu, či hľadaniu a overovaniu netradičných foriem riešení. Diskusia poroty po dvojdennej obhliadke vybraných ôsmich diel preto nebola iba o ich kvalite, porota zvažovala aj to, ako výsledné dielo a často aj vlastný proces jeho vzniku, prispieva k hodnotovej orientácii spoločnosti.
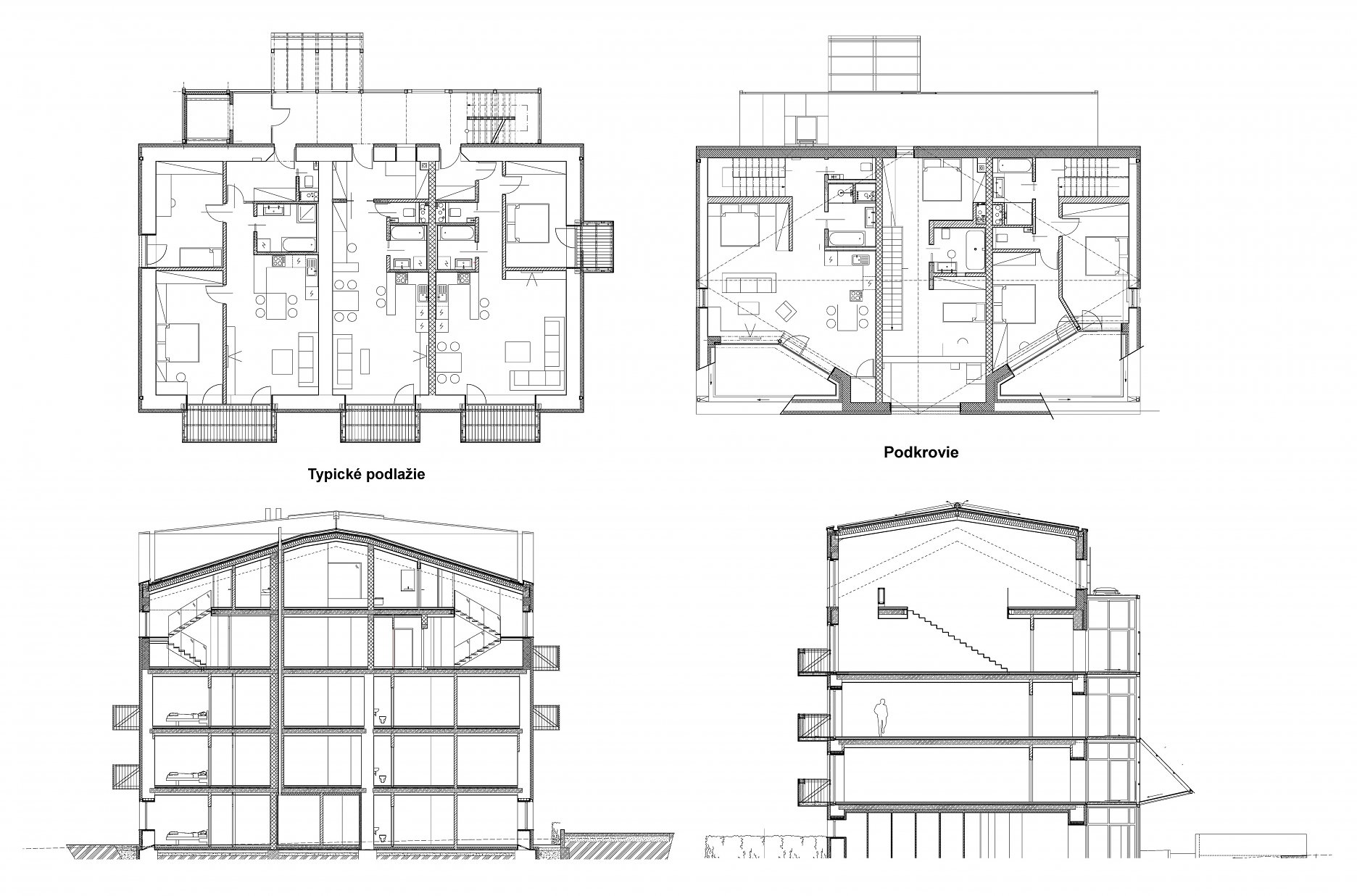
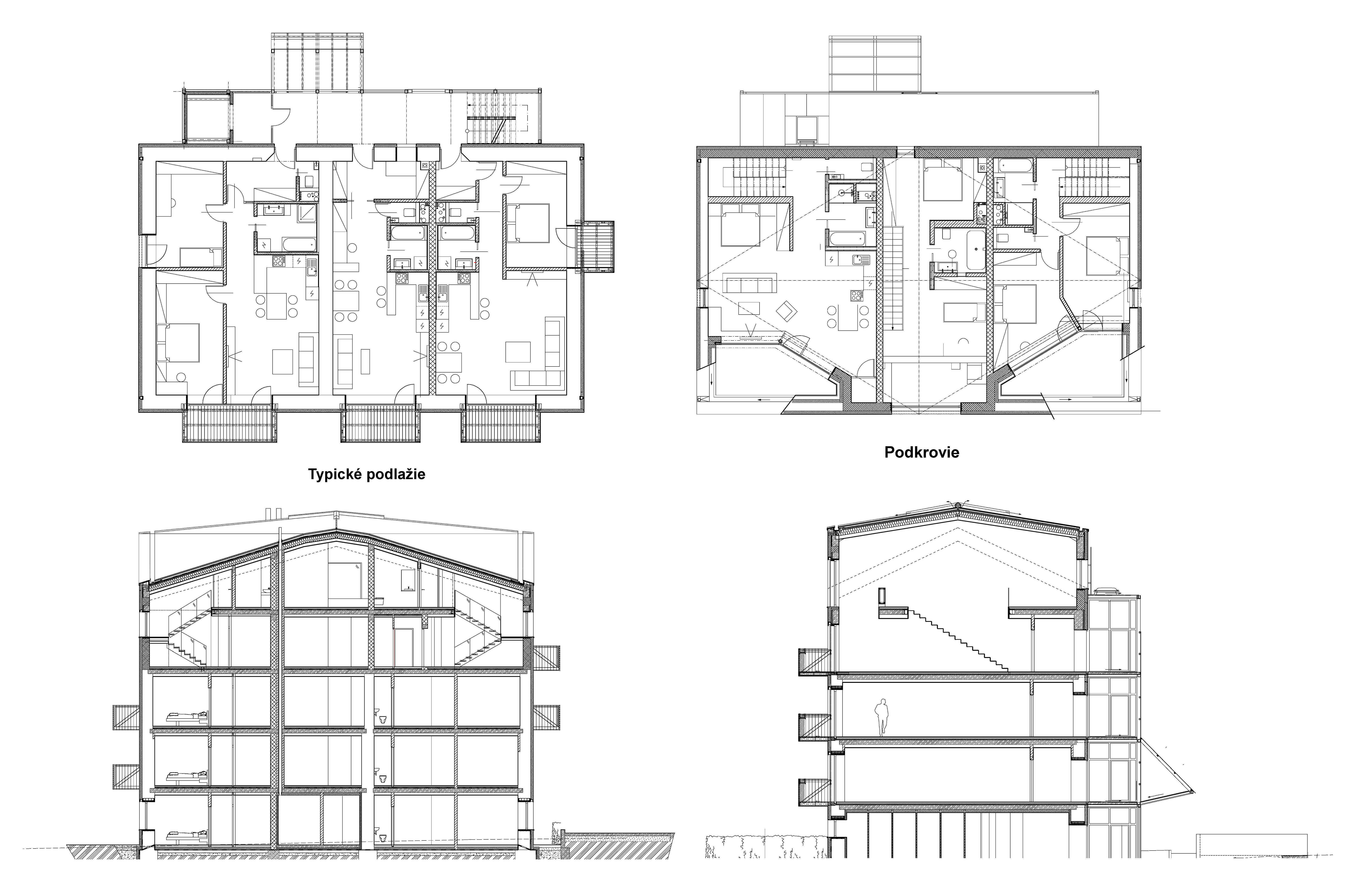
V závere sa ako najvážnejší kandidáti na Jurkovičovu cenu vyprofilovali diela Poľovnícky dom v Malých Karpatoch a bytový dom Mlyn Humenné. Nakoľko cenu je možné udeliť len jednému dielu, víťazom sa stal Mlyn Humenné. Porota ocenila, že ako základ novej bytovky poslúžila stavebná podstata dlhodobo nevyužitého priemyselného objektu, čím vznikla kvalitná architektúra primeraného objemu. Pôvodný priemyselný charakter pripomína stvárnenie uličnej fasády. Stavbu v danej lokalite porota ocenila tiež ako výnimočný developerský počin, ktorý prispieva k propagácii kvalitného bývania a výrazne vyčnieva z regionálnej produkcie. Kvalita stavby sa prejavuje okrem dizajnu exteriéru a spoločných domových priestorov aj v interiéroch bytov, na ktorých riešení sa architekti tiež zúčastnili, čo nebýva v tomto systéme výstavby samozrejmé. Bytový dom je tak ukážkou nového štandardu riešenia bývania, keď štýlové prepojenie interiéru bytu a vzhľadu domu synergicky posilňuje dopady architektúry a dizajnu na svojich užívateľov.
V súlade so Štatútom Ceny Dušana Jurkoviča sa porota rozhodla udeliť Cenu Dušana Jurkoviča 2017 Michalovi Burákovi, Dušanovi Burákovi, Matúšovi Gomolčákovi a spoluautorom Marekovi Bakalárovi, Marekovi Ganzovi a Tomášovi Eisnerovi za dieo Mlyn Humenné. (Dielo sme podrobne predstavili tu)
Cenu Emila Belluša za celoživotné urbanistické a architektonické dielo v roku 2017 udelilo prezídium Spolku architektov Alexandrovi Bélovi
Životopis laureáta:
Bolo to koncom prvej tretiny dvadsiateho storočia, presnejšie 26. novembra 1933, keď som sa narodil v Prešove, v lesníckej rodine. Ranné detstvo som prežil v kruhu rodiny v obciach Ulič a Veľký Berezný na Podkarpatskej Rusi, dnes Velykyi Berznyi na Ukrajine. Tieto obce v politicky rušnom období druhej svetovej vojny, bez zmeny ich geografickej polohy, boli súčasťou rôznych krajín Európy. Najprv to bola predvojnová Československá republika, neskôr Maďarské kráľovstvo a potom Sovietsky zväz. Na konci vojny sme sa presťahovali do vtedy ešte maďarského Užhorodu. Po Jaltskej konferencii a politickom usporiadaní Európy bolo toto územie ako Zakarpatská Ukrajina pričlenené do Sovietskeho zväzu. Toto dynamicky sa meniace politické prostredie malo odraz aj v jazykovom prostredí, ktorému som sa musel prispôsobovať. Nemecký a maďarský jazyk boli prvými, ktorými som rozprával, základnú školu som absolvoval na maďarskej a ukrajinskej škole.
V roku 1947 sme sa vrátili na Slovensko, do Solivaru pri Prešove. Začal som navštevovať terciu (tretí ročník) štátneho gymnázia v Prešove. Pretože som v tom čase neovládal slovenský jazyk, musel som sa naučiť po slovensky. Maturoval som na I. štátnom gymnáziu v Prešove v roku 1953.
Dva roky pred maturitou sa rodina odsťahovala zo Solivaru do Sobraniec na krajnom východe Slovenska a ja som zostal bývať na priváte v mieste školy. V čase podávania prihlášok na vysokoškolské štúdium som sa zoznámil s Ivošom (priezvisko si nepamätám), ktorý študoval architektúru v Brne. Jeho nadšenie pre architektúru a rozprávanie o kráse štúdia architektúry pozitívne ovplyvnilo nie len mňa ale i viacerých mojich spolužiakov. Výsledkom bolo, že prihlášku na štúdium architektúry sme podali šiesti spolužiaci z jednej triedy a štyria sme ho aj úspešne absolvovali. Vysokoškolské vzdelanie som absolvoval v rokoch 1953 – 1959 na Slovenskej vysokej škole technickej v Bratislave, fakulta architektúry a pozemného staviteľstva u profesorov Belluša, Hrušku, Karfíka, Lacka, Piffla a ďalších.
Počas štúdia na vysokej škole v roku 1958 som sa so skupinou spolužiakov zúčastnil verejnej anonymnej Súťaže na pamätník obetiam SNP v Nemeckej (Marián Beluš, Alexander Bél, Eduard Stančík, Alexander Vika), ktorú sme vyhrali. Dielo bolo realizované a odhalené v roku 1959.
Fakultu architektúry a pozemného staviteľstva v Bratislave (smer A) som ukončil v roku 1959. Následne už počas zamestnania som absolvoval postgraduálne štúdium v odbore územné plánovanie na VUT v Brne, ktoré som ukončil v roku 1964.
V čase ukončenia vysokoškolského štúdia boli absolventi umiestňovaní do praxe podľa potrieb národného hospodárstva, na základe povinných „umiestneniek“. Ja som nastúpil do Urbanistického strediska Stavoprojektu v Košiciach, ktoré viedol Ján Kurča. Môj profesijný rast prebiehal od projektanta až po funkciu vedúceho Urbanistického strediska od roku 1970. Od roku 1991 som bol vo funkcii vedúceho ateliéru košického pracoviska Urbiónu Bratislava.
Do košického Stavoprojektu sme nastúpili väčšia skupina mladých architektov z absolventského ročníka 1959. Táto relatívne silná skupina mladých bola vo vzájomnom intenzívnom tvorivom kontakte. Stavalo a projektovalo sa veľa a tak sme sa pomerne zavčasu dostali k samostatným i náročnejším dielam. Verejné anonymné architektonické a urbanistické súťaže vytvárali voľnejší tvorivý priestor ako „oficiálne úlohy“ a preto sme tejto činnosti venovali veľa priestoru. Spolu s. P. Merjavým, ale aj s inými kolegami som sa úspešne, aj menej úspešne, zúčastnil mnohých súťaží a vypracovania architektonických štúdií. Z úspešných spomeniem aspoň tie zaujímavejšie: Centrum mesta Děčín, Stredisko cestovného ruchu Roháče, Centrum Nového mesta v Košiciach, Pamätník povodniam v Komárne, Obytný súbor Vlčince v Žiline, Urbanisticko - architektonická súťaž na regionálne centrum Banská Bystrica - Zvolen, medzinárodná súťaž Budova štátnej opery v Belehrade, štúdia ČS zastupiteľského úradu v Berlíne a ďalšie.
V prvých rokoch po ukončení vysokoškolského štúdia okrem urbanistických prác som sa venoval aj architektúre. Z tohto obdobia pochádzajú: Športový areál Košice - Šaca, architektonické štúdie staníc kabínkovej lanovej dráhy T. Lomnica - Skalnaté Pleso, z ktorých boli realizované stanice kabínkovej lanovky Skalnaté pleso a Štart.
Neskoršie som sa špecializoval na tvorbu v oblasti územné plánovanie a urbanizmus. V tomto období vzniklo množstvo štúdií a územných plánov veľkých územných celkov (regiónov), miest a obcí.
V sedemdesiatych rokoch minulého storočia som sa v spoločnom tíme (Terplán Praha, Urbión Bratislava a Stavoprojekt Košice) podieľal na vypracovaní návrhu nového Zákona o územnom plánovaní a stavebnom poriadku a Metodických pokynoch pre vypracovanie územnoplánovacej dokumentácie.
Po politickom uvoľnení situácie v Európe a tiež na Slovensku a rozpade štátnych projektových ústavov v roku 1993 som bol jedným zo zakladateľov a štatutárnym zástupcom verejnej obchodnej spoločnosti URBAN v Košiciach, ktorá sa zaoberala urbanizmom a územným plánovaním. Neskôr, v roku 2000, som založil ako autorizovaný architekt SKA vlastnú projektovú kanceláriu pod obchodným názvom URBI, ktorá je stále aktívna. V tom období som sa musel z tradičných foriem spracovania dokumentácie preorientovať na postupne zavádzané, dovtedy málo známe digitálne technológie. Bez ich zvládnutia by som v súčasnej dobe nemohol v tejto oblasti aktívne pracovať.
V priebehu mojej dlhodobej kariéry architekta urbanistu som aktívne pôsobil najmä na území východného Slovenska, mesta a regiónu Košice. Som autorom resp. spoluautorom množstva územných plánov obcí a miest, z ktorých spomeniem niektoré najvýznamnejšie: územné plány obytných súborov Družba v Spišskej Novej Vsi, Juh II v Michalovciach a Dargovských hrdinov (Furča) v Košiciach (pri realizácii týchto obytných súborov bolo dodržané funkčné a zastavovacie usporiadanie podľa územných plánov), Územný plán hospodársko-sídelnej aglomerácie Košice (1973), rad urbanistických štúdií Námestia osloboditeľov, územný plán zóny celomestského centra, Košice a pod. Z prác vytvorených v poslednom období spomeniem Územný plán veľkého územného celku Košického kraja a jeho aktualizácie v roku 2004 a 2009, Územnotechnický podklad pre globálny logistický a industriálny park v Košiciach, územné plány miest: Poprad, Kežmarok - Ľubica, Humenné, Levoča, Vysoké Tatry a ďalšie.
Územný plán mesta Vysoké Tatry radím medzi najnáročnejšie územné plány ako z hľadiska vlastnej tvorby, tak aj z hľadiska hľadania súladu urbanistického riešenia s ochranou prírody v národnom parku.
Okrem uvedenej dokumentácie som autorom množstva územných plánov obcí a zón, ktoré po ich schválení slúžia ako nástroje pre riadenie rozvoja riešených území. Uvádzam len niektoré územné plány obcí: Herľany, Harichovce, Malý Šariš, Kostoľany nad Hornádom, Družstevná pri Hornáde a územné plány zón mestských častí mesta Vysoké Tatry (Starý, Nový, Horný a Dolný Smokovec, Tatranská Lomnica a Štrbské Pleso), územný plán zóny Levočská Dolina a ďalšie.
Začiatkom deväťdesiatych rokov minulého storočia sa začalo obdobie vypracovania územných plánov veľkých územných celkov. Ako spoluautor a koordinátor som vypracoval územné plány veľkých územných celkov: Zemplínsky región - 1993, Vysoké Tatry - Západné Tatry - Orava a Spišská Magura - 1995, Košický kraj - 1998 a už spomínané jeho neskoršie aktualizácie.
V období po roku 1970 som bol aktívny aj v oblasti pedagogickej činnosti ako externý pracovník na TU v Košiciach, Stavebnej fakulte (ateliérová tvorba) a Hutníckej fakulte (prednášky a cvičenia v oblasti životné prostredie).
Ešte na záver poznámka; pri realizácii územných plánov je potrebné si v širšom kontexte uvedomiť, že to, čo je v územnom pláne navrhnuté, môže byť realizované, ale to čo v územnom plán nie je, nemá byť realizované.
Cenu profesora Martina Kusého v roku 2017 udelil Spolok architektov Slovenska doc. Monike Mitášovej za koncepčnú, autorskú a editorskú prácu na príprave publikácií Vladimír Dedeček. Stávanie sa architektom (SNG 2017) Vladimír Dedeček; Interpretácie architektonického diela (SNG2017) a za dlhoročnú odbornú, vedecko-výskumnú aktivitu v oblasti teórie a dejín architektúry.
Doc. Ing. arch. Monika Mitášová, PhD. (09. 11. 1968) vyštudovala architektúru na Fakulte architektúry Slovenskej technickej univerzity v Bratislave (1993). V rokoch 2003 - 2004 absolvovala post-doktorský výskumný pobyt v Centre pre teoretické štúdiá UK a AV ČR v Prahe, kde spolu s Ivanom M. Havlom a Michalom Ajvazom pripravila zborník Prostor a jeho člověk (Praha 2004), v r. 2015 habilitovala na Fakulte architektúry ČVUT v Prahe. Prednášala na školách architektúry v Bratislave, Liberci a Prahe. V súčasnosti pôsobí na Katedre dejín a teórie umenia Filozofickej fakulty Trnavskej univerzity v Trnave. Venuje sa teórii architektúry, o ktorej publikovala viaceré vedecké a odborné štúdie v domácich i zahraničných časopisoch Aspekt, Projekt, Architekt, Stavba a Era. V rámci Fulbrightovho štipendia na Columbia University v New Yorku (2009 - 2010) sa zaoberala problémom kritickej a projektívnej teórie architektúry. Z tohto výskumu publikovala antológie Oxymorón a pleonasmus. Texty kritické a projektivní teorie architektury (Praha 2011); Oxymorón a pleonasmus II. Rozhovory o kritické a projektivní teorii architektury (Praha 2012); Oxymoron and Pleonasm. Conversations on American Critical and Projective Theory of Architecture (Barcelona - New York - Praha 2014). Spolu s Jiřím Ševčíkom vydala antológiu Česká a slovenská architektura 1971 - 2011 (Praha - Bratislava, 2012). Je autorkou knihy Vladimír Dedeček. Stávanie sa architektom (Bratislava, 2017) a spoluautorkou knihy Vladimír Dedeček. Interpretácie architektonického diela (Bratislava, 2017, spolu s Marianom Zervanom, Benjamínom Brádňanským, Vítom Haladom a Herthou Hurnaus). Bola kurátorkou a spolukurátorkou viacerých výstav z oblasti architektúry a umenia, najnovšie komisárkou expozície Českej a Slovenskej republiky na Bienále architektúry v Benátkach (2016).
Na Cenu Dušana Jurkoviča 2017 boli bez určenia poradia nominovaní:
Tomáš Auxt, Peter Kožuško, Miro Hrušovský, Peter Hudač, Michal Zábranský za dielo Poľovnícky dom v Malých Karpatoch (viac tu)
Poľovnícky dom v Malých Karpatoch porota oceňuje nomináciou za výnimočne premyslený koncept hmotového a prevádzkového riešenia, ktorý sa najvýraznejšie prejavuje v možnostiach spájania exteriéru a interiéru, oscilujúcich od úplného uzatvorenia až po maximálne otvorenie. Celkovo tak stavba ponúka premyslené skĺbenie funkčných potrieb špecifickej komunity užívateľov s estetikou moderného drevodomu v celku aj detailoch, dobre zapadajúce do okolitej prírody. Poľovnícky dom je príkladom vysokej kvality súčasnej rurálnej architektúry.
Martin Dulík, Marek Šumichrast, Lívia Dulíková za dielo Castellum Café v Nitre (viac tu)
Castellum Café, nomináciou ocenenú prácu, porota vybrala pre spôsob, akým veľmi citlivé osadenie objektu zvýrazňuje monumentalitu hradieb a zatraktívňuje vyhliadku na mesto. Drobná stavba zároveň pomáha nájsť Nitrianskemu hradu nový a modernejší prístup k návštevníkom a ponúka im doteraz chýbajúce zázemie.
Veronika Kotradyová, Martin Boleš za dielo Čakáreň v Národnom onkologickom ústave v Bratislave (viac tu)
Experimentálne riešenie čakárne v Národnom onkologickom ústave otvára otázku možnosti využitia prírodných materiálov, konkrétne dreva, v inak často sterilnom nemocničnom prostredí. Poukazuje na jeho priaznivé psychologické účinky a v spojení s vedeckým výskumom relativizuje stereotypy o problematickej údržbe z hľadiska hygieny. Podľa názoru poroty preto ide o rozsahom síce malý, ale svojím potenciálom významný počin.
Peter Gomboš, Ján Krcho, Tomáš Lupták za dielo Reštaurovanie a rekonštrukcia Starej synagógy v Bardejove (viac tu)
Obnova starej synagógy v Bardejove, je hodnotným príspevkom k zachovaniu našej historickej pamäte. Výsledok tejto etapy prác sa javí ako postupná a trpezlivá práca dobre zohraného tímu, ktorý k úlohe pristúpil s pokorou voči pôvodnému objektu a zároveň s dôrazom na detailnú prezentáciu nielen všetkých už objavených ale aj dnes, ešte iba na základe prieskumov, tušených súvislostí.
Slávnostné odovzdanie cien sa uskutoční 8. novembra 2017 v Malej sále Slovenskej filharmónie v Bratislave.
Podklady: kancelária Spolku architektov Slovenska