Okenné profily z kompozitného materiálu RAU-FIPRO X od spoločnosti Rehau sú v porovnaní s tradičnými plastovými profilmi mnohonásobne...
Najnovší sortiment stolov pre zariadenie interiérov...
Spojenie moderného dizajnu, funkčnosti a svetla do harmonického architektonického prvku.
Kancelárska budova Baumit v slovinskom Trzine prešla premenou na moderné a udržateľné pracovisko. Architekti kládli dôraz...
Mottom šiesteho ročníku on-line konferencie odborníkov Xella Dialóg je Efektívny návrh budov 2025+: zmeny a riešenia
Robot WLTR predstavuje moderný prístup k murovaným konštrukciám. Vďaka automatizácii dokáže rýchlo, presne a bezpečne realizovať...
Okrem bezpečnosti majú okná aj elegantný vzhľad, pretože nie sú viditeľné žiadne uzamykacie časti kovania.
Dvere MASTER v skrytej zárubni AKTIVE je možné vyrobiť až do výšky 3 700 mm
Internorm stavia na energetickú efektívnosť a inteligentné tieniace riešenia.
Pohľad na moderné prístupy k výrobe s dôrazom na udržateľnosť.
Slovensko vo výbere zastupuje šesť realizácií.
Spoločnosť Internorm odteraz stavia na novej variante tepelnoizolačného skla od AGC, ktorá v produkcii ročne ušetrí 10...
Jubilejný 20. ročník prestížnej medzinárodnej súťaže pre študentov architektúry priniesol...
Otočné a posuvné dvere MASTER od podlahy až po strop, ponúkajú mimoriadnu variabilitu výšky, materiálu a zladenia so skrytými...
Predstavené produkty, spájajú premyslený dizajn, funkčnosť a udržateľnosť. Nábytok Materia vzniká s cieľom podporiť inšpiratívne stretnutia...

Článok bol pôvodne publikovaný v časopise ASB #212 / február 2020.
V priestore medzi Hornou ulicou zo severu, ulicou Československej armády z juhu a Kukučínovou ulicou zo západu, vznikol v Banskej Bystrici v rokoch 1937 -1967 kompaktný mestský blok so svojim výrazným funkcionalistickým tvaroslovím.
Značný časový rozsah kreovania bloku sám o sebe napovedá, že vznikal postupne, z relatívne samostatných architektúr, no napriek tomu vo vzájomnom rešpekte. Pod jednotlivé objekty sa podpísalo viacero autorov.
Najstarším je budova, pôvodne prvorepublikovej zdravotnej poisťovne, od autorskej dvojice Alois Balán, Jiří Grossmann, projektovaná v roku 1927 a dostavaná v roku 1930. Má dve krídla a situovaná je v severozápadnom nároží, ktoré akcentuje polvalcovou prevýšenou hmotou schodiska s veľkými plochami sklobetónových výplní. Dramatickým vyvrcholením kompozície je stojaca socha robotníka v mierne nadživotnej veľkosti, osadená na atike v osi schodiska od sochára Ladislava Majerského. Charakteristický architektonický výraz je tvorený kontrastom hladkých plôch fasády a červeného režného tehlového muriva medziokenných pilierikov. Táto kombinácia podporuje upokojujúce horizontálne členenie objektu.
V roku 1935 projektuje František Eduard Bednárik v križovaní Kukučínovej ulice a dnešnej ulice Československej armády, s ponechanou prelukou od poisťovne, obdobne pôdorysne dvojramenný Notársky internát, ktorý bol zrealizovaný v rokoch 1935 - 1937. Do objektu sa vstupuje v osi križovatky. Pomerne tvrdý kontrast otvárajúcich sa štítových múrov dvojice základných častí, zjemňuje ich prepojenie zaobleným parterom v ploche celého pôdorysu. Previazanie pokračuje na poschodiach ustúpenou celopresklenou hmotou schodiskových hál, čím je dosiahnutá gradácia nárožia. Samotné hlavné schodisko je postavené vo vnútornom uhle pôdorysu. Rovnomerný raster okien, dokomponovaný na mieru vyrobenými keramickými tvarovkami v spolupôsobení hladkých omietaných plôch v základnej horizontálnej kompozícii umocňuje čistý funkcionalistický ráz objektu.
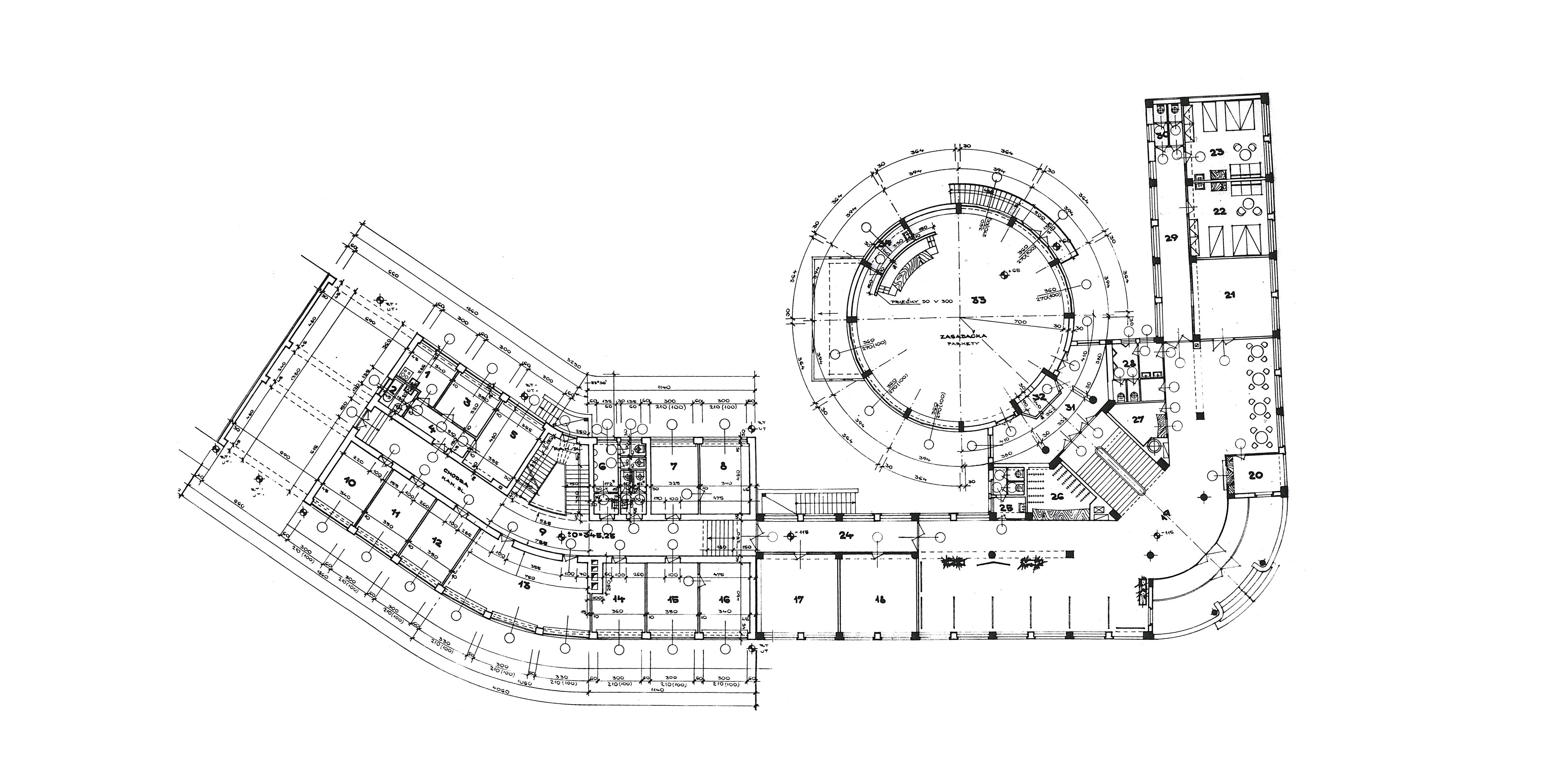
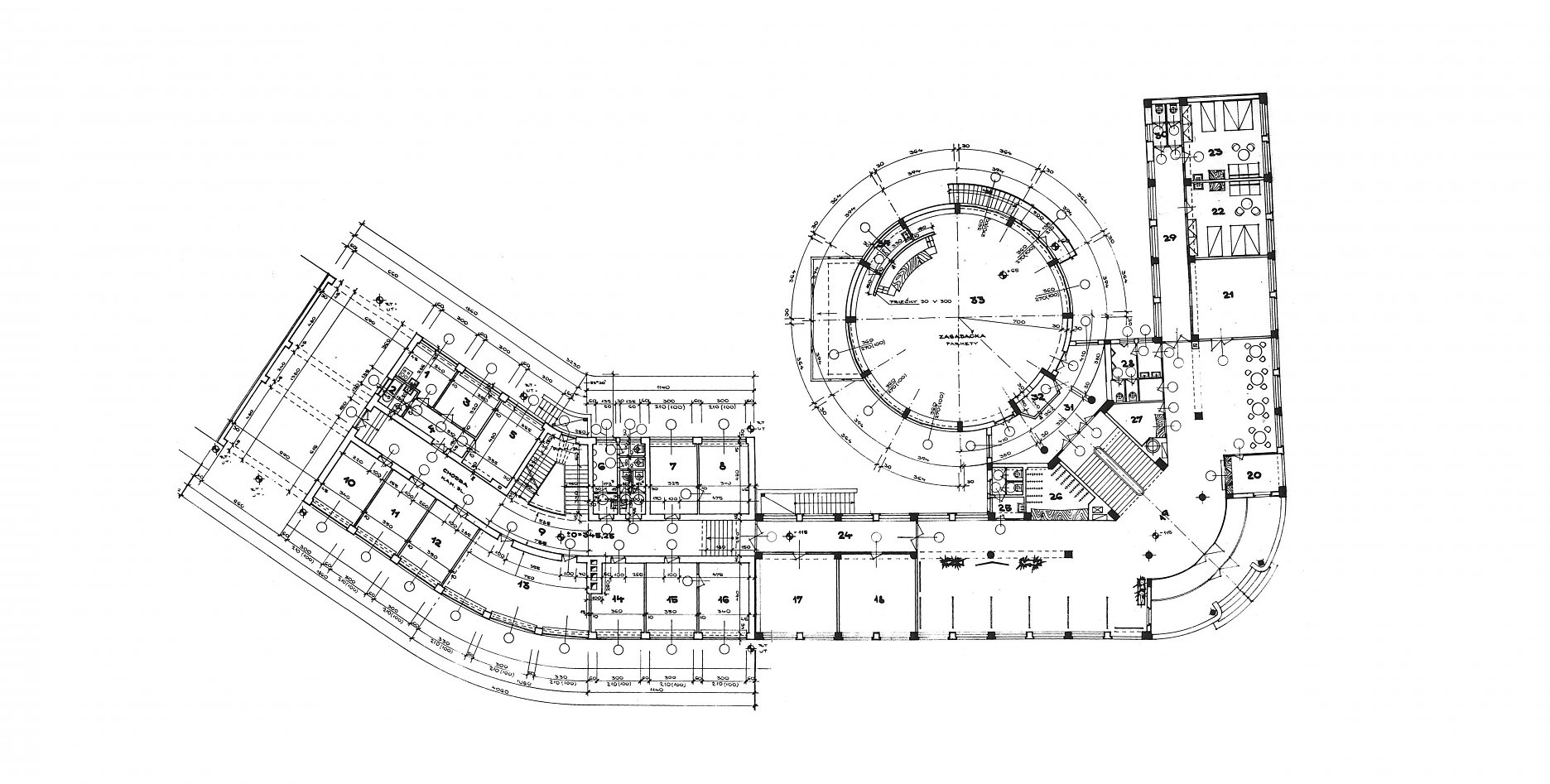
Podľa nie tak dávnych zistení historičky architektúry a umenia, pani Kláry Kubičkovej bol to opäť František Eduard Bednárik, ktorý vyprojektoval a v roku 1953 zrealizoval budovu polikliniky, ktorá uzatvára blok z východu. Dominantná päťpodlažná budova s konvexnou hlavnou fasádou prepája Hornú ulicu a ulicu Československej armády čím vymedzuje parčík pred Mestským úradom. Na zakrivenej fasáde sa výtvarne uplatňujú pásové okná dotvorené kamenným orámovaním. Podľa dnes platnej legislatívy je poliklinika polyfunkčným objektom. Východné a severné krídlo slúžia medicínskym účelom a južné krídlo ma nezmenenú obytnú funkciu. Zo strany vnútorného dvora je v strede tentokrát konkávnej fasády situované monumentálne polkruhové schodisko, opláštené sklobetónom. Vďaka samotnému vyhotoveniu a konštrukcii schodiska, sa najmä v interiéri jedná o skutočnú architektonickú a dizajnovú lahôdku.
V roku 1963 vznikol projekt dostavby Krajskej odborovej rady od architektov Igora Teplana st. a Ladislava Kmeťa, ktorého realizáciou sa v roku 1967 blok stavebne uzavrel. Okrem tejto budovy bola súčasťou projektu aj nadstavba Notárskeho internátu , ktorý v tom čase už slúžil odborom. Vdvornej časti v osi hlavného schodiska dvojica architektov navrhla ešte prístavbu rotundy rokovacej sály. Nadstavba bola navrhnutá a zrealizovaná citlivo s dodržaním dimenzie a rytmu okien. Jej čitateľnosť pre oko znalca zabezpečuje strohé riešenie medziokenných plôch, na rozdiel od pôvodnej budovy, bez keramického obkladu. Samotná najmladšia dostavba bloku, kopíruje jemný ohyb Kukučínovej ulice, čím vznikol pôdorys robustného bumerangu. V partery sa plynule pripája na uličnú čiaru, ktorú rešpektuje. Časť prízemia od poisťovne však ostala voľná pre prejazd do vnútrobloku. Horné podlažia sú konzolovito vyložené nad chodník a zvýraznené sú masívnym rámom , ktorý je obložený kameňom, rovnako ako celý parter. V pôdorysne zakrivenom ráme sú zapustené pásové parapety obkladané bielymi sklenenými platňami. Štíhle medziokenné stĺpiky, rovnako obkladané kameňom prispievajú k vytvoreniu dojmu pásových okien. V tom čase vo svete nič nové, ale po období socialistického realizmu sa v našich zemepisných šírkach muselo jednať o skutočne modernú stavbu. Blok našťastie realizmus preskočil.
Stavebným uzavretím bloku vznikol v rámci Slovenska výnimočný súbor stavieb, ktoré harmonicky spolupôsobia napriek skutočnosti, že na ich zrod bolo potrebných presne štyridsať rokov a tri spoločenské zriadenia.
Na architektonické hodnoty tohto celku upozornila už v roku 2000 Klára Kubičková v časopise "Architektúra a urbanizmus" číslo 1-2 vo svojom článku "Architektonické diela 20. storočia na Slovensku". Vyzvala v ňom na potrebu komplexnej pamiatkovej ochrany bloku. Dnes sú národnými kultúrnymi pamiatkami len Balánova a Grossmannova poisťovňa a Bednárikov Notársky internát. Uplynulo už 19 rokov a ľady sa nepohli. Aká je situácia dnes? Najproblematickejšou časťou je v súčasnosti samotný priestor vnútrobloku s viacero nepôvodnými stavebnými nánosmi. Stále je tu však šanca vytvorenia kultivovaného mestského mikropriestoru s parkovou úpravou. V roku 2018 sa uskutočnila rekonštrukcia fasád v rátane výmeny okien poisťovne a zdravotníckej časti polikliniky. Keď po vykonaní práce začalo miznúť lešenie mal som radosť, lebo fasády objektov skutočne ožili. Radosť skončila, keď boli demontované aj posledné dielce lešenia a na fasádach sa objavila "inštalácia" reklamných megabanerov. Zarážajúce je, že sú zavesené na národných kultúrnych pamiatkach. Peniaze sú všemocné a chamtivosť bezhraničná. Nestačia zisky z prenájmov. V tejto súvislosti sa vynára otázka funkčnosti systému a nastavenia činnosti stavebných a pamiatkových úradov, ktoré by mali byť nositeľmi a garantmi stavebnej kultúry. Mestský stavebný úrad to má v tomto prípade priamo pod oknami. Môžeme mať akokoľvek nové a dokonalé zákony po ktorých tak v týchto oblastiach dlhodobo voláme, keď sa nebudú vykonávať, tak ako tie súčasné, nedôjde ku zmene. Kultúra spoločnosti sa nedá nahradiť výškou stožiara pri Národnej rade. Napriek, tomu stále verím, že sa situácia obráti a ochrany sa dočká, okrem iných, aj blok okolo ktorého chodím takmer každý deň. Blok, ktorý nás okoloidúcich neustále obdarúva svojou krásou, no nie všetci si to uvedomujeme a vážime.
Igor Teplan