Advertorial

Hotel Hirschen Spa House, Rakúsko

Novotvar v prostredí alpskej obce.

Vytvorte si kúpeľňu snov: dizajnové riešenie od značky hansgrohe

Hansgrohe - prémiová značka kúpeľňových riešení, ponúka nadčasový dizajn, technickú precíznosť a udržateľné inovácie...

Okná Internorm za minuloročné ceny + hliníkový kryt zdarma!

Využite špeciálnu akciu Internorm: okná za minuloročné ceny a hliníkový kryt úplne zadarmo. Ponuka je časovo obmedzená!

Pozvánka na 2. ročník stavebného veľtrhu BigMarket na Slovensku

Na podujatí sa predstaví až 37 vystavovateľov - popredných dodávateľov stavebných materiálov a inovácií s prezentáciou...

Moderné plynové technológie: Efektivita a inovácie pre 21. storočie

Sumarizácia najdôležitejších inovácií, ktoré redefinujúcich využitie tohto energetického zdroja.

Utesňovanie spodných stavieb pomocou hydro-aktívnej fólie AMPHIBIA.

AMPHIBIA 3000 GRIP 1.3 od spoločnosti ATRO predstavuje modernú hydroizolačnú technológiu, ktorá spája vysokú odolnosť,...

Dekarbonizácia individuálneho vykurovania domácností – Green Deal evolučne a nie revolučne

Ambiciózne plány EK narazili na ekonomické možnosti domácností v jednotlivých členských štátoch –...

Minimalistické dvere IDEA – technická precíznosť a čistota prevedenia

IDEA DOOR od spoločnosti JAP prináša do interiéru čistý minimalistický vzhľad vďaka bezrámovému riešeniu a precíznej...

Dom s výhľadom na údolie, Dlouhý Most (ČR)

Kontinuita riešenia od vonkajšieho obkladu až po kovania a kľučky.

Schell Vitus – osvedčené riešenie pre sprchy a umývadlá vo verejnom sektore s viac ako desaťročnou tradíciou

Nástenné nadomietkové armatúry Vitus sú mimoriadne vhodné pre rýchlu a efektívnu...

Kompozitné okná predstavujú súčasnosť a budúcnosť

Okenné profily z kompozitného materiálu RAU-FIPRO X od spoločnosti Rehau sú v porovnaní s tradičnými plastovými profilmi mnohonásobne...

Myotis - stoly 2025

Najnovší sortiment stolov pre zariadenie interiérov...

Priemyselné sklenené priečky Dorsis Digero: svetelné rozhranie pre moderné interiéry

Spojenie moderného dizajnu, funkčnosti a svetla do harmonického architektonického prvku.

Význam prirodzeného svetla pre moderné a flexibilné pracovné prostredie

Kancelárska budova Baumit v slovinskom Trzine prešla premenou na moderné a udržateľné pracovisko. Architekti kládli dôraz...

Konferencia Xella Dialóg predstaví novinky a trendy v stavebníctve

Mottom šiesteho ročníku on-line konferencie odborníkov Xella Dialóg je Efektívny návrh budov 2025+: zmeny a riešenia

OPEN CALL / „FOAJÉ“

Vytvorenie umeleckej inštalácie (priestorovej, site specific inštalácie, ktorá môže využívať kinetické, svetelné či zvukové prvky) do priestoru vstupného „foajé“ budovy Galérie Miloša Alexandra Bazovského v Trenčíne na Palackého ulici.
Súťaže
Red 108.03.2024
3080+1
Vyhlásenie8.3.2024
00:00
Odovzdanie návrhov15.4.2024
15:00
VyhlasovateľGaléria Miloša Alexandra Bazovského v Trenčíne
AdresaPalackého 27,
Trenčín,
Slovensko
Druh podujatiaSúťaž
KontaktBarbora Petríková
032 / 743 68 58
barbora.petrikova@gmab.sk

OPEN CALL | „FOAJÉ“

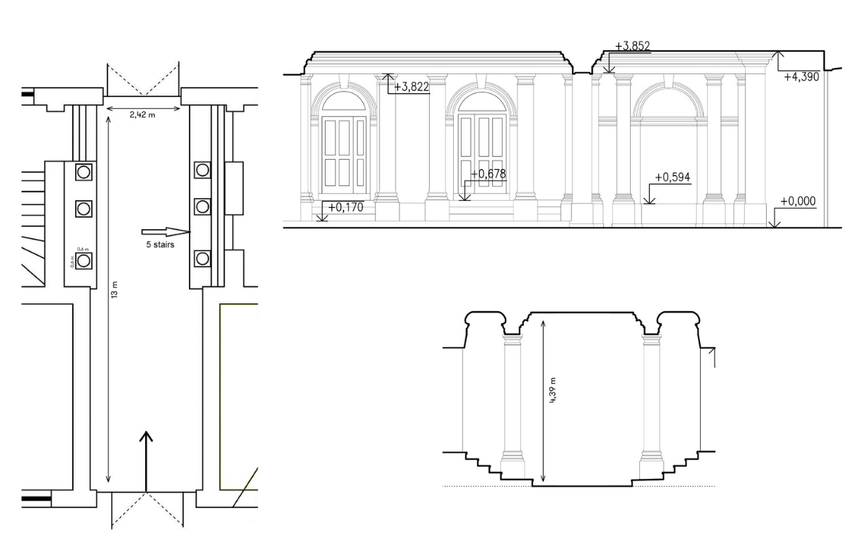
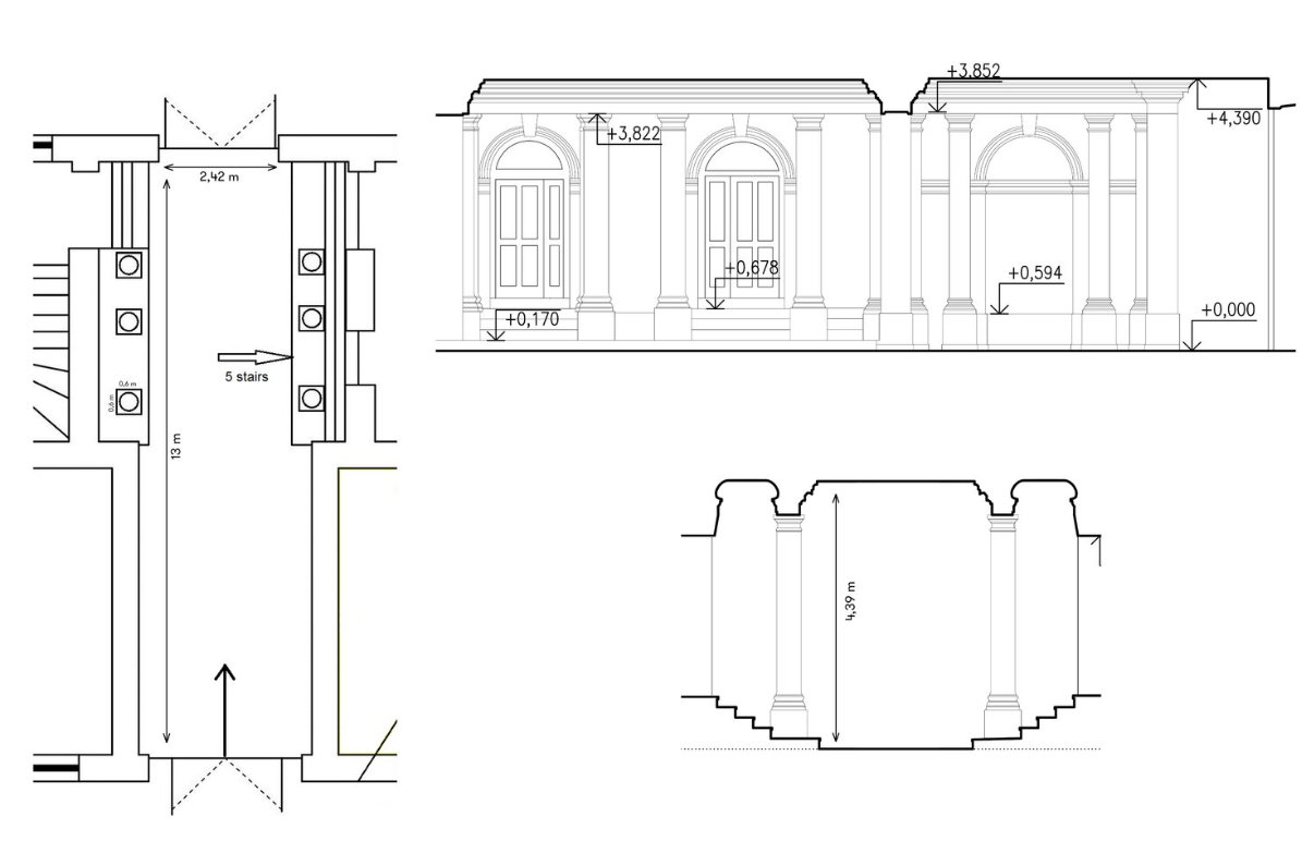
Galéria Miloša Alexandra Bazovského v Trenčíne vyhlasuje otvorenú výzvu pre umelcov, dizajnérov, architektov a študentov umeleckých smerov na vytvorenie umeleckej inštalácie (priestorovej, site specific inštalácie, ktorá môže využívať kinetické, svetelné či zvukové prvky) do priestoru vstupného „foajé“ budovy Galérie Miloša Alexandra Bazovského v Trenčíne na Palackého ulici.

Keďže mesto, verejný priestor, či placemaking je stále viac frekventovaná téma, chceme aj my prostredníctvom súčasného umenia na ňu reagovať, a zároveň ponúknuť priestor galérie na prezentáciu súčasného umenia. O víťazovi rozhodne porota, ktorá výsledky oznámi na webovej stránke a sociálnych sieťach GMAB. Vytvorené dielo bude prezentované verejnosti najneskôr do 31. augusta 2024.

TERMÍN UZÁVIERKY JE 15. APRÍL 2024.

Prihlasovanie projektov na mailovú adresu: barbora.petrikova@gmab.sk

Vyhlásenie výsledkov prebehne 22. apríla 2024.

 

PODMIENKY PRIHLÁSENIA DO SÚŤAŽE:

- odovzdanie návrhu s vizualizáciou, krátkou anotáciou v rozsahu max. A4, rozmermi a materiálovým popisom

- dielo môže byť inštaláciou, objektom, zvukovou alebo priestorovou inštaláciou, svetelným, či kinetickým objektom, site specific (v priestore foajé nie je priame napojenie na elektriku, nutné použitie predlžovačky, prípadne iné zdroje napätia)

- má sa jednať primárne o novovytvorené dielo vytvorené pre daný priestor (nie už hotové dielo)

- prihlásiť sa môže jednotlivec alebo kolektív

- výzvy sa môžu zúčastniť aj študenti umeleckých vysokých škôl

- snaha o minimalizáciu zásahov do stien a stĺpov vo foajé, eliminovať akékoľvek možné poškodenia stien v danom priestore

- snaha o zachovanie aspoň čiastočnej priechodnosti foajé

- na realizáciu projektu je vyhradený termín 10. – 19. jún 2024

 

HONORÁR

Celkový honorár pre autora/autorov s nákladmi na realizáciu je 5oo,- €.

 

KONTAKY

Pre viac informácií: barbora.petrikova@gmab.sk, alexandra.porubcanova@gmab.sk

Galéria si vyhradzuje právo nevybrať žiadny z prihlásených projektov.

Vložené
8. marec 2024
0
308
Hlavný obsahHlavný obsah
Čakajte prosím