Využite špeciálnu akciu Internorm: okná za minuloročné ceny a hliníkový kryt úplne zadarmo. Ponuka je časovo obmedzená!
Na podujatí sa predstaví až 37 vystavovateľov - popredných dodávateľov stavebných materiálov a inovácií s prezentáciou...
Sumarizácia najdôležitejších inovácií, ktoré redefinujúcich využitie tohto energetického zdroja.
AMPHIBIA 3000 GRIP 1.3 od spoločnosti ATRO predstavuje modernú hydroizolačnú technológiu, ktorá spája vysokú odolnosť,...
Ambiciózne plány EK narazili na ekonomické možnosti domácností v jednotlivých členských štátoch –...
IDEA DOOR od spoločnosti JAP prináša do interiéru čistý minimalistický vzhľad vďaka bezrámovému riešeniu a precíznej...
Kontinuita riešenia od vonkajšieho obkladu až po kovania a kľučky.
Nástenné nadomietkové armatúry Vitus sú mimoriadne vhodné pre rýchlu a efektívnu...
Okenné profily z kompozitného materiálu RAU-FIPRO X od spoločnosti Rehau sú v porovnaní s tradičnými plastovými profilmi mnohonásobne...
Najnovší sortiment stolov pre zariadenie interiérov...
Spojenie moderného dizajnu, funkčnosti a svetla do harmonického architektonického prvku.
Kancelárska budova Baumit v slovinskom Trzine prešla premenou na moderné a udržateľné pracovisko. Architekti kládli dôraz...
Mottom šiesteho ročníku on-line konferencie odborníkov Xella Dialóg je Efektívny návrh budov 2025+: zmeny a riešenia
Robot WLTR predstavuje moderný prístup k murovaným konštrukciám. Vďaka automatizácii dokáže rýchlo, presne a bezpečne realizovať...
Okrem bezpečnosti majú okná aj elegantný vzhľad, pretože nie sú viditeľné žiadne uzamykacie časti kovania.

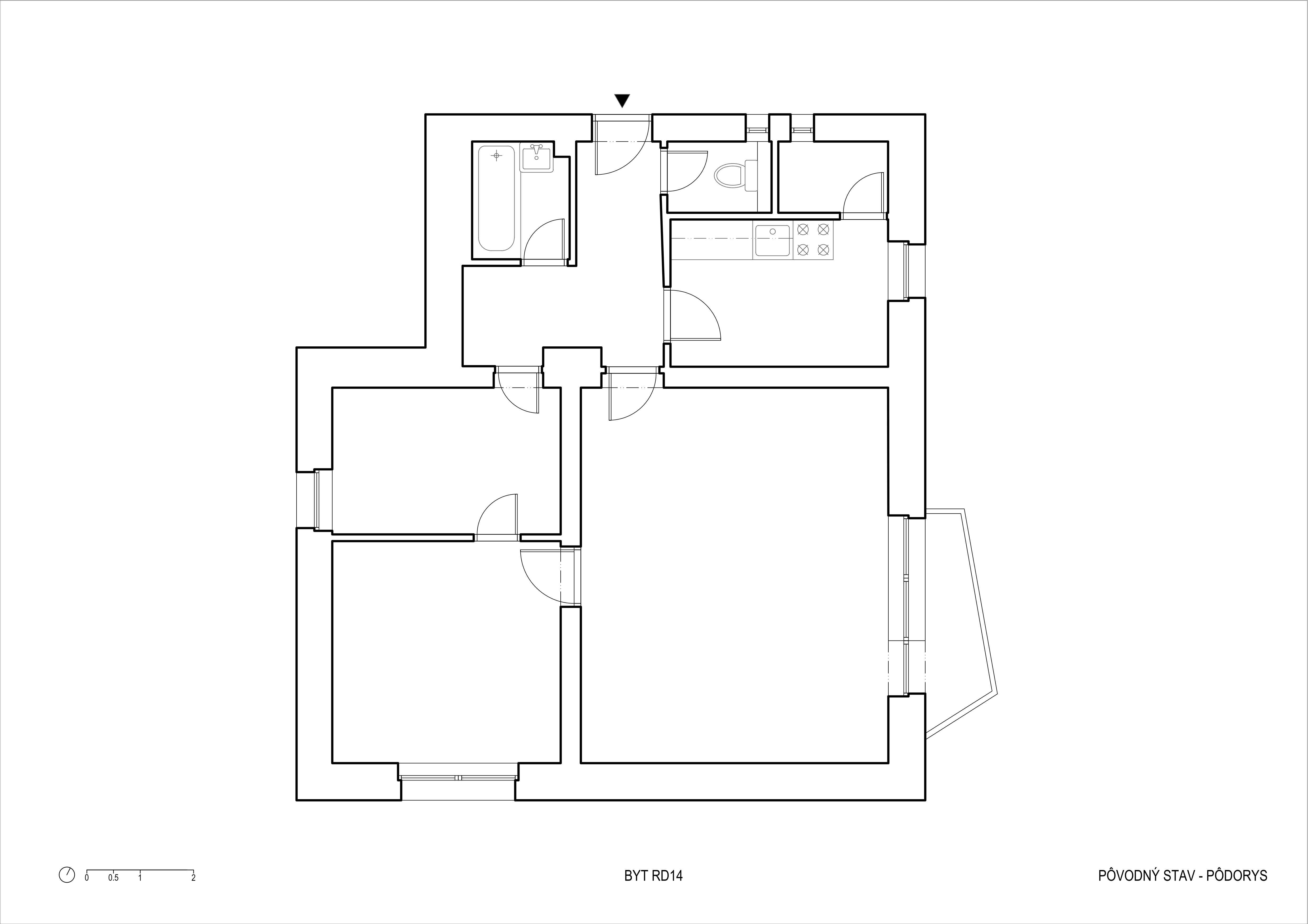
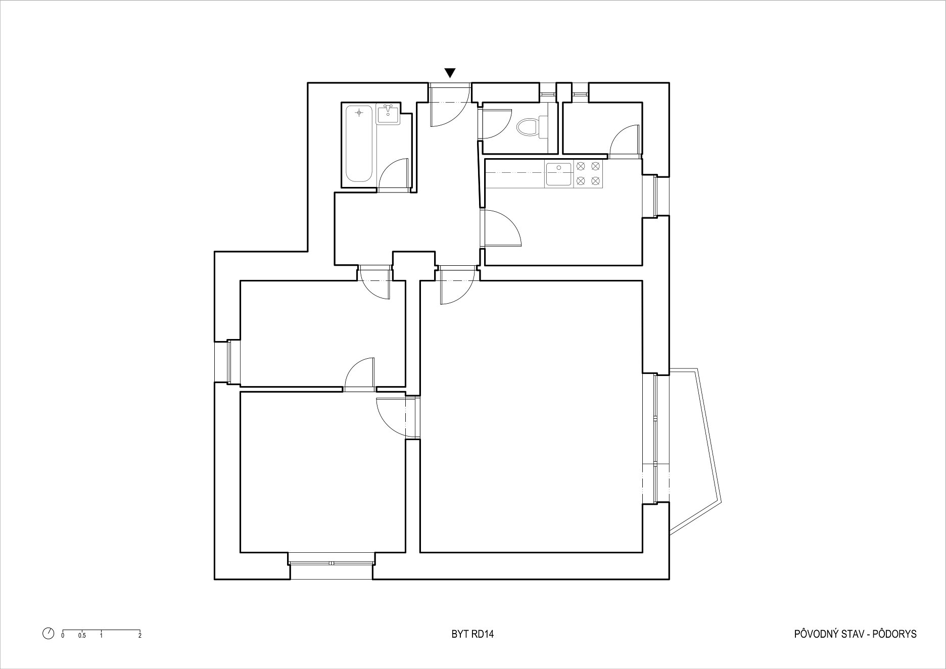
Rekonštrukcia bytu v známom bratislavskom obytnom bloku z 50. rokov od architekta Karola Paluša ľudovo známom aj ako “Palušáky” pracuje s rešpektom k pôvodnému charakteru stavby, ktorú sme pretvorili pre potreby súčasného mestského bývania.
Zachovali sme napríklad pôvodnú liatu terrazzo podlahu, ktorá sa stala jedným z kľúčových nositeľov autenticity, no zároveň kontrastuje s novými zásahmi.
Do priestoru prednej časti bytu je vložený zelený kubus – nábytková hmota, ktorá zgrupuje kuchynskú časť, technické zázemie a toaletu do jedného kompaktného celku. Kubus určuje charakter priestoru a zároveň zabezpečuje jeho vizuálnu aj funkčnú celistvosť.
Denná časť bytu sa otvorila smerom k exteriéru – pôvodný parapet bol odstránený a nahradený veľkým posuvným zasklením, ktoré otvára výhľad na balkón a okolitú zeleň. Priestor medzi obývačkou a jedálňou je plynulý, bez zreteľného rozdelenia, čo umocňuje pocit vzdušnosti a kontinuity.
Dominantou sa stáva zrkadlový obklad, ktorý odráža výhľady, odkrytú pôvodnú tehlu a organicky tvarovaný svetelný prvok, ktorý prechádza celou dennou časťou bytu. Atmosféru dotvára jemné LED podsvietenie integrované do stenových obkladov, zatiaľ čo bezrámové dvere diskrétne miznú v nábytku a stenách. Výsledkom je interiér, ktorý stavia na dialógu medzi minulosťou a prítomnosťou, prinášajúc nový život starým priestorom.
Fotografie východiskového stavu a z procesu rekonštrukcie: