Advertorial

Pozvánka na 2. ročník stavebného veľtrhu BigMarket na Slovensku

Na podujatí sa predstaví až 37 vystavovateľov - popredných dodávateľov stavebných materiálov a inovácií s prezentáciou...

Hotel Hirschen Spa House, Rakúsko

Novotvar v prostredí alpskej obce.

Vytvorte si kúpeľňu snov: dizajnové riešenie od značky hansgrohe

Hansgrohe - prémiová značka kúpeľňových riešení, ponúka nadčasový dizajn, technickú precíznosť a udržateľné inovácie...

Okná Internorm za minuloročné ceny + hliníkový kryt zdarma!

Využite špeciálnu akciu Internorm: okná za minuloročné ceny a hliníkový kryt úplne zadarmo. Ponuka je časovo obmedzená!

Moderné plynové technológie: Efektivita a inovácie pre 21. storočie

Sumarizácia najdôležitejších inovácií, ktoré redefinujúcich využitie tohto energetického zdroja.

Utesňovanie spodných stavieb pomocou hydro-aktívnej fólie AMPHIBIA.

AMPHIBIA 3000 GRIP 1.3 od spoločnosti ATRO predstavuje modernú hydroizolačnú technológiu, ktorá spája vysokú odolnosť,...

Dekarbonizácia individuálneho vykurovania domácností – Green Deal evolučne a nie revolučne

Ambiciózne plány EK narazili na ekonomické možnosti domácností v jednotlivých členských štátoch –...

Minimalistické dvere IDEA – technická precíznosť a čistota prevedenia

IDEA DOOR od spoločnosti JAP prináša do interiéru čistý minimalistický vzhľad vďaka bezrámovému riešeniu a precíznej...

Dom s výhľadom na údolie, Dlouhý Most (ČR)

Kontinuita riešenia od vonkajšieho obkladu až po kovania a kľučky.

Schell Vitus – osvedčené riešenie pre sprchy a umývadlá vo verejnom sektore s viac ako desaťročnou tradíciou

Nástenné nadomietkové armatúry Vitus sú mimoriadne vhodné pre rýchlu a efektívnu...

Kompozitné okná predstavujú súčasnosť a budúcnosť

Okenné profily z kompozitného materiálu RAU-FIPRO X od spoločnosti Rehau sú v porovnaní s tradičnými plastovými profilmi mnohonásobne...

Myotis - stoly 2025

Najnovší sortiment stolov pre zariadenie interiérov...

Priemyselné sklenené priečky Dorsis Digero: svetelné rozhranie pre moderné interiéry

Spojenie moderného dizajnu, funkčnosti a svetla do harmonického architektonického prvku.

Význam prirodzeného svetla pre moderné a flexibilné pracovné prostredie

Kancelárska budova Baumit v slovinskom Trzine prešla premenou na moderné a udržateľné pracovisko. Architekti kládli dôraz...

Konferencia Xella Dialóg predstaví novinky a trendy v stavebníctve

Mottom šiesteho ročníku on-line konferencie odborníkov Xella Dialóg je Efektívny návrh budov 2025+: zmeny a riešenia

Bytový dom Strom vo Vrakuni

Na rohu križovatky Podunajskej a Hradskej neďaleko známeho kruhového objazdu v bratislavskej mestskej časti Vrakuňa stojí nový bytový dom Strom. Novostavba, ktorej tvarovanie ovplyvnil najmä tvar pozemku. Cieľom architektov bolo umiestniť objekt do prostredia obytnej zóny tak, aby zapadol i mierkou i architektúrou. Posúďte, ako sa im to podarilo.
Diela
Red 413.04.2016
34990+11
Bytový dom Strom vo Vrakuni
Autori: Ing. arch. Richard Duška, Ing. arch. Juraj Duška, Ing. arch. Barbora ObertováPlocha pozemku: 1828 m2Podlažná plocha: 3468 m2Investičný náklad: 1 800 000 €Návrh: 2013 - 2013Realizácia: 2013 - 2014Adresa: Hradská , Bratislava, SlovenskoPublikované: 13. apríl 2016

Základná urbanistická koncepcia mestskej časti Bratislava - Vrakuňa počítala v tejto lokalite s rozvojom obytnej funkcie a s rôznymi formami bytovej výstavby tak, aby nová výstavba ponúkla väčšie možnosti pri výbere bývania, rešpektovala záujmy ochrany prírody a vytvárala harmonické spolupôsobenie s prírodným a urbanizovaným prostredím. Na základe tohto konceptu, a rovnako s prihliadnutím na tvar pozemku ako i okolitú zástavbu, bol navrhnutý nízkopodlažný objekt s čiastočne otvoreným vnútroblokom.

Foto: Matej Kováč
Vnútroblok
VnútroblokFoto: Matej Kováč
Vnútroblok
VnútroblokFoto: Matej Kováč

Objekt má 4 nadzemné a 1 podzemné podlažie. V objekte sa nachádza 37 bytov a 3 nebytové priestory na prízemí prístupné priamo z ulice. Vnútroblok sprístupňuje tri vstupy do obytnej časti objektu. Celková skladba bytov pozostáva z jedno, dvoj ako i troj izbových bytov. Dispozičné riešenie je jednoduché a prehľadné - vstupná chodba sprístupňuje hygienu, kuchyňu s obývačkou a prípadne spálňu. V podzemnom podlaží je navrhovaná garáž s 38 parkovacími miestami ako i technické zázemie objektu.

Situácia
Situácia
Pôdorys 1.NP
Pôdorys 1.NP
Pôdorys 3.NP
Pôdorys 3.NP
Pôdorys 4.NP
Pôdorys 4.NP
Pôdorys 1.PP
Pôdorys 1.PP

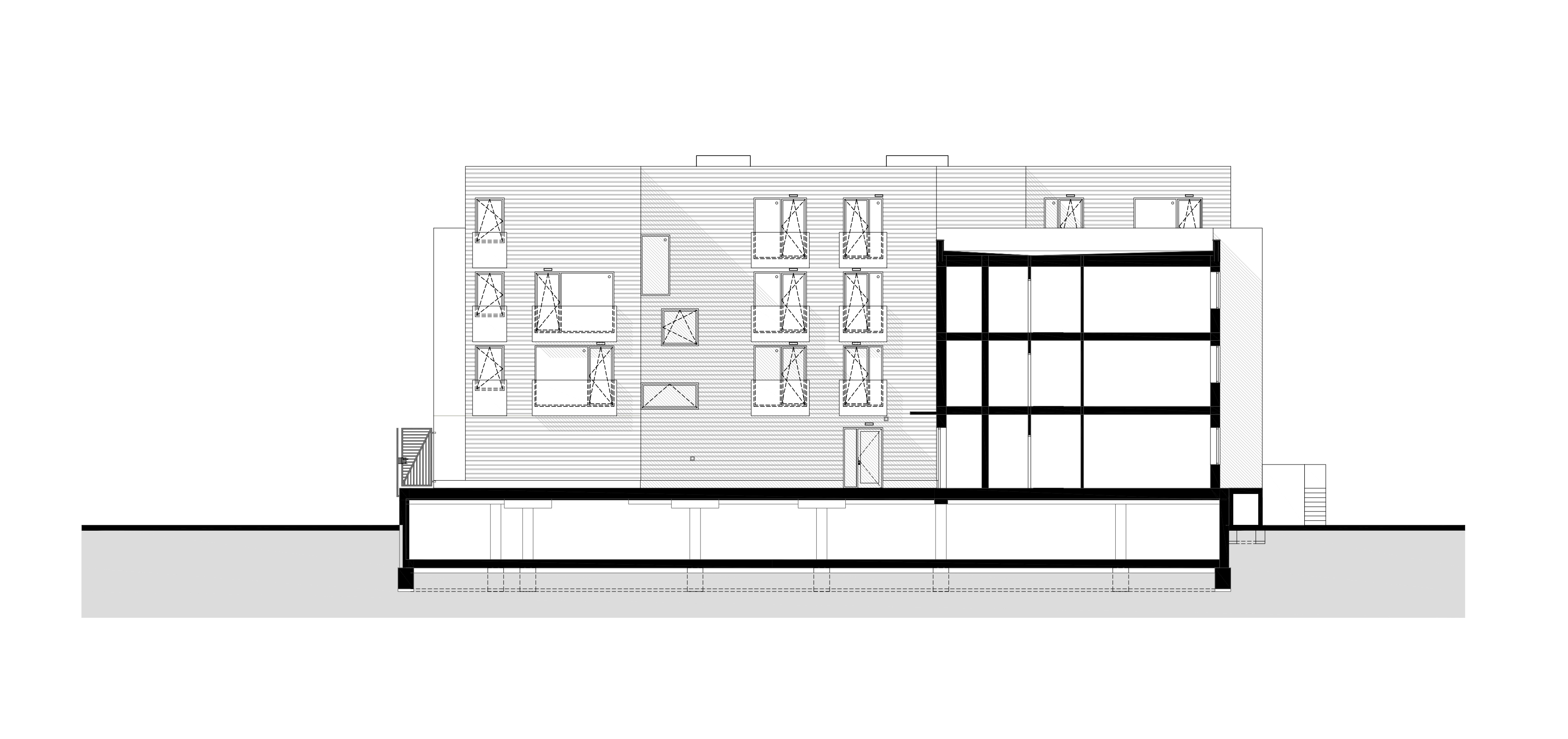
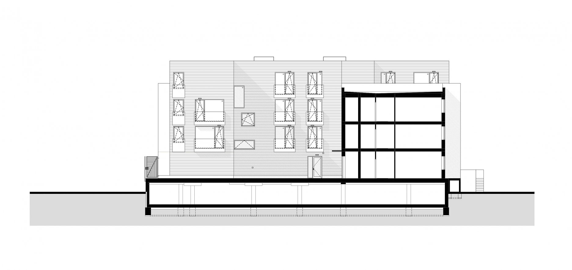
Zo stavebno-technického  hľadiska stavba predstavuje kombináciu monolitického  železobetónového skeletu, murovaných stien a monolitického ŽB jadra. Obvodový plášť je riešený murovanou tehlovou konštrukciou. Strecha je  železobetónový monolit. 
Tvar objektu bol predurčený tvarom pozemku ako i okolitým urbanizovaným prostredím. Na základe tohto konceptu sa zvolilo jednoduché materiálové ako i farebné riešenie. Biela omietka, ako protipól k zložitejšiemu tvarovaniu, necháva pekne vyniknúť  hmotu objektu. Akcentom na fasáde sa stávajú balkóny. Priehľadné zábradlia osadené na nepravidelnej konštrukcii majú evokovať dojem rozkonáreného stromu. Pestré časti zábradlia iba dopĺňajú a podporujú celkový koncept, v prenesenom zmysle teda pripomínajú farebné plody stromu.  Vnútroblok ako i ustúpené štvrté podlažie zvýraznené svetlošedou omietkou vytvárajú opozitum k čistej vonkajšej fasáde. Ryhovaná omietka predstavujúca letokruhy zároveň definuje "súkromné". V kontexte s vnútroblokom tak iba podporuje tento prenesený význam. Parkové úpravy vrámci parteru ako i ostatné funkčné prvky na fasáde a v jej okolí majú rovnako doplniť filozofiu a výraz architektúry samotnej. 

Foto: Matej Kováč
Foto: Matej Kováč
Foto: Matej Kováč
Foto: Matej Kováč
Foto: Matej Kováč
Priečny rez
Priečny rez
Severný pohľad
Severný pohľad
Západný pohľad
Západný pohľad

Zdroj: VI GROUP

Poloha diela

Ing. arch. Richard Duška
Ing. arch. Juraj Duška
Ing. arch. Barbora Obertová
Vložené
12. apríl 2016
0
3499
Hlavný obsahHlavný obsah
Čakajte prosím